Property
Account |
| Property ID: | 18545 | Abbreviated Legal Description: | ISAAC'S 2ND LOT 1 OF SHORT PLAT 4/236 2006-14363(LOT 2;LESS SELY PTN) BLOCK 3 |
| Parcel Number: | 360721580311 | Agent Code: | |
| Type: | Real | | |
| Tax Area: | 1 - OL-140-F | Land Use Code | 11 |
| Open Space: | N | DFL | N |
| Historic Property: | N | Remodel Property: | N |
| Multi-Family Redevelopment: | N | | |
| Township: | 7 | Section: | 21 |
| Range: | 36 |
Location |
| Address: | 831 HOBSON ST WA 99362 | Mapsco: | |
| Neighborhood: | G-SFR | Map ID: | |
| Neighborhood CD: | 514011 |
Owner |
| Name: | DAVIS BROOKS E & JANET L N | Owner ID: | 56416 |
| Mailing Address: | 831 HOBSON ST WALLA WALLA, WA 99362 | % Ownership: | 100.0000000000% |
| | | Exemptions: | |
Taxes and Assessment Details
Values
| (+) Improvement Homesite Value: | + | $0 | |
| (+) Improvement Non-Homesite Value: | + | $699,230 | |
| (+) Land Homesite Value: | + | $0 | |
| (+) Land Non-Homesite Value: | + | $74,780 | |
| (+) Curr Use (HS): | + | $0 | $0 |
| (+) Curr Use (NHS): | + | $0 | $0 |
| | | -------------------------- | |
| (=) Market Value: | = | $774,010 | |
| (–) Productivity Loss: | – | $0 | |
| | | -------------------------- | |
| (=) Subtotal: | = | $774,010 | |
| (+) Senior Appraised Value: | + | $0 | |
| (+) Non-Senior Appraised Value: | + | $774,010 | |
| | | -------------------------- | |
| (=) Total Appraised Value: | = | $774,010 | |
| (–) Senior Exemption Loss: | – | $0 | |
| (–) Exemption Loss: | – | $0 | |
| | | -------------------------- | |
| (=) Taxable Value: | = | $774,010 | |
Taxing Jurisdiction
| Owner: | DAVIS BROOKS E & JANET L N | | |
| % Ownership: | 100.0000000000% | | |
| Total Value: | $774,010 | | |
| Tax Area: | 1 - OL-140-F |
| CERFD | CURRENT EXPENSE REFUND 010 | 0.0000000000 | $774,010 | $774,010 | $0.00 | | |
| CURREXP | CURRENT EXPENSE 010 | 1.0175366760 | $774,010 | $774,010 | $787.58 | | |
| HUMNSERV | HUMAN SERVICES 119 | 0.0250000000 | $774,010 | $774,010 | $19.35 | | |
| SLDREL | SOLDIERS RELIEF 121 | 0.0155990005 | $774,010 | $774,010 | $12.07 | | |
| EMERGSER | EMS 147 | 0.3792580840 | $774,010 | $774,010 | $293.55 | | |
| EMSRFD | EMS REFUND 147 | 0.0000000000 | $774,010 | $774,010 | $0.00 | | |
| PORTRFD | PORT REFUND 640 | 0.0000000000 | $774,010 | $774,010 | $0.00 | | |
| PORTWWGEN | PORT OF WW 640 | 0.2460186015 | $774,010 | $774,010 | $190.42 | | |
| SD140BOND | SD #140 BOND 764 | 0.8342371393 | $774,010 | $774,010 | $645.71 | | |
| SD140GEN | SD #140 GENERAL 760 | 2.0646500647 | $774,010 | $774,010 | $1,598.06 | | |
| ST2 | STATE SCHOOL PART 2 600 | 0.8131451643 | $774,010 | $774,010 | $629.38 | | |
| STATESCHL | STATE SCHOOL 600 | 1.5158548041 | $774,010 | $774,010 | $1,173.29 | | |
| STREFUND | STATE REFUND LEVY 603 | 0.0000000000 | $774,010 | $774,010 | $0.00 | | |
| CWWBOND | C OF WW BOND 643 | 0.2760494372 | $774,010 | $774,010 | $213.67 | | |
| CWWGEN | CITY OF WW 631 | 1.6100204973 | $774,010 | $774,010 | $1,246.17 | | |
| CWWRFD | CITY OF WALLA WALLA REFUND 631 | 0.0000000000 | $774,010 | $774,010 | $0.00 | | |
| | Total Tax Rate: | 8.7973694689 | | | | | |
| | | | | Taxes w/Current Exemptions: | $6,809.25 | | |
| | | | | Taxes w/o Exemptions: | $6,809.25 | | |
Improvement / Building
| Improvement #1: | RESIDENTIAL | State Code: | 11 | 3365.0 sqft | Value: | $699,230 |
| Exterior Wall: | SIDING | Heating/Cooling: | HEAT PUMP | | Number of Bathrooms: | 2.5 | Number of Bedrooms: | 4 | | Plumbing: | 15 | ROOFING: | COMP SHINGLE |
|
| | Type | Description | Class CD | Sub Class CD | Year Built | Area |
| | MA | Main Area | 4 | 50 | 2016 | 3365.0 |
| | UPFL | Upper Floor (included in main area) | 4 | 50 | 2016 | 1219.0 |
| | SI1 | SITE IMPROVEMENT | 4 | 50 | 2016 | 5.0 |
| | RPC | OPEN PORCH W/ROOF , CEILED | 4 | 50 | 2016 | 96.0 |
| | CPCG | CARPORT/ GABLE ROOF | 4 | 50 | 2016 | 342.0 |
| | ATG | Attached Garage | 4 | 50 | 2016 | 552.0 |
Sketch
Property Image
Land
| 1 | RES 1 | Converted: Residential | 0.3203 | 13951.00 | 0.00 | 0.00 | 1.00 | $74,780 | $0 |
Roll Value History
| 2026 | N/A | N/A | N/A | N/A | N/A |
| 2025 | $648,690 | $133,650 | $0 | $782,340 | $782,340 |
| 2024 | $648,690 | $133,650 | $0 | $782,340 | $782,340 |
| 2023 | $699,230 | $74,780 | $0 | $774,010 | $774,010 |
| 2022 | $608,030 | $74,780 | $0 | $682,810 | $682,810 |
| 2021 | $506,690 | $74,780 | $0 | $581,470 | $581,470 |
| 2020 | $440,600 | $74,780 | $0 | $515,380 | $515,380 |
| 2019 | $440,600 | $74,780 | $0 | $515,380 | $515,380 |
| 2018 | $440,600 | $74,780 | $0 | $515,380 | $515,380 |
| 2017 | $441,140 | $47,400 | $0 | $488,540 | $488,540 |
| 2016 | $0 | $47,400 | $0 | $47,400 | $47,400 |
| 2015 | $0 | $47,400 | $0 | $47,400 | $47,400 |
| 2014 | $0 | $47,400 | $0 | $47,400 | $47,400 |
| 2013 | $0 | $47,400 | $0 | $47,400 | $47,400 |
| 2012 | $0 | $8,700 | $0 | $0 | $0 |
| 2011 | $0 | $8,700 | $0 | $0 | $0 |
| 2010 | $0 | $8,700 | $0 | $0 | $0 |
| 2009 | $0 | $8,700 | $0 | $0 | $0 |
| 2008 | $0 | $8,700 | $0 | $0 | $0 |
| 2007 | $0 | $8,700 | $0 | $0 | $0 |
Deed and Sales History
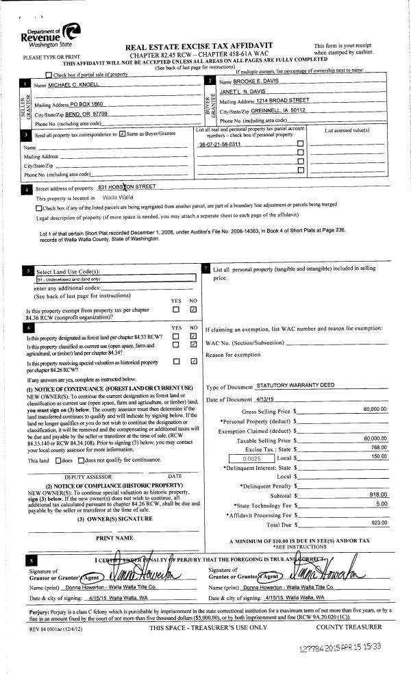
| 1 | 04/15/2015 | SWD | STATUTORY WARRANTY DEED | KNOELL MICHAEL C | DAVIS BROOKS E & JANET L N | | | $60,000.00 | 127784 | 2015-03045 |
| 2 | 01/28/2008 | QCD | QUIT CLAIM DEED | MADREGAL INVESTMENTS LLC | KNOELL MICHAEL C | | | | 114437 | 2008-00796 |
Payout Agreement
| No payout information available.. |