Property
Account |
| Property ID: | 18537 | Abbreviated Legal Description: | BLALOCK ORCHARDS TAX 33 BLK 44 |
| Parcel Number: | 350735524418 | Agent Code: | |
| Type: | Real | | |
| Tax Area: | 75 - CP 250 | Land Use Code | 11 |
| Open Space: | N | DFL | N |
| Historic Property: | N | Remodel Property: | N |
| Multi-Family Redevelopment: | N | | |
| Township: | 7 | Section: | 35 |
| Range: | 35 |
Location |
| Address: | 529 SW 1ST ST WA 99324 | Mapsco: | |
| Neighborhood: | A SFR | Map ID: | |
| Neighborhood CD: | 113011 |
Owner |
| Name: | HARLAN JENNIFER L & ALAN P | Owner ID: | 70765 |
| Mailing Address: | PO BOX 382 COLLEGE PLACE, WA 99324 | % Ownership: | 100.0000000000% |
| | | Exemptions: | |
Taxes and Assessment Details
Property Tax Information as of
02/21/2026
Click on "Statement Details" to expand or collapse a tax statement.
* Please enter a valid date ** Please enter a valid date *
Statement Details |
| | TOTAL: | $0.00 | $0.00 | $0.00 | $0.00 | $0.00 | $0.00 |
|
| | $0.00 | $0.00 | $0.00 | $0.00 | $0.00 | $0.00 |
Values
| (+) Improvement Homesite Value: | + | $0 | |
| (+) Improvement Non-Homesite Value: | + | $367,850 | |
| (+) Land Homesite Value: | + | $0 | |
| (+) Land Non-Homesite Value: | + | $61,320 | |
| (+) Curr Use (HS): | + | $0 | $0 |
| (+) Curr Use (NHS): | + | $0 | $0 |
| | | -------------------------- | |
| (=) Market Value: | = | $429,170 | |
| (–) Productivity Loss: | – | $0 | |
| | | -------------------------- | |
| (=) Subtotal: | = | $429,170 | |
| (+) Senior Appraised Value: | + | $0 | |
| (+) Non-Senior Appraised Value: | + | $429,170 | |
| | | -------------------------- | |
| (=) Total Appraised Value: | = | $429,170 | |
| (–) Senior Exemption Loss: | – | $0 | |
| (–) Exemption Loss: | – | $0 | |
| | | -------------------------- | |
| (=) Taxable Value: | = | $429,170 | |
Taxing Jurisdiction
| Owner: | HARLAN JENNIFER L & ALAN P | | |
| % Ownership: | 100.0000000000% | | |
| Total Value: | $429,170 | | |
| Tax Area: | 75 - CP 250 |
| CERFD | CURRENT EXPENSE REFUND 010 | 0.0000000000 | $429,170 | $429,170 | $0.00 | | |
| CURREXP | CURRENT EXPENSE 010 | 1.0175366760 | $429,170 | $429,170 | $436.70 | | |
| HUMNSERV | HUMAN SERVICES 119 | 0.0250000000 | $429,170 | $429,170 | $10.73 | | |
| SLDREL | SOLDIERS RELIEF 121 | 0.0155990005 | $429,170 | $429,170 | $6.69 | | |
| COLLPLBOND | C OF CP BOND 644 | 0.4374241808 | $429,170 | $429,170 | $187.73 | | |
| COLLPLGEN | CITY OF CP 632 | 1.4453819216 | $429,170 | $429,170 | $620.31 | | |
| EMERGSER | EMS 147 | 0.3792580840 | $429,170 | $429,170 | $162.77 | | |
| EMSRFD | EMS REFUND 147 | 0.0000000000 | $429,170 | $429,170 | $0.00 | | |
| RURALLIB | RURAL LIBRARY 623 | 0.3710609029 | $429,170 | $429,170 | $159.25 | | |
| PORTRFD | PORT REFUND 640 | 0.0000000000 | $429,170 | $429,170 | $0.00 | | |
| PORTWWGEN | PORT OF WW 640 | 0.2460186015 | $429,170 | $429,170 | $105.58 | | |
| SD250BOND | SD #250 BOND 773 | 1.4560608159 | $429,170 | $429,170 | $624.90 | | |
| SD250GEN | SD #250 GENERAL 770 | 2.3880724087 | $429,170 | $429,170 | $1,024.89 | | |
| ST2 | STATE SCHOOL PART 2 600 | 0.8131451643 | $429,170 | $429,170 | $348.98 | | |
| STATESCHL | STATE SCHOOL 600 | 1.5158548041 | $429,170 | $429,170 | $650.56 | | |
| STREFUND | STATE REFUND LEVY 603 | 0.0000000000 | $429,170 | $429,170 | $0.00 | | |
| | Total Tax Rate: | 10.1104125603 | | | | | |
| | | | | Taxes w/Current Exemptions: | $4,339.09 | | |
| | | | | Taxes w/o Exemptions: | $4,339.09 | | |
Improvement / Building
| Improvement #1: | RESIDENTIAL | State Code: | 11 | 1815.0 sqft | Value: | $367,850 |
| Exterior Wall: | SIDING | Heating/Cooling: | WARM & COOLED AIR | | Number of Bathrooms: | 2.5 | Number of Bedrooms: | 4 | | Plumbing: | 12 | Roof Covering: | COMP SHINGLE |
|
| | Type | Description | Class CD | Sub Class CD | Year Built | Area |
| | MA | Main Area | 4 | 35 | 1950 | 1815.0 |
| | UPFL | Upper Floor (included in main area) | 4 | 35 | 1950 | 605.0 |
| | SI1 | SITE IMPROVEMENT | 4 | 35 | 1950 | 4.0 |
| | BASE | BASEMENT | 4 | 35 | 1950 | 1210.0 |
| | BPF | BASEMENT -PARTITIONED FINISH | 4 | 35 | 1950 | 1210.0 |
| | WOD | Wood Deck | 4 | 35 | 1950 | 180.0 |
| | WOD | Wood Deck | 4 | 35 | 1950 | 100.0 |
| | FBAT | FULL BATH | 4 | 35 | 1950 | 1.0 |
| | APP | APPLIANCE ALLOWANCE | 4 | 35 | 1950 | 1.0 |
| | OUT | OUTSIDE BASEMENT ENTRY | 4 | 35 | 1950 | 1.0 |
Sketch
Property Image
Land
| 1 | RES 1 | Converted: Residential | 0.2300 | 10019.00 | 0.00 | 0.00 | 1.00 | $61,320 | $0 |
Roll Value History
| 2026 | N/A | N/A | N/A | N/A | N/A |
| 2025 | $347,620 | $91,270 | $0 | $438,890 | $438,890 |
| 2024 | $386,240 | $61,320 | $0 | $447,560 | $447,560 |
| 2023 | $367,850 | $61,320 | $0 | $429,170 | $429,170 |
| 2022 | $334,410 | $61,320 | $0 | $395,730 | $395,730 |
| 2021 | $242,300 | $61,320 | $0 | $303,620 | $303,620 |
| 2020 | $161,530 | $61,320 | $0 | $222,850 | $222,850 |
| 2019 | $175,750 | $47,100 | $0 | $222,850 | $222,850 |
| 2018 | $175,750 | $47,100 | $0 | $222,850 | $222,850 |
| 2017 | $159,770 | $47,100 | $0 | $206,870 | $206,870 |
| 2016 | $152,160 | $47,100 | $0 | $199,260 | $199,260 |
| 2015 | $95,100 | $47,100 | $0 | $142,200 | $142,200 |
| 2014 | $95,100 | $47,100 | $0 | $142,200 | $142,200 |
| 2013 | $95,100 | $47,100 | $0 | $142,200 | $142,200 |
| 2012 | $95,100 | $47,100 | $0 | $0 | $0 |
| 2011 | $95,100 | $47,100 | $0 | $0 | $0 |
| 2010 | $88,300 | $47,100 | $0 | $0 | $0 |
| 2009 | $88,300 | $47,100 | $0 | $0 | $0 |
| 2008 | $80,800 | $24,700 | $0 | $0 | $0 |
| 2007 | $80,800 | $24,700 | $0 | $0 | $0 |
Deed and Sales History
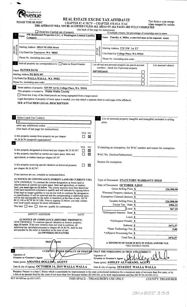
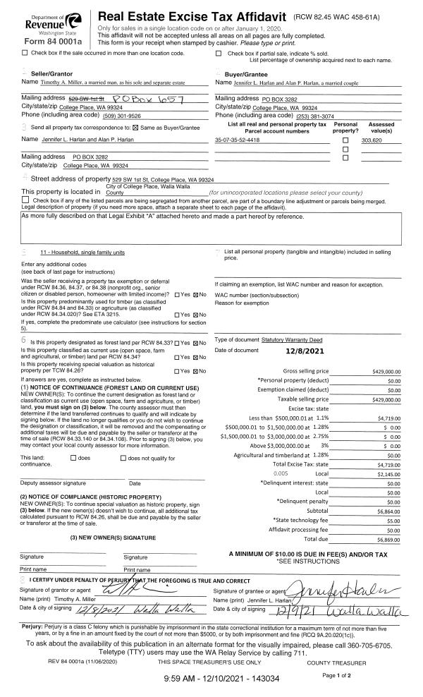
| 1 | 12/10/2021 | SWD | STATUTORY WARRANTY DEED | MILLER TIMOTHY A | HARLAN JENNIFER L & ALAN P | | | $429,000.00 | 143034 | 2021-14533 |
| 2 | 10/15/2015 | QCD | QUIT CLAIM DEED | MILLER APRIL A | MILLER TIMOTHY A | | | | 129015 | 2015-09052 |
| 3 | 10/15/2015 | SWD | STATUTORY WARRANTY DEED | NW RESIDENTIAL PROPERTIES LLC | MILLER TIMOTHY A | | | $226,900.00 | 129014 | 2015-09051 |
| 4 | 12/13/2013 | BARGAIN & | BARGAIN & SALE DEED | HAMBY DAVE M & KATHY A | NW RESIDENTIAL PROPERTIES LLC | | | | 125104 | 2013-11928 |
| 5 | 11/20/2007 | WARRANTY D | WARRANTY DEED | WALLA WALLA UNIVERSITY | HAMBY, DAVE M & KATHY A | | | $139,000.00 | 114117 | 2007-13354 |
| 6 | 05/10/2007 | WARRANTY D | WARRANTY DEED | NORTH PACIFIC UNION CONFERENCE | WALLA WALLA COLLEGE | | | | 112781 | 2007-05241 |
| 7 | 07/28/2006 | WARRANTY D | WARRANTY DEED | DUTRO, JAMES W ESTATE OF | NORTH PACIFIC UNION CONFERENCE | | | | 110817 | 2006-08873 |
| 8 | 03/29/1979 | WARRANTY D | WARRANTY DEED | | | | | $39,500.00 | 0 | 1007-902837 |
Payout Agreement
| No payout information available.. |