Property
Account |
| Property ID: | 18513 | Abbreviated Legal Description: | DIXIE LOTS 1, 2, 3, & 10 BLK 35 & WLY 10' OF LOT 11 |
| Parcel Number: | 370826513512 | Agent Code: | |
| Type: | Real | | |
| Tax Area: | 310 - 101-8 | Land Use Code | 11 |
| Open Space: | N | DFL | N |
| Historic Property: | N | Remodel Property: | N |
| Multi-Family Redevelopment: | N | | |
| Township: | 8 | Section: | 26 |
| Range: | 37 |
Location |
| Address: | 35 SECOND ST WA 99329 | Mapsco: | |
| Neighborhood: | Cycle 4 Dixie (SF) | Map ID: | |
| Neighborhood CD: | 413511 |
Owner |
| Name: | RENAUD AUDREY | Owner ID: | 68314 |
| Mailing Address: | PO BOX 1 DIXIE, WA 99329 | % Ownership: | 100.0000000000% |
| | | Exemptions: | |
Taxes and Assessment Details
Property Tax Information as of
02/21/2026
Click on "Statement Details" to expand or collapse a tax statement.
* Please enter a valid date ** Please enter a valid date *
Statement Details |
| | TOTAL: | $0.00 | $0.00 | $0.00 | $0.00 | $0.00 | $0.00 |
|
| | $0.00 | $0.00 | $0.00 | $0.00 | $0.00 | $0.00 |
Values
| (+) Improvement Homesite Value: | + | $0 | |
| (+) Improvement Non-Homesite Value: | + | $219,970 | |
| (+) Land Homesite Value: | + | $0 | |
| (+) Land Non-Homesite Value: | + | $44,940 | |
| (+) Curr Use (HS): | + | $0 | $0 |
| (+) Curr Use (NHS): | + | $0 | $0 |
| | | -------------------------- | |
| (=) Market Value: | = | $264,910 | |
| (–) Productivity Loss: | – | $0 | |
| | | -------------------------- | |
| (=) Subtotal: | = | $264,910 | |
| (+) Senior Appraised Value: | + | $0 | |
| (+) Non-Senior Appraised Value: | + | $264,910 | |
| | | -------------------------- | |
| (=) Total Appraised Value: | = | $264,910 | |
| (–) Senior Exemption Loss: | – | $0 | |
| (–) Exemption Loss: | – | $0 | |
| | | -------------------------- | |
| (=) Taxable Value: | = | $264,910 | |
Taxing Jurisdiction
| Owner: | RENAUD AUDREY | | |
| % Ownership: | 100.0000000000% | | |
| Total Value: | $264,910 | | |
| Tax Area: | 310 - 101-8 |
| CERFD | CURRENT EXPENSE REFUND 010 | 0.0000000000 | $264,910 | $264,910 | $0.00 | | |
| CURREXP | CURRENT EXPENSE 010 | 1.0175366760 | $264,910 | $264,910 | $269.56 | | |
| HUMNSERV | HUMAN SERVICES 119 | 0.0250000000 | $264,910 | $264,910 | $6.62 | | |
| SLDREL | SOLDIERS RELIEF 121 | 0.0155990005 | $264,910 | $264,910 | $4.13 | | |
| EMERGSER | EMS 147 | 0.3792580840 | $264,910 | $264,910 | $100.47 | | |
| EMSRFD | EMS REFUND 147 | 0.0000000000 | $264,910 | $264,910 | $0.00 | | |
| FD8EXP | FD #8 EXPENSE 697 | 0.6647992540 | $264,910 | $264,910 | $176.11 | | |
| RLBRFD | RURAL LIBRARY REFUND 623 | 0.0000000000 | $264,910 | $264,910 | $0.00 | | |
| RURALLIB | RURAL LIBRARY 623 | 0.3710609029 | $264,910 | $264,910 | $98.30 | | |
| PORTRFD | PORT REFUND 640 | 0.0000000000 | $264,910 | $264,910 | $0.00 | | |
| PORTWWGEN | PORT OF WW 640 | 0.2460186015 | $264,910 | $264,910 | $65.17 | | |
| SD101CAP | SD #101 CAP 752 | 0.5894423472 | $264,910 | $264,910 | $156.15 | | |
| SD101GEN | SD #101 GENERAL 750 | 0.7455117868 | $264,910 | $264,910 | $197.49 | | |
| ST2 | STATE SCHOOL PART 2 600 | 0.8131451643 | $264,910 | $264,910 | $215.41 | | |
| STATESCHL | STATE SCHOOL 600 | 1.5158548041 | $264,910 | $264,910 | $401.57 | | |
| STREFUND | STATE REFUND LEVY 603 | 0.0000000000 | $264,910 | $264,910 | $0.00 | | |
| COROAD | COUNTY ROAD 115 | 1.6549953990 | $264,910 | $264,910 | $438.42 | | |
| CRPRD | COUNTY ROAD REFUND 115 | 0.0000000000 | $264,910 | $264,910 | $0.00 | | |
| | Total Tax Rate: | 8.0382220203 | | | | | |
| | | | | Taxes w/Current Exemptions: | $2,129.40 | | |
| | | | | Taxes w/o Exemptions: | $2,129.40 | | |
Improvement / Building
| Improvement #1: | RESIDENTIAL | State Code: | 11 | 1477.0 sqft | Value: | $219,970 |
| Exterior Wall: | SIDING | Heating/Cooling: | HEAT PUMP | | Number of Bathrooms: | 2 | Number of Bedrooms: | 3 | | Plumbing: | 10 | Roof Covering: | COMP SHINGLE |
|
| | Type | Description | Class CD | Sub Class CD | Year Built | Area |
| | MA | Main Area | 1 | 20 | 1930 | 1477.0 |
| | SI1 | SITE IMPROVEMENT | 1 | 20 | 1930 | 1.0 |
| | HBAT | HALF BATH | 1 | 20 | 1930 | 1.0 |
| | SHOP | SHOP BUILDING | 1 | 20 | 1930 | 3500.0 |
| | WOD | Wood Deck | 1 | 20 | 1930 | 60.0 |
Sketch
Property Image
Land
| 1 | RES 1 | Converted: Residential | 0.4821 | 21000.00 | 0.00 | 0.00 | 1.00 | $44,940 | $0 |
Roll Value History
| 2026 | N/A | N/A | N/A | N/A | N/A |
| 2025 | $219,970 | $44,940 | $0 | $264,910 | $264,910 |
| 2024 | $219,970 | $44,940 | $0 | $264,910 | $264,910 |
| 2023 | $219,970 | $44,940 | $0 | $264,910 | $264,910 |
| 2022 | $221,460 | $29,600 | $0 | $251,060 | $251,060 |
| 2021 | $158,180 | $29,600 | $0 | $187,780 | $187,780 |
| 2020 | $98,860 | $29,600 | $0 | $128,460 | $128,460 |
| 2019 | $98,860 | $29,600 | $0 | $128,460 | $128,460 |
| 2018 | $98,860 | $29,600 | $0 | $128,460 | $128,460 |
| 2017 | $89,880 | $29,600 | $0 | $119,480 | $119,480 |
| 2016 | $74,600 | $29,600 | $0 | $104,200 | $104,200 |
| 2015 | $74,600 | $29,600 | $0 | $104,200 | $104,200 |
| 2014 | $74,600 | $29,600 | $0 | $104,200 | $104,200 |
| 2013 | $74,600 | $29,600 | $0 | $104,200 | $104,200 |
| 2012 | $74,600 | $29,600 | $0 | $0 | $0 |
| 2011 | $75,900 | $29,600 | $0 | $0 | $0 |
| 2010 | $75,900 | $29,600 | $0 | $0 | $0 |
| 2009 | $86,500 | $19,000 | $0 | $0 | $0 |
| 2008 | $101,800 | $19,000 | $0 | $0 | $0 |
| 2007 | $101,800 | $19,000 | $0 | $0 | $0 |
Deed and Sales History
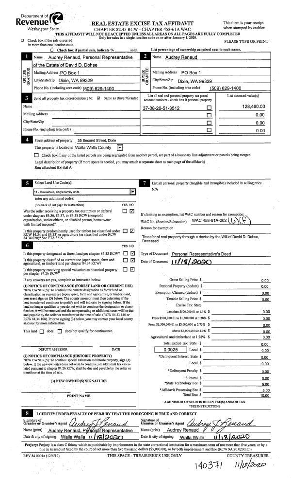
| 1 | 11/18/2020 | DPR | DEED OF PERSONAL REPRESENTATIVE | DOHSE DAVID D | RENAUD AUDREY | | | | 140371 | 2020-12196 |
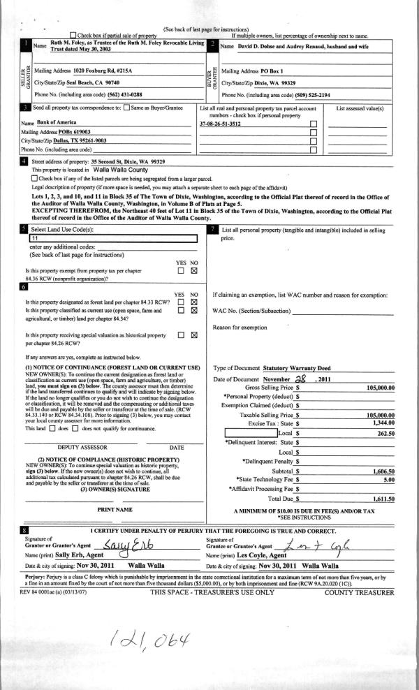
| 2 | 11/30/2011 | WARRANTY D | WARRANTY DEED | FOLEY, RUTH M AS TRUSTEE OF TH | DOHSE, DAVID D | | | $105,000.00 | 121064 | 2011-09410 |
| 3 | 08/09/2007 | QCD | QUIT CLAIM DEED | FOLEY, RUTH M | FOLEY, RUTH M AS TRUSTEE OF TH | | | | 113478 | 2007-09301 |
| 4 | 02/13/2007 | WARRANTY D | WARRANTY DEED | CUMMINGS, RICHARD & GWENDOLYN | FOLEY, RUTH M | | | $107,000.00 | 112232 | 2007-01759 |
| 5 | 06/19/1997 | WARRANTY D | WARRANTY DEED | | | | | $95,000.00 | 88367 | 2539-705528 |
Payout Agreement
| No payout information available.. |