Property
Account |
| Property ID: | 18500 | Abbreviated Legal Description: | STUBBLEFIELD ADDN LT 15 BLK 3 |
| Parcel Number: | 360728740315 | Agent Code: | |
| Type: | Real | | |
| Tax Area: | 1 - OL-140-F | Land Use Code | 11 |
| Open Space: | N | DFL | N |
| Historic Property: | N | Remodel Property: | N |
| Multi-Family Redevelopment: | N | | |
| Township: | 7 | Section: | 28 |
| Range: | 36 |
Location |
| Address: | 1846 HOME AVE WA 99362 | Mapsco: | |
| Neighborhood: | G Res | Map ID: | |
| Neighborhood CD: | 614011 |
Owner |
| Name: | MCMORROW MITCHELL P & VANESSA R | Owner ID: | 63602 |
| Mailing Address: | 1846 HOME AVE WALLA WALLA, WA 99362 | % Ownership: | 100.0000000000% |
| | | Exemptions: | |
Taxes and Assessment Details
Values
| (+) Improvement Homesite Value: | + | $0 | |
| (+) Improvement Non-Homesite Value: | + | $424,930 | |
| (+) Land Homesite Value: | + | $0 | |
| (+) Land Non-Homesite Value: | + | $120,000 | |
| (+) Curr Use (HS): | + | $0 | $0 |
| (+) Curr Use (NHS): | + | $0 | $0 |
| | | -------------------------- | |
| (=) Market Value: | = | $544,930 | |
| (–) Productivity Loss: | – | $0 | |
| | | -------------------------- | |
| (=) Subtotal: | = | $544,930 | |
| (+) Senior Appraised Value: | + | $0 | |
| (+) Non-Senior Appraised Value: | + | $544,930 | |
| | | -------------------------- | |
| (=) Total Appraised Value: | = | $544,930 | |
| (–) Senior Exemption Loss: | – | $0 | |
| (–) Exemption Loss: | – | $0 | |
| | | -------------------------- | |
| (=) Taxable Value: | = | $544,930 | |
Taxing Jurisdiction
| Owner: | MCMORROW MITCHELL P & VANESSA R | | |
| % Ownership: | 100.0000000000% | | |
| Total Value: | $544,930 | | |
| Tax Area: | 1 - OL-140-F |
| CERFD | CURRENT EXPENSE REFUND 010 | 0.0000000000 | $544,930 | $544,930 | $0.00 | | |
| CURREXP | CURRENT EXPENSE 010 | 1.0175366760 | $544,930 | $544,930 | $554.49 | | |
| HUMNSERV | HUMAN SERVICES 119 | 0.0250000000 | $544,930 | $544,930 | $13.62 | | |
| SLDREL | SOLDIERS RELIEF 121 | 0.0155990005 | $544,930 | $544,930 | $8.50 | | |
| EMERGSER | EMS 147 | 0.3792580840 | $544,930 | $544,930 | $206.67 | | |
| EMSRFD | EMS REFUND 147 | 0.0000000000 | $544,930 | $544,930 | $0.00 | | |
| PORTRFD | PORT REFUND 640 | 0.0000000000 | $544,930 | $544,930 | $0.00 | | |
| PORTWWGEN | PORT OF WW 640 | 0.2460186015 | $544,930 | $544,930 | $134.06 | | |
| SD140BOND | SD #140 BOND 764 | 0.8342371393 | $544,930 | $544,930 | $454.60 | | |
| SD140GEN | SD #140 GENERAL 760 | 2.0646500647 | $544,930 | $544,930 | $1,125.09 | | |
| ST2 | STATE SCHOOL PART 2 600 | 0.8131451643 | $544,930 | $544,930 | $443.11 | | |
| STATESCHL | STATE SCHOOL 600 | 1.5158548041 | $544,930 | $544,930 | $826.03 | | |
| STREFUND | STATE REFUND LEVY 603 | 0.0000000000 | $544,930 | $544,930 | $0.00 | | |
| CWWBOND | C OF WW BOND 643 | 0.2760494372 | $544,930 | $544,930 | $150.43 | | |
| CWWGEN | CITY OF WW 631 | 1.6100204973 | $544,930 | $544,930 | $877.35 | | |
| CWWRFD | CITY OF WALLA WALLA REFUND 631 | 0.0000000000 | $544,930 | $544,930 | $0.00 | | |
| | Total Tax Rate: | 8.7973694689 | | | | | |
| | | | | Taxes w/Current Exemptions: | $4,793.95 | | |
| | | | | Taxes w/o Exemptions: | $4,793.95 | | |
Improvement / Building
| Improvement #1: | RESIDENTIAL | State Code: | 11 | 1574.0 sqft | Value: | $424,930 |
| Exterior Wall: | PLYWOOD | Heating/Cooling: | WARM & COOLED AIR | | Number of Bathrooms: | 3 | Number of Bedrooms: | 5 | | Plumbing: | 12 | Roof Covering: | COMP SHINGLE |
|
| | Type | Description | Class CD | Sub Class CD | Year Built | Area |
| | MA | Main Area | 1 | 35 | 1975 | 1574.0 |
| | SI1 | SITE IMPROVEMENT | 1 | 35 | 1975 | 4.5 |
| | BASE | BASEMENT | 1 | 35 | 1975 | 1470.0 |
| | BPF | BASEMENT -PARTITIONED FINISH | 1 | 35 | 1975 | 1470.0 |
| | ATG | Attached Garage | 1 | 35 | 1975 | 484.0 |
| | WOD | Wood Deck | 1 | 35 | 1975 | 406.0 |
| | D2F | Double 2 Story Fireplace | 1 | 35 | 1975 | 1.0 |
| | RPC | OPEN PORCH W/ROOF , CEILED | 1 | 35 | 1975 | 96.0 |
Sketch
Property Image
Land
| 1 | RES 1 | Converted: Residential | 0.2755 | 12000.00 | 0.00 | 0.00 | 1.00 | $120,000 | $0 |
Roll Value History
| 2026 | N/A | N/A | N/A | N/A | N/A |
| 2025 | $488,980 | $150,000 | $0 | $638,980 | $638,980 |
| 2024 | $424,930 | $120,000 | $0 | $544,930 | $544,930 |
| 2023 | $424,930 | $120,000 | $0 | $544,930 | $544,930 |
| 2022 | $424,930 | $85,000 | $0 | $509,930 | $509,930 |
| 2021 | $326,870 | $85,000 | $0 | $411,870 | $411,870 |
| 2020 | $284,230 | $85,000 | $0 | $369,230 | $369,230 |
| 2019 | $284,230 | $85,000 | $0 | $369,230 | $369,230 |
| 2018 | $240,510 | $50,000 | $0 | $290,510 | $290,510 |
| 2017 | $229,060 | $50,000 | $0 | $279,060 | $279,060 |
| 2016 | $229,060 | $50,000 | $0 | $279,060 | $279,060 |
| 2015 | $229,060 | $50,000 | $0 | $279,060 | $279,060 |
| 2014 | $176,200 | $50,000 | $0 | $226,200 | $226,200 |
| 2013 | $176,200 | $50,000 | $0 | $226,200 | $226,200 |
| 2012 | $170,200 | $50,000 | $0 | $0 | $0 |
| 2011 | $170,200 | $50,000 | $0 | $0 | $0 |
| 2010 | $170,200 | $50,000 | $0 | $0 | $0 |
| 2009 | $194,700 | $50,000 | $0 | $0 | $0 |
| 2008 | $194,700 | $50,000 | $0 | $0 | $0 |
| 2007 | $149,600 | $30,000 | $0 | $0 | $0 |
Deed and Sales History
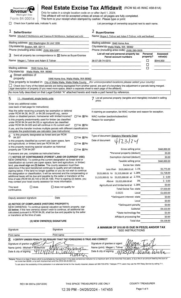
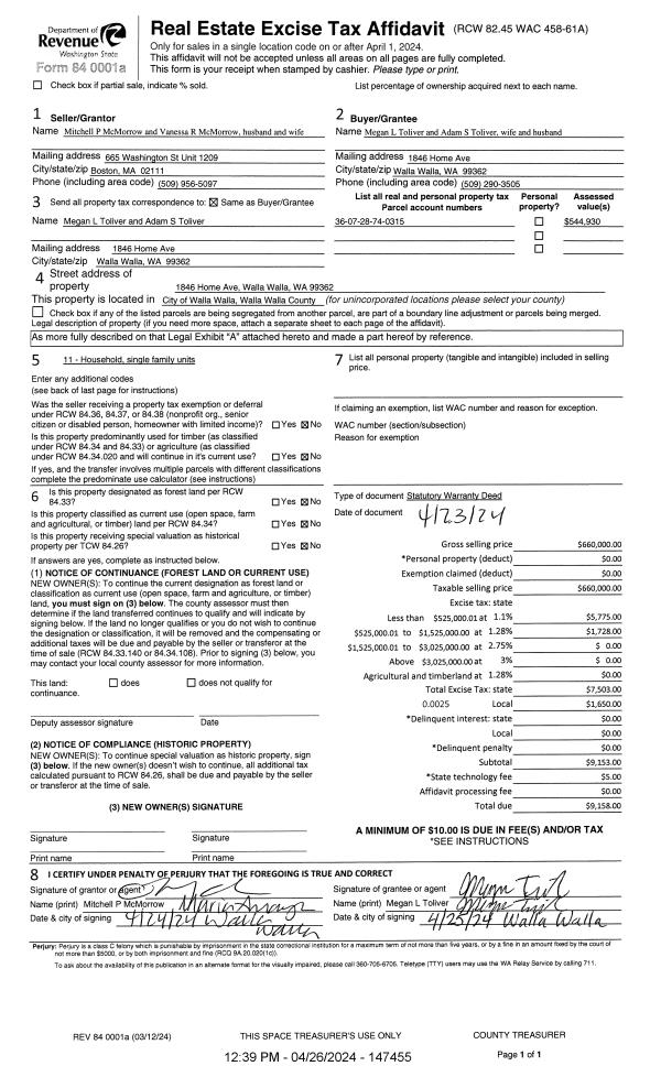
| 1 | 04/26/2024 | SWD | STATUTORY WARRANTY DEED | MCMORROW MITCHELL P & VANESSA R | TOLIVER MEGAN L & ADAM S | | | $660,000.00 | 147455 | 2024-02133 |
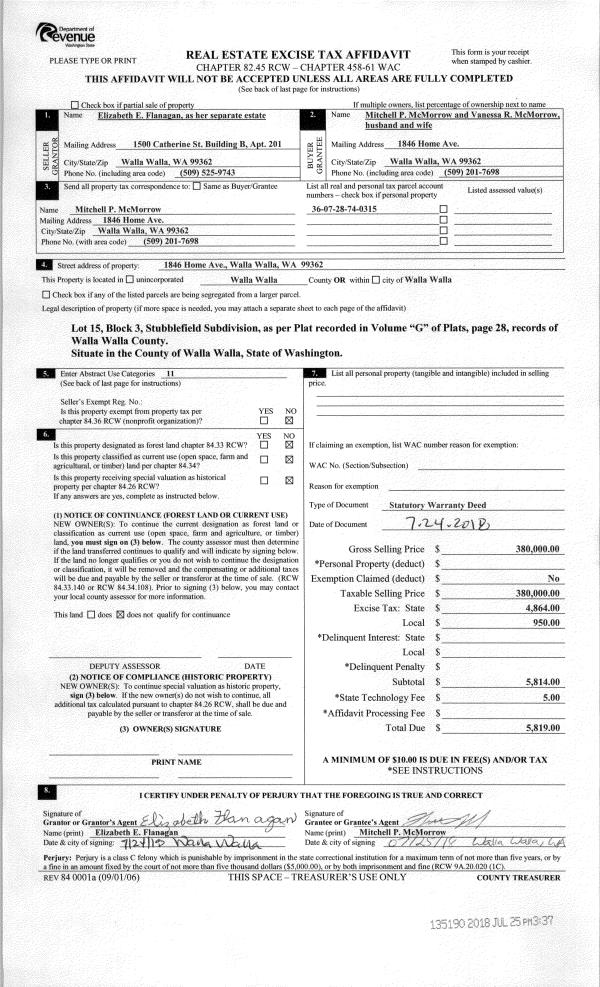
| 2 | 07/25/2018 | SWD | STATUTORY WARRANTY DEED | FLANAGAN ELIZABETH E | MCMORROW MITCHELL P & VANESSA R | | | $380,000.00 | 135190 | 2018-06023 |
| 3 | 09/09/2016 | DEED DEATH | DEED DEATH | FLANAGAN ELIZABETH E | FLANAGAN CARY M | | | | 0 | 2016-07358 |
| 4 | 09/07/2016 | DPR | DEED OF PERSONAL REPRESENTATIVE | FLANAGAN JAMES LEE | FLANAGAN ELIZABETH E | | | $0.00 | 130980 | 2016-07293 |
| 5 | 07/29/1975 | WARRANTY D | WARRANTY DEED | | | | | $39,183.00 | 0 | 3005-46724 |
Payout Agreement
| No payout information available.. |