Property
Account |
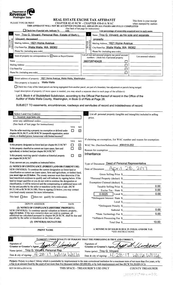
| Property ID: | 18496 | Abbreviated Legal Description: | STUBBLEFIELD SUB DVN LOT 5 BLK 4 |
| Parcel Number: | 360728740428 | Agent Code: | |
| Type: | Real | | |
| Tax Area: | 1 - OL-140-F | Land Use Code | 11 |
| Open Space: | N | DFL | N |
| Historic Property: | N | Remodel Property: | N |
| Multi-Family Redevelopment: | N | | |
| Township: | 7 | Section: | 28 |
| Range: | 36 |
Location |
| Address: | 1821 HOME AVE WA 99362 | Mapsco: | |
| Neighborhood: | G Res | Map ID: | |
| Neighborhood CD: | 614011 |
Owner |
| Name: | VINYARD TROY G | Owner ID: | 60816 |
| Mailing Address: | 8747 BONICA PL LAND O LAKES, FL 34637 | % Ownership: | 100.0000000000% |
| | | Exemptions: | |
Taxes and Assessment Details
Values
| (+) Improvement Homesite Value: | + | $0 | |
| (+) Improvement Non-Homesite Value: | + | $301,450 | |
| (+) Land Homesite Value: | + | $0 | |
| (+) Land Non-Homesite Value: | + | $120,000 | |
| (+) Curr Use (HS): | + | $0 | $0 |
| (+) Curr Use (NHS): | + | $0 | $0 |
| | | -------------------------- | |
| (=) Market Value: | = | $421,450 | |
| (–) Productivity Loss: | – | $0 | |
| | | -------------------------- | |
| (=) Subtotal: | = | $421,450 | |
| (+) Senior Appraised Value: | + | $0 | |
| (+) Non-Senior Appraised Value: | + | $421,450 | |
| | | -------------------------- | |
| (=) Total Appraised Value: | = | $421,450 | |
| (–) Senior Exemption Loss: | – | $0 | |
| (–) Exemption Loss: | – | $0 | |
| | | -------------------------- | |
| (=) Taxable Value: | = | $421,450 | |
Taxing Jurisdiction
| Owner: | VINYARD TROY G | | |
| % Ownership: | 100.0000000000% | | |
| Total Value: | $421,450 | | |
| Tax Area: | 1 - OL-140-F |
| CERFD | CURRENT EXPENSE REFUND 010 | 0.0000000000 | $421,450 | $421,450 | $0.00 | | |
| CURREXP | CURRENT EXPENSE 010 | 1.0175366760 | $421,450 | $421,450 | $428.84 | | |
| HUMNSERV | HUMAN SERVICES 119 | 0.0250000000 | $421,450 | $421,450 | $10.54 | | |
| SLDREL | SOLDIERS RELIEF 121 | 0.0155990005 | $421,450 | $421,450 | $6.57 | | |
| EMERGSER | EMS 147 | 0.3792580840 | $421,450 | $421,450 | $159.84 | | |
| EMSRFD | EMS REFUND 147 | 0.0000000000 | $421,450 | $421,450 | $0.00 | | |
| PORTRFD | PORT REFUND 640 | 0.0000000000 | $421,450 | $421,450 | $0.00 | | |
| PORTWWGEN | PORT OF WW 640 | 0.2460186015 | $421,450 | $421,450 | $103.68 | | |
| SD140BOND | SD #140 BOND 764 | 0.8342371393 | $421,450 | $421,450 | $351.59 | | |
| SD140GEN | SD #140 GENERAL 760 | 2.0646500647 | $421,450 | $421,450 | $870.15 | | |
| ST2 | STATE SCHOOL PART 2 600 | 0.8131451643 | $421,450 | $421,450 | $342.70 | | |
| STATESCHL | STATE SCHOOL 600 | 1.5158548041 | $421,450 | $421,450 | $638.86 | | |
| STREFUND | STATE REFUND LEVY 603 | 0.0000000000 | $421,450 | $421,450 | $0.00 | | |
| CWWBOND | C OF WW BOND 643 | 0.2760494372 | $421,450 | $421,450 | $116.34 | | |
| CWWGEN | CITY OF WW 631 | 1.6100204973 | $421,450 | $421,450 | $678.54 | | |
| CWWRFD | CITY OF WALLA WALLA REFUND 631 | 0.0000000000 | $421,450 | $421,450 | $0.00 | | |
| | Total Tax Rate: | 8.7973694689 | | | | | |
| | | | | Taxes w/Current Exemptions: | $3,707.65 | | |
| | | | | Taxes w/o Exemptions: | $3,707.65 | | |
Improvement / Building
| Improvement #1: | RESIDENTIAL | State Code: | 11 | 1708.0 sqft | Value: | $301,450 |
| Exterior Wall: | VINYL | Heating/Cooling: | WARM & COOLED AIR | | Number of Bathrooms: | 2 | Number of Bedrooms: | 3 | | Plumbing: | 9 | Roof Covering: | COMP SHINGLE |
|
| | Type | Description | Class CD | Sub Class CD | Year Built | Area |
| | MA | Main Area | 1 | 30 | 1975 | 1708.0 |
| | SI1 | SITE IMPROVEMENT | 1 | 30 | 1975 | 2.0 |
| | ATG | Attached Garage | 1 | 30 | 1975 | 576.0 |
| | S1F | Single One Story Fireplace | 1 | 30 | 1975 | 1.0 |
| | RPC | OPEN PORCH W/ROOF , CEILED | 1 | 30 | 1975 | 72.0 |
Sketch
Property Image
Land
| 1 | RES 1 | Converted: Residential | 0.2829 | 12321.00 | 0.00 | 0.00 | 1.00 | $120,000 | $0 |
Roll Value History
| 2026 | N/A | N/A | N/A | N/A | N/A |
| 2025 | $298,600 | $150,000 | $0 | $448,600 | $448,600 |
| 2024 | $301,450 | $120,000 | $0 | $421,450 | $421,450 |
| 2023 | $301,450 | $120,000 | $0 | $421,450 | $421,450 |
| 2022 | $287,090 | $85,000 | $0 | $372,090 | $372,090 |
| 2021 | $212,660 | $85,000 | $0 | $297,660 | $297,660 |
| 2020 | $151,900 | $85,000 | $0 | $236,900 | $236,900 |
| 2019 | $151,900 | $85,000 | $0 | $236,900 | $236,900 |
| 2018 | $177,920 | $50,000 | $0 | $227,920 | $227,920 |
| 2017 | $169,440 | $50,000 | $0 | $219,440 | $219,440 |
| 2016 | $135,560 | $50,000 | $0 | $185,560 | $185,560 |
| 2015 | $129,100 | $50,000 | $0 | $179,100 | $179,100 |
| 2014 | $129,100 | $50,000 | $0 | $179,100 | $179,100 |
| 2013 | $129,100 | $50,000 | $0 | $179,100 | $179,100 |
| 2012 | $135,000 | $50,000 | $0 | $0 | $0 |
| 2011 | $135,000 | $50,000 | $0 | $0 | $0 |
| 2010 | $135,000 | $50,000 | $0 | $0 | $0 |
| 2009 | $155,600 | $50,000 | $0 | $0 | $0 |
| 2008 | $155,600 | $50,000 | $0 | $0 | $0 |
| 2007 | $103,700 | $30,000 | $0 | $0 | $0 |
Deed and Sales History
| 1 | 04/28/2017 | DPR | DEED OF PERSONAL REPRESENTATIVE | VINYARD TROY G & BARBARA L | VINYARD TROY G | | | $0.00 | 132325 | 2017-03375 |
Payout Agreement
| No payout information available.. |