Property
Account |
| Property ID: | 18467 | Abbreviated Legal Description: | DAVISONS HOME BLK 3 |
| Parcel Number: | 360728560300 | Agent Code: | |
| Type: | Real | | |
| Tax Area: | 1 - OL-140-F | Land Use Code | 11 |
| Open Space: | N | DFL | N |
| Historic Property: | N | Remodel Property: | N |
| Multi-Family Redevelopment: | N | | |
| Township: | 7 | Section: | 28 |
| Range: | 36 |
Location |
| Address: | 1120 HOME AVE WA 99362 | Mapsco: | |
| Neighborhood: | G Res | Map ID: | |
| Neighborhood CD: | 614011 |
Owner |
| Name: | TOMKINS RICHARD A & CYNTHIA A | Owner ID: | 68080 |
| Mailing Address: | 548 LONGLEAF DRIVE PETAL, MS 39465 | % Ownership: | 100.0000000000% |
| | | Exemptions: | |
Taxes and Assessment Details
Property Tax Information as of
02/21/2026
Click on "Statement Details" to expand or collapse a tax statement.
* Please enter a valid date ** Please enter a valid date *
Statement Details |
| | TOTAL: | $0.00 | $0.00 | $0.00 | $0.00 | $0.00 | $0.00 |
|
| | $0.00 | $0.00 | $0.00 | $0.00 | $0.00 | $0.00 |
Values
| (+) Improvement Homesite Value: | + | $0 | |
| (+) Improvement Non-Homesite Value: | + | $722,240 | |
| (+) Land Homesite Value: | + | $0 | |
| (+) Land Non-Homesite Value: | + | $144,850 | |
| (+) Curr Use (HS): | + | $0 | $0 |
| (+) Curr Use (NHS): | + | $0 | $0 |
| | | -------------------------- | |
| (=) Market Value: | = | $867,090 | |
| (–) Productivity Loss: | – | $0 | |
| | | -------------------------- | |
| (=) Subtotal: | = | $867,090 | |
| (+) Senior Appraised Value: | + | $0 | |
| (+) Non-Senior Appraised Value: | + | $867,090 | |
| | | -------------------------- | |
| (=) Total Appraised Value: | = | $867,090 | |
| (–) Senior Exemption Loss: | – | $0 | |
| (–) Exemption Loss: | – | $0 | |
| | | -------------------------- | |
| (=) Taxable Value: | = | $867,090 | |
Taxing Jurisdiction
| Owner: | TOMKINS RICHARD A & CYNTHIA A | | |
| % Ownership: | 100.0000000000% | | |
| Total Value: | $867,090 | | |
| Tax Area: | 1 - OL-140-F |
| CERFD | CURRENT EXPENSE REFUND 010 | 0.0000000000 | $867,090 | $867,090 | $0.00 | | |
| CURREXP | CURRENT EXPENSE 010 | 1.0175366760 | $867,090 | $867,090 | $882.30 | | |
| HUMNSERV | HUMAN SERVICES 119 | 0.0250000000 | $867,090 | $867,090 | $21.68 | | |
| SLDREL | SOLDIERS RELIEF 121 | 0.0155990005 | $867,090 | $867,090 | $13.53 | | |
| EMERGSER | EMS 147 | 0.3792580840 | $867,090 | $867,090 | $328.85 | | |
| EMSRFD | EMS REFUND 147 | 0.0000000000 | $867,090 | $867,090 | $0.00 | | |
| PORTRFD | PORT REFUND 640 | 0.0000000000 | $867,090 | $867,090 | $0.00 | | |
| PORTWWGEN | PORT OF WW 640 | 0.2460186015 | $867,090 | $867,090 | $213.32 | | |
| SD140BOND | SD #140 BOND 764 | 0.8342371393 | $867,090 | $867,090 | $723.36 | | |
| SD140GEN | SD #140 GENERAL 760 | 2.0646500647 | $867,090 | $867,090 | $1,790.24 | | |
| ST2 | STATE SCHOOL PART 2 600 | 0.8131451643 | $867,090 | $867,090 | $705.07 | | |
| STATESCHL | STATE SCHOOL 600 | 1.5158548041 | $867,090 | $867,090 | $1,314.38 | | |
| STREFUND | STATE REFUND LEVY 603 | 0.0000000000 | $867,090 | $867,090 | $0.00 | | |
| CWWBOND | C OF WW BOND 643 | 0.2760494372 | $867,090 | $867,090 | $239.36 | | |
| CWWGEN | CITY OF WW 631 | 1.6100204973 | $867,090 | $867,090 | $1,396.03 | | |
| CWWRFD | CITY OF WALLA WALLA REFUND 631 | 0.0000000000 | $867,090 | $867,090 | $0.00 | | |
| | Total Tax Rate: | 8.7973694689 | | | | | |
| | | | | Taxes w/Current Exemptions: | $7,628.12 | | |
| | | | | Taxes w/o Exemptions: | $7,628.12 | | |
Improvement / Building
| Improvement #1: | RESIDENTIAL | State Code: | 11 | 2357.0 sqft | Value: | $722,240 |
| Exterior Wall: | SIDING | Heating/Cooling: | WARM & COOLED AIR | | Number of Bathrooms: | 3.5 | Number of Bedrooms: | 4 | | Plumbing: | 15 | Roof Covering: | COMP SHINGLE |
|
| | Type | Description | Class CD | Sub Class CD | Year Built | Area |
| | MA | Main Area | 2 | 55 | 1937 | 2357.0 |
| | UPFL | Upper Floor (included in main area) | 2 | 55 | 1937 | 1077.0 |
| | SI1 | SITE IMPROVEMENT | 2 | 55 | 1937 | 6.5 |
| | BASE | BASEMENT | 2 | 55 | 1937 | 1075.0 |
| | BPF | BASEMENT -PARTITIONED FINISH | 2 | 55 | 1937 | 1075.0 |
| | S2F | Single 2S Fireplace | 2 | 55 | 1937 | 1.0 |
| | RPC | OPEN PORCH W/ROOF , CEILED | 2 | 55 | 1937 | 45.0 |
| | PRC | PORCH W STEPS, ROOF,CEILED | 2 | 55 | 1937 | 133.0 |
| | RPC | OPEN PORCH W/ROOF , CEILED | 2 | 55 | 1937 | 176.0 |
| | ATG | Attached Garage | 2 | 55 | 1937 | 400.0 |
| | TOOL | TOOL SHED | 2 | 55 | 1937 | 192.0 |
| | CAB | REC CABIN | 2 | 55 | 1937 | 150.0 |
Sketch
Property Image
Land
| 1 | RES 1 | Converted: Residential | 0.8774 | 38220.00 | 0.00 | 0.00 | 1.00 | $144,850 | $0 |
Roll Value History
| 2026 | N/A | N/A | N/A | N/A | N/A |
| 2025 | $701,600 | $165,490 | $0 | $867,090 | $867,090 |
| 2024 | $722,240 | $144,850 | $0 | $867,090 | $867,090 |
| 2023 | $722,240 | $144,850 | $0 | $867,090 | $867,090 |
| 2022 | $628,040 | $116,570 | $0 | $744,610 | $744,610 |
| 2021 | $628,040 | $116,570 | $0 | $744,610 | $744,610 |
| 2020 | $546,120 | $116,570 | $0 | $662,690 | $662,690 |
| 2019 | $546,120 | $116,570 | $0 | $662,690 | $662,690 |
| 2018 | $553,110 | $71,100 | $0 | $624,210 | $624,210 |
| 2017 | $553,110 | $71,100 | $0 | $624,210 | $624,210 |
| 2016 | $537,000 | $71,100 | $0 | $608,100 | $608,100 |
| 2015 | $537,000 | $71,100 | $0 | $608,100 | $608,100 |
| 2014 | $537,000 | $71,100 | $0 | $608,100 | $608,100 |
| 2013 | $537,000 | $71,100 | $0 | $608,100 | $608,100 |
| 2012 | $533,200 | $71,100 | $0 | $0 | $0 |
| 2011 | $533,200 | $71,100 | $0 | $0 | $0 |
| 2010 | $533,200 | $71,100 | $0 | $0 | $0 |
| 2009 | $568,300 | $71,100 | $0 | $0 | $0 |
| 2008 | $568,300 | $71,100 | $0 | $0 | $0 |
| 2007 | $252,000 | $44,000 | $0 | $0 | $0 |
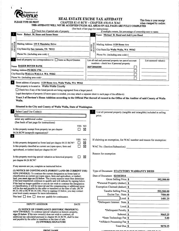
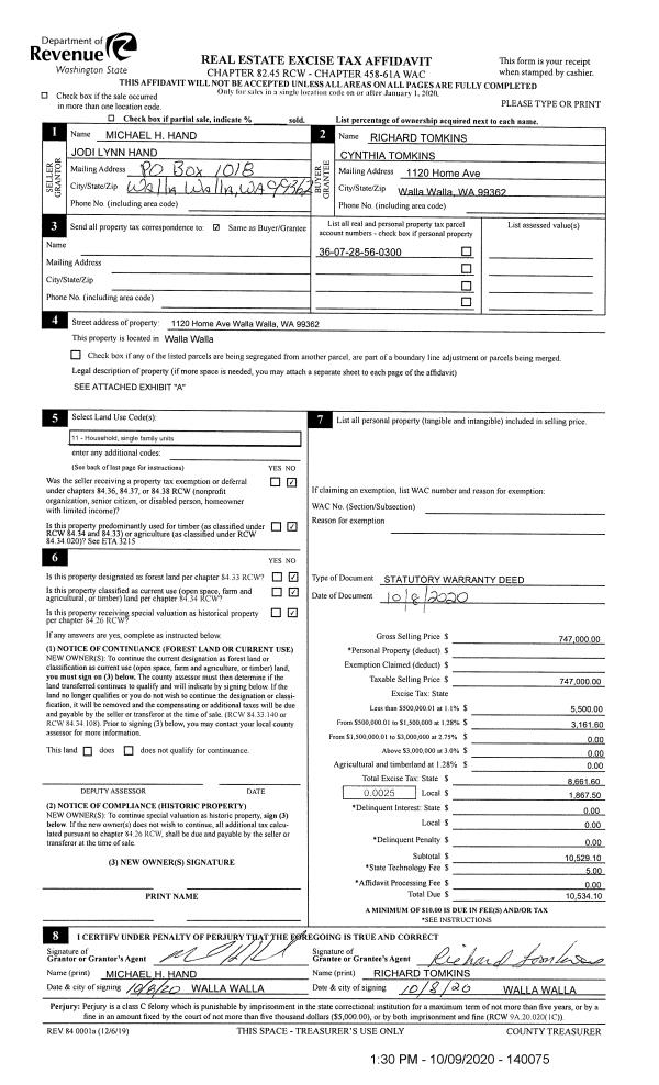
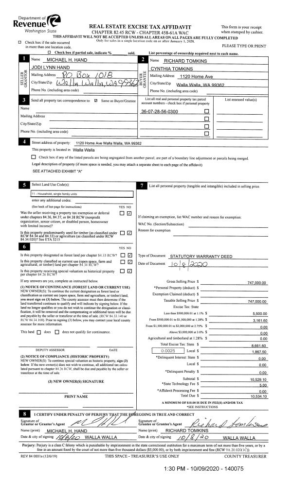
Deed and Sales History
| 1 | 10/09/2020 | SWD | STATUTORY WARRANTY DEED | HAND MICHAEL H & JODI LYNN | TOMKINS RICHARD A & CYNTHIA A | | | $747,000.00 | 140075 | 2020-10464 |
| 2 | 03/28/2014 | SWD | STATUTORY WARRANTY DEED | STONE ROBERT M & SUSAN | HAND MICHAEL H & JODI LYNN | | | $592,500.00 | 125636 | 2014-02097 |
| 3 | 03/02/2006 | WARRANTY D | WARRANTY DEED | BODE, ROBERT H | STONE, ROBERT M & SUSAN | | | $650,000.00 | 109767 | 2006-02398 |
| 4 | 12/19/2002 | WARRANTY D | WARRANTY DEED | SMITH, GREGORY U & C ELIZABETH | BODE, ROBERT | | | $355,000.00 | 101041 | 2002-14548 |
| 5 | 08/15/1995 | WARRANTY D | WARRANTY DEED | | | | | $250,000.00 | 84559 | 2329-507705 |
Payout Agreement
| No payout information available.. |