Property
Account |
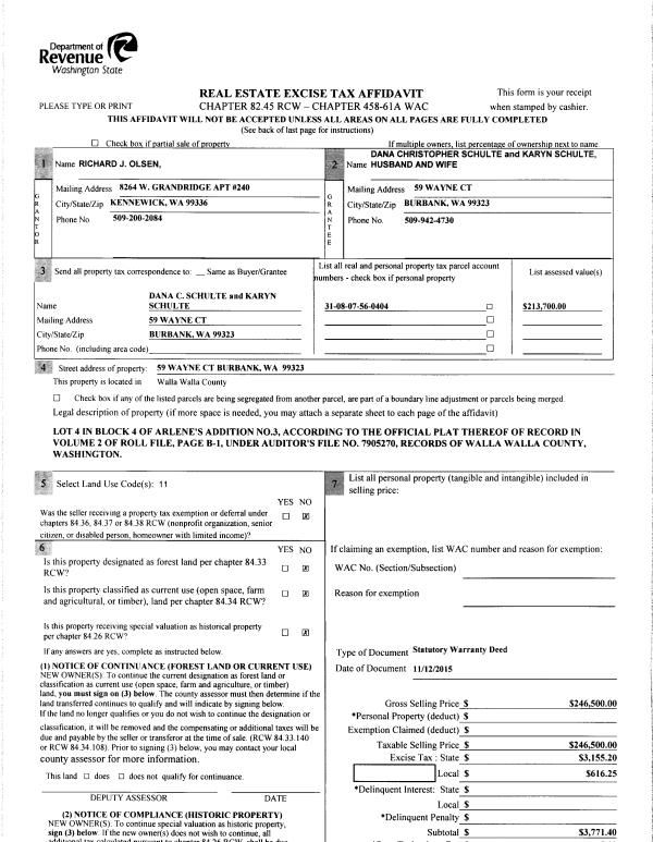
| Property ID: | 1846 | Abbreviated Legal Description: | ARLENES #3 LOT 4 BLK 4 |
| Parcel Number: | 310807560404 | Agent Code: | |
| Type: | Real | | |
| Tax Area: | 328 - 400-M-5 | Land Use Code | 11 |
| Open Space: | N | DFL | N |
| Historic Property: | N | Remodel Property: | N |
| Multi-Family Redevelopment: | N | | |
| Township: | 8 | Section: | 7 |
| Range: | 31 |
Location |
| Address: | 59 WAYNE CT WA 99323 | Mapsco: | |
| Neighborhood: | G BURBANK SFR | Map ID: | |
| Neighborhood CD: | 214711 |
Owner |
| Name: | SCHULTE DANA CHRISTOPHER & KARYN | Owner ID: | 57780 |
| Mailing Address: | 59 WAYNE CT BURBANK, WA 99323 | % Ownership: | 100.0000000000% |
| | | Exemptions: | |
Taxes and Assessment Details
Values
| (+) Improvement Homesite Value: | + | $0 | |
| (+) Improvement Non-Homesite Value: | + | $346,260 | |
| (+) Land Homesite Value: | + | $0 | |
| (+) Land Non-Homesite Value: | + | $75,000 | |
| (+) Curr Use (HS): | + | $0 | $0 |
| (+) Curr Use (NHS): | + | $0 | $0 |
| | | -------------------------- | |
| (=) Market Value: | = | $421,260 | |
| (–) Productivity Loss: | – | $0 | |
| | | -------------------------- | |
| (=) Subtotal: | = | $421,260 | |
| (+) Senior Appraised Value: | + | $0 | |
| (+) Non-Senior Appraised Value: | + | $421,260 | |
| | | -------------------------- | |
| (=) Total Appraised Value: | = | $421,260 | |
| (–) Senior Exemption Loss: | – | $0 | |
| (–) Exemption Loss: | – | $0 | |
| | | -------------------------- | |
| (=) Taxable Value: | = | $421,260 | |
Taxing Jurisdiction
| Owner: | SCHULTE DANA CHRISTOPHER & KARYN | | |
| % Ownership: | 100.0000000000% | | |
| Total Value: | $421,260 | | |
| Tax Area: | 328 - 400-M-5 |
| CERFD | CURRENT EXPENSE REFUND 010 | 0.0000000000 | $421,260 | $421,260 | $0.00 | | |
| CURREXP | CURRENT EXPENSE 010 | 1.0175366760 | $421,260 | $421,260 | $428.65 | | |
| HUMNSERV | HUMAN SERVICES 119 | 0.0250000000 | $421,260 | $421,260 | $10.53 | | |
| SLDREL | SOLDIERS RELIEF 121 | 0.0155990005 | $421,260 | $421,260 | $6.57 | | |
| EMERGSER | EMS 147 | 0.3792580840 | $421,260 | $421,260 | $159.77 | | |
| EMSRFD | EMS REFUND 147 | 0.0000000000 | $421,260 | $421,260 | $0.00 | | |
| FD5EXP | FD #5 EXPENSE 689 | 1.2045331840 | $421,260 | $421,260 | $507.42 | | |
| RLBRFD | RURAL LIBRARY REFUND 623 | 0.0000000000 | $421,260 | $421,260 | $0.00 | | |
| RURALLIB | RURAL LIBRARY 623 | 0.3710609029 | $421,260 | $421,260 | $156.31 | | |
| PORTRFD | PORT REFUND 640 | 0.0000000000 | $421,260 | $421,260 | $0.00 | | |
| PORTWWGEN | PORT OF WW 640 | 0.2460186015 | $421,260 | $421,260 | $103.64 | | |
| SD400BOND | SD #400 BOND 793 | 0.0000000000 | $421,260 | $421,260 | $0.00 | | |
| SD400CAP | SD #400 CP 792 | 0.3443722657 | $421,260 | $421,260 | $145.07 | | |
| SD400GEN | SD #400 GENERAL 790 | 1.9278469916 | $421,260 | $421,260 | $812.12 | | |
| ST2 | STATE SCHOOL PART 2 600 | 0.8131451643 | $421,260 | $421,260 | $342.55 | | |
| STATESCHL | STATE SCHOOL 600 | 1.5158548041 | $421,260 | $421,260 | $638.57 | | |
| STREFUND | STATE REFUND LEVY 603 | 0.0000000000 | $421,260 | $421,260 | $0.00 | | |
| COROAD | COUNTY ROAD 115 | 1.6549953990 | $421,260 | $421,260 | $697.18 | | |
| CRPRD | COUNTY ROAD REFUND 115 | 0.0000000000 | $421,260 | $421,260 | $0.00 | | |
| | Total Tax Rate: | 9.5152210736 | | | | | |
| | | | | Taxes w/Current Exemptions: | $4,008.38 | | |
| | | | | Taxes w/o Exemptions: | $4,008.38 | | |
Improvement / Building
| Improvement #1: | RESIDENTIAL | State Code: | 11 | 1669.0 sqft | Value: | $346,260 |
| Exterior Wall: | VINYL | Heating/Cooling: | WARM & COOLED AIR | | Number of Bathrooms: | 3 | Number of Bedrooms: | 3 | | Plumbing: | 11 | Roof Covering: | COMP SHINGLE |
|
| | Type | Description | Class CD | Sub Class CD | Year Built | Area |
| | MA | Main Area | 1 | 35 | 2001 | 1669.0 |
| | SI1 | SITE IMPROVEMENT | 1 | 35 | 2001 | 2.0 |
| | ATG | Attached Garage | 1 | 35 | 2001 | 768.0 |
| | RPO | OPEN PORCH W/ROOF | 1 | 35 | 2001 | 15.0 |
| | POL3 | POLE BUILDING-CON,ELEC,INSU | 1 | 35 | 2001 | 720.0 |
| | CPC | COVERED CARPORT/PATIO | 1 | 35 | 2001 | 120.0 |
| | GFP | GAS FIREPLACE | 1 | 35 | 2017 | 1.0 |
Sketch
Property Image
Land
| 1 | RES 1 | Converted: Residential | 0.4959 | 21600.00 | 0.00 | 0.00 | 1.00 | $75,000 | $0 |
Roll Value History
| 2026 | N/A | N/A | N/A | N/A | N/A |
| 2025 | $363,580 | $75,000 | $0 | $438,580 | $438,580 |
| 2024 | $346,260 | $75,000 | $0 | $421,260 | $421,260 |
| 2023 | $346,260 | $75,000 | $0 | $421,260 | $421,260 |
| 2022 | $288,550 | $75,000 | $0 | $363,550 | $363,550 |
| 2021 | $262,320 | $75,000 | $0 | $337,320 | $337,320 |
| 2020 | $216,720 | $35,000 | $0 | $251,720 | $251,720 |
| 2019 | $216,720 | $35,000 | $0 | $251,720 | $251,720 |
| 2018 | $206,400 | $35,000 | $0 | $241,400 | $241,400 |
| 2017 | $206,400 | $35,000 | $0 | $241,400 | $241,400 |
| 2016 | $196,570 | $35,000 | $0 | $231,570 | $231,570 |
| 2015 | $196,570 | $35,000 | $0 | $231,570 | $231,570 |
| 2014 | $178,700 | $35,000 | $0 | $213,700 | $213,700 |
| 2013 | $178,700 | $35,000 | $0 | $213,700 | $213,700 |
| 2012 | $150,800 | $35,000 | $0 | $0 | $0 |
| 2011 | $150,800 | $35,000 | $0 | $0 | $0 |
| 2010 | $150,800 | $35,000 | $0 | $0 | $0 |
| 2009 | $176,600 | $25,000 | $0 | $0 | $0 |
| 2008 | $143,000 | $25,000 | $0 | $0 | $0 |
| 2007 | $143,000 | $25,000 | $0 | $0 | $0 |
Deed and Sales History
| 1 | 11/13/2015 | SWD | STATUTORY WARRANTY DEED | OLSEN RICHARD J | SCHULTE DANA CHRISTOPHER & KARYN | | | $246,500.00 | 129191 | 2015-09890 |
| 2 | 08/03/2015 | QCD | QUIT CLAIM DEED | OLSEN RICHARD J & JOYCE E | OLSEN RICHARD J | | | $0.00 | 128569 | 2015-06894 |
| 3 | 03/20/1991 | WARRANTY D | WARRANTY DEED | | | | | $6,500.00 | 0 | 1879-101631 |
Payout Agreement
| No payout information available.. |