Property
Account |
| Property ID: | 18439 | Abbreviated Legal Description: | TRIPLE CREEK MEADOWS PHASE 2 LOT 3 BLOCK 4 |
| Parcel Number: | 360733980403 | Agent Code: | |
| Type: | Real | | |
| Tax Area: | 5 - OL-140 | Land Use Code | 11 |
| Open Space: | N | DFL | N |
| Historic Property: | N | Remodel Property: | N |
| Multi-Family Redevelopment: | N | | |
| Township: | 7 | Section: | 33 |
| Range: | 36 |
Location |
| Address: | 268 WHISTLING DUCK RD WA 99362 | Mapsco: | |
| Neighborhood: | A Res | Map ID: | |
| Neighborhood CD: | 613011 |
Owner |
| Name: | HUMMEL MARGARET D | Owner ID: | 34184 |
| Mailing Address: | 268 WHISTLING DUCK RD WALLA WALLA, WA 99362 | % Ownership: | 100.0000000000% |
| | | Exemptions: | |
Taxes and Assessment Details
Property Tax Information as of
02/21/2026
Click on "Statement Details" to expand or collapse a tax statement.
* Please enter a valid date ** Please enter a valid date *
Statement Details |
| | TOTAL: | $0.00 | $0.00 | $0.00 | $0.00 | $0.00 | $0.00 |
|
| | $0.00 | $0.00 | $0.00 | $0.00 | $0.00 | $0.00 |
Values
| (+) Improvement Homesite Value: | + | $0 | |
| (+) Improvement Non-Homesite Value: | + | $429,960 | |
| (+) Land Homesite Value: | + | $0 | |
| (+) Land Non-Homesite Value: | + | $125,000 | |
| (+) Curr Use (HS): | + | $0 | $0 |
| (+) Curr Use (NHS): | + | $0 | $0 |
| | | -------------------------- | |
| (=) Market Value: | = | $554,960 | |
| (–) Productivity Loss: | – | $0 | |
| | | -------------------------- | |
| (=) Subtotal: | = | $554,960 | |
| (+) Senior Appraised Value: | + | $0 | |
| (+) Non-Senior Appraised Value: | + | $554,960 | |
| | | -------------------------- | |
| (=) Total Appraised Value: | = | $554,960 | |
| (–) Senior Exemption Loss: | – | $0 | |
| (–) Exemption Loss: | – | $0 | |
| | | -------------------------- | |
| (=) Taxable Value: | = | $554,960 | |
Taxing Jurisdiction
| Owner: | HUMMEL MARGARET D | | |
| % Ownership: | 100.0000000000% | | |
| Total Value: | $554,960 | | |
| Tax Area: | 5 - OL-140 |
| CERFD | CURRENT EXPENSE REFUND 010 | 0.0000000000 | $554,960 | $554,960 | $0.00 | | |
| CURREXP | CURRENT EXPENSE 010 | 0.9851088983 | $554,960 | $554,960 | $546.70 | | |
| HUMNSERV | HUMAN SERVICES 119 | 0.0250000000 | $554,960 | $554,960 | $13.87 | | |
| SLDREL | SOLDIERS RELIEF 121 | 0.0155990000 | $554,960 | $554,960 | $8.66 | | |
| EMERGSER | EMS 147 | 0.3676811629 | $554,960 | $554,960 | $204.05 | | |
| EMSRFD | EMS REFUND 147 | 0.0000000000 | $554,960 | $554,960 | $0.00 | | |
| PORTRFD | PORT REFUND 640 | 0.0000000000 | $554,960 | $554,960 | $0.00 | | |
| PORTWWGEN | PORT OF WW 640 | 0.2344301070 | $554,960 | $554,960 | $130.10 | | |
| SD140BOND | SD #140 BOND 764 | 0.8032434458 | $554,960 | $554,960 | $445.77 | | |
| SD140CAP | SD #140 CAP 762 | 0.3840034221 | $554,960 | $554,960 | $213.11 | | |
| SD140GEN | SD #140 GENERAL 760 | 2.4999999996 | $554,960 | $554,960 | $1,387.40 | | |
| ST2 | STATE SCHOOL PART 2 600 | 0.8853714103 | $554,960 | $554,960 | $491.35 | | |
| STATESCHL | STATE SCHOOL 600 | 1.6424571473 | $554,960 | $554,960 | $911.50 | | |
| STREFUND | STATE REFUND LEVY 603 | 0.0000000000 | $554,960 | $554,960 | $0.00 | | |
| CWWBOND | C OF WW BOND 643 | 0.2642134255 | $554,960 | $554,960 | $146.63 | | |
| CWWGEN | CITY OF WW 631 | 1.6110494978 | $554,960 | $554,960 | $894.07 | | |
| CWWRFD | CITY OF WALLA WALLA REFUND 631 | 0.0000000000 | $554,960 | $554,960 | $0.00 | | |
| | Total Tax Rate: | 9.7181575166 | | | | | |
| | | | | Taxes w/Current Exemptions: | $5,393.21 | | |
| | | | | Taxes w/o Exemptions: | $5,393.21 | | |
Improvement / Building
| Improvement #1: | RESIDENTIAL | State Code: | 11 | 2037.0 sqft | Value: | $429,960 |
| Exterior Wall: | SIDING | Heating/Cooling: | WARM & COOLED AIR | | Number of Bathrooms: | 2 | Number of Bedrooms: | 3 | | Plumbing: | 11 | Roof Covering: | COMP SHINGLE |
|
| | Type | Description | Class CD | Sub Class CD | Year Built | Area |
| | MA | Main Area | 1 | 35 | 2015 | 2037.0 |
| | ATG | Attached Garage | 1 | 35 | 2015 | 804.0 |
| | RCD | WOOD DECK W/ROOF, CEILED | 1 | 35 | 2015 | 128.0 |
| | RPC | OPEN PORCH W/ROOF , CEILED | 1 | 35 | 2015 | 82.0 |
| | SI1 | SITE IMPROVEMENT | 1 | 35 | 2015 | 3.5 |
Sketch
Property Image
Land
| 1 | RES 1 | Converted: Residential | 0.2310 | 10064.00 | 0.00 | 0.00 | 1.00 | $125,000 | $0 |
Roll Value History
| 2026 | N/A | N/A | N/A | N/A | N/A |
| 2025 | $429,960 | $125,000 | $0 | $554,960 | $554,960 |
| 2024 | $425,250 | $100,000 | $0 | $525,250 | $525,250 |
| 2023 | $425,250 | $100,000 | $0 | $525,250 | $525,250 |
| 2022 | $369,780 | $85,000 | $0 | $454,780 | $454,780 |
| 2021 | $295,830 | $85,000 | $0 | $380,830 | $380,830 |
| 2020 | $219,130 | $85,000 | $0 | $304,130 | $304,130 |
| 2019 | $219,130 | $85,000 | $0 | $304,130 | $304,130 |
| 2018 | $239,500 | $50,000 | $0 | $289,500 | $289,500 |
| 2017 | $239,500 | $50,000 | $0 | $289,500 | $289,500 |
| 2016 | $239,500 | $50,000 | $0 | $289,500 | $289,500 |
| 2015 | $0 | $50,000 | $0 | $50,000 | $50,000 |
| 2014 | $0 | $50,000 | $0 | $50,000 | $50,000 |
| 2013 | $0 | $50,000 | $0 | $50,000 | $50,000 |
| 2012 | $0 | $55,000 | $0 | $0 | $0 |
| 2011 | $0 | $55,000 | $0 | $0 | $0 |
| 2010 | $0 | $55,000 | $0 | $0 | $0 |
| 2009 | $0 | $65,000 | $0 | $0 | $0 |
| 2008 | $0 | $65,000 | $0 | $0 | $0 |
| 2007 | $0 | $50,000 | $0 | $0 | $0 |
Deed and Sales History
| 1 | 10/29/2025 | SWD | STATUTORY WARRANTY DEED | HUMMEL MARGARET D | PETERSON VINCENT L & LORETTA W | | | $475,000.00 | 150270 | 2025-06687 |
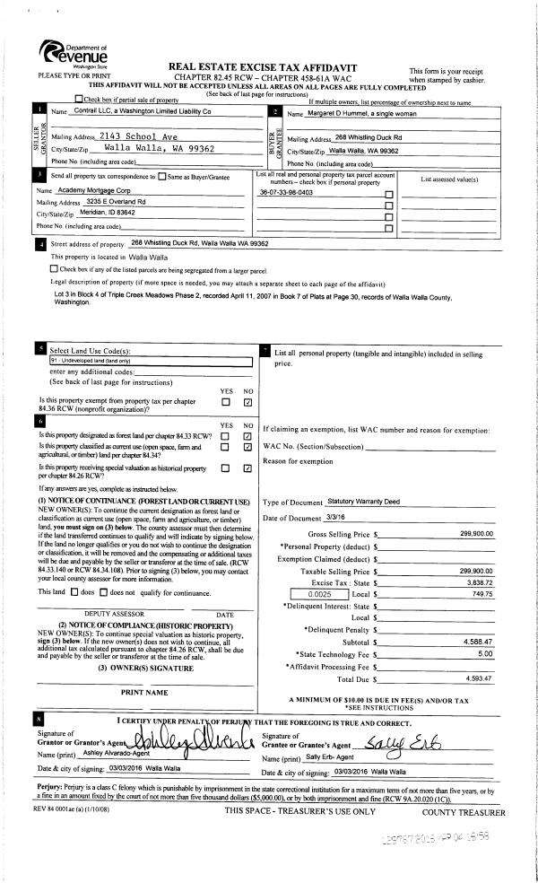
| 2 | 03/04/2016 | SWD | STATUTORY WARRANTY DEED | CONTRAIL LLC | HUMMEL MARGARET D | | | $299,900.00 | 129787 | 2016-01685 |
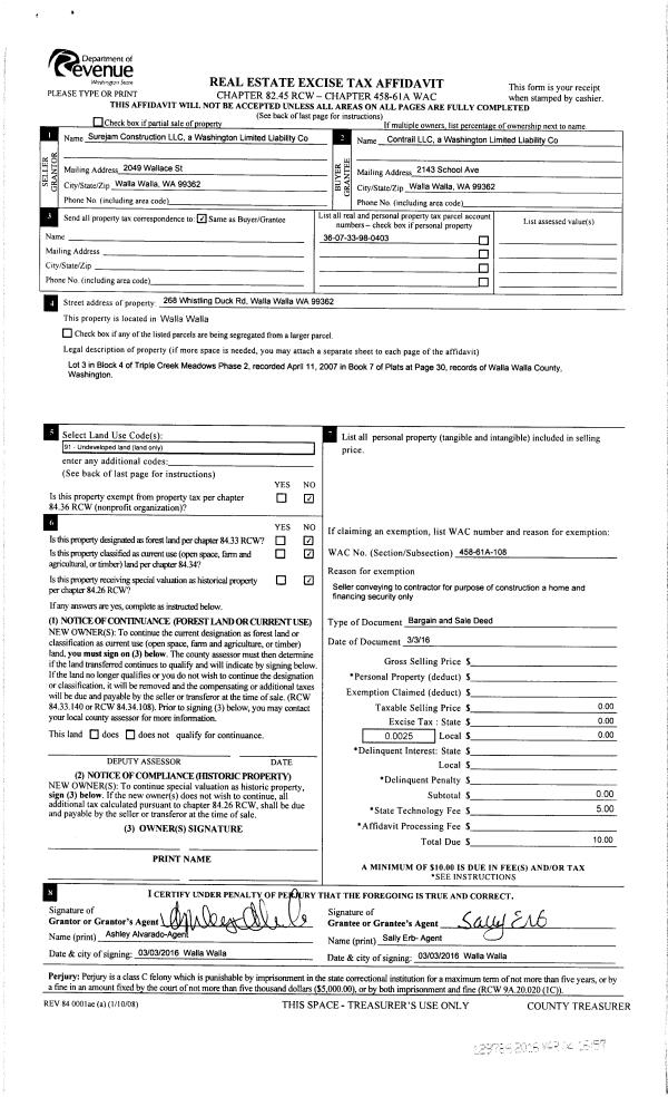
| 3 | 03/04/2016 | BARGAIN & | BARGAIN & SALE DEED | SUREJAM CONSTRUCTION LLC | CONTRAIL LLC | | | | 129786 | 2016-01684 |
| 4 | 04/16/2015 | BARGAIN & | BARGAIN & SALE DEED | CONTRAIL LLC | SUREJAM CONSTRUCTION LLC | | | $0.00 | 127866 | 2015-03549 |
| 5 | 10/17/2012 | WARRANTY D | WARRANTY DEED | MINNICK-HAYNER PS | CONTRAIL LLC | | | $71,546.00 | 122810 | 2012-09124 |
|   | |
Payout Agreement
| No payout information available.. |