Property
Account |
| Property ID: | 18431 | Abbreviated Legal Description: | MELODY PARK TERRACE TAX 40 LOT 84 |
| Parcel Number: | 360716540084 | Agent Code: | |
| Type: | Real | | |
| Tax Area: | 5 - OL-140 | Land Use Code | 11 |
| Open Space: | N | DFL | N |
| Historic Property: | N | Remodel Property: | N |
| Multi-Family Redevelopment: | N | | |
| Township: | 7 | Section: | 16 |
| Range: | 36 |
Location |
| Address: | 934 BLUE MOUNTAIN DR WA 99362 | Mapsco: | |
| Neighborhood: | A-SFR | Map ID: | |
| Neighborhood CD: | 313011 |
Owner |
| Name: | DOSTAL NATHANIEL J & GRACE A PALMER | Owner ID: | 68199 |
| Mailing Address: | 934 BLUE MOUNTAIN DR WALLA WALLA, WA 99362 | % Ownership: | 100.0000000000% |
| | | Exemptions: | |
Taxes and Assessment Details
Values
| (+) Improvement Homesite Value: | + | $0 | |
| (+) Improvement Non-Homesite Value: | + | $276,730 | |
| (+) Land Homesite Value: | + | $0 | |
| (+) Land Non-Homesite Value: | + | $90,000 | |
| (+) Curr Use (HS): | + | $0 | $0 |
| (+) Curr Use (NHS): | + | $0 | $0 |
| | | -------------------------- | |
| (=) Market Value: | = | $366,730 | |
| (–) Productivity Loss: | – | $0 | |
| | | -------------------------- | |
| (=) Subtotal: | = | $366,730 | |
| (+) Senior Appraised Value: | + | $0 | |
| (+) Non-Senior Appraised Value: | + | $366,730 | |
| | | -------------------------- | |
| (=) Total Appraised Value: | = | $366,730 | |
| (–) Senior Exemption Loss: | – | $0 | |
| (–) Exemption Loss: | – | $0 | |
| | | -------------------------- | |
| (=) Taxable Value: | = | $366,730 | |
Taxing Jurisdiction
| Owner: | DOSTAL NATHANIEL J & GRACE A PALMER | | |
| % Ownership: | 100.0000000000% | | |
| Total Value: | $366,730 | | |
| Tax Area: | 5 - OL-140 |
| CERFD | CURRENT EXPENSE REFUND 010 | 0.0000000000 | $366,730 | $366,730 | $0.00 | | |
| CURREXP | CURRENT EXPENSE 010 | 1.0175366760 | $366,730 | $366,730 | $373.16 | | |
| HUMNSERV | HUMAN SERVICES 119 | 0.0250000000 | $366,730 | $366,730 | $9.17 | | |
| SLDREL | SOLDIERS RELIEF 121 | 0.0155990005 | $366,730 | $366,730 | $5.72 | | |
| EMERGSER | EMS 147 | 0.3792580840 | $366,730 | $366,730 | $139.09 | | |
| EMSRFD | EMS REFUND 147 | 0.0000000000 | $366,730 | $366,730 | $0.00 | | |
| PORTRFD | PORT REFUND 640 | 0.0000000000 | $366,730 | $366,730 | $0.00 | | |
| PORTWWGEN | PORT OF WW 640 | 0.2460186015 | $366,730 | $366,730 | $90.22 | | |
| SD140BOND | SD #140 BOND 764 | 0.8342371393 | $366,730 | $366,730 | $305.94 | | |
| SD140GEN | SD #140 GENERAL 760 | 2.0646500647 | $366,730 | $366,730 | $757.17 | | |
| ST2 | STATE SCHOOL PART 2 600 | 0.8131451643 | $366,730 | $366,730 | $298.20 | | |
| STATESCHL | STATE SCHOOL 600 | 1.5158548041 | $366,730 | $366,730 | $555.91 | | |
| STREFUND | STATE REFUND LEVY 603 | 0.0000000000 | $366,730 | $366,730 | $0.00 | | |
| CWWBOND | C OF WW BOND 643 | 0.2760494372 | $366,730 | $366,730 | $101.24 | | |
| CWWGEN | CITY OF WW 631 | 1.6100204973 | $366,730 | $366,730 | $590.44 | | |
| CWWRFD | CITY OF WALLA WALLA REFUND 631 | 0.0000000000 | $366,730 | $366,730 | $0.00 | | |
| | Total Tax Rate: | 8.7973694689 | | | | | |
| | | | | Taxes w/Current Exemptions: | $3,226.26 | | |
| | | | | Taxes w/o Exemptions: | $3,226.26 | | |
Improvement / Building
| Improvement #1: | RESIDENTIAL | State Code: | 11 | 1160.0 sqft | Value: | $276,730 |
| Exterior Wall: | PLYWOOD | Heating/Cooling: | WARM & COOLED AIR | | Number of Bathrooms: | 2 | Number of Bedrooms: | 5 | | Plumbing: | 9 | Roof Covering: | COMP SHINGLE |
|
| | Type | Description | Class CD | Sub Class CD | Year Built | Area |
| | MA | Main Area | 1 | 30 | 1968 | 1160.0 |
| | SI1 | SITE IMPROVEMENT | 1 | 30 | 1968 | 3.0 |
| | BASE | BASEMENT | 1 | 30 | 1968 | 1160.0 |
| | BPF | BASEMENT -PARTITIONED FINISH | 1 | 30 | 1968 | 1160.0 |
| | ATG | Attached Garage | 1 | 30 | 1968 | 400.0 |
| | GFP | GAS FIREPLACE | 1 | 30 | 1968 | 1.0 |
| | RPC | OPEN PORCH W/ROOF , CEILED | 1 | 30 | 1968 | 84.0 |
| | CPC | COVERED CARPORT/PATIO | 1 | 30 | 1968 | 288.0 |
Sketch
Property Image
Land
| 1 | RES 1 | Converted: Residential | 0.2696 | 11745.00 | 0.00 | 0.00 | 1.00 | $90,000 | $0 |
Roll Value History
| 2026 | N/A | N/A | N/A | N/A | N/A |
| 2025 | $276,730 | $90,000 | $0 | $366,730 | $366,730 |
| 2024 | $276,730 | $90,000 | $0 | $366,730 | $366,730 |
| 2023 | $276,730 | $90,000 | $0 | $366,730 | $366,730 |
| 2022 | $263,550 | $90,000 | $0 | $353,550 | $353,550 |
| 2021 | $277,600 | $55,000 | $0 | $332,600 | $332,600 |
| 2020 | $222,080 | $55,000 | $0 | $277,080 | $277,080 |
| 2019 | $222,080 | $55,000 | $0 | $277,080 | $277,080 |
| 2018 | $185,060 | $55,000 | $0 | $240,060 | $240,060 |
| 2017 | $154,220 | $55,000 | $0 | $209,220 | $209,220 |
| 2016 | $140,200 | $55,000 | $0 | $195,200 | $195,200 |
| 2015 | $143,000 | $55,000 | $0 | $198,000 | $198,000 |
| 2014 | $114,400 | $55,000 | $0 | $169,400 | $169,400 |
| 2013 | $114,400 | $55,000 | $0 | $169,400 | $169,400 |
| 2012 | $127,200 | $55,000 | $0 | $0 | $0 |
| 2011 | $127,200 | $55,000 | $0 | $0 | $0 |
| 2010 | $121,600 | $40,000 | $0 | $0 | $0 |
| 2009 | $139,500 | $40,000 | $0 | $0 | $0 |
| 2008 | $103,600 | $40,000 | $0 | $0 | $0 |
| 2007 | $103,600 | $40,000 | $0 | $0 | $0 |
Deed and Sales History
| 1 | 10/26/2020 | SWD | STATUTORY WARRANTY DEED | JOHNSON MICHAEL | DOSTAL NATHANIEL J & GRACE A PALMER | | | $339,900.00 | 140187 | 2020-11167 |
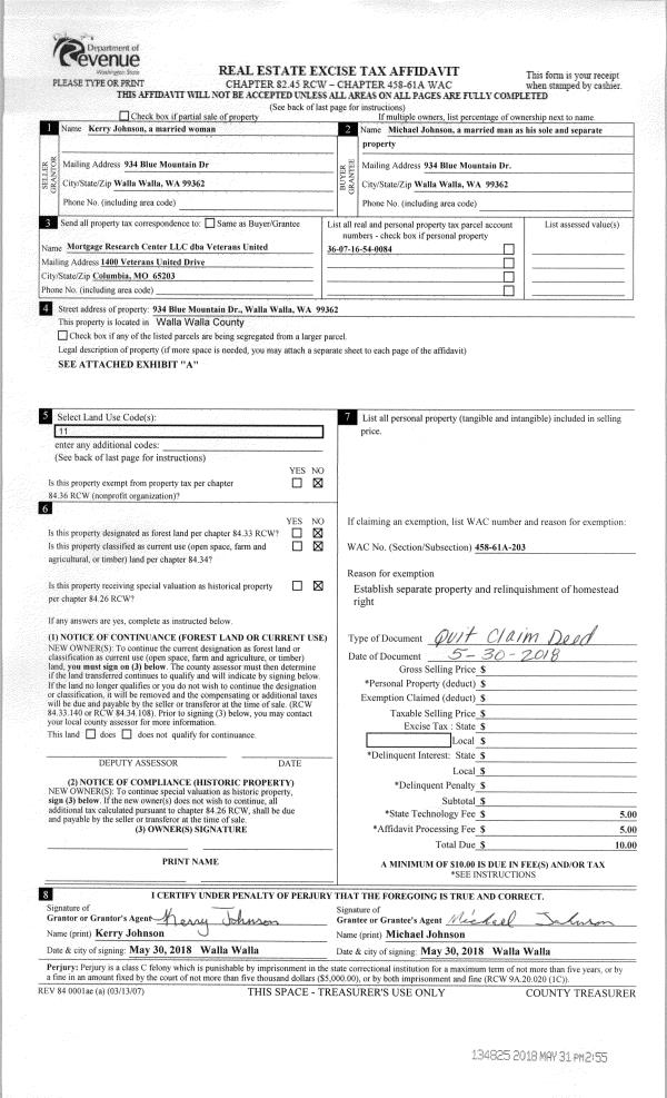
| 2 | 05/31/2018 | QCD | QUIT CLAIM DEED | JOHNSON KERRY | JOHNSON MICHAEL | | | | 134825 | 2018-04318 |
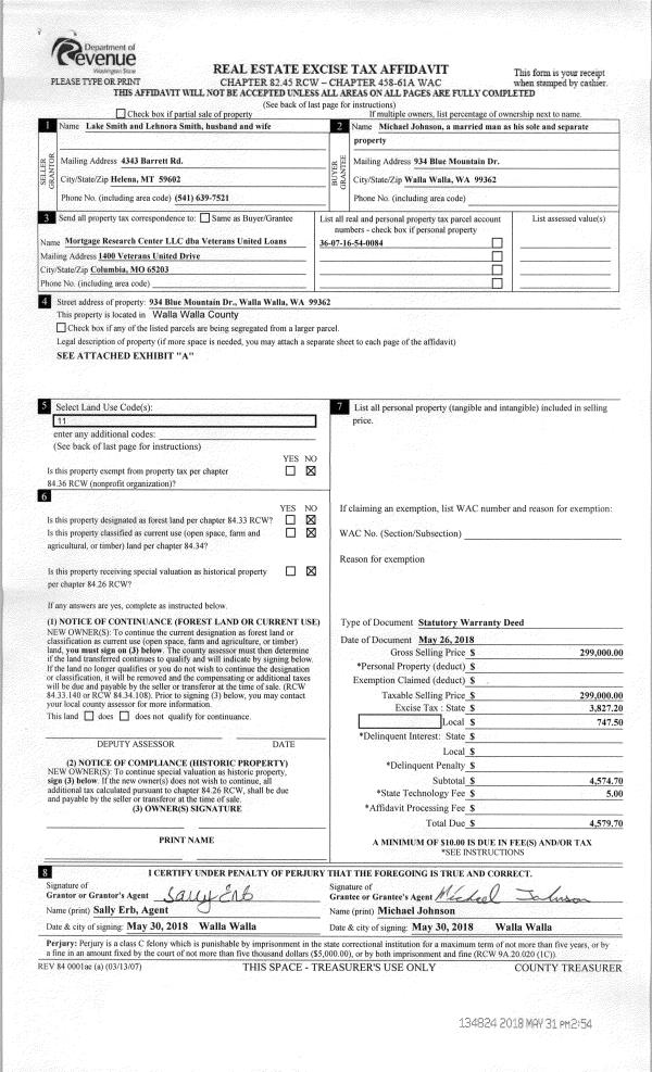
| 3 | 05/31/2018 | SWD | STATUTORY WARRANTY DEED | SMITH LAKE & LEHNORA | JOHNSON MICHAEL | | | $299,000.00 | 134824 | 2018-04317 |
| 4 | 08/05/2016 | SWD | STATUTORY WARRANTY DEED | HOGUE STEPHEN L & CAROL A | SMITH LAKE & LEHNORA | | | $229,000.00 | 130784 | 2016-06235 |
| 5 | 03/12/2015 | SWD | STATUTORY WARRANTY DEED | ATWOOD JEFFERSON C | HOGUE STEPHEN L & CAROL A | | | $200,000.00 | 127572 | 2015-02084 |
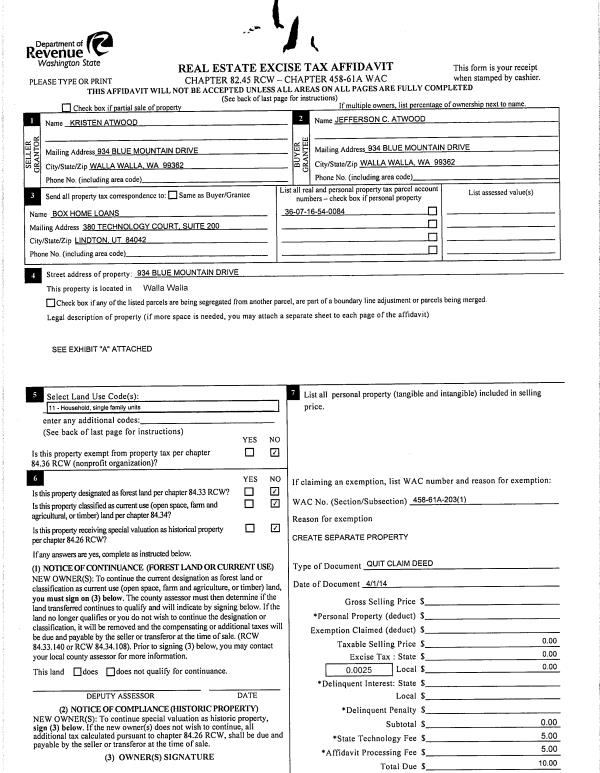
| 6 | 04/02/2014 | QCD | QUIT CLAIM DEED | | ATWOOD JEFFERSON C | | | | 125668 | 2014-02257 |
| 7 | 04/02/2014 | SWD | STATUTORY WARRANTY DEED | LOCATI PENNE R | ATWOOD JEFFERSON C | | | $215,000.00 | 125667 | 2014-02256 |
| 8 | 03/19/2013 | QCD | QUIT CLAIM DEED | LOCATI, MICHAEL F | LOCATI, PENNE R | | | $0.00 | 123630 | 2013-02584 |
| 9 | 04/12/2004 | QCD | QUIT CLAIM DEED | LOCATI, PENNE R | LOCATI, MICHAEL F | | | | 104476 | 2004-03816 |
| 10 | 04/05/2004 | QCD | QUIT CLAIM DEED | LOCATI, MICHAEL F | LOCATI, PENNE R | | | | 104424 | 2004-03563 |
| 11 | 12/16/2003 | WARRANTY D | WARRANTY DEED | LANDSAFE TITLE OF WA | LOCATI, MICHAEL F | | | | 103743 | 2003-18997 |
| 12 | 11/17/2003 | WARRANTY D | WARRANTY DEED | LANDSAFE TITLE | LOCATI, MICHAEL F | | | $97,400.00 | 0 | 2003-17689 |
| 13 | 11/10/1987 | WARRANTY D | WARRANTY DEED | | | | | $63,000.00 | 0 | 1678-708395 |
Payout Agreement
| No payout information available.. |