Property
Account |
| Property ID: | 1842 | Abbreviated Legal Description: | ARLENES #3 LOT 22 BLK 3 |
| Parcel Number: | 310807560322 | Agent Code: | |
| Type: | Real | | |
| Tax Area: | 328 - 400-M-5 | Land Use Code | 11 |
| Open Space: | N | DFL | N |
| Historic Property: | N | Remodel Property: | N |
| Multi-Family Redevelopment: | N | | |
| Township: | 8 | Section: | 7 |
| Range: | 31 |
Location |
| Address: | 204 MERRY LN WA 99323 | Mapsco: | |
| Neighborhood: | G BURBANK SFR | Map ID: | |
| Neighborhood CD: | 214711 |
Owner |
| Name: | BLACKBURN JESSE A | Owner ID: | 58676 |
| Mailing Address: | 204 MERRY LN BURBANK, WA 99323 | % Ownership: | 100.0000000000% |
| | | Exemptions: | |
Taxes and Assessment Details
Values
| (+) Improvement Homesite Value: | + | $0 | |
| (+) Improvement Non-Homesite Value: | + | $178,160 | |
| (+) Land Homesite Value: | + | $0 | |
| (+) Land Non-Homesite Value: | + | $75,000 | |
| (+) Curr Use (HS): | + | $0 | $0 |
| (+) Curr Use (NHS): | + | $0 | $0 |
| | | -------------------------- | |
| (=) Market Value: | = | $253,160 | |
| (–) Productivity Loss: | – | $0 | |
| | | -------------------------- | |
| (=) Subtotal: | = | $253,160 | |
| (+) Senior Appraised Value: | + | $0 | |
| (+) Non-Senior Appraised Value: | + | $253,160 | |
| | | -------------------------- | |
| (=) Total Appraised Value: | = | $253,160 | |
| (–) Senior Exemption Loss: | – | $0 | |
| (–) Exemption Loss: | – | $0 | |
| | | -------------------------- | |
| (=) Taxable Value: | = | $253,160 | |
Taxing Jurisdiction
| Owner: | BLACKBURN JESSE A | | |
| % Ownership: | 100.0000000000% | | |
| Total Value: | $253,160 | | |
| Tax Area: | 328 - 400-M-5 |
| CERFD | CURRENT EXPENSE REFUND 010 | 0.0000000000 | $253,160 | $253,160 | $0.00 | | |
| CURREXP | CURRENT EXPENSE 010 | 1.0175366760 | $253,160 | $253,160 | $257.60 | | |
| HUMNSERV | HUMAN SERVICES 119 | 0.0250000000 | $253,160 | $253,160 | $6.33 | | |
| SLDREL | SOLDIERS RELIEF 121 | 0.0155990005 | $253,160 | $253,160 | $3.95 | | |
| EMERGSER | EMS 147 | 0.3792580840 | $253,160 | $253,160 | $96.01 | | |
| EMSRFD | EMS REFUND 147 | 0.0000000000 | $253,160 | $253,160 | $0.00 | | |
| FD5EXP | FD #5 EXPENSE 689 | 1.2045331840 | $253,160 | $253,160 | $304.94 | | |
| RLBRFD | RURAL LIBRARY REFUND 623 | 0.0000000000 | $253,160 | $253,160 | $0.00 | | |
| RURALLIB | RURAL LIBRARY 623 | 0.3710609029 | $253,160 | $253,160 | $93.94 | | |
| PORTRFD | PORT REFUND 640 | 0.0000000000 | $253,160 | $253,160 | $0.00 | | |
| PORTWWGEN | PORT OF WW 640 | 0.2460186015 | $253,160 | $253,160 | $62.28 | | |
| SD400BOND | SD #400 BOND 793 | 0.0000000000 | $253,160 | $253,160 | $0.00 | | |
| SD400CAP | SD #400 CP 792 | 0.3443722657 | $253,160 | $253,160 | $87.18 | | |
| SD400GEN | SD #400 GENERAL 790 | 1.9278469916 | $253,160 | $253,160 | $488.05 | | |
| ST2 | STATE SCHOOL PART 2 600 | 0.8131451643 | $253,160 | $253,160 | $205.86 | | |
| STATESCHL | STATE SCHOOL 600 | 1.5158548041 | $253,160 | $253,160 | $383.75 | | |
| STREFUND | STATE REFUND LEVY 603 | 0.0000000000 | $253,160 | $253,160 | $0.00 | | |
| COROAD | COUNTY ROAD 115 | 1.6549953990 | $253,160 | $253,160 | $418.98 | | |
| CRPRD | COUNTY ROAD REFUND 115 | 0.0000000000 | $253,160 | $253,160 | $0.00 | | |
| | Total Tax Rate: | 9.5152210736 | | | | | |
| | | | | Taxes w/Current Exemptions: | $2,408.87 | | |
| | | | | Taxes w/o Exemptions: | $2,408.87 | | |
Improvement / Building
| Improvement #1: | RESIDENTIAL | State Code: | 11 | 1047.0 sqft | Value: | $178,160 |
| Exterior Wall: | PLYWOOD | Heating/Cooling: | BASEBOARD ELECTRIC | | Number of Bathrooms: | 2 | Number of Bedrooms: | 3 | | Plumbing: | 6 | Roof Covering: | COMP SHINGLE |
|
| | Type | Description | Class CD | Sub Class CD | Year Built | Area |
| | MA | Main Area | 1 | 30 | 1985 | 1047.0 |
| | SI1 | SITE IMPROVEMENT | 1 | 30 | 1985 | 1.0 |
| | ATG | Attached Garage | 1 | 30 | 1985 | 540.0 |
| | RPO | OPEN PORCH W/ROOF | 1 | 30 | 1985 | 30.0 |
| | WOD | Wood Deck | 1 | 30 | 1985 | 126.0 |
Sketch
Property Image
Land
| 1 | RES 1 | Converted: Residential | 0.3217 | 14014.00 | 0.00 | 0.00 | 1.00 | $75,000 | $0 |
Roll Value History
| 2026 | N/A | N/A | N/A | N/A | N/A |
| 2025 | $231,600 | $75,000 | $0 | $306,600 | $306,600 |
| 2024 | $178,160 | $75,000 | $0 | $253,160 | $253,160 |
| 2023 | $178,160 | $75,000 | $0 | $253,160 | $253,160 |
| 2022 | $154,920 | $75,000 | $0 | $229,920 | $229,920 |
| 2021 | $134,710 | $75,000 | $0 | $209,710 | $209,710 |
| 2020 | $131,240 | $35,000 | $0 | $166,240 | $166,240 |
| 2019 | $131,240 | $35,000 | $0 | $166,240 | $166,240 |
| 2018 | $114,120 | $35,000 | $0 | $149,120 | $149,120 |
| 2017 | $114,120 | $35,000 | $0 | $149,120 | $149,120 |
| 2016 | $108,690 | $35,000 | $0 | $143,690 | $143,690 |
| 2015 | $103,510 | $35,000 | $0 | $138,510 | $138,510 |
| 2014 | $94,100 | $35,000 | $0 | $129,100 | $129,100 |
| 2013 | $94,100 | $35,000 | $0 | $129,100 | $129,100 |
| 2012 | $72,600 | $35,000 | $0 | $0 | $0 |
| 2011 | $72,600 | $35,000 | $0 | $0 | $0 |
| 2010 | $72,600 | $35,000 | $0 | $0 | $0 |
| 2009 | $94,000 | $25,000 | $0 | $0 | $0 |
| 2008 | $78,500 | $25,000 | $0 | $0 | $0 |
| 2007 | $78,500 | $25,000 | $0 | $0 | $0 |
Deed and Sales History
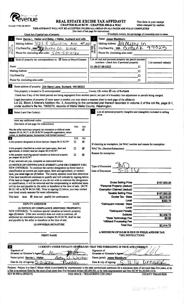
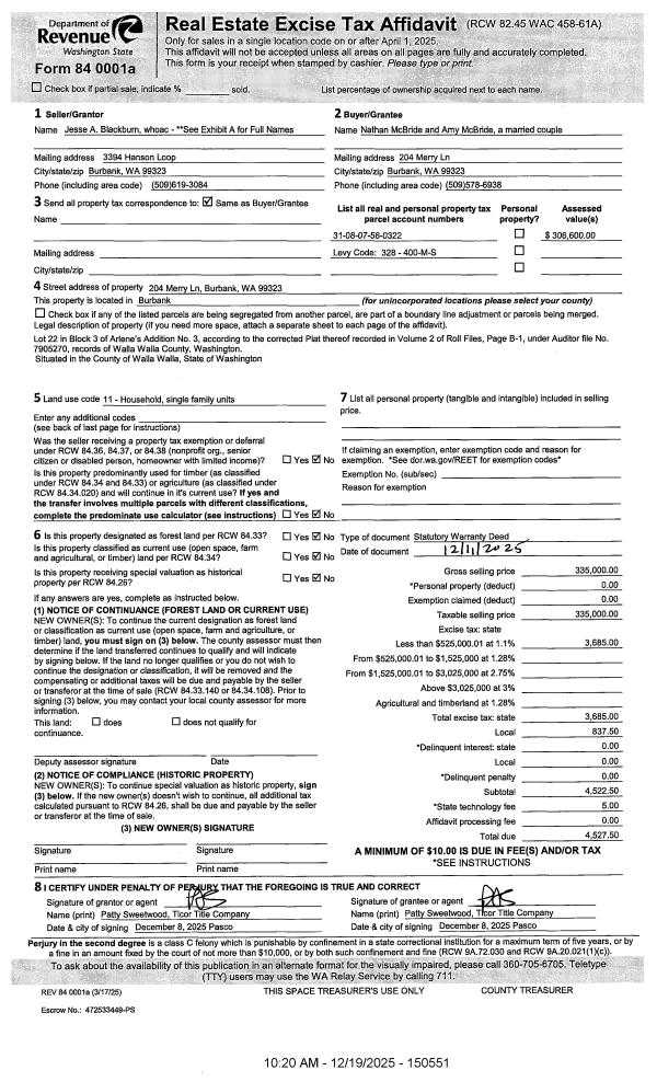
| 1 | 12/19/2025 | SWD | STATUTORY WARRANTY DEED | BLACKBURN JESSE A | MCBRIDE NATHAN & AMY | | | $335,000.00 | 150551 | 2025-07812 |
| 2 | 05/13/2016 | SWD | STATUTORY WARRANTY DEED | WALTER BERNIE L & BETSY | BLACKBURN JESSE A | | | $157,500.00 | 130213 | 2016-03606 |
| 3 | 08/10/1995 | WARRANTY D | WARRANTY DEED | | | | | $79,000.00 | 84533 | 2329-507537 |
Payout Agreement
| No payout information available.. |