Property
Account |
| Property ID: | 18406 | Abbreviated Legal Description: | VALLEY HOMES W 74' OF S 110' OF LOT 7 LESS SWLY CORNER TO CITY OFWW |
| Parcel Number: | 360722560096 | Agent Code: | |
| Type: | Real | | |
| Tax Area: | 6 - OL-140-F-FB | Land Use Code | 11 |
| Open Space: | N | DFL | N |
| Historic Property: | N | Remodel Property: | N |
| Multi-Family Redevelopment: | N | | |
| Township: | 7 | Section: | 22 |
| Range: | 36 |
Location |
| Address: | 1803 E ALDER ST WA 99362 | Mapsco: | |
| Neighborhood: | A SFR | Map ID: | |
| Neighborhood CD: | 413011 |
Owner |
| Name: | CRAFT BUILD CONSTRUCTION LLC | Owner ID: | 65997 |
| Mailing Address: | 726 MCBETH RD WALLA WALLA, WA 99362 | % Ownership: | 100.0000000000% |
| | | Exemptions: | |
Taxes and Assessment Details
Values
| (+) Improvement Homesite Value: | + | $59,850 | |
| (+) Improvement Non-Homesite Value: | + | $0 | |
| (+) Land Homesite Value: | + | $65,120 | |
| (+) Land Non-Homesite Value: | + | $0 | |
| (+) Curr Use (HS): | + | $0 | $0 |
| (+) Curr Use (NHS): | + | $0 | $0 |
| | | -------------------------- | |
| (=) Market Value: | = | $124,970 | |
| (–) Productivity Loss: | – | $0 | |
| | | -------------------------- | |
| (=) Subtotal: | = | $124,970 | |
| (+) Senior Appraised Value: | + | $0 | |
| (+) Non-Senior Appraised Value: | + | $124,970 | |
| | | -------------------------- | |
| (=) Total Appraised Value: | = | $124,970 | |
| (–) Senior Exemption Loss: | – | $0 | |
| (–) Exemption Loss: | – | $0 | |
| | | -------------------------- | |
| (=) Taxable Value: | = | $124,970 | |
Taxing Jurisdiction
| Owner: | CRAFT BUILD CONSTRUCTION LLC | | |
| % Ownership: | 100.0000000000% | | |
| Total Value: | $124,970 | | |
| Tax Area: | 6 - OL-140-F-FB |
| CERFD | CURRENT EXPENSE REFUND 010 | 0.0000000000 | $124,970 | $124,970 | $0.00 | | |
| CURREXP | CURRENT EXPENSE 010 | 1.0175366760 | $124,970 | $124,970 | $127.16 | | |
| HUMNSERV | HUMAN SERVICES 119 | 0.0250000000 | $124,970 | $124,970 | $3.12 | | |
| SLDREL | SOLDIERS RELIEF 121 | 0.0155990005 | $124,970 | $124,970 | $1.95 | | |
| EMERGSER | EMS 147 | 0.3792580840 | $124,970 | $124,970 | $47.40 | | |
| EMSRFD | EMS REFUND 147 | 0.0000000000 | $124,970 | $124,970 | $0.00 | | |
| PORTRFD | PORT REFUND 640 | 0.0000000000 | $124,970 | $124,970 | $0.00 | | |
| PORTWWGEN | PORT OF WW 640 | 0.2460186015 | $124,970 | $124,970 | $30.74 | | |
| SD140BOND | SD #140 BOND 764 | 0.8342371393 | $124,970 | $124,970 | $104.25 | | |
| SD140GEN | SD #140 GENERAL 760 | 2.0646500647 | $124,970 | $124,970 | $258.02 | | |
| ST2 | STATE SCHOOL PART 2 600 | 0.8131451643 | $124,970 | $124,970 | $101.62 | | |
| STATESCHL | STATE SCHOOL 600 | 1.5158548041 | $124,970 | $124,970 | $189.44 | | |
| STREFUND | STATE REFUND LEVY 603 | 0.0000000000 | $124,970 | $124,970 | $0.00 | | |
| CWWBOND | C OF WW BOND 643 | 0.2760494372 | $124,970 | $124,970 | $34.50 | | |
| CWWGEN | CITY OF WW 631 | 1.6100204973 | $124,970 | $124,970 | $201.20 | | |
| CWWRFD | CITY OF WALLA WALLA REFUND 631 | 0.0000000000 | $124,970 | $124,970 | $0.00 | | |
| | Total Tax Rate: | 8.7973694689 | | | | | |
| | | | | Taxes w/Current Exemptions: | $1,099.40 | | |
| | | | | Taxes w/o Exemptions: | $1,099.40 | | |
Improvement / Building
| Improvement #1: | RESIDENTIAL | State Code: | 11 | 758.0 sqft | Value: | $59,850 |
| Exterior Wall: | VINYL | Heating/Cooling: | FLOOR FURNACE | | Number of Bathrooms: | 1 | Number of Bedrooms: | 2 | | Plumbing: | 6 | Roof Covering: | COMP SHINGLE |
|
| | Type | Description | Class CD | Sub Class CD | Year Built | Area |
| | MA | Main Area | 1 | 30 | 1911 | 758.0 |
| | SI1 | SITE IMPROVEMENT | 1 | 30 | 0 | 1.0 |
| | DTG | Detached Garage | 1 | 30 | 1911 | 528.0 |
| | SWP | Solid Wall Porch | 1 | 30 | 1911 | 88.0 |
| | RPS | PORCH W/STEPS,ROOF | 1 | 30 | 1911 | 90.0 |
Sketch
Property Image
Land
| 1 | RES 1 | Converted: Residential | 0.1869 | 8140.00 | 0.00 | 0.00 | 1.00 | $65,120 | $0 |
Roll Value History
| 2026 | N/A | N/A | N/A | N/A | N/A |
| 2025 | $219,080 | $65,120 | $0 | $284,200 | $284,200 |
| 2024 | $128,870 | $65,120 | $0 | $193,990 | $193,990 |
| 2023 | $59,850 | $65,120 | $0 | $124,970 | $124,970 |
| 2022 | $62,350 | $42,740 | $0 | $105,090 | $105,090 |
| 2021 | $62,350 | $42,740 | $0 | $105,090 | $105,090 |
| 2020 | $62,350 | $42,740 | $0 | $105,090 | $105,090 |
| 2019 | $62,350 | $42,740 | $0 | $105,090 | $105,090 |
| 2018 | $56,680 | $42,740 | $0 | $99,420 | $99,420 |
| 2017 | $56,680 | $42,740 | $0 | $99,420 | $99,420 |
| 2016 | $49,350 | $32,600 | $0 | $81,950 | $0 |
| 2015 | $49,350 | $32,600 | $0 | $81,950 | $0 |
| 2014 | $47,000 | $32,600 | $0 | $79,600 | $0 |
| 2013 | $47,000 | $32,600 | $0 | $79,600 | $0 |
| 2012 | $39,800 | $32,600 | $0 | $0 | $0 |
| 2011 | $43,700 | $32,600 | $0 | $0 | $0 |
| 2010 | $43,700 | $32,600 | $0 | $0 | $0 |
| 2009 | $52,200 | $32,600 | $0 | $0 | $0 |
| 2008 | $56,700 | $32,600 | $0 | $0 | $0 |
| 2007 | $56,700 | $32,600 | $0 | $0 | $0 |
Deed and Sales History
| 1 | 02/24/2025 | SWD | STATUTORY WARRANTY DEED | CRAFT BUILD CONSTRUCTION LLC | VORSE DANIEL & ADA MARIE | | | $330,000.00 | 148957 | 2025-00923 |
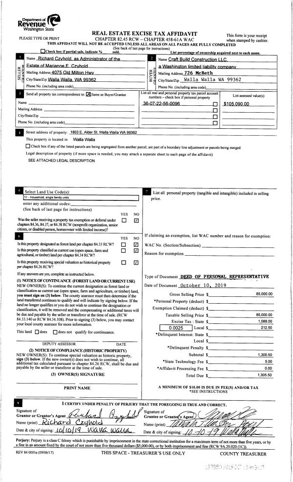
| 2 | 10/10/2019 | DPR | DEED OF PERSONAL REPRESENTATIVE | CZYHOLD MARIANNE E ESTATE OF | CRAFT BUILD CONSTRUCTION LLC | | | $85,000.00 | 137850 | 2019-08093 |
| 3 | 06/05/2008 | QCD | QUIT CLAIM DEED | HALL, STEVEN W | HALL, STEVEN W | | | | 115135 | 2008-05657 |
| 4 | 05/01/1975 | WARRANTY D | WARRANTY DEED | | | | | $0.00 | 65363 | 3130-464761 |
Payout Agreement
| No payout information available.. |