Property
Account |
| Property ID: | 18263 | Abbreviated Legal Description: | BURBANK LOTS 8 & 9 BLK 18 |
| Parcel Number: | 300802531808 | Agent Code: | |
| Type: | Real | | |
| Tax Area: | 328 - 400-M-5 | Land Use Code | 11 |
| Open Space: | N | DFL | N |
| Historic Property: | N | Remodel Property: | N |
| Multi-Family Redevelopment: | N | | |
| Township: | 8 | Section: | 2 |
| Range: | 30 |
Location |
| Address: | 46 THIRD AVE WA 99323 | Mapsco: | |
| Neighborhood: | Burbank F SFR | Map ID: | |
| Neighborhood CD: | 212711 |
Owner |
| Name: | SALGADO BERENICE A | Owner ID: | 59407 |
| Mailing Address: | CRESENCIO SALGADO RAMIREZ PO BOX 396 BURBANK, WA 99323 | % Ownership: | 100.0000000000% |
| | | Exemptions: | |
Taxes and Assessment Details
Property Tax Information as of
02/21/2026
Click on "Statement Details" to expand or collapse a tax statement.
* Please enter a valid date ** Please enter a valid date *
Statement Details |
| | TOTAL: | $0.00 | $0.00 | $0.00 | $0.00 | $0.00 | $0.00 |
|
| | $0.00 | $0.00 | $0.00 | $0.00 | $0.00 | $0.00 |
Values
| (+) Improvement Homesite Value: | + | $0 | |
| (+) Improvement Non-Homesite Value: | + | $218,090 | |
| (+) Land Homesite Value: | + | $0 | |
| (+) Land Non-Homesite Value: | + | $48,190 | |
| (+) Curr Use (HS): | + | $0 | $0 |
| (+) Curr Use (NHS): | + | $0 | $0 |
| | | -------------------------- | |
| (=) Market Value: | = | $266,280 | |
| (–) Productivity Loss: | – | $0 | |
| | | -------------------------- | |
| (=) Subtotal: | = | $266,280 | |
| (+) Senior Appraised Value: | + | $0 | |
| (+) Non-Senior Appraised Value: | + | $266,280 | |
| | | -------------------------- | |
| (=) Total Appraised Value: | = | $266,280 | |
| (–) Senior Exemption Loss: | – | $0 | |
| (–) Exemption Loss: | – | $0 | |
| | | -------------------------- | |
| (=) Taxable Value: | = | $266,280 | |
Taxing Jurisdiction
| Owner: | SALGADO BERENICE A | | |
| % Ownership: | 100.0000000000% | | |
| Total Value: | $266,280 | | |
| Tax Area: | 328 - 400-M-5 |
| CERFD | CURRENT EXPENSE REFUND 010 | 0.0000000000 | $266,280 | $266,280 | $0.00 | | |
| CURREXP | CURRENT EXPENSE 010 | 1.0175366760 | $266,280 | $266,280 | $270.95 | | |
| HUMNSERV | HUMAN SERVICES 119 | 0.0250000000 | $266,280 | $266,280 | $6.66 | | |
| SLDREL | SOLDIERS RELIEF 121 | 0.0155990005 | $266,280 | $266,280 | $4.15 | | |
| EMERGSER | EMS 147 | 0.3792580840 | $266,280 | $266,280 | $100.99 | | |
| EMSRFD | EMS REFUND 147 | 0.0000000000 | $266,280 | $266,280 | $0.00 | | |
| FD5EXP | FD #5 EXPENSE 689 | 1.2045331840 | $266,280 | $266,280 | $320.74 | | |
| RLBRFD | RURAL LIBRARY REFUND 623 | 0.0000000000 | $266,280 | $266,280 | $0.00 | | |
| RURALLIB | RURAL LIBRARY 623 | 0.3710609029 | $266,280 | $266,280 | $98.81 | | |
| PORTRFD | PORT REFUND 640 | 0.0000000000 | $266,280 | $266,280 | $0.00 | | |
| PORTWWGEN | PORT OF WW 640 | 0.2460186015 | $266,280 | $266,280 | $65.51 | | |
| SD400BOND | SD #400 BOND 793 | 0.0000000000 | $266,280 | $266,280 | $0.00 | | |
| SD400CAP | SD #400 CP 792 | 0.3443722657 | $266,280 | $266,280 | $91.70 | | |
| SD400GEN | SD #400 GENERAL 790 | 1.9278469916 | $266,280 | $266,280 | $513.35 | | |
| ST2 | STATE SCHOOL PART 2 600 | 0.8131451643 | $266,280 | $266,280 | $216.52 | | |
| STATESCHL | STATE SCHOOL 600 | 1.5158548041 | $266,280 | $266,280 | $403.64 | | |
| STREFUND | STATE REFUND LEVY 603 | 0.0000000000 | $266,280 | $266,280 | $0.00 | | |
| COROAD | COUNTY ROAD 115 | 1.6549953990 | $266,280 | $266,280 | $440.69 | | |
| CRPRD | COUNTY ROAD REFUND 115 | 0.0000000000 | $266,280 | $266,280 | $0.00 | | |
| | Total Tax Rate: | 9.5152210736 | | | | | |
| | | | | Taxes w/Current Exemptions: | $2,533.71 | | |
| | | | | Taxes w/o Exemptions: | $2,533.71 | | |
Improvement / Building
| Improvement #1: | RESIDENTIAL | State Code: | 11 | 1188.0 sqft | Value: | $218,090 |
| Exterior Wall: | PLYWOOD | Heating/Cooling: | FORCED AIR | | Number of Bathrooms: | 2 | Number of Bedrooms: | 3 | | Plumbing: | 8 | Roof Covering: | COMP SHINGLE |
|
| | Type | Description | Class CD | Sub Class CD | Year Built | Area |
| | MA | Main Area | 1 | 30 | 1960 | 1188.0 |
| | SI1 | SITE IMPROVEMENT | 1 | 30 | 1960 | 1.0 |
| | OPS | OPEN PORCH W/STEPS | 1 | 30 | 1960 | 20.0 |
| | CPC | COVERED CARPORT/PATIO | 1 | 30 | 1960 | 297.0 |
Sketch
Property Image
Land
| 1 | RES 1 | Converted: Residential | 0.2640 | 11500.00 | 0.00 | 0.00 | 1.00 | $48,190 | $0 |
Roll Value History
| 2026 | N/A | N/A | N/A | N/A | N/A |
| 2025 | $218,090 | $48,190 | $0 | $266,280 | $266,280 |
| 2024 | $218,090 | $48,190 | $0 | $266,280 | $266,280 |
| 2023 | $218,090 | $48,190 | $0 | $266,280 | $266,280 |
| 2022 | $218,090 | $48,190 | $0 | $266,280 | $266,280 |
| 2021 | $161,550 | $48,190 | $0 | $209,740 | $209,740 |
| 2020 | $151,900 | $22,300 | $0 | $174,200 | $174,200 |
| 2019 | $151,900 | $22,300 | $0 | $174,200 | $174,200 |
| 2018 | $116,840 | $22,300 | $0 | $139,140 | $139,140 |
| 2017 | $116,840 | $22,300 | $0 | $139,140 | $139,140 |
| 2016 | $106,220 | $22,300 | $0 | $128,520 | $128,520 |
| 2015 | $37,400 | $22,300 | $0 | $59,700 | $59,700 |
| 2014 | $46,800 | $22,300 | $0 | $69,100 | $69,100 |
| 2013 | $46,800 | $22,300 | $0 | $69,100 | $69,100 |
| 2012 | $46,800 | $22,300 | $0 | $0 | $0 |
| 2011 | $46,800 | $22,300 | $0 | $0 | $0 |
| 2010 | $46,800 | $22,300 | $0 | $0 | $0 |
| 2009 | $53,600 | $17,300 | $0 | $0 | $0 |
| 2008 | $53,600 | $17,300 | $0 | $0 | $0 |
| 2007 | $53,600 | $17,300 | $0 | $0 | $0 |
Deed and Sales History
| 1 | 08/05/2016 | QCD | QUIT CLAIM DEED | SALGADO PATRICIA A | RAMIREZ CRESENCIO SALGADO | | | $0.00 | 130793 | 2016-06289 |
| 2 | 08/08/2016 | SWD | STATUTORY WARRANTY DEED | O'BRIEN BRAD L & MELANIE D | SALGADO BERENICE A | | | $149,000.00 | 130792 | 2016-06288 |
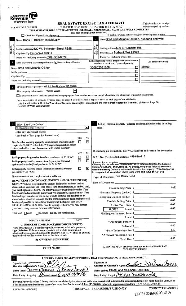
| 3 | 08/08/2016 | QCD | QUIT CLAIM DEED | BRICKEY MICHAEL F ESTATE OF | O'BRIEN BRAD L & MELANIE D | | | | 130791 | 2016-06287 |
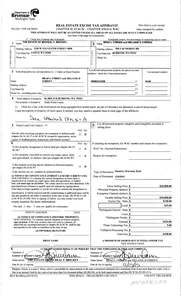
| 4 | 12/16/2015 | SWD | STATUTORY WARRANTY DEED | BRICKEY MICHAEL F ESTATE OF | O'BRIEN BRAD L & MELANIE D | | | $10,000.00 | 129347 | 2015-10736 |
| 5 | 01/24/1975 | WARRANTY D | WARRANTY DEED | | | | | $26,000.00 | 0 | 5105-60024 |
Payout Agreement
| No payout information available.. |