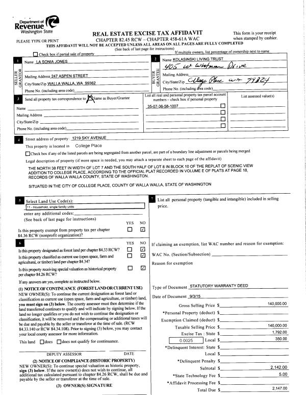
Property
Account |
| Property ID: | 18244 | Abbreviated Legal Description: | SCENIC VIEW N 38' OF LOT 7 BLK 10, S1/2 OF LOT 8 BLK 10 |
| Parcel Number: | 350736581007 | Agent Code: | |
| Type: | Real | | |
| Tax Area: | 75 - CP 250 | Land Use Code | 11 |
| Open Space: | N | DFL | N |
| Historic Property: | N | Remodel Property: | N |
| Multi-Family Redevelopment: | N | | |
| Township: | 7 | Section: | 36 |
| Range: | 35 |
Location |
| Address: | 1219 SE SKY AVE WA 99324 | Mapsco: | |
| Neighborhood: | A SFR | Map ID: | |
| Neighborhood CD: | 113011 |
Owner |
| Name: | THE KOLASINKSI TRUST | Owner ID: | 57329 |
| Mailing Address: | 405 W WHITMAN DR COLLEGE PLACE, WA 99324 | % Ownership: | 100.0000000000% |
| | | Exemptions: | |
Taxes and Assessment Details
Property Tax Information as of
02/21/2026
Click on "Statement Details" to expand or collapse a tax statement.
* Please enter a valid date ** Please enter a valid date *
Statement Details |
| | TOTAL: | $0.00 | $0.00 | $0.00 | $0.00 | $0.00 | $0.00 |
|
| | $0.00 | $0.00 | $0.00 | $0.00 | $0.00 | $0.00 |
Values
| (+) Improvement Homesite Value: | + | $243,720 | |
| (+) Improvement Non-Homesite Value: | + | $0 | |
| (+) Land Homesite Value: | + | $55,080 | |
| (+) Land Non-Homesite Value: | + | $0 | |
| (+) Curr Use (HS): | + | $0 | $0 |
| (+) Curr Use (NHS): | + | $0 | $0 |
| | | -------------------------- | |
| (=) Market Value: | = | $298,800 | |
| (–) Productivity Loss: | – | $0 | |
| | | -------------------------- | |
| (=) Subtotal: | = | $298,800 | |
| (+) Senior Appraised Value: | + | $0 | |
| (+) Non-Senior Appraised Value: | + | $298,800 | |
| | | -------------------------- | |
| (=) Total Appraised Value: | = | $298,800 | |
| (–) Senior Exemption Loss: | – | $0 | |
| (–) Exemption Loss: | – | $0 | |
| | | -------------------------- | |
| (=) Taxable Value: | = | $298,800 | |
Taxing Jurisdiction
| Owner: | THE KOLASINKSI TRUST | | |
| % Ownership: | 100.0000000000% | | |
| Total Value: | $298,800 | | |
| Tax Area: | 75 - CP 250 |
| CERFD | CURRENT EXPENSE REFUND 010 | 0.0000000000 | $298,800 | $298,800 | $0.00 | | |
| CURREXP | CURRENT EXPENSE 010 | 1.0175366760 | $298,800 | $298,800 | $304.04 | | |
| HUMNSERV | HUMAN SERVICES 119 | 0.0250000000 | $298,800 | $298,800 | $7.47 | | |
| SLDREL | SOLDIERS RELIEF 121 | 0.0155990005 | $298,800 | $298,800 | $4.66 | | |
| COLLPLBOND | C OF CP BOND 644 | 0.4374241808 | $298,800 | $298,800 | $130.70 | | |
| COLLPLGEN | CITY OF CP 632 | 1.4453819216 | $298,800 | $298,800 | $431.88 | | |
| EMERGSER | EMS 147 | 0.3792580840 | $298,800 | $298,800 | $113.32 | | |
| EMSRFD | EMS REFUND 147 | 0.0000000000 | $298,800 | $298,800 | $0.00 | | |
| RURALLIB | RURAL LIBRARY 623 | 0.3710609029 | $298,800 | $298,800 | $110.87 | | |
| PORTRFD | PORT REFUND 640 | 0.0000000000 | $298,800 | $298,800 | $0.00 | | |
| PORTWWGEN | PORT OF WW 640 | 0.2460186015 | $298,800 | $298,800 | $73.51 | | |
| SD250BOND | SD #250 BOND 773 | 1.4560608159 | $298,800 | $298,800 | $435.07 | | |
| SD250GEN | SD #250 GENERAL 770 | 2.3880724087 | $298,800 | $298,800 | $713.56 | | |
| ST2 | STATE SCHOOL PART 2 600 | 0.8131451643 | $298,800 | $298,800 | $242.97 | | |
| STATESCHL | STATE SCHOOL 600 | 1.5158548041 | $298,800 | $298,800 | $452.94 | | |
| STREFUND | STATE REFUND LEVY 603 | 0.0000000000 | $298,800 | $298,800 | $0.00 | | |
| | Total Tax Rate: | 10.1104125603 | | | | | |
| | | | | Taxes w/Current Exemptions: | $3,020.99 | | |
| | | | | Taxes w/o Exemptions: | $3,020.99 | | |
Improvement / Building
| Improvement #1: | RESIDENTIAL | State Code: | 11 | 1212.0 sqft | Value: | $243,720 |
| Exterior Wall: | SIDING | Foundation: | SLAB FOUNDATION | | Heating/Cooling: | REV-HEAT-PUMP-W/DUCT | Number of Bathrooms: | 1 | | Number of Bedrooms: | 2 | Plumbing: | 6 | | Roof Covering: | COMP SHINGLE |   |   |
|
| | Type | Description | Class CD | Sub Class CD | Year Built | Area |
| | MA | Main Area | 1 | 30 | 1955 | 1212.0 |
| | SI1 | SITE IMPROVEMENT | 1 | 30 | 1955 | 1.5 |
| | DTG | Detached Garage | 1 | 30 | 1955 | 576.0 |
| | RPO | OPEN PORCH W/ROOF | 1 | 30 | 1955 | 30.0 |
| | S1F | Single One Story Fireplace | 1 | 30 | 1955 | 1.0 |
| | RPO | OPEN PORCH W/ROOF | 1 | 30 | 1955 | 240.0 |
Sketch
Property Image
Land
| 1 | RES 1 | Converted: Residential | 0.1873 | 8160.00 | 0.00 | 0.00 | 1.00 | $55,080 | $0 |
Roll Value History
| 2026 | N/A | N/A | N/A | N/A | N/A |
| 2025 | $230,310 | $81,600 | $0 | $311,910 | $311,910 |
| 2024 | $255,900 | $55,080 | $0 | $310,980 | $310,980 |
| 2023 | $243,720 | $55,080 | $0 | $298,800 | $298,800 |
| 2022 | $211,930 | $55,080 | $0 | $267,010 | $267,010 |
| 2021 | $176,610 | $55,080 | $0 | $231,690 | $231,690 |
| 2020 | $135,850 | $55,080 | $0 | $190,930 | $190,930 |
| 2019 | $145,330 | $45,600 | $0 | $190,930 | $190,930 |
| 2018 | $111,790 | $45,600 | $0 | $157,390 | $157,390 |
| 2017 | $108,540 | $45,600 | $0 | $154,140 | $154,140 |
| 2016 | $98,670 | $45,600 | $0 | $144,270 | $144,270 |
| 2015 | $89,700 | $45,600 | $0 | $135,300 | $135,300 |
| 2014 | $89,700 | $45,600 | $0 | $135,300 | $54,120 |
| 2013 | $89,700 | $45,600 | $0 | $135,300 | $135,300 |
| 2012 | $101,500 | $45,600 | $0 | $0 | $0 |
| 2011 | $109,300 | $45,600 | $0 | $0 | $0 |
| 2010 | $101,900 | $45,600 | $0 | $0 | $0 |
| 2009 | $118,300 | $45,600 | $0 | $0 | $0 |
| 2008 | $69,800 | $23,100 | $0 | $0 | $0 |
| 2007 | $69,800 | $23,100 | $0 | $0 | $0 |
Deed and Sales History
| 1 | 09/03/2015 | SWD | STATUTORY WARRANTY DEED | JONES LA SONIA K | THE KOLASINKSI TRUST | | | $140,000.00 | 128771 | 2015-07832 |
| 2 | 02/08/2002 | WARRANTY D | WARRANTY DEED | | | | | $92,900.00 | 98896 | 3280-201600 |
Payout Agreement
| No payout information available.. |