Property
Account |
| Property ID: | 1822 | Abbreviated Legal Description: | ARLENES #3 LOT 25 BLK 1 |
| Parcel Number: | 310807560125 | Agent Code: | |
| Type: | Real | | |
| Tax Area: | 328 - 400-M-5 | Land Use Code | 11 |
| Open Space: | N | DFL | N |
| Historic Property: | N | Remodel Property: | N |
| Multi-Family Redevelopment: | N | | |
| Township: | 8 | Section: | 7 |
| Range: | 31 |
Location |
| Address: | 447 MERRY LN WA 99323 | Mapsco: | |
| Neighborhood: | G BURBANK SFR | Map ID: | |
| Neighborhood CD: | 214711 |
Owner |
| Name: | MUNSON JAMIE T | Owner ID: | 72835 |
| Mailing Address: | 447 MERRY LN BURBANK, WA 99323 | % Ownership: | 100.0000000000% |
| | | Exemptions: | |
Taxes and Assessment Details
Property Tax Information as of
02/21/2026
Click on "Statement Details" to expand or collapse a tax statement.
* Please enter a valid date ** Please enter a valid date *
Statement Details |
| | TOTAL: | $0.00 | $0.00 | $0.00 | $0.00 | $0.00 | $0.00 |
|
| | $0.00 | $0.00 | $0.00 | $0.00 | $0.00 | $0.00 |
Values
| (+) Improvement Homesite Value: | + | $0 | |
| (+) Improvement Non-Homesite Value: | + | $374,400 | |
| (+) Land Homesite Value: | + | $0 | |
| (+) Land Non-Homesite Value: | + | $75,000 | |
| (+) Curr Use (HS): | + | $0 | $0 |
| (+) Curr Use (NHS): | + | $0 | $0 |
| | | -------------------------- | |
| (=) Market Value: | = | $449,400 | |
| (–) Productivity Loss: | – | $0 | |
| | | -------------------------- | |
| (=) Subtotal: | = | $449,400 | |
| (+) Senior Appraised Value: | + | $0 | |
| (+) Non-Senior Appraised Value: | + | $449,400 | |
| | | -------------------------- | |
| (=) Total Appraised Value: | = | $449,400 | |
| (–) Senior Exemption Loss: | – | $0 | |
| (–) Exemption Loss: | – | $0 | |
| | | -------------------------- | |
| (=) Taxable Value: | = | $449,400 | |
Taxing Jurisdiction
| Owner: | MUNSON JAMIE T | | |
| % Ownership: | 100.0000000000% | | |
| Total Value: | $449,400 | | |
| Tax Area: | 328 - 400-M-5 |
| CERFD | CURRENT EXPENSE REFUND 010 | 0.0000000000 | $449,400 | $449,400 | $0.00 | | |
| CURREXP | CURRENT EXPENSE 010 | 1.0175366760 | $449,400 | $449,400 | $457.28 | | |
| HUMNSERV | HUMAN SERVICES 119 | 0.0250000000 | $449,400 | $449,400 | $11.24 | | |
| SLDREL | SOLDIERS RELIEF 121 | 0.0155990005 | $449,400 | $449,400 | $7.01 | | |
| EMERGSER | EMS 147 | 0.3792580840 | $449,400 | $449,400 | $170.44 | | |
| EMSRFD | EMS REFUND 147 | 0.0000000000 | $449,400 | $449,400 | $0.00 | | |
| FD5EXP | FD #5 EXPENSE 689 | 1.2045331840 | $449,400 | $449,400 | $541.32 | | |
| RLBRFD | RURAL LIBRARY REFUND 623 | 0.0000000000 | $449,400 | $449,400 | $0.00 | | |
| RURALLIB | RURAL LIBRARY 623 | 0.3710609029 | $449,400 | $449,400 | $166.75 | | |
| PORTRFD | PORT REFUND 640 | 0.0000000000 | $449,400 | $449,400 | $0.00 | | |
| PORTWWGEN | PORT OF WW 640 | 0.2460186015 | $449,400 | $449,400 | $110.56 | | |
| SD400BOND | SD #400 BOND 793 | 0.0000000000 | $449,400 | $449,400 | $0.00 | | |
| SD400CAP | SD #400 CP 792 | 0.3443722657 | $449,400 | $449,400 | $154.76 | | |
| SD400GEN | SD #400 GENERAL 790 | 1.9278469916 | $449,400 | $449,400 | $866.37 | | |
| ST2 | STATE SCHOOL PART 2 600 | 0.8131451643 | $449,400 | $449,400 | $365.43 | | |
| STATESCHL | STATE SCHOOL 600 | 1.5158548041 | $449,400 | $449,400 | $681.23 | | |
| STREFUND | STATE REFUND LEVY 603 | 0.0000000000 | $449,400 | $449,400 | $0.00 | | |
| COROAD | COUNTY ROAD 115 | 1.6549953990 | $449,400 | $449,400 | $743.75 | | |
| CRPRD | COUNTY ROAD REFUND 115 | 0.0000000000 | $449,400 | $449,400 | $0.00 | | |
| | Total Tax Rate: | 9.5152210736 | | | | | |
| | | | | Taxes w/Current Exemptions: | $4,276.14 | | |
| | | | | Taxes w/o Exemptions: | $4,276.14 | | |
Improvement / Building
| Improvement #1: | RESIDENTIAL | State Code: | 11 | 1856.0 sqft | Value: | $374,400 |
| Exterior Wall: | VINYL | Foundation: | SLAB FOUNDATION | | Heating/Cooling: | WARM & COOLED AIR | Number of Bathrooms: | 2 | | Number of Bedrooms: | 3 | Plumbing: | 8 | | Roof Covering: | COMP SHINGLE |   |   |
|
| | Type | Description | Class CD | Sub Class CD | Year Built | Area |
| | MA | Main Area | 1 | 30 | 1992 | 1856.0 |
| | SI1 | SITE IMPROVEMENT | 1 | 30 | 1992 | 2.0 |
| | RPO | OPEN PORCH W/ROOF | 1 | 30 | 1992 | 12.0 |
| | RPO | OPEN PORCH W/ROOF | 1 | 30 | 1992 | 560.0 |
| | S1F | Single One Story Fireplace | 1 | 30 | 1992 | 1.0 |
| | POL2 | POLE BUILDING-CONCRETE | 1 | 30 | 1992 | 1512.0 |
Sketch
Property Image
Land
| 1 | RES 1 | Converted: Residential | 0.5565 | 24240.00 | 0.00 | 0.00 | 1.00 | $75,000 | $0 |
Roll Value History
| 2026 | N/A | N/A | N/A | N/A | N/A |
| 2025 | $374,400 | $75,000 | $0 | $449,400 | $449,400 |
| 2024 | $374,400 | $75,000 | $0 | $449,400 | $449,400 |
| 2023 | $374,400 | $75,000 | $0 | $449,400 | $449,400 |
| 2022 | $288,000 | $75,000 | $0 | $363,000 | $363,000 |
| 2021 | $230,400 | $75,000 | $0 | $305,400 | $305,400 |
| 2020 | $226,330 | $35,000 | $0 | $261,330 | $261,330 |
| 2019 | $226,330 | $35,000 | $0 | $261,330 | $261,330 |
| 2018 | $215,560 | $35,000 | $0 | $250,560 | $250,560 |
| 2017 | $195,960 | $35,000 | $0 | $230,960 | $230,960 |
| 2016 | $195,960 | $35,000 | $0 | $230,960 | $230,960 |
| 2015 | $195,960 | $35,000 | $0 | $230,960 | $230,960 |
| 2014 | $170,400 | $35,000 | $0 | $205,400 | $205,400 |
| 2013 | $170,400 | $35,000 | $0 | $205,400 | $205,400 |
| 2012 | $136,200 | $35,000 | $0 | $0 | $0 |
| 2011 | $136,200 | $35,000 | $0 | $0 | $0 |
| 2010 | $136,200 | $35,000 | $0 | $0 | $0 |
| 2009 | $163,200 | $25,000 | $0 | $0 | $0 |
| 2008 | $131,800 | $25,000 | $0 | $0 | $0 |
| 2007 | $131,800 | $25,000 | $0 | $0 | $0 |
Deed and Sales History
| 1 | 11/21/2022 | SWD | STATUTORY WARRANTY DEED | HAWORTH JACOB E | MUNSON JAMIE T | | | $470,000.00 | 145046 | 2022-09251 |
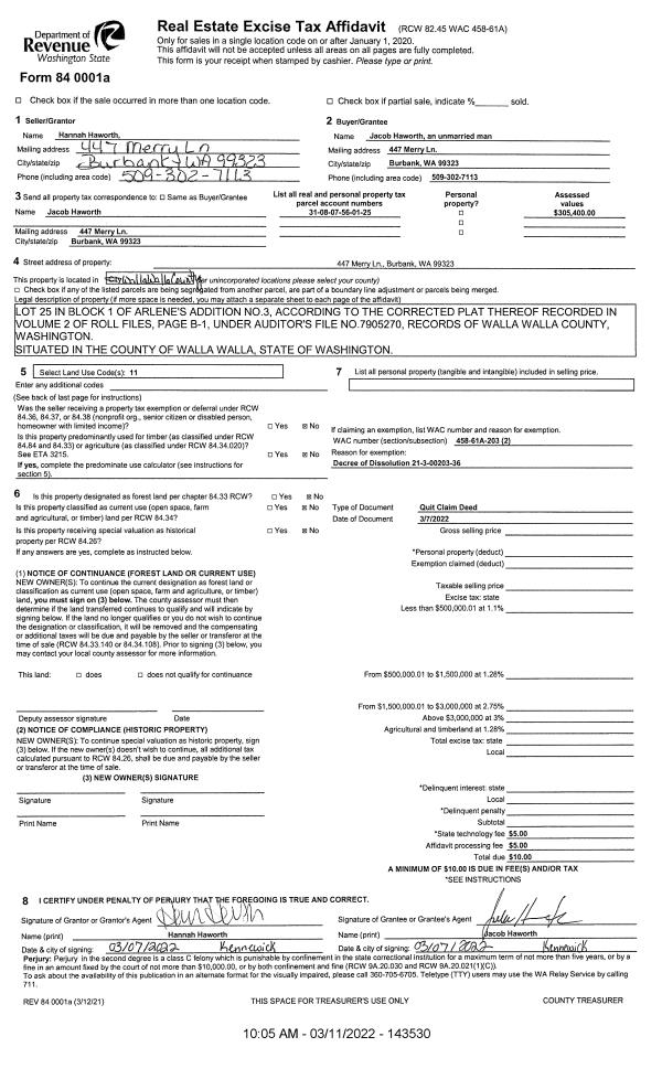
| 2 | 03/07/2022 | QCD | QUIT CLAIM DEED | HAWORTH HANNAH & JACOB E | HAWORTH JACOB E | | | $0.00 | 143530 | 2022-02064 |
| 3 | 12/20/2019 | SWD | STATUTORY WARRANTY DEED | TEETERS KEITH A | HAWORTH HANNAH & JACOB E | | | $310,000.00 | 138297 | 2019-10603 |
| 4 | 05/03/2013 | WARRANTY D | WARRANTY DEED | HIATT, ELDON & JAN | TEETERS, KEITH A | | | $220,000.00 | 123900 | 2013-04398 |
| 5 | 03/07/2013 | QCD | QUIT CLAIM DEED | HIATT, ELDON | HIATT, ELDON & JAN | | | $0.00 | 123551 | 2013-02093 |
| 6 | 07/06/1994 | WARRANTY D | WARRANTY DEED | | | | | $114,000.00 | 82044 | 2219-407908 |
Payout Agreement
| No payout information available.. |