Property
Account |
| Property ID: | 1821 | Abbreviated Legal Description: | ARLENES #3 LOT 24 BLK 1 |
| Parcel Number: | 310807560124 | Agent Code: | |
| Type: | Real | | |
| Tax Area: | 328 - 400-M-5 | Land Use Code | 11 |
| Open Space: | N | DFL | N |
| Historic Property: | N | Remodel Property: | N |
| Multi-Family Redevelopment: | N | | |
| Township: | 8 | Section: | 7 |
| Range: | 31 |
Location |
| Address: | 451 MERRY LN WA 99323 | Mapsco: | |
| Neighborhood: | G BURBANK SFR | Map ID: | |
| Neighborhood CD: | 214711 |
Owner |
| Name: | LESSARD JUSTIN DANIEL & HILLARY ANN | Owner ID: | 71313 |
| Mailing Address: | 451 MERRY LANE BURBANK, WA 99323 | % Ownership: | 100.0000000000% |
| | | Exemptions: | |
Taxes and Assessment Details
Property Tax Information as of
02/21/2026
Click on "Statement Details" to expand or collapse a tax statement.
* Please enter a valid date ** Please enter a valid date *
Statement Details |
| | TOTAL: | $0.00 | $0.00 | $0.00 | $0.00 | $0.00 | $0.00 |
|
| | $0.00 | $0.00 | $0.00 | $0.00 | $0.00 | $0.00 |
Values
| (+) Improvement Homesite Value: | + | $0 | |
| (+) Improvement Non-Homesite Value: | + | $235,450 | |
| (+) Land Homesite Value: | + | $0 | |
| (+) Land Non-Homesite Value: | + | $75,000 | |
| (+) Curr Use (HS): | + | $0 | $0 |
| (+) Curr Use (NHS): | + | $0 | $0 |
| | | -------------------------- | |
| (=) Market Value: | = | $310,450 | |
| (–) Productivity Loss: | – | $0 | |
| | | -------------------------- | |
| (=) Subtotal: | = | $310,450 | |
| (+) Senior Appraised Value: | + | $0 | |
| (+) Non-Senior Appraised Value: | + | $310,450 | |
| | | -------------------------- | |
| (=) Total Appraised Value: | = | $310,450 | |
| (–) Senior Exemption Loss: | – | $0 | |
| (–) Exemption Loss: | – | $0 | |
| | | -------------------------- | |
| (=) Taxable Value: | = | $310,450 | |
Taxing Jurisdiction
| Owner: | LESSARD JUSTIN DANIEL & HILLARY ANN | | |
| % Ownership: | 100.0000000000% | | |
| Total Value: | $310,450 | | |
| Tax Area: | 328 - 400-M-5 |
| CERFD | CURRENT EXPENSE REFUND 010 | 0.0000000000 | $310,450 | $310,450 | $0.00 | | |
| CURREXP | CURRENT EXPENSE 010 | 1.0175366760 | $310,450 | $310,450 | $315.89 | | |
| HUMNSERV | HUMAN SERVICES 119 | 0.0250000000 | $310,450 | $310,450 | $7.76 | | |
| SLDREL | SOLDIERS RELIEF 121 | 0.0155990005 | $310,450 | $310,450 | $4.84 | | |
| EMERGSER | EMS 147 | 0.3792580840 | $310,450 | $310,450 | $117.74 | | |
| EMSRFD | EMS REFUND 147 | 0.0000000000 | $310,450 | $310,450 | $0.00 | | |
| FD5EXP | FD #5 EXPENSE 689 | 1.2045331840 | $310,450 | $310,450 | $373.95 | | |
| RLBRFD | RURAL LIBRARY REFUND 623 | 0.0000000000 | $310,450 | $310,450 | $0.00 | | |
| RURALLIB | RURAL LIBRARY 623 | 0.3710609029 | $310,450 | $310,450 | $115.20 | | |
| PORTRFD | PORT REFUND 640 | 0.0000000000 | $310,450 | $310,450 | $0.00 | | |
| PORTWWGEN | PORT OF WW 640 | 0.2460186015 | $310,450 | $310,450 | $76.38 | | |
| SD400BOND | SD #400 BOND 793 | 0.0000000000 | $310,450 | $310,450 | $0.00 | | |
| SD400CAP | SD #400 CP 792 | 0.3443722657 | $310,450 | $310,450 | $106.91 | | |
| SD400GEN | SD #400 GENERAL 790 | 1.9278469916 | $310,450 | $310,450 | $598.50 | | |
| ST2 | STATE SCHOOL PART 2 600 | 0.8131451643 | $310,450 | $310,450 | $252.44 | | |
| STATESCHL | STATE SCHOOL 600 | 1.5158548041 | $310,450 | $310,450 | $470.60 | | |
| STREFUND | STATE REFUND LEVY 603 | 0.0000000000 | $310,450 | $310,450 | $0.00 | | |
| COROAD | COUNTY ROAD 115 | 1.6549953990 | $310,450 | $310,450 | $513.79 | | |
| CRPRD | COUNTY ROAD REFUND 115 | 0.0000000000 | $310,450 | $310,450 | $0.00 | | |
| | Total Tax Rate: | 9.5152210736 | | | | | |
| | | | | Taxes w/Current Exemptions: | $2,954.00 | | |
| | | | | Taxes w/o Exemptions: | $2,954.00 | | |
Improvement / Building
| Improvement #1: | RESIDENTIAL | State Code: | 11 | 1442.0 sqft | Value: | $235,450 |
| Exterior Wall: | PLYWOOD | Heating/Cooling: | WARM & COOLED AIR | | Number of Bathrooms: | 2 | Number of Bedrooms: | 3 | | Plumbing: | 9 | Roof Covering: | COMP SHINGLE |
|
| | Type | Description | Class CD | Sub Class CD | Year Built | Area |
| | MA | Main Area | 1 | 30 | 1993 | 1442.0 |
| | SI1 | SITE IMPROVEMENT | 1 | 30 | 1993 | 2.0 |
| | ATG | Attached Garage | 1 | 30 | 1993 | 552.0 |
| | RPS | PORCH W/STEPS,ROOF | 1 | 30 | 1993 | 20.0 |
| | POL1 | POLE BUILDING-GRAVEL | * | 30 | 2020 | 1344.0 |
Sketch
Property Image
Land
| 1 | RES 1 | Converted: Residential | 0.5702 | 24840.00 | 0.00 | 0.00 | 1.00 | $75,000 | $0 |
Roll Value History
| 2026 | N/A | N/A | N/A | N/A | N/A |
| 2025 | $235,450 | $75,000 | $0 | $310,450 | $310,450 |
| 2024 | $235,450 | $75,000 | $0 | $310,450 | $310,450 |
| 2023 | $235,450 | $75,000 | $0 | $310,450 | $310,450 |
| 2022 | $204,740 | $75,000 | $0 | $279,740 | $279,740 |
| 2021 | $163,790 | $75,000 | $0 | $238,790 | $238,790 |
| 2020 | $187,840 | $35,000 | $0 | $222,840 | $222,840 |
| 2019 | $165,330 | $35,000 | $0 | $200,330 | $200,330 |
| 2018 | $143,770 | $35,000 | $0 | $178,770 | $178,770 |
| 2017 | $136,920 | $35,000 | $0 | $171,920 | $171,920 |
| 2016 | $130,400 | $35,000 | $0 | $165,400 | $165,400 |
| 2015 | $124,190 | $35,000 | $0 | $159,190 | $159,190 |
| 2014 | $112,900 | $35,000 | $0 | $147,900 | $147,900 |
| 2013 | $112,900 | $35,000 | $0 | $147,900 | $147,900 |
| 2012 | $105,900 | $35,000 | $0 | $0 | $0 |
| 2011 | $99,200 | $35,000 | $0 | $0 | $0 |
| 2010 | $99,200 | $35,000 | $0 | $0 | $0 |
| 2009 | $120,100 | $25,000 | $0 | $0 | $0 |
| 2008 | $109,300 | $25,000 | $0 | $0 | $0 |
| 2007 | $109,300 | $25,000 | $0 | $0 | $0 |
Deed and Sales History
| 1 | 03/15/2022 | QCD | QUIT CLAIM DEED | LESSARD JUSTIN D | LESSARD JUSTIN DANIEL & HILLARY ANN | | | $0.00 | 143590 | 2022-02327 |
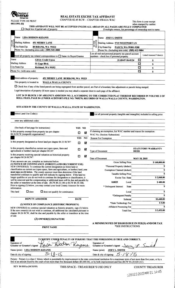
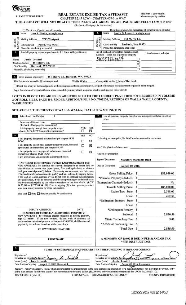
| 2 | 08/12/2016 | SWD | STATUTORY WARRANTY DEED | SMITH JOEY L | LESSARD JUSTIN D | | | $185,000.00 | 130825 | 2016-06435 |
| 3 | 05/21/2015 | SWD | STATUTORY WARRANTY DEED | KIZANIS LISA N | SMITH JOEY L | | | $160,000.00 | 128023 | 2015-04316 |
| 4 | 08/17/1999 | WARRANTY D | WARRANTY DEED | | | | | $118,000.00 | 93423 | 2889-909653 |
Payout Agreement
| No payout information available.. |