Property
Account |
| Property ID: | 1819 | Abbreviated Legal Description: | ARLENES #3 LOT 21 BLK 1 |
| Parcel Number: | 310807560121 | Agent Code: | |
| Type: | Real | | |
| Tax Area: | 328 - 400-M-5 | Land Use Code | 11 |
| Open Space: | N | DFL | N |
| Historic Property: | N | Remodel Property: | N |
| Multi-Family Redevelopment: | N | | |
| Township: | 8 | Section: | 7 |
| Range: | 31 |
Location |
| Address: | 591 EDITH ST WA 99323 | Mapsco: | |
| Neighborhood: | G BURBANK SFR | Map ID: | |
| Neighborhood CD: | 214711 |
Owner |
| Name: | TOLBERT KRAIG D & LAUERITTA J | Owner ID: | 58978 |
| Mailing Address: | 591 EDITH ST BURBANK, WA 99323 | % Ownership: | 100.0000000000% |
| | | Exemptions: | |
Taxes and Assessment Details
Values
| (+) Improvement Homesite Value: | + | $0 | |
| (+) Improvement Non-Homesite Value: | + | $267,470 | |
| (+) Land Homesite Value: | + | $0 | |
| (+) Land Non-Homesite Value: | + | $75,000 | |
| (+) Curr Use (HS): | + | $0 | $0 |
| (+) Curr Use (NHS): | + | $0 | $0 |
| | | -------------------------- | |
| (=) Market Value: | = | $342,470 | |
| (–) Productivity Loss: | – | $0 | |
| | | -------------------------- | |
| (=) Subtotal: | = | $342,470 | |
| (+) Senior Appraised Value: | + | $0 | |
| (+) Non-Senior Appraised Value: | + | $342,470 | |
| | | -------------------------- | |
| (=) Total Appraised Value: | = | $342,470 | |
| (–) Senior Exemption Loss: | – | $0 | |
| (–) Exemption Loss: | – | $0 | |
| | | -------------------------- | |
| (=) Taxable Value: | = | $342,470 | |
Taxing Jurisdiction
| Owner: | TOLBERT KRAIG D & LAUERITTA J | | |
| % Ownership: | 100.0000000000% | | |
| Total Value: | $342,470 | | |
| Tax Area: | 328 - 400-M-5 |
| CERFD | CURRENT EXPENSE REFUND 010 | 0.0000000000 | $342,470 | $342,470 | $0.00 | | |
| CURREXP | CURRENT EXPENSE 010 | 1.0175366760 | $342,470 | $342,470 | $348.48 | | |
| HUMNSERV | HUMAN SERVICES 119 | 0.0250000000 | $342,470 | $342,470 | $8.56 | | |
| SLDREL | SOLDIERS RELIEF 121 | 0.0155990005 | $342,470 | $342,470 | $5.34 | | |
| EMERGSER | EMS 147 | 0.3792580840 | $342,470 | $342,470 | $129.88 | | |
| EMSRFD | EMS REFUND 147 | 0.0000000000 | $342,470 | $342,470 | $0.00 | | |
| FD5EXP | FD #5 EXPENSE 689 | 1.2045331840 | $342,470 | $342,470 | $412.52 | | |
| RLBRFD | RURAL LIBRARY REFUND 623 | 0.0000000000 | $342,470 | $342,470 | $0.00 | | |
| RURALLIB | RURAL LIBRARY 623 | 0.3710609029 | $342,470 | $342,470 | $127.08 | | |
| PORTRFD | PORT REFUND 640 | 0.0000000000 | $342,470 | $342,470 | $0.00 | | |
| PORTWWGEN | PORT OF WW 640 | 0.2460186015 | $342,470 | $342,470 | $84.25 | | |
| SD400BOND | SD #400 BOND 793 | 0.0000000000 | $342,470 | $342,470 | $0.00 | | |
| SD400CAP | SD #400 CP 792 | 0.3443722657 | $342,470 | $342,470 | $117.94 | | |
| SD400GEN | SD #400 GENERAL 790 | 1.9278469916 | $342,470 | $342,470 | $660.23 | | |
| ST2 | STATE SCHOOL PART 2 600 | 0.8131451643 | $342,470 | $342,470 | $278.48 | | |
| STATESCHL | STATE SCHOOL 600 | 1.5158548041 | $342,470 | $342,470 | $519.13 | | |
| STREFUND | STATE REFUND LEVY 603 | 0.0000000000 | $342,470 | $342,470 | $0.00 | | |
| COROAD | COUNTY ROAD 115 | 1.6549953990 | $342,470 | $342,470 | $566.79 | | |
| CRPRD | COUNTY ROAD REFUND 115 | 0.0000000000 | $342,470 | $342,470 | $0.00 | | |
| | Total Tax Rate: | 9.5152210736 | | | | | |
| | | | | Taxes w/Current Exemptions: | $3,258.68 | | |
| | | | | Taxes w/o Exemptions: | $3,258.68 | | |
Improvement / Building
| Improvement #1: | RESIDENTIAL | State Code: | 11 | 1306.0 sqft | Value: | $267,470 |
| Exterior Wall: | VINYL | Heating/Cooling: | WARM & COOLED AIR | | Number of Bathrooms: | 2 | Number of Bedrooms: | 3 | | Plumbing: | 9 | Roof Covering: | COMP SHINGLE |
|
| | Type | Description | Class CD | Sub Class CD | Year Built | Area |
| | MA | Main Area | 1 | 30 | 1996 | 1306.0 |
| | SI1 | SITE IMPROVEMENT | 1 | 30 | 1996 | 1.5 |
| | ATG | Attached Garage | 1 | 30 | 1996 | 342.0 |
| | RPO | OPEN PORCH W/ROOF | 1 | 30 | 1996 | 112.0 |
| | CPC | COVERED CARPORT/PATIO | 1 | 30 | 1996 | 600.0 |
| | POL3 | POLE BUILDING-CON,ELEC,INSU | 1 | 30 | 2012 | 1200.0 |
| | SMP | SWIMMING POOL | 1 | 30 | 1996 | 1.0 |
Sketch
Property Image
Land
| 1 | RES 1 | Converted: Residential | 0.6012 | 26187.00 | 0.00 | 0.00 | 1.00 | $75,000 | $0 |
Roll Value History
| 2026 | N/A | N/A | N/A | N/A | N/A |
| 2025 | $320,970 | $75,000 | $0 | $395,970 | $395,970 |
| 2024 | $267,470 | $75,000 | $0 | $342,470 | $342,470 |
| 2023 | $267,470 | $75,000 | $0 | $342,470 | $342,470 |
| 2022 | $254,740 | $75,000 | $0 | $329,740 | $329,740 |
| 2021 | $221,510 | $75,000 | $0 | $296,510 | $296,510 |
| 2020 | $192,240 | $35,000 | $0 | $227,240 | $227,240 |
| 2019 | $192,240 | $35,000 | $0 | $227,240 | $227,240 |
| 2018 | $183,080 | $35,000 | $0 | $218,080 | $218,080 |
| 2017 | $152,570 | $35,000 | $0 | $187,570 | $187,570 |
| 2016 | $138,700 | $35,000 | $0 | $173,700 | $173,700 |
| 2015 | $138,700 | $35,000 | $0 | $173,700 | $173,700 |
| 2014 | $132,100 | $35,000 | $0 | $167,100 | $167,100 |
| 2013 | $132,100 | $35,000 | $0 | $167,100 | $167,100 |
| 2012 | $116,900 | $35,000 | $0 | $0 | $0 |
| 2011 | $99,600 | $35,000 | $0 | $0 | $0 |
| 2010 | $99,600 | $35,000 | $0 | $0 | $0 |
| 2009 | $131,700 | $25,000 | $0 | $0 | $0 |
| 2008 | $105,600 | $25,000 | $0 | $0 | $0 |
| 2007 | $105,600 | $25,000 | $0 | $0 | $0 |
Deed and Sales History
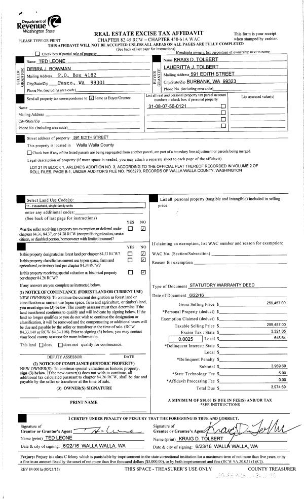
| 1 | 06/24/2016 | SWD | STATUTORY WARRANTY DEED | LEONE TED LIFE ESTATE | TOLBERT KRAIG D & LAUERITTA J | | | $259,457.00 | 130486 | 2016-04842 |
| 2 | 08/23/2013 | QCD | QUIT CLAIM DEED | BOWMAN, DEBRA J TRUSTEE | LEONE, TED LIFE ESTATE | | | $0.00 | 124459 | 2013-08666 |
| 3 | 06/09/2005 | WARRANTY D | WARRANTY DEED | BOWMAN, DEBRA J | BOWMAN, DEBRA J TRUSTEE | | | | 107685 | 2005-06901 |
| 4 | 01/14/2005 | QCD | QUIT CLAIM DEED | BOWMAN, THOMAS E ESTATE | BOWMAN, DEBRA J | | | | 106601 | 2005-00550 |
| 5 | 03/17/1997 | WARRANTY D | WARRANTY DEED | | | | | $109,000.00 | 87826 | 2509-702269 |
Payout Agreement
| No payout information available.. |