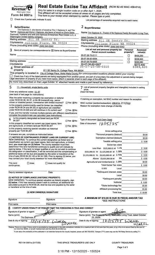
Property
Account |
| Property ID: | 18186 | Abbreviated Legal Description: | GRAVENSTEIN ADDN LOT 10 BLK 3 |
| Parcel Number: | 350725580310 | Agent Code: | |
| Type: | Real | | |
| Tax Area: | 75 - CP 250 | Land Use Code | 12 |
| Open Space: | N | DFL | N |
| Historic Property: | N | Remodel Property: | N |
| Multi-Family Redevelopment: | N | | |
| Township: | 7 | Section: | 25 |
| Range: | 35 |
Location |
| Address: | 258 NE DAMSON AVE WA 99324 | Mapsco: | |
| Neighborhood: | A Apartment | Map ID: | |
| Neighborhood CD: | 113021 |
Owner |
| Name: | ESPINOZA TITO JR & GLORIA | Owner ID: | 47107 |
| Mailing Address: | 811 SE SENTRY DR COLLEGE PLACE, WA 99324 | % Ownership: | 100.0000000000% |
| | | Exemptions: | |
Taxes and Assessment Details
Values
| (+) Improvement Homesite Value: | + | $0 | |
| (+) Improvement Non-Homesite Value: | + | $326,280 | |
| (+) Land Homesite Value: | + | $0 | |
| (+) Land Non-Homesite Value: | + | $54,600 | |
| (+) Curr Use (HS): | + | $0 | $0 |
| (+) Curr Use (NHS): | + | $0 | $0 |
| | | -------------------------- | |
| (=) Market Value: | = | $380,880 | |
| (–) Productivity Loss: | – | $0 | |
| | | -------------------------- | |
| (=) Subtotal: | = | $380,880 | |
| (+) Senior Appraised Value: | + | $0 | |
| (+) Non-Senior Appraised Value: | + | $380,880 | |
| | | -------------------------- | |
| (=) Total Appraised Value: | = | $380,880 | |
| (–) Senior Exemption Loss: | – | $0 | |
| (–) Exemption Loss: | – | $0 | |
| | | -------------------------- | |
| (=) Taxable Value: | = | $380,880 | |
Taxing Jurisdiction
| Owner: | ESPINOZA TITO JR & GLORIA | | |
| % Ownership: | 100.0000000000% | | |
| Total Value: | $380,880 | | |
| Tax Area: | 75 - CP 250 |
| CERFD | CURRENT EXPENSE REFUND 010 | 0.0000000000 | $380,880 | $380,880 | $0.00 | | |
| CURREXP | CURRENT EXPENSE 010 | 1.0175366760 | $380,880 | $380,880 | $387.56 | | |
| HUMNSERV | HUMAN SERVICES 119 | 0.0250000000 | $380,880 | $380,880 | $9.52 | | |
| SLDREL | SOLDIERS RELIEF 121 | 0.0155990005 | $380,880 | $380,880 | $5.94 | | |
| COLLPLBOND | C OF CP BOND 644 | 0.4374241808 | $380,880 | $380,880 | $166.61 | | |
| COLLPLGEN | CITY OF CP 632 | 1.4453819216 | $380,880 | $380,880 | $550.52 | | |
| EMERGSER | EMS 147 | 0.3792580840 | $380,880 | $380,880 | $144.45 | | |
| EMSRFD | EMS REFUND 147 | 0.0000000000 | $380,880 | $380,880 | $0.00 | | |
| RURALLIB | RURAL LIBRARY 623 | 0.3710609029 | $380,880 | $380,880 | $141.33 | | |
| PORTRFD | PORT REFUND 640 | 0.0000000000 | $380,880 | $380,880 | $0.00 | | |
| PORTWWGEN | PORT OF WW 640 | 0.2460186015 | $380,880 | $380,880 | $93.70 | | |
| SD250BOND | SD #250 BOND 773 | 1.4560608159 | $380,880 | $380,880 | $554.58 | | |
| SD250GEN | SD #250 GENERAL 770 | 2.3880724087 | $380,880 | $380,880 | $909.57 | | |
| ST2 | STATE SCHOOL PART 2 600 | 0.8131451643 | $380,880 | $380,880 | $309.71 | | |
| STATESCHL | STATE SCHOOL 600 | 1.5158548041 | $380,880 | $380,880 | $577.36 | | |
| STREFUND | STATE REFUND LEVY 603 | 0.0000000000 | $380,880 | $380,880 | $0.00 | | |
| | Total Tax Rate: | 10.1104125603 | | | | | |
| | | | | Taxes w/Current Exemptions: | $3,850.85 | | |
| | | | | Taxes w/o Exemptions: | $3,850.85 | | |
Improvement / Building
| Improvement #1: | RESIDENTIAL | State Code: | 12 | 3024.0 sqft | Value: | $326,280 |
| Exterior Wall: | HARDBOARD | Heating/Cooling: | REV-HEAT-PUMP-W/DUCT | | Number of Bathrooms: | 4.5 | Number of Bedrooms: | 6 | | Plumbing: | 24 | Roof Covering: | BUILT-UP ROCK |
|
| | Type | Description | Class CD | Sub Class CD | Year Built | Area |
| | MA | Main Area | 2 | 30 | 1984 | 3024.0 |
| | UPFL | Upper Floor (included in main area) | 2 | 30 | 1984 | 1512.0 |
| | SI1 | SITE IMPROVEMENT | 2 | 30 | 1984 | 3.0 |
| | WOD | Wood Deck | 2 | 30 | 1984 | 432.0 |
| | CPC | COVERED CARPORT/PATIO | 2 | 30 | 1984 | 648.0 |
| | OPS | OPEN PORCH W/STEPS | 2 | 30 | 1984 | 96.0 |
Sketch
Property Image
Land
| 1 | RES 1 | Converted: Residential | 0.2167 | 9438.00 | 0.00 | 0.00 | 1.00 | $54,600 | $0 |
Roll Value History
| 2026 | N/A | N/A | N/A | N/A | N/A |
| 2025 | $299,110 | $90,510 | $0 | $389,620 | $389,620 |
| 2024 | $343,800 | $54,600 | $0 | $398,400 | $398,400 |
| 2023 | $326,280 | $54,600 | $0 | $380,880 | $380,880 |
| 2022 | $326,280 | $54,600 | $0 | $380,880 | $380,880 |
| 2021 | $271,900 | $54,600 | $0 | $326,500 | $326,500 |
| 2020 | $169,910 | $54,600 | $0 | $224,510 | $224,510 |
| 2019 | $177,910 | $46,600 | $0 | $224,510 | $224,510 |
| 2018 | $169,440 | $46,600 | $0 | $216,040 | $216,040 |
| 2017 | $141,200 | $46,600 | $0 | $187,800 | $187,800 |
| 2016 | $141,200 | $46,600 | $0 | $187,800 | $187,800 |
| 2015 | $141,200 | $46,600 | $0 | $187,800 | $187,800 |
| 2014 | $141,200 | $46,600 | $0 | $187,800 | $187,800 |
| 2013 | $141,200 | $46,600 | $0 | $187,800 | $187,800 |
| 2012 | $141,200 | $46,600 | $0 | $0 | $0 |
| 2011 | $141,200 | $46,600 | $0 | $0 | $0 |
| 2010 | $141,200 | $46,600 | $0 | $0 | $0 |
| 2009 | $141,200 | $46,600 | $0 | $0 | $0 |
| 2008 | $127,100 | $24,200 | $0 | $0 | $0 |
| 2007 | $127,100 | $24,200 | $0 | $0 | $0 |
Deed and Sales History
| 1 | 12/15/2025 | QCD | QUIT CLAIM DEED | ESPINOZA TITO JR & GLORIA | ESPINOZA FAMILY REVOCABLE LIVING TRUST | | | | 150524 | 2025-07692 |
| 2 | 04/16/2021 | SWD | STATUTORY WARRANTY DEED | MC ADAMS RONALD K | ESPINOZA TITO JR & GLORIA | | | $400,000.00 | 141358 | 2021-04506 |
| 3 | 04/16/1984 | WARRANTY D | WARRANTY DEED | | | | | $11,500.00 | 0 | 1438-402631 |
Payout Agreement
| No payout information available.. |