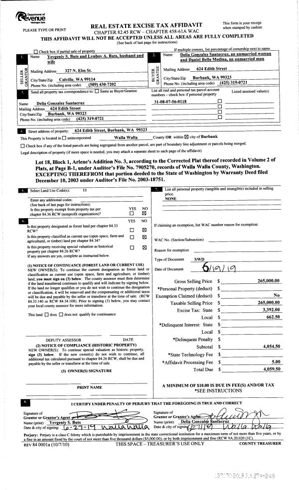
Property
Account |
| Property ID: | 1817 | Abbreviated Legal Description: | ARLENES #3 LOT 18 BLK 1 |
| Parcel Number: | 310807560118 | Agent Code: | |
| Type: | Real | | |
| Tax Area: | 328 - 400-M-5 | Land Use Code | 11 |
| Open Space: | N | DFL | N |
| Historic Property: | N | Remodel Property: | N |
| Multi-Family Redevelopment: | N | | |
| Township: | 8 | Section: | 7 |
| Range: | 31 |
Location |
| Address: | 624 EDITH ST WA 99323 | Mapsco: | |
| Neighborhood: | G BURBANK SFR | Map ID: | |
| Neighborhood CD: | 214711 |
Owner |
| Name: | SANTACRUZ DELIA GONZALEZ | Owner ID: | 65338 |
| Mailing Address: | DANIEL BELLO MEDINA 624 EDITH ST BURBANK, WA 99323 | % Ownership: | 100.0000000000% |
| | | Exemptions: | |
Taxes and Assessment Details
Property Tax Information as of
02/21/2026
Click on "Statement Details" to expand or collapse a tax statement.
* Please enter a valid date ** Please enter a valid date *
Statement Details |
| | TOTAL: | $0.00 | $0.00 | $0.00 | $0.00 | $0.00 | $0.00 |
|
| | $0.00 | $0.00 | $0.00 | $0.00 | $0.00 | $0.00 |
Values
| (+) Improvement Homesite Value: | + | $0 | |
| (+) Improvement Non-Homesite Value: | + | $252,280 | |
| (+) Land Homesite Value: | + | $0 | |
| (+) Land Non-Homesite Value: | + | $75,000 | |
| (+) Curr Use (HS): | + | $0 | $0 |
| (+) Curr Use (NHS): | + | $0 | $0 |
| | | -------------------------- | |
| (=) Market Value: | = | $327,280 | |
| (–) Productivity Loss: | – | $0 | |
| | | -------------------------- | |
| (=) Subtotal: | = | $327,280 | |
| (+) Senior Appraised Value: | + | $0 | |
| (+) Non-Senior Appraised Value: | + | $327,280 | |
| | | -------------------------- | |
| (=) Total Appraised Value: | = | $327,280 | |
| (–) Senior Exemption Loss: | – | $0 | |
| (–) Exemption Loss: | – | $0 | |
| | | -------------------------- | |
| (=) Taxable Value: | = | $327,280 | |
Taxing Jurisdiction
| Owner: | SANTACRUZ DELIA GONZALEZ | | |
| % Ownership: | 100.0000000000% | | |
| Total Value: | $327,280 | | |
| Tax Area: | 328 - 400-M-5 |
| CERFD | CURRENT EXPENSE REFUND 010 | 0.0000000000 | $327,280 | $327,280 | $0.00 | | |
| CURREXP | CURRENT EXPENSE 010 | 1.0175366760 | $327,280 | $327,280 | $333.02 | | |
| HUMNSERV | HUMAN SERVICES 119 | 0.0250000000 | $327,280 | $327,280 | $8.18 | | |
| SLDREL | SOLDIERS RELIEF 121 | 0.0155990005 | $327,280 | $327,280 | $5.11 | | |
| EMERGSER | EMS 147 | 0.3792580840 | $327,280 | $327,280 | $124.12 | | |
| EMSRFD | EMS REFUND 147 | 0.0000000000 | $327,280 | $327,280 | $0.00 | | |
| FD5EXP | FD #5 EXPENSE 689 | 1.2045331840 | $327,280 | $327,280 | $394.22 | | |
| RLBRFD | RURAL LIBRARY REFUND 623 | 0.0000000000 | $327,280 | $327,280 | $0.00 | | |
| RURALLIB | RURAL LIBRARY 623 | 0.3710609029 | $327,280 | $327,280 | $121.44 | | |
| PORTRFD | PORT REFUND 640 | 0.0000000000 | $327,280 | $327,280 | $0.00 | | |
| PORTWWGEN | PORT OF WW 640 | 0.2460186015 | $327,280 | $327,280 | $80.52 | | |
| SD400BOND | SD #400 BOND 793 | 0.0000000000 | $327,280 | $327,280 | $0.00 | | |
| SD400CAP | SD #400 CP 792 | 0.3443722657 | $327,280 | $327,280 | $112.71 | | |
| SD400GEN | SD #400 GENERAL 790 | 1.9278469916 | $327,280 | $327,280 | $630.95 | | |
| ST2 | STATE SCHOOL PART 2 600 | 0.8131451643 | $327,280 | $327,280 | $266.13 | | |
| STATESCHL | STATE SCHOOL 600 | 1.5158548041 | $327,280 | $327,280 | $496.11 | | |
| STREFUND | STATE REFUND LEVY 603 | 0.0000000000 | $327,280 | $327,280 | $0.00 | | |
| COROAD | COUNTY ROAD 115 | 1.6549953990 | $327,280 | $327,280 | $541.65 | | |
| CRPRD | COUNTY ROAD REFUND 115 | 0.0000000000 | $327,280 | $327,280 | $0.00 | | |
| | Total Tax Rate: | 9.5152210736 | | | | | |
| | | | | Taxes w/Current Exemptions: | $3,114.16 | | |
| | | | | Taxes w/o Exemptions: | $3,114.16 | | |
Improvement / Building
| Improvement #1: | RESIDENTIAL | State Code: | 11 | 1324.0 sqft | Value: | $252,280 |
| Exterior Wall: | PLYWOOD | Heating/Cooling: | HEAT PUMP | | Number of Bathrooms: | 2 | Number of Bedrooms: | 5 | | Plumbing: | 9 | Roof Covering: | COMP SHINGLE |
|
| | Type | Description | Class CD | Sub Class CD | Year Built | Area |
| | MA | Main Area | 1 | 30 | 1996 | 1324.0 |
| | SI1 | SITE IMPROVEMENT | 1 | 30 | 1996 | 2.5 |
| | ATG | Attached Garage | 1 | 30 | 1996 | 264.0 |
| | CPC | COVERED CARPORT/PATIO | 1 | 30 | 1996 | 80.0 |
| | RPO | OPEN PORCH W/ROOF | 1 | 30 | 1996 | 100.0 |
| | SWP | Solid Wall Porch | 1 | 30 | 1996 | 220.0 |
Sketch
Property Image
Land
| 1 | RES 1 | Converted: Residential | 0.0000 | 0.00 | 0.00 | 0.00 | 1.00 | $75,000 | $0 |
Roll Value History
| 2026 | N/A | N/A | N/A | N/A | N/A |
| 2025 | $277,510 | $75,000 | $0 | $352,510 | $352,510 |
| 2024 | $252,280 | $75,000 | $0 | $327,280 | $327,280 |
| 2023 | $252,280 | $75,000 | $0 | $327,280 | $327,280 |
| 2022 | $219,380 | $75,000 | $0 | $294,380 | $294,380 |
| 2021 | $175,500 | $75,000 | $0 | $250,500 | $250,500 |
| 2020 | $102,100 | $35,000 | $0 | $137,100 | $137,100 |
| 2019 | $102,100 | $35,000 | $0 | $137,100 | $137,100 |
| 2018 | $97,240 | $35,000 | $0 | $132,240 | $132,240 |
| 2017 | $97,240 | $35,000 | $0 | $132,240 | $132,240 |
| 2016 | $92,610 | $35,000 | $0 | $127,610 | $127,610 |
| 2015 | $92,610 | $35,000 | $0 | $127,610 | $127,610 |
| 2014 | $88,200 | $35,000 | $0 | $123,200 | $123,200 |
| 2013 | $88,200 | $35,000 | $0 | $123,200 | $123,200 |
| 2012 | $88,200 | $35,000 | $0 | $0 | $0 |
| 2011 | $72,100 | $35,000 | $0 | $0 | $0 |
| 2010 | $72,100 | $35,000 | $0 | $0 | $0 |
| 2009 | $110,700 | $25,000 | $0 | $0 | $0 |
| 2008 | $92,500 | $25,000 | $0 | $0 | $0 |
| 2007 | $92,500 | $25,000 | $0 | $0 | $0 |
Deed and Sales History
| 1 | 06/27/2019 | SWD | STATUTORY WARRANTY DEED | BUTS YEVGENIY & LYUBOV | SANTACRUZ DELIA GONZALEZ | | | $265,000.00 | 137170 | 2019-04568 |
| 2 | 12/10/2003 | WARRANTY D | WARRANTY DEED | BUTS, YEVGENIY & LYUBOV | BUTS, YEVGENIY & LYUBOV | | | $500.00 | 103691 | 2003-18751 |
| 3 | 10/10/1996 | WARRANTY D | WARRANTY DEED | | | | | $98,000.00 | 87007 | 2459-610230 |
Payout Agreement
| No payout information available.. |