Property
Account |
| Property ID: | 18124 | Abbreviated Legal Description: | BLALOCK ORCHARDS BLK 16 LOT 2 OF S/P 1996-09312 (PTN TAX 7 WITHIN LOT 1) |
| Parcel Number: | 350726521620 | Agent Code: | |
| Type: | Real | | |
| Tax Area: | 311 - 250-4 | Land Use Code | 11 |
| Open Space: | N | DFL | N |
| Historic Property: | N | Remodel Property: | N |
| Multi-Family Redevelopment: | N | | |
| Township: | 7 | Section: | 26 |
| Range: | 35 |
Location |
| Address: | 871 GRASSI CT WA 99324 | Mapsco: | |
| Neighborhood: | A SFR Rural/City Infl | Map ID: | |
| Neighborhood CD: | 313012 |
Owner |
| Name: | MILLER JOSHUA G & AMBER B | Owner ID: | 39607 |
| Mailing Address: | 871 GRASSI CT WALLA WALLA, WA 99362 | % Ownership: | 100.0000000000% |
| | | Exemptions: | |
Taxes and Assessment Details
Values
| (+) Improvement Homesite Value: | + | $0 | |
| (+) Improvement Non-Homesite Value: | + | $501,590 | |
| (+) Land Homesite Value: | + | $0 | |
| (+) Land Non-Homesite Value: | + | $130,000 | |
| (+) Curr Use (HS): | + | $0 | $0 |
| (+) Curr Use (NHS): | + | $0 | $0 |
| | | -------------------------- | |
| (=) Market Value: | = | $631,590 | |
| (–) Productivity Loss: | – | $0 | |
| | | -------------------------- | |
| (=) Subtotal: | = | $631,590 | |
| (+) Senior Appraised Value: | + | $0 | |
| (+) Non-Senior Appraised Value: | + | $631,590 | |
| | | -------------------------- | |
| (=) Total Appraised Value: | = | $631,590 | |
| (–) Senior Exemption Loss: | – | $0 | |
| (–) Exemption Loss: | – | $0 | |
| | | -------------------------- | |
| (=) Taxable Value: | = | $631,590 | |
Taxing Jurisdiction
| Owner: | MILLER JOSHUA G & AMBER B | | |
| % Ownership: | 100.0000000000% | | |
| Total Value: | $631,590 | | |
| Tax Area: | 311 - 250-4 |
| CERFD | CURRENT EXPENSE REFUND 010 | 0.0000000000 | $631,590 | $631,590 | $0.00 | | |
| CURREXP | CURRENT EXPENSE 010 | 1.0175366760 | $631,590 | $631,590 | $642.67 | | |
| HUMNSERV | HUMAN SERVICES 119 | 0.0250000000 | $631,590 | $631,590 | $15.79 | | |
| SLDREL | SOLDIERS RELIEF 121 | 0.0155990005 | $631,590 | $631,590 | $9.85 | | |
| EMERGSER | EMS 147 | 0.3792580840 | $631,590 | $631,590 | $239.54 | | |
| EMSRFD | EMS REFUND 147 | 0.0000000000 | $631,590 | $631,590 | $0.00 | | |
| FD4EXP | FD #4 EXPENSE 686 | 0.8836993059 | $631,590 | $631,590 | $558.14 | | |
| RLBRFD | RURAL LIBRARY REFUND 623 | 0.0000000000 | $631,590 | $631,590 | $0.00 | | |
| RURALLIB | RURAL LIBRARY 623 | 0.3710609029 | $631,590 | $631,590 | $234.36 | | |
| PORTRFD | PORT REFUND 640 | 0.0000000000 | $631,590 | $631,590 | $0.00 | | |
| PORTWWGEN | PORT OF WW 640 | 0.2460186015 | $631,590 | $631,590 | $155.38 | | |
| SD250BOND | SD #250 BOND 773 | 1.4560608159 | $631,590 | $631,590 | $919.63 | | |
| SD250GEN | SD #250 GENERAL 770 | 2.3880724087 | $631,590 | $631,590 | $1,508.28 | | |
| ST2 | STATE SCHOOL PART 2 600 | 0.8131451643 | $631,590 | $631,590 | $513.57 | | |
| STATESCHL | STATE SCHOOL 600 | 1.5158548041 | $631,590 | $631,590 | $957.40 | | |
| STREFUND | STATE REFUND LEVY 603 | 0.0000000000 | $631,590 | $631,590 | $0.00 | | |
| COROAD | COUNTY ROAD 115 | 1.6549953990 | $631,590 | $631,590 | $1,045.28 | | |
| CRPRD | COUNTY ROAD REFUND 115 | 0.0000000000 | $631,590 | $631,590 | $0.00 | | |
| | Total Tax Rate: | 10.7663011628 | | | | | |
| | | | | Taxes w/Current Exemptions: | $6,799.89 | | |
| | | | | Taxes w/o Exemptions: | $6,799.89 | | |
Improvement / Building
| Improvement #1: | RESIDENTIAL | State Code: | 11 | 2920.0 sqft | Value: | $501,590 |
| Exterior Wall: | PLYWOOD | Heating/Cooling: | WARM & COOLED AIR | | Number of Bathrooms: | 2.5 | Number of Bedrooms: | 4 | | Plumbing: | 12 | Roof Covering: | COMP SHINGLE |
|
| | Type | Description | Class CD | Sub Class CD | Year Built | Area |
| | MA | Main Area | 2 | 35 | 2008 | 2920.0 |
| | RPC | OPEN PORCH W/ROOF , CEILED | 2 | 35 | 0 | 140.0 |
| | SI1 | SITE IMPROVEMENT | 2 | 35 | 0 | 5.0 |
| | ATG | Attached Garage | 2 | 35 | 2008 | 576.0 |
| | UPFL | Upper Floor (included in main area) | 2 | 35 | 2008 | 1484.0 |
Sketch
Property Image
Land
| 1 | RES 1 | Converted: Residential | 1.0000 | 0.00 | 0.00 | 0.00 | 1.00 | $130,000 | $0 |
Roll Value History
| 2026 | N/A | N/A | N/A | N/A | N/A |
| 2025 | $501,590 | $130,000 | $0 | $631,590 | $631,590 |
| 2024 | $501,590 | $130,000 | $0 | $631,590 | $631,590 |
| 2023 | $501,590 | $130,000 | $0 | $631,590 | $631,590 |
| 2022 | $501,590 | $130,000 | $0 | $631,590 | $631,590 |
| 2021 | $324,460 | $75,000 | $0 | $399,460 | $399,460 |
| 2020 | $294,960 | $75,000 | $0 | $369,960 | $369,960 |
| 2019 | $294,960 | $75,000 | $0 | $369,960 | $369,960 |
| 2018 | $256,490 | $75,000 | $0 | $331,490 | $331,490 |
| 2017 | $197,300 | $75,000 | $0 | $272,300 | $272,300 |
| 2016 | $197,300 | $75,000 | $0 | $272,300 | $272,300 |
| 2015 | $199,500 | $75,000 | $0 | $274,500 | $274,500 |
| 2014 | $234,700 | $75,000 | $0 | $309,700 | $309,700 |
| 2013 | $234,700 | $75,000 | $0 | $309,700 | $309,700 |
| 2012 | $234,700 | $75,000 | $0 | $0 | $0 |
| 2011 | $234,700 | $75,000 | $0 | $0 | $0 |
| 2010 | $251,100 | $75,000 | $0 | $0 | $0 |
| 2009 | $84,500 | $45,000 | $0 | $0 | $0 |
| 2008 | $0 | $4,000 | $0 | $0 | $0 |
| 2007 | $0 | $4,000 | $0 | $0 | $0 |
Deed and Sales History
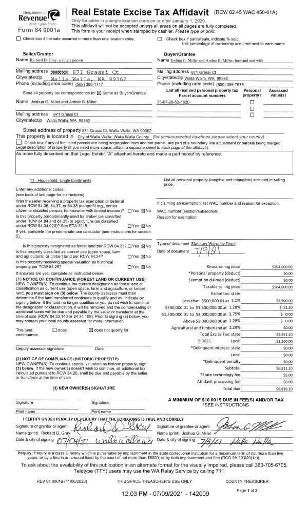
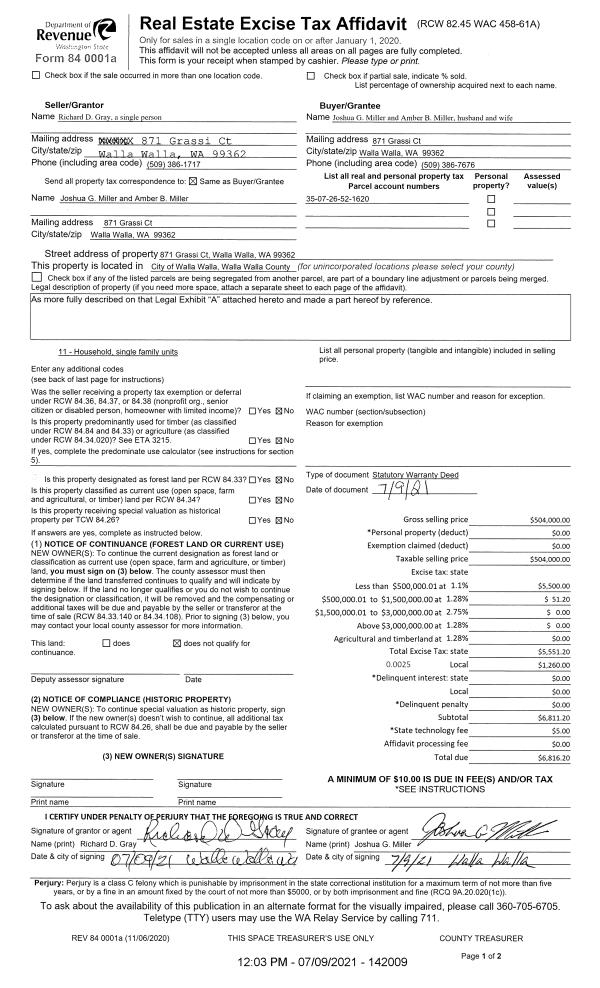
| 1 | 07/09/2021 | SWD | STATUTORY WARRANTY DEED | GRAY RICHARD D | MILLER JOSHUA G & AMBER B | | | $504,000.00 | 142009 | 2021-08322 |
| 2 | 04/04/2014 | SWD | STATUTORY WARRANTY DEED | KEENAN JENNIFER | GRAY RICHARD D | | | $273,000.00 | 125677 | 2014-02337 |
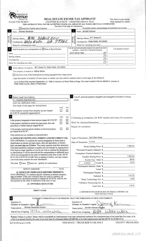
| 3 | 01/22/2014 | QCD | QUIT CLAIM DEED | KEENAN JENNIFER K | KEENAN JENNIFER | | | $7,500.00 | 125305 | 2014-00502 |
| 4 | 10/29/2007 | WARRANTY D | WARRANTY DEED | JAUSORO, ELEANOR | KEENAN, JENNIFER K | | | $130,000.00 | 113966 | 2007-12504 |
| 5 | 05/25/2007 | WARRANTY D | WARRANTY DEED | "GRASSI, JOSEPHINE ESTATE~OF" | JAUSORO ELEANOR | | | | 112902 | 2007-05957 |
Payout Agreement
| No payout information available.. |