Property
Account |
| Property ID: | 18119 | Abbreviated Legal Description: | VALLEY HOMES LOT 1 OF SHORT PLAT (SLY PTN LOT 62 LESS SLY STRIPS) |
| Parcel Number: | 360722560236 | Agent Code: | |
| Type: | Real | | |
| Tax Area: | 6 - OL-140-F-FB | Land Use Code | 11 |
| Open Space: | N | DFL | N |
| Historic Property: | N | Remodel Property: | N |
| Multi-Family Redevelopment: | N | | |
| Township: | 7 | Section: | 22 |
| Range: | 36 |
Location |
| Address: | 158 BUSH ST WA 99362 | Mapsco: | |
| Neighborhood: | A SFR | Map ID: | |
| Neighborhood CD: | 413011 |
Owner |
| Name: | VIOLETTE LEO O 3RD | Owner ID: | 69291 |
| Mailing Address: | 158 BUSH ST WALLA WALLA, WA 99362 | % Ownership: | 100.0000000000% |
| | | Exemptions: | |
Taxes and Assessment Details
Property Tax Information as of
02/21/2026
Click on "Statement Details" to expand or collapse a tax statement.
* Please enter a valid date ** Please enter a valid date *
Statement Details |
| | TOTAL: | $0.00 | $0.00 | $0.00 | $0.00 | $0.00 | $0.00 |
|
| | $0.00 | $0.00 | $0.00 | $0.00 | $0.00 | $0.00 |
Values
| (+) Improvement Homesite Value: | + | $0 | |
| (+) Improvement Non-Homesite Value: | + | $349,200 | |
| (+) Land Homesite Value: | + | $0 | |
| (+) Land Non-Homesite Value: | + | $64,240 | |
| (+) Curr Use (HS): | + | $0 | $0 |
| (+) Curr Use (NHS): | + | $0 | $0 |
| | | -------------------------- | |
| (=) Market Value: | = | $413,440 | |
| (–) Productivity Loss: | – | $0 | |
| | | -------------------------- | |
| (=) Subtotal: | = | $413,440 | |
| (+) Senior Appraised Value: | + | $0 | |
| (+) Non-Senior Appraised Value: | + | $413,440 | |
| | | -------------------------- | |
| (=) Total Appraised Value: | = | $413,440 | |
| (–) Senior Exemption Loss: | – | $0 | |
| (–) Exemption Loss: | – | $0 | |
| | | -------------------------- | |
| (=) Taxable Value: | = | $413,440 | |
Taxing Jurisdiction
| Owner: | VIOLETTE LEO O 3RD | | |
| % Ownership: | 100.0000000000% | | |
| Total Value: | $413,440 | | |
| Tax Area: | 6 - OL-140-F-FB |
| CERFD | CURRENT EXPENSE REFUND 010 | 0.0000000000 | $413,440 | $413,440 | $0.00 | | |
| CURREXP | CURRENT EXPENSE 010 | 1.0175366760 | $413,440 | $413,440 | $420.69 | | |
| HUMNSERV | HUMAN SERVICES 119 | 0.0250000000 | $413,440 | $413,440 | $10.34 | | |
| SLDREL | SOLDIERS RELIEF 121 | 0.0155990005 | $413,440 | $413,440 | $6.45 | | |
| EMERGSER | EMS 147 | 0.3792580840 | $413,440 | $413,440 | $156.80 | | |
| EMSRFD | EMS REFUND 147 | 0.0000000000 | $413,440 | $413,440 | $0.00 | | |
| PORTRFD | PORT REFUND 640 | 0.0000000000 | $413,440 | $413,440 | $0.00 | | |
| PORTWWGEN | PORT OF WW 640 | 0.2460186015 | $413,440 | $413,440 | $101.71 | | |
| SD140BOND | SD #140 BOND 764 | 0.8342371393 | $413,440 | $413,440 | $344.91 | | |
| SD140GEN | SD #140 GENERAL 760 | 2.0646500647 | $413,440 | $413,440 | $853.61 | | |
| ST2 | STATE SCHOOL PART 2 600 | 0.8131451643 | $413,440 | $413,440 | $336.19 | | |
| STATESCHL | STATE SCHOOL 600 | 1.5158548041 | $413,440 | $413,440 | $626.72 | | |
| STREFUND | STATE REFUND LEVY 603 | 0.0000000000 | $413,440 | $413,440 | $0.00 | | |
| CWWBOND | C OF WW BOND 643 | 0.2760494372 | $413,440 | $413,440 | $114.13 | | |
| CWWGEN | CITY OF WW 631 | 1.6100204973 | $413,440 | $413,440 | $665.65 | | |
| CWWRFD | CITY OF WALLA WALLA REFUND 631 | 0.0000000000 | $413,440 | $413,440 | $0.00 | | |
| | Total Tax Rate: | 8.7973694689 | | | | | |
| | | | | Taxes w/Current Exemptions: | $3,637.20 | | |
| | | | | Taxes w/o Exemptions: | $3,637.20 | | |
Improvement / Building
| Improvement #1: | RESIDENTIAL | State Code: | 11 | 1710.0 sqft | Value: | $349,200 |
| Exterior Wall: | HARDBOARD | Heating/Cooling: | HEAT PUMP | | Number of Bathrooms: | 2 | Number of Bedrooms: | 4 | | Plumbing: | 10 | Roof Covering: | COMP SHINGLE |
|
| | Type | Description | Class CD | Sub Class CD | Year Built | Area |
| | MA | Main Area | 1 | 35 | 2007 | 1710.0 |
| | SI1 | SITE IMPROVEMENT | 1 | 35 | 0 | 4.0 |
| | RPO | OPEN PORCH W/ROOF | 1 | 35 | 2007 | 32.0 |
| | ATG | Attached Garage | 1 | 35 | 2007 | 462.0 |
Sketch
Property Image
Land
| 1 | RES 1 | Converted: Residential | 0.1843 | 8030.00 | 0.00 | 0.00 | 1.00 | $64,240 | $0 |
Roll Value History
| 2026 | N/A | N/A | N/A | N/A | N/A |
| 2025 | $366,660 | $64,240 | $0 | $430,900 | $430,900 |
| 2024 | $349,200 | $64,240 | $0 | $413,440 | $413,440 |
| 2023 | $349,200 | $64,240 | $0 | $413,440 | $413,440 |
| 2022 | $325,580 | $42,160 | $0 | $367,740 | $367,740 |
| 2021 | $295,980 | $42,160 | $0 | $338,140 | $338,140 |
| 2020 | $184,990 | $42,160 | $0 | $227,150 | $227,150 |
| 2019 | $184,990 | $42,160 | $0 | $227,150 | $227,150 |
| 2018 | $168,170 | $42,160 | $0 | $210,330 | $210,330 |
| 2017 | $168,170 | $42,160 | $0 | $210,330 | $210,330 |
| 2016 | $168,170 | $32,100 | $0 | $200,270 | $200,270 |
| 2015 | $163,280 | $32,100 | $0 | $195,380 | $195,380 |
| 2014 | $155,500 | $32,100 | $0 | $187,600 | $187,600 |
| 2013 | $155,500 | $32,100 | $0 | $187,600 | $187,600 |
| 2012 | $176,300 | $32,100 | $0 | $0 | $0 |
| 2011 | $154,000 | $45,000 | $0 | $0 | $0 |
| 2010 | $154,000 | $45,000 | $0 | $0 | $0 |
| 2009 | $164,500 | $45,000 | $0 | $0 | $0 |
| 2008 | $84,900 | $32,100 | $0 | $0 | $0 |
| 2007 | $155,500 | $32,100 | $0 | $0 | $0 |
Deed and Sales History
| 1 | 04/30/2021 | SWD | STATUTORY WARRANTY DEED | TAYLOR ZACHARY N & HANNA A | VIOLETTE LEO O 3RD | | | $380,000.00 | 141448 | 2021-05086 |
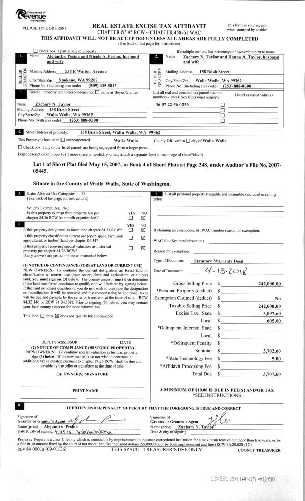
| 2 | 04/27/2018 | SWD | STATUTORY WARRANTY DEED | PESINA ALEJANDRO & NICOLE A | TAYLOR ZACHARY N & HANNA A | | | $242,000.00 | 134580 | 2018-03321 |
| 3 | 11/01/2007 | WARRANTY D | WARRANTY DEED | SONOMA HOMES LLC | PESINA, ALEJANDRO & NICOLE A | | | $216,000.00 | 114008 | 2007-12661 |
| 4 | 05/19/2007 | WARRANTY D | WARRANTY DEED | MAIURI, MARCUS M & ANGIE M | SONOMA HOMES LLC | | | $55,000.00 | 112829 | 2007-05579 |
Payout Agreement
| No payout information available.. |