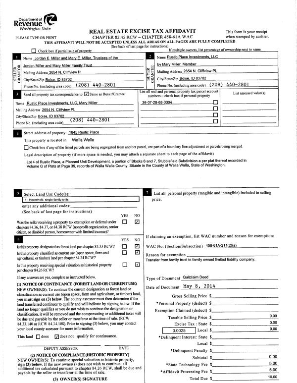
Property
Account |
| Property ID: | 18107 | Abbreviated Legal Description: | RUSTIC PLACE LOT 4 |
| Parcel Number: | 360728680004 | Agent Code: | |
| Type: | Real | | |
| Tax Area: | 1 - OL-140-F | Land Use Code | 11 |
| Open Space: | N | DFL | N |
| Historic Property: | N | Remodel Property: | N |
| Multi-Family Redevelopment: | N | | |
| Township: | 7 | Section: | 28 |
| Range: | 36 |
Location |
| Address: | 1845 RUSTIC PL WA 99362 | Mapsco: | |
| Neighborhood: | G Res | Map ID: | |
| Neighborhood CD: | 614011 |
Owner |
| Name: | HALL DEWIGHT LLOYD SR & SHARON DARLENE | Owner ID: | 57109 |
| Mailing Address: | 1845 RUSTIC PL WALLA WALA, WA 99362 | % Ownership: | 100.0000000000% |
| | | Exemptions: | |
Taxes and Assessment Details
Values
| (+) Improvement Homesite Value: | + | $0 | |
| (+) Improvement Non-Homesite Value: | + | $315,870 | |
| (+) Land Homesite Value: | + | $0 | |
| (+) Land Non-Homesite Value: | + | $64,000 | |
| (+) Curr Use (HS): | + | $0 | $0 |
| (+) Curr Use (NHS): | + | $0 | $0 |
| | | -------------------------- | |
| (=) Market Value: | = | $379,870 | |
| (–) Productivity Loss: | – | $0 | |
| | | -------------------------- | |
| (=) Subtotal: | = | $379,870 | |
| (+) Senior Appraised Value: | + | $0 | |
| (+) Non-Senior Appraised Value: | + | $379,870 | |
| | | -------------------------- | |
| (=) Total Appraised Value: | = | $379,870 | |
| (–) Senior Exemption Loss: | – | $0 | |
| (–) Exemption Loss: | – | $0 | |
| | | -------------------------- | |
| (=) Taxable Value: | = | $379,870 | |
Taxing Jurisdiction
| Owner: | HALL DEWIGHT LLOYD SR & SHARON DARLENE | | |
| % Ownership: | 100.0000000000% | | |
| Total Value: | $379,870 | | |
| Tax Area: | 1 - OL-140-F |
| CERFD | CURRENT EXPENSE REFUND 010 | 0.0000000000 | $379,870 | $379,870 | $0.00 | | |
| CURREXP | CURRENT EXPENSE 010 | 1.0175366760 | $379,870 | $379,870 | $386.53 | | |
| HUMNSERV | HUMAN SERVICES 119 | 0.0250000000 | $379,870 | $379,870 | $9.50 | | |
| SLDREL | SOLDIERS RELIEF 121 | 0.0155990005 | $379,870 | $379,870 | $5.93 | | |
| EMERGSER | EMS 147 | 0.3792580840 | $379,870 | $379,870 | $144.07 | | |
| EMSRFD | EMS REFUND 147 | 0.0000000000 | $379,870 | $379,870 | $0.00 | | |
| PORTRFD | PORT REFUND 640 | 0.0000000000 | $379,870 | $379,870 | $0.00 | | |
| PORTWWGEN | PORT OF WW 640 | 0.2460186015 | $379,870 | $379,870 | $93.46 | | |
| SD140BOND | SD #140 BOND 764 | 0.8342371393 | $379,870 | $379,870 | $316.90 | | |
| SD140GEN | SD #140 GENERAL 760 | 2.0646500647 | $379,870 | $379,870 | $784.30 | | |
| ST2 | STATE SCHOOL PART 2 600 | 0.8131451643 | $379,870 | $379,870 | $308.89 | | |
| STATESCHL | STATE SCHOOL 600 | 1.5158548041 | $379,870 | $379,870 | $575.83 | | |
| STREFUND | STATE REFUND LEVY 603 | 0.0000000000 | $379,870 | $379,870 | $0.00 | | |
| CWWBOND | C OF WW BOND 643 | 0.2760494372 | $379,870 | $379,870 | $104.86 | | |
| CWWGEN | CITY OF WW 631 | 1.6100204973 | $379,870 | $379,870 | $611.60 | | |
| CWWRFD | CITY OF WALLA WALLA REFUND 631 | 0.0000000000 | $379,870 | $379,870 | $0.00 | | |
| | Total Tax Rate: | 8.7973694689 | | | | | |
| | | | | Taxes w/Current Exemptions: | $3,341.87 | | |
| | | | | Taxes w/o Exemptions: | $3,341.87 | | |
Improvement / Building
| Improvement #1: | RESIDENTIAL | State Code: | 11 | 1440.0 sqft | Value: | $315,870 |
| Exterior Wall: | PLYWOOD | Heating/Cooling: | WARM & COOLED AIR | | Number of Bathrooms: | 2 | Number of Bedrooms: | 3 | | Plumbing: | 9 | Roof Covering: | COMP SHINGLE |
|
| | Type | Description | Class CD | Sub Class CD | Year Built | Area |
| | MA | Main Area | 1 | 30 | 1971 | 1440.0 |
| | SI1 | SITE IMPROVEMENT | 1 | 30 | 1971 | 3.0 |
| | ATG | Attached Garage | 1 | 30 | 1971 | 576.0 |
| | RPC | OPEN PORCH W/ROOF , CEILED | 1 | 30 | 1971 | 117.0 |
Sketch
Property Image
Land
| 1 | RES 1 | Converted: Residential | 0.1469 | 6400.00 | 0.00 | 0.00 | 1.00 | $64,000 | $0 |
Roll Value History
| 2026 | N/A | N/A | N/A | N/A | N/A |
| 2025 | $289,280 | $125,000 | $0 | $414,280 | $414,280 |
| 2024 | $347,460 | $64,000 | $0 | $411,460 | $411,460 |
| 2023 | $315,870 | $64,000 | $0 | $379,870 | $379,870 |
| 2022 | $287,160 | $52,800 | $0 | $339,960 | $339,960 |
| 2021 | $205,110 | $52,800 | $0 | $257,910 | $257,910 |
| 2020 | $164,090 | $52,800 | $0 | $216,890 | $216,890 |
| 2019 | $164,090 | $52,800 | $0 | $216,890 | $216,890 |
| 2018 | $156,200 | $38,400 | $0 | $194,600 | $194,600 |
| 2017 | $135,830 | $38,400 | $0 | $174,230 | $174,230 |
| 2016 | $123,480 | $38,400 | $0 | $161,880 | $161,880 |
| 2015 | $137,200 | $38,400 | $0 | $175,600 | $175,600 |
| 2014 | $171,500 | $38,400 | $0 | $209,900 | $209,900 |
| 2013 | $171,500 | $38,400 | $0 | $209,900 | $209,900 |
| 2012 | $156,200 | $38,400 | $0 | $0 | $0 |
| 2011 | $156,200 | $38,400 | $0 | $0 | $0 |
| 2010 | $138,500 | $38,400 | $0 | $0 | $0 |
| 2009 | $158,200 | $38,400 | $0 | $0 | $0 |
| 2008 | $158,200 | $38,400 | $0 | $0 | $0 |
| 2007 | $116,800 | $19,200 | $0 | $0 | $0 |
Deed and Sales History
| 1 | 07/22/2015 | SWD | STATUTORY WARRANTY DEED | RUSTIC PLACE INVESTMENTS LLC | HALL DEWIGHT LLOYD SR & SHARON DARLENE | | | $160,000.00 | 128506 | 2015-06554 |
| 2 | 05/09/2014 | QCD | QUIT CLAIM DEED | MILLER JORDAN & MARY | RUSTIC PLACE INVESTMENTS LLC | | | | 125866 | 2014-03195 |
| 3 | 02/11/2011 | QCD | QUIT CLAIM DEED | MILLER, JORDAN & MARY | MILLER, JORDAN & MARY | | | | 119733 | 2011-01384 |
| 4 | 11/15/2007 | WARRANTY D | WARRANTY DEED | BRUSH, JAMES N | MILLER, JORDAN & MARY | | | $221,000.00 | 114094 | 2007-13179 |
| 5 | 01/14/2005 | WARRANTY D | WARRANTY DEED | "BRUSH, JAMES N" | | | | | 0 | CC#03-30-00222-9 |
| 6 | 05/14/2004 | QCD | QUIT CLAIM DEED | BRUSH, BONNIE K | BRUSH, JAMES N | | | | 104762 | 2004-05226 |
| 7 | 05/14/2004 | WARRANTY D | WARRANTY DEED | GATEWOOD, W PAUL | BRUSH, JAMES N | | | $134,250.00 | 104761 | 2004-05225 |
| 8 | 12/10/2001 | WARRANTY D | WARRANTY DEED | | | | | $100,000.00 | 98522 | 3240-113502 |
Payout Agreement
| No payout information available.. |