Property
Account |
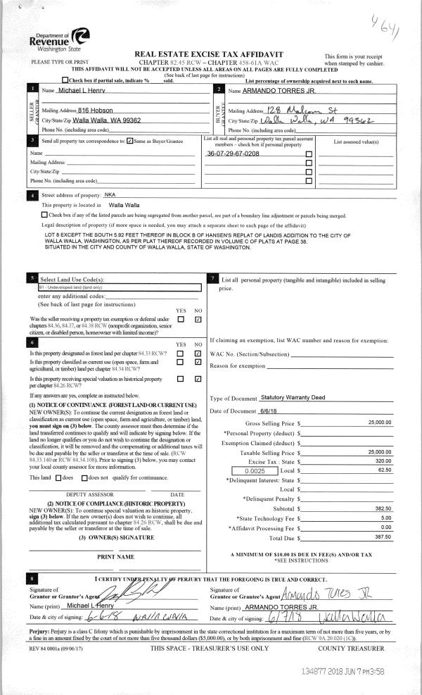
| Property ID: | 18101 | Abbreviated Legal Description: | HANSENS REPLAT LESS S 5.92' LOT 8 BLK B |
| Parcel Number: | 360729670208 | Agent Code: | |
| Type: | Real | | |
| Tax Area: | 1 - OL-140-F | Land Use Code | 18 |
| Open Space: | N | DFL | N |
| Historic Property: | N | Remodel Property: | N |
| Multi-Family Redevelopment: | N | | |
| Township: | 7 | Section: | 29 |
| Range: | 36 |
Location |
| Address: | 444 S 8TH AVE WA 99362 | Mapsco: | |
| Neighborhood: | F Land Only | Map ID: | |
| Neighborhood CD: | 512091 |
Owner |
| Name: | TORRES ARMANDO JR | Owner ID: | 60196 |
| Mailing Address: | 128 MALCOLM ST WALLA WALLA, WA 99362 | % Ownership: | 100.0000000000% |
| | | Exemptions: | |
Taxes and Assessment Details
Values
| (+) Improvement Homesite Value: | + | $0 | |
| (+) Improvement Non-Homesite Value: | + | $269,460 | |
| (+) Land Homesite Value: | + | $0 | |
| (+) Land Non-Homesite Value: | + | $23,100 | |
| (+) Curr Use (HS): | + | $0 | $0 |
| (+) Curr Use (NHS): | + | $0 | $0 |
| | | -------------------------- | |
| (=) Market Value: | = | $292,560 | |
| (–) Productivity Loss: | – | $0 | |
| | | -------------------------- | |
| (=) Subtotal: | = | $292,560 | |
| (+) Senior Appraised Value: | + | $0 | |
| (+) Non-Senior Appraised Value: | + | $292,560 | |
| | | -------------------------- | |
| (=) Total Appraised Value: | = | $292,560 | |
| (–) Senior Exemption Loss: | – | $0 | |
| (–) Exemption Loss: | – | $0 | |
| | | -------------------------- | |
| (=) Taxable Value: | = | $292,560 | |
Taxing Jurisdiction
| Owner: | TORRES ARMANDO JR | | |
| % Ownership: | 100.0000000000% | | |
| Total Value: | $292,560 | | |
| Tax Area: | 1 - OL-140-F |
| CERFD | CURRENT EXPENSE REFUND 010 | 0.0000000000 | $292,560 | $292,560 | $0.00 | | |
| CURREXP | CURRENT EXPENSE 010 | 1.0175366760 | $292,560 | $292,560 | $297.69 | | |
| HUMNSERV | HUMAN SERVICES 119 | 0.0250000000 | $292,560 | $292,560 | $7.31 | | |
| SLDREL | SOLDIERS RELIEF 121 | 0.0155990005 | $292,560 | $292,560 | $4.56 | | |
| EMERGSER | EMS 147 | 0.3792580840 | $292,560 | $292,560 | $110.96 | | |
| EMSRFD | EMS REFUND 147 | 0.0000000000 | $292,560 | $292,560 | $0.00 | | |
| PORTRFD | PORT REFUND 640 | 0.0000000000 | $292,560 | $292,560 | $0.00 | | |
| PORTWWGEN | PORT OF WW 640 | 0.2460186015 | $292,560 | $292,560 | $71.98 | | |
| SD140BOND | SD #140 BOND 764 | 0.8342371393 | $292,560 | $292,560 | $244.06 | | |
| SD140GEN | SD #140 GENERAL 760 | 2.0646500647 | $292,560 | $292,560 | $604.03 | | |
| ST2 | STATE SCHOOL PART 2 600 | 0.8131451643 | $292,560 | $292,560 | $237.89 | | |
| STATESCHL | STATE SCHOOL 600 | 1.5158548041 | $292,560 | $292,560 | $443.48 | | |
| STREFUND | STATE REFUND LEVY 603 | 0.0000000000 | $292,560 | $292,560 | $0.00 | | |
| CWWBOND | C OF WW BOND 643 | 0.2760494372 | $292,560 | $292,560 | $80.76 | | |
| CWWGEN | CITY OF WW 631 | 1.6100204973 | $292,560 | $292,560 | $471.03 | | |
| CWWRFD | CITY OF WALLA WALLA REFUND 631 | 0.0000000000 | $292,560 | $292,560 | $0.00 | | |
| | Total Tax Rate: | 8.7973694689 | | | | | |
| | | | | Taxes w/Current Exemptions: | $2,573.75 | | |
| | | | | Taxes w/o Exemptions: | $2,573.75 | | |
Improvement / Building
| Improvement #1: | RESIDENTIAL | State Code: | 18 | 2430.0 sqft | Value: | $269,460 |
| Exterior Wall: | SIDING | Heating/Cooling: | MINI-SPLIT HP SYSTEM | | Number of Bathrooms: | 2 | Number of Bedrooms: | 3 | | Plumbing: | 12 | Roof Covering: | COMP SHINGLE |
|
| | Type | Description | Class CD | Sub Class CD | Year Built | Area |
| | MA | Main Area | 2 | 30 | 2022 | 2430.0 |
| | BIG | Built In Garage | 2 | 30 | 2022 | 1170.0 |
| | SI1 | SITE IMPROVEMENT | 2 | 30 | 2022 | 4.0 |
| | RPS | PORCH W/STEPS,ROOF | 2 | 30 | 2022 | 72.0 |
| | UPFL | Upper Floor (included in main area) | 2 | 30 | 2022 | 1800.0 |
Sketch
Property Image
Land
| 1 | RES 1 | Converted: Residential | 0.1010 | 4400.00 | 0.00 | 0.00 | 1.00 | $23,100 | $0 |
Roll Value History
| 2026 | N/A | N/A | N/A | N/A | N/A |
| 2025 | $360,400 | $39,600 | $0 | $400,000 | $400,000 |
| 2024 | $360,400 | $39,600 | $0 | $400,000 | $400,000 |
| 2023 | $269,460 | $23,100 | $0 | $292,560 | $292,560 |
| 2022 | $10,000 | $23,100 | $0 | $33,100 | $33,100 |
| 2021 | $0 | $23,100 | $0 | $23,100 | $23,100 |
| 2020 | $0 | $23,100 | $0 | $23,100 | $23,100 |
| 2019 | $0 | $23,100 | $0 | $23,100 | $23,100 |
| 2018 | $0 | $23,100 | $0 | $23,100 | $23,100 |
| 2017 | $0 | $16,600 | $0 | $16,600 | $16,600 |
| 2016 | $0 | $16,600 | $0 | $16,600 | $16,600 |
| 2015 | $0 | $16,600 | $0 | $16,600 | $16,600 |
| 2014 | $0 | $16,600 | $0 | $16,600 | $16,600 |
| 2013 | $0 | $16,600 | $0 | $16,600 | $16,600 |
| 2012 | $0 | $3,700 | $0 | $0 | $0 |
| 2011 | $0 | $3,700 | $0 | $0 | $0 |
| 2010 | $0 | $3,700 | $0 | $0 | $0 |
| 2009 | $0 | $3,700 | $0 | $0 | $0 |
| 2008 | $0 | $3,700 | $0 | $0 | $0 |
| 2007 | $0 | $8,800 | $0 | $0 | $0 |
Deed and Sales History
| 1 | 06/07/2018 | SWD | STATUTORY WARRANTY DEED | HENRY MICHAEL L | TORRES ARMANDO JR | | | $25,000.00 | 134877 | 2018-04577 |
| 2 | 10/30/2007 | QCD | QUIT CLAIM DEED | HENRY, HARVEY & PATTSY | HENRY, MICHAEL L | | | | 113989 | 2007-12570 |
| 3 | 10/30/2007 | QCD | QUIT CLAIM DEED | HENRY, HARVEY R & PATTSY | HENRY MICHAEL L | | | | 113984 | 2007-12573 |
| 4 | 03/06/1984 | WARRANTY D | WARRANTY DEED | | | | | $16,000.00 | 0 | 1428-401569 |
|   | |
Payout Agreement
| No payout information available.. |