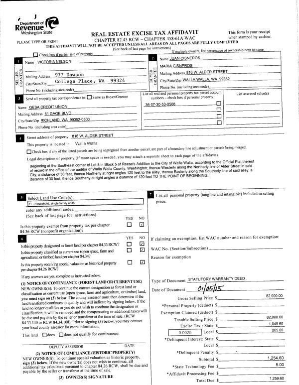
Property
Account |
| Property ID: | 18085 | Abbreviated Legal Description: | REESES TAX 2 LOT 8 BLK 5 |
| Parcel Number: | 360730530508 | Agent Code: | |
| Type: | Real | | |
| Tax Area: | 1 - OL-140-F | Land Use Code | 11 |
| Open Space: | N | DFL | N |
| Historic Property: | N | Remodel Property: | N |
| Multi-Family Redevelopment: | N | | |
| Township: | 7 | Section: | 30 |
| Range: | 36 |
Location |
| Address: | 816 W ALDER ST WA 99362 | Mapsco: | |
| Neighborhood: | A-SFR | Map ID: | |
| Neighborhood CD: | 313011 |
Owner |
| Name: | CISNEROS JUAN & MARIA | Owner ID: | 56031 |
| Mailing Address: | 816 W ALDER ST WALLA WALLA, WA 99362 | % Ownership: | 100.0000000000% |
| | | Exemptions: | |
Taxes and Assessment Details
Values
| (+) Improvement Homesite Value: | + | $106,910 | |
| (+) Improvement Non-Homesite Value: | + | $0 | |
| (+) Land Homesite Value: | + | $29,700 | |
| (+) Land Non-Homesite Value: | + | $0 | |
| (+) Curr Use (HS): | + | $0 | $0 |
| (+) Curr Use (NHS): | + | $0 | $0 |
| | | -------------------------- | |
| (=) Market Value: | = | $136,610 | |
| (–) Productivity Loss: | – | $0 | |
| | | -------------------------- | |
| (=) Subtotal: | = | $136,610 | |
| (+) Senior Appraised Value: | + | $0 | |
| (+) Non-Senior Appraised Value: | + | $136,610 | |
| | | -------------------------- | |
| (=) Total Appraised Value: | = | $136,610 | |
| (–) Senior Exemption Loss: | – | $0 | |
| (–) Exemption Loss: | – | $0 | |
| | | -------------------------- | |
| (=) Taxable Value: | = | $136,610 | |
Taxing Jurisdiction
| Owner: | CISNEROS JUAN & MARIA | | |
| % Ownership: | 100.0000000000% | | |
| Total Value: | $136,610 | | |
| Tax Area: | 1 - OL-140-F |
| CERFD | CURRENT EXPENSE REFUND 010 | 0.0000000000 | $136,610 | $136,610 | $0.00 | | |
| CURREXP | CURRENT EXPENSE 010 | 1.0175366760 | $136,610 | $136,610 | $139.01 | | |
| HUMNSERV | HUMAN SERVICES 119 | 0.0250000000 | $136,610 | $136,610 | $3.42 | | |
| SLDREL | SOLDIERS RELIEF 121 | 0.0155990005 | $136,610 | $136,610 | $2.13 | | |
| EMERGSER | EMS 147 | 0.3792580840 | $136,610 | $136,610 | $51.81 | | |
| EMSRFD | EMS REFUND 147 | 0.0000000000 | $136,610 | $136,610 | $0.00 | | |
| PORTRFD | PORT REFUND 640 | 0.0000000000 | $136,610 | $136,610 | $0.00 | | |
| PORTWWGEN | PORT OF WW 640 | 0.2460186015 | $136,610 | $136,610 | $33.61 | | |
| SD140BOND | SD #140 BOND 764 | 0.8342371393 | $136,610 | $136,610 | $113.97 | | |
| SD140GEN | SD #140 GENERAL 760 | 2.0646500647 | $136,610 | $136,610 | $282.05 | | |
| ST2 | STATE SCHOOL PART 2 600 | 0.8131451643 | $136,610 | $136,610 | $111.08 | | |
| STATESCHL | STATE SCHOOL 600 | 1.5158548041 | $136,610 | $136,610 | $207.08 | | |
| STREFUND | STATE REFUND LEVY 603 | 0.0000000000 | $136,610 | $136,610 | $0.00 | | |
| CWWBOND | C OF WW BOND 643 | 0.2760494372 | $136,610 | $136,610 | $37.71 | | |
| CWWGEN | CITY OF WW 631 | 1.6100204973 | $136,610 | $136,610 | $219.94 | | |
| CWWRFD | CITY OF WALLA WALLA REFUND 631 | 0.0000000000 | $136,610 | $136,610 | $0.00 | | |
| | Total Tax Rate: | 8.7973694689 | | | | | |
| | | | | Taxes w/Current Exemptions: | $1,201.81 | | |
| | | | | Taxes w/o Exemptions: | $1,201.81 | | |
Improvement / Building
| Improvement #1: | RESIDENTIAL | State Code: | 11 | 720.0 sqft | Value: | $106,910 |
| Exterior Wall: | VINYL | Heating/Cooling: | BASEBOARD ELECTRIC | | Number of Bathrooms: | 1 | Number of Bedrooms: | 2 | | Plumbing: | 7 | Roof Covering: | COMP SHINGLE |
|
| | Type | Description | Class CD | Sub Class CD | Year Built | Area |
| | MA | Main Area | 1 | 20 | 1997 | 720.0 |
| | SI1 | SITE IMPROVEMENT | 1 | 20 | 1997 | 1.0 |
| | CPC | COVERED CARPORT/PATIO | 1 | 20 | 1997 | 36.0 |
| | UTST | Utility Storage Shed | 1 | 20 | 1997 | 96.0 |
| | WDR | WOOD DECK W/ROOF | 1 | 20 | 2020 | 100.0 |
Sketch
Property Image
Land
| 1 | RES 1 | Converted: Residential | 0.0826 | 3600.00 | 0.00 | 0.00 | 1.00 | $29,700 | $0 |
Roll Value History
| 2026 | N/A | N/A | N/A | N/A | N/A |
| 2025 | $106,910 | $29,700 | $0 | $136,610 | $136,610 |
| 2024 | $106,910 | $29,700 | $0 | $136,610 | $136,610 |
| 2023 | $106,910 | $29,700 | $0 | $136,610 | $136,610 |
| 2022 | $97,190 | $29,700 | $0 | $126,890 | $126,890 |
| 2021 | $108,110 | $15,300 | $0 | $123,410 | $123,410 |
| 2020 | $90,090 | $15,300 | $0 | $105,390 | $105,390 |
| 2019 | $90,090 | $15,300 | $0 | $105,390 | $105,390 |
| 2018 | $69,300 | $15,300 | $0 | $84,600 | $84,600 |
| 2017 | $66,000 | $15,300 | $0 | $81,300 | $81,300 |
| 2016 | $60,000 | $15,300 | $0 | $75,300 | $75,300 |
| 2015 | $55,000 | $15,300 | $0 | $70,300 | $70,300 |
| 2014 | $55,000 | $15,300 | $0 | $70,300 | $70,300 |
| 2013 | $55,000 | $15,300 | $0 | $70,300 | $0 |
| 2012 | $55,000 | $15,300 | $0 | $0 | $0 |
| 2011 | $55,000 | $15,300 | $0 | $0 | $0 |
| 2010 | $64,200 | $15,300 | $0 | $0 | $0 |
| 2009 | $86,700 | $6,300 | $0 | $0 | $0 |
| 2008 | $41,400 | $6,300 | $0 | $0 | $0 |
| 2007 | $41,400 | $6,300 | $0 | $0 | $0 |
Deed and Sales History
| 1 | 01/06/2015 | SWD | STATUTORY WARRANTY DEED | NELSON VICTORIA | CISNEROS JUAN & MARIA | | | $82,000.00 | 127226 | 2015-00105 |
| 2 | 07/21/2008 | WARRANTY D | WARRANTY DEED | NELSON, GLEN W ESTATE OF | NELSON, VICTORIA | | | | 115361 | 2008-07482 |
| 3 | 10/24/1997 | WARRANTY D | WARRANTY DEED | | | | | $45,000.00 | 89209 | 2589-710359 |
Payout Agreement
| No payout information available.. |