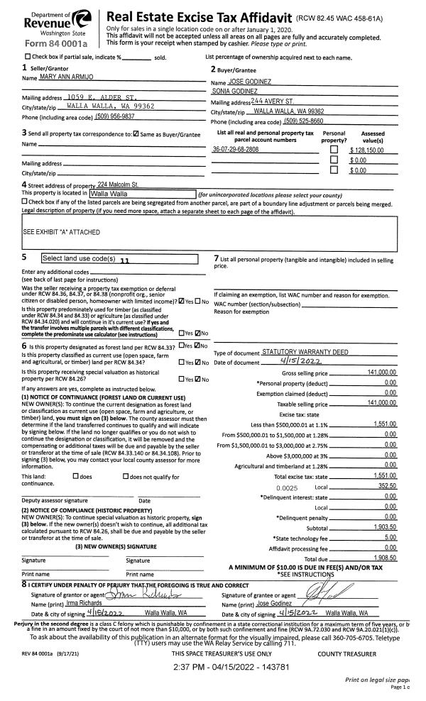
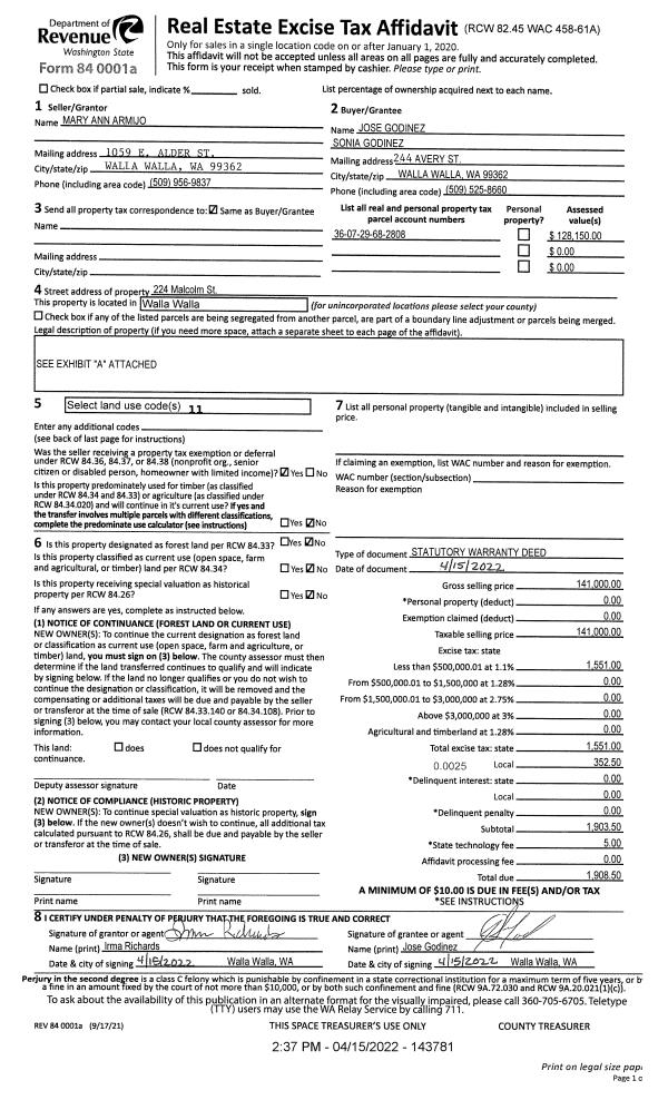
Property
Account |
| Property ID: | 18083 | Abbreviated Legal Description: | HENDERSON LOT 8 BLK A |
| Parcel Number: | 360729682808 | Agent Code: | |
| Type: | Real | | |
| Tax Area: | 1 - OL-140-F | Land Use Code | 11 |
| Open Space: | N | DFL | N |
| Historic Property: | N | Remodel Property: | N |
| Multi-Family Redevelopment: | N | | |
| Township: | 7 | Section: | 29 |
| Range: | 36 |
Location |
| Address: | 224 MALCOLM ST WA 99362 | Mapsco: | |
| Neighborhood: | Fair Res | Map ID: | |
| Neighborhood CD: | 612011 |
Owner |
| Name: | JIMENEZ KATHIA | Owner ID: | 72662 |
| Mailing Address: | 224 MALCOLM ST WALLA WALLA, WA 99362 | % Ownership: | 100.0000000000% |
| | | Exemptions: | |
Taxes and Assessment Details
Values
| (+) Improvement Homesite Value: | + | $158,370 | |
| (+) Improvement Non-Homesite Value: | + | $0 | |
| (+) Land Homesite Value: | + | $40,000 | |
| (+) Land Non-Homesite Value: | + | $0 | |
| (+) Curr Use (HS): | + | $0 | $0 |
| (+) Curr Use (NHS): | + | $0 | $0 |
| | | -------------------------- | |
| (=) Market Value: | = | $198,370 | |
| (–) Productivity Loss: | – | $0 | |
| | | -------------------------- | |
| (=) Subtotal: | = | $198,370 | |
| (+) Senior Appraised Value: | + | $0 | |
| (+) Non-Senior Appraised Value: | + | $198,370 | |
| | | -------------------------- | |
| (=) Total Appraised Value: | = | $198,370 | |
| (–) Senior Exemption Loss: | – | $0 | |
| (–) Exemption Loss: | – | $0 | |
| | | -------------------------- | |
| (=) Taxable Value: | = | $198,370 | |
Taxing Jurisdiction
| Owner: | JIMENEZ KATHIA | | |
| % Ownership: | 100.0000000000% | | |
| Total Value: | $198,370 | | |
| Tax Area: | 1 - OL-140-F |
| CERFD | CURRENT EXPENSE REFUND 010 | 0.0000000000 | $198,370 | $198,370 | $0.00 | | |
| CURREXP | CURRENT EXPENSE 010 | 1.0175366760 | $198,370 | $198,370 | $201.85 | | |
| HUMNSERV | HUMAN SERVICES 119 | 0.0250000000 | $198,370 | $198,370 | $4.96 | | |
| SLDREL | SOLDIERS RELIEF 121 | 0.0155990005 | $198,370 | $198,370 | $3.09 | | |
| EMERGSER | EMS 147 | 0.3792580840 | $198,370 | $198,370 | $75.23 | | |
| EMSRFD | EMS REFUND 147 | 0.0000000000 | $198,370 | $198,370 | $0.00 | | |
| PORTRFD | PORT REFUND 640 | 0.0000000000 | $198,370 | $198,370 | $0.00 | | |
| PORTWWGEN | PORT OF WW 640 | 0.2460186015 | $198,370 | $198,370 | $48.80 | | |
| SD140BOND | SD #140 BOND 764 | 0.8342371393 | $198,370 | $198,370 | $165.49 | | |
| SD140GEN | SD #140 GENERAL 760 | 2.0646500647 | $198,370 | $198,370 | $409.56 | | |
| ST2 | STATE SCHOOL PART 2 600 | 0.8131451643 | $198,370 | $198,370 | $161.30 | | |
| STATESCHL | STATE SCHOOL 600 | 1.5158548041 | $198,370 | $198,370 | $300.70 | | |
| STREFUND | STATE REFUND LEVY 603 | 0.0000000000 | $198,370 | $198,370 | $0.00 | | |
| CWWBOND | C OF WW BOND 643 | 0.2760494372 | $198,370 | $198,370 | $54.76 | | |
| CWWGEN | CITY OF WW 631 | 1.6100204973 | $198,370 | $198,370 | $319.38 | | |
| CWWRFD | CITY OF WALLA WALLA REFUND 631 | 0.0000000000 | $198,370 | $198,370 | $0.00 | | |
| | Total Tax Rate: | 8.7973694689 | | | | | |
| | | | | Taxes w/Current Exemptions: | $1,745.12 | | |
| | | | | Taxes w/o Exemptions: | $1,745.12 | | |
Improvement / Building
| Improvement #1: | RESIDENTIAL | State Code: | 11 | 708.0 sqft | Value: | $158,370 |
| Exterior Wall: | SIDING | Heating/Cooling: | FORCED AIR | | Number of Bathrooms: | 1 | Number of Bedrooms: | 2 | | Plumbing: | 7 | Roof Covering: | COMP SHINGLE |
|
| | Type | Description | Class CD | Sub Class CD | Year Built | Area |
| | MA | Main Area | 1 | 25 | 1906 | 708.0 |
| | SI1 | SITE IMPROVEMENT | 1 | 25 | 1906 | 1.0 |
| | BASE | BASEMENT | 1 | 25 | 1906 | 81.0 |
| | SWP | Solid Wall Porch | 1 | 25 | 1906 | 72.0 |
| | WDR | WOOD DECK W/ROOF | 1 | 25 | 1906 | 100.0 |
| | BNV | BUILDING NO VALUE | 1 | 25 | 1906 | 168.0 |
Sketch
Property Image
Land
| 1 | RES 1 | Converted: Residential | 0.1148 | 5000.00 | 0.00 | 0.00 | 1.00 | $40,000 | $0 |
Roll Value History
| 2026 | N/A | N/A | N/A | N/A | N/A |
| 2025 | $202,840 | $50,000 | $0 | $252,840 | $252,840 |
| 2024 | $158,370 | $40,000 | $0 | $198,370 | $198,370 |
| 2023 | $158,370 | $40,000 | $0 | $198,370 | $198,370 |
| 2022 | $106,590 | $31,250 | $0 | $137,840 | $137,840 |
| 2021 | $96,900 | $31,250 | $0 | $128,150 | $0 |
| 2020 | $80,750 | $31,250 | $0 | $112,000 | $0 |
| 2019 | $80,750 | $31,250 | $0 | $112,000 | $0 |
| 2018 | $78,830 | $30,000 | $0 | $108,830 | $0 |
| 2017 | $71,660 | $30,000 | $0 | $101,660 | $0 |
| 2016 | $68,250 | $30,000 | $0 | $98,250 | $0 |
| 2015 | $68,250 | $30,000 | $0 | $98,250 | $0 |
| 2014 | $65,000 | $30,000 | $0 | $95,000 | $0 |
| 2013 | $65,000 | $30,000 | $0 | $95,000 | $0 |
| 2012 | $65,000 | $30,000 | $0 | $0 | $0 |
| 2011 | $65,000 | $30,000 | $0 | $0 | $0 |
| 2010 | $65,000 | $30,000 | $0 | $0 | $0 |
| 2009 | $75,500 | $30,000 | $0 | $0 | $0 |
| 2008 | $75,500 | $30,000 | $0 | $0 | $0 |
| 2007 | $38,300 | $10,000 | $0 | $0 | $0 |
Deed and Sales History
| 1 | 10/18/2022 | SWD | STATUTORY WARRANTY DEED | GODINEZ JOSE & SONIA GUADALUPE | JIMENEZ KATHIA | | | $255,000.00 | 144875 | 2022-08523 |
| 2 | 04/15/2022 | SWD | STATUTORY WARRANTY DEED | ARMIJO MARY ANN | GODINEZ JOSE & SONIA GUADALUPE | | | $141,000.00 | 143781 | 2022-03232 |
| 3 | 02/12/2014 | QCD | QUIT CLAIM DEED | ARMIJO PEDRO C & FRANCISCA | ARMIJO MARY ANN | | | | 125432 | 2014-01087 |
| 4 | 09/21/1981 | WARRANTY D | WARRANTY DEED | | | | | $5,000.00 | 0 | 1298-107075 |
Payout Agreement
| No payout information available.. |