Property
Account |
| Property ID: | 18064 | Abbreviated Legal Description: | HEADLEY S 10' OF LOT 8 BLK 1 LESS ALLEY; N1/2 OF LOTS 9 & 10 BLK 1LESS S 10' & ALLEY |
| Parcel Number: | 360719580122 | Agent Code: | |
| Type: | Real | | |
| Tax Area: | 1 - OL-140-F | Land Use Code | 11 |
| Open Space: | N | DFL | N |
| Historic Property: | N | Remodel Property: | N |
| Multi-Family Redevelopment: | N | | |
| Township: | 7 | Section: | 19 |
| Range: | 36 |
Location |
| Address: | 605 N 11TH AVE WA 99362 | Mapsco: | |
| Neighborhood: | A-SFR | Map ID: | |
| Neighborhood CD: | 313011 |
Owner |
| Name: | JIMENEZ TRICIA KAY | Owner ID: | 71292 |
| Mailing Address: | 605 N 11TH AVE WALLA WALLA, WA 99362 | % Ownership: | 100.0000000000% |
| | | Exemptions: | |
Taxes and Assessment Details
Property Tax Information as of
02/21/2026
Click on "Statement Details" to expand or collapse a tax statement.
* Please enter a valid date ** Please enter a valid date *
Statement Details |
| | TOTAL: | $0.00 | $0.00 | $0.00 | $0.00 | $0.00 | $0.00 |
|
| | $0.00 | $0.00 | $0.00 | $0.00 | $0.00 | $0.00 |
Values
| (+) Improvement Homesite Value: | + | $0 | |
| (+) Improvement Non-Homesite Value: | + | $111,820 | |
| (+) Land Homesite Value: | + | $0 | |
| (+) Land Non-Homesite Value: | + | $57,750 | |
| (+) Curr Use (HS): | + | $0 | $0 |
| (+) Curr Use (NHS): | + | $0 | $0 |
| | | -------------------------- | |
| (=) Market Value: | = | $169,570 | |
| (–) Productivity Loss: | – | $0 | |
| | | -------------------------- | |
| (=) Subtotal: | = | $169,570 | |
| (+) Senior Appraised Value: | + | $0 | |
| (+) Non-Senior Appraised Value: | + | $169,570 | |
| | | -------------------------- | |
| (=) Total Appraised Value: | = | $169,570 | |
| (–) Senior Exemption Loss: | – | $0 | |
| (–) Exemption Loss: | – | $0 | |
| | | -------------------------- | |
| (=) Taxable Value: | = | $169,570 | |
Taxing Jurisdiction
| Owner: | JIMENEZ TRICIA KAY | | |
| % Ownership: | 100.0000000000% | | |
| Total Value: | $169,570 | | |
| Tax Area: | 1 - OL-140-F |
| CERFD | CURRENT EXPENSE REFUND 010 | 0.0000000000 | $169,570 | $169,570 | $0.00 | | |
| CURREXP | CURRENT EXPENSE 010 | 1.0175366760 | $169,570 | $169,570 | $172.54 | | |
| HUMNSERV | HUMAN SERVICES 119 | 0.0250000000 | $169,570 | $169,570 | $4.24 | | |
| SLDREL | SOLDIERS RELIEF 121 | 0.0155990005 | $169,570 | $169,570 | $2.65 | | |
| EMERGSER | EMS 147 | 0.3792580840 | $169,570 | $169,570 | $64.31 | | |
| EMSRFD | EMS REFUND 147 | 0.0000000000 | $169,570 | $169,570 | $0.00 | | |
| PORTRFD | PORT REFUND 640 | 0.0000000000 | $169,570 | $169,570 | $0.00 | | |
| PORTWWGEN | PORT OF WW 640 | 0.2460186015 | $169,570 | $169,570 | $41.72 | | |
| SD140BOND | SD #140 BOND 764 | 0.8342371393 | $169,570 | $169,570 | $141.46 | | |
| SD140GEN | SD #140 GENERAL 760 | 2.0646500647 | $169,570 | $169,570 | $350.10 | | |
| ST2 | STATE SCHOOL PART 2 600 | 0.8131451643 | $169,570 | $169,570 | $137.89 | | |
| STATESCHL | STATE SCHOOL 600 | 1.5158548041 | $169,570 | $169,570 | $257.04 | | |
| STREFUND | STATE REFUND LEVY 603 | 0.0000000000 | $169,570 | $169,570 | $0.00 | | |
| CWWBOND | C OF WW BOND 643 | 0.2760494372 | $169,570 | $169,570 | $46.81 | | |
| CWWGEN | CITY OF WW 631 | 1.6100204973 | $169,570 | $169,570 | $273.01 | | |
| CWWRFD | CITY OF WALLA WALLA REFUND 631 | 0.0000000000 | $169,570 | $169,570 | $0.00 | | |
| | Total Tax Rate: | 8.7973694689 | | | | | |
| | | | | Taxes w/Current Exemptions: | $1,491.77 | | |
| | | | | Taxes w/o Exemptions: | $1,491.77 | | |
Improvement / Building
| Improvement #1: | RESIDENTIAL | State Code: | 11 | 676.0 sqft | Value: | $111,820 |
| Exterior Wall: | SIDING | Heating/Cooling: | GRAVITY FURNACE | | Number of Bathrooms: | 1 | Number of Bedrooms: | 2 | | Plumbing: | 6 | Roof Covering: | COMP SHINGLE |
|
| | Type | Description | Class CD | Sub Class CD | Year Built | Area |
| | MA | Main Area | 1 | 25 | 1896 | 676.0 |
| | SI1 | SITE IMPROVEMENT | 1 | 25 | 0 | 1.0 |
| | WDR | WOOD DECK W/ROOF | 1 | 25 | 1896 | 104.0 |
| | DTG | Detached Garage | 1 | 25 | 1896 | 880.0 |
| | WOD | Wood Deck | 1 | 25 | 1896 | 208.0 |
Sketch
Property Image
Land
| 1 | RES 1 | Converted: Residential | 0.1607 | 7000.00 | 0.00 | 0.00 | 1.00 | $57,750 | $0 |
Roll Value History
| 2026 | N/A | N/A | N/A | N/A | N/A |
| 2025 | $139,770 | $57,750 | $0 | $197,520 | $197,520 |
| 2024 | $111,820 | $57,750 | $0 | $169,570 | $169,570 |
| 2023 | $111,820 | $57,750 | $0 | $169,570 | $169,570 |
| 2022 | $101,650 | $57,750 | $0 | $159,400 | $159,400 |
| 2021 | $120,890 | $13,200 | $0 | $134,090 | $134,090 |
| 2020 | $109,900 | $13,200 | $0 | $123,100 | $123,100 |
| 2019 | $109,900 | $13,200 | $0 | $123,100 | $123,100 |
| 2018 | $61,070 | $13,200 | $0 | $74,270 | $74,270 |
| 2017 | $55,510 | $13,200 | $0 | $68,710 | $400 |
| 2016 | $52,870 | $13,200 | $0 | $66,070 | $400 |
| 2015 | $49,560 | $13,200 | $0 | $62,760 | $400 |
| 2014 | $47,200 | $13,200 | $0 | $60,400 | $400 |
| 2013 | $47,200 | $13,200 | $0 | $60,400 | $400 |
| 2012 | $47,200 | $13,200 | $0 | $0 | $0 |
| 2011 | $47,200 | $13,200 | $0 | $0 | $0 |
| 2010 | $38,600 | $25,100 | $0 | $0 | $0 |
| 2009 | $54,700 | $12,300 | $0 | $0 | $0 |
| 2008 | $24,900 | $12,300 | $0 | $0 | $0 |
| 2007 | $24,900 | $12,300 | $0 | $0 | $0 |
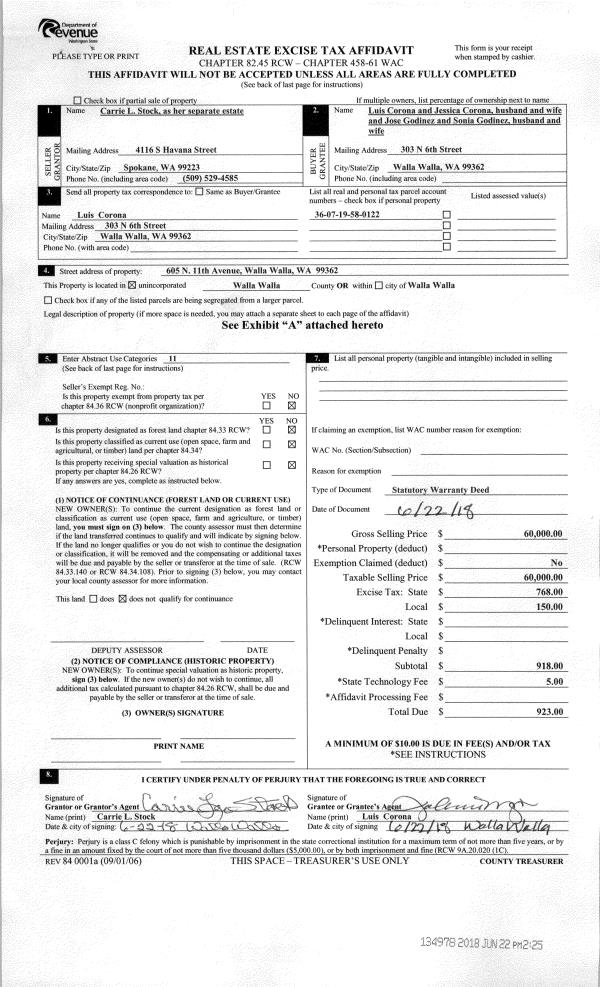
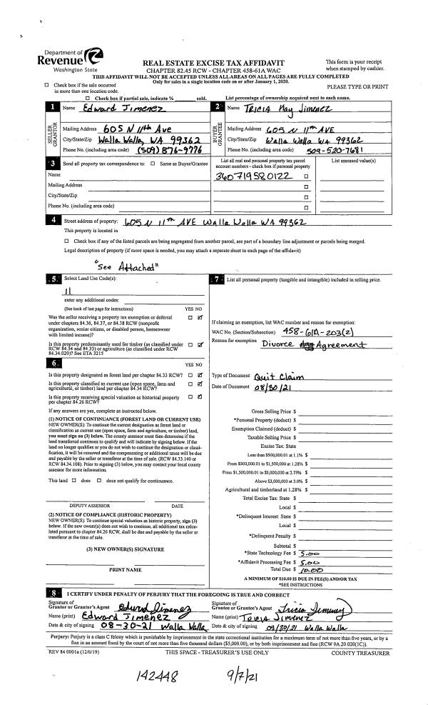
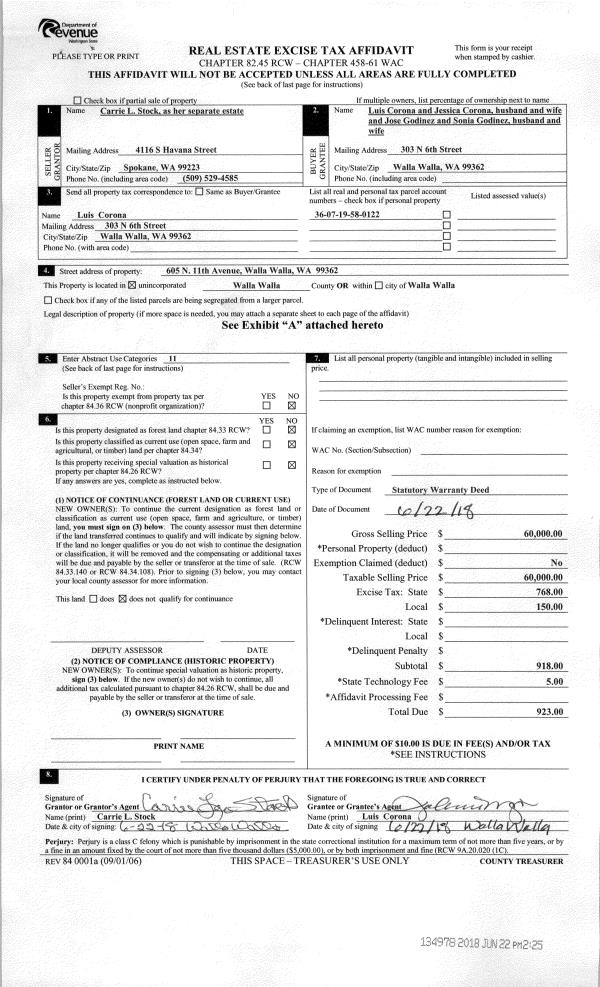
Deed and Sales History
| 1 | 03/14/2022 | QCD | QUIT CLAIM DEED | JIMENEZ EDWARD & TRICIA K | JIMENEZ TRICIA KAY | | | | 142448 | 2022-02136 |
| 2 | 09/14/2018 | SWD | STATUTORY WARRANTY DEED | CORONA LUIS & JESSICA | JIMENEZ EDWARD & TRICIA K | | | $130,000.00 | 135534 | 2018-07646 |
| 3 | 06/22/2018 | SWD | STATUTORY WARRANTY DEED | STOCK CARRIE L | CORONA LUIS & JESSICA | | | $60,000.00 | 134978 | 2018-05022 |
| 4 | 09/09/2015 | DEATH CERT | DEATH CERTIFICATE | FRY CHRISTINE LIFE EST | STOCK CARRIE L | | | | 0 | |
| 5 | 11/07/1975 | WARRANTY D | WARRANTY DEED | | | | | $4,950.00 | 0 | 3305-49090 |
Payout Agreement
| No payout information available.. |