Property
Account |
| Property ID: | 18058 | Abbreviated Legal Description: | KNAPP ADDN PARCEL 1 BLK 1 |
| Parcel Number: | 350736620101 | Agent Code: | |
| Type: | Real | | |
| Tax Area: | 77 - CP-250-F | Land Use Code | 11 |
| Open Space: | N | DFL | N |
| Historic Property: | N | Remodel Property: | N |
| Multi-Family Redevelopment: | N | | |
| Township: | 7 | Section: | 36 |
| Range: | 35 |
Location |
| Address: | 1551 SE FREEDOM PL WA 99324 | Mapsco: | |
| Neighborhood: | A SFR Rural/City Inf | Map ID: | |
| Neighborhood CD: | 113012 |
Owner |
| Name: | DOUGLAS L SHARP HOLDINGS LLC | Owner ID: | 57706 |
| Mailing Address: | 1551 SE FREEDOM PL COLLEGE PLACE, WA 99324 | % Ownership: | 100.0000000000% |
| | | Exemptions: | |
Taxes and Assessment Details
Property Tax Information as of
02/21/2026
Click on "Statement Details" to expand or collapse a tax statement.
* Please enter a valid date ** Please enter a valid date *
Statement Details |
| | TOTAL: | $0.00 | $0.00 | $0.00 | $0.00 | $0.00 | $0.00 |
|
| | $0.00 | $0.00 | $0.00 | $0.00 | $0.00 | $0.00 |
Values
| (+) Improvement Homesite Value: | + | $0 | |
| (+) Improvement Non-Homesite Value: | + | $251,480 | |
| (+) Land Homesite Value: | + | $0 | |
| (+) Land Non-Homesite Value: | + | $70,000 | |
| (+) Curr Use (HS): | + | $0 | $0 |
| (+) Curr Use (NHS): | + | $0 | $0 |
| | | -------------------------- | |
| (=) Market Value: | = | $321,480 | |
| (–) Productivity Loss: | – | $0 | |
| | | -------------------------- | |
| (=) Subtotal: | = | $321,480 | |
| (+) Senior Appraised Value: | + | $0 | |
| (+) Non-Senior Appraised Value: | + | $321,480 | |
| | | -------------------------- | |
| (=) Total Appraised Value: | = | $321,480 | |
| (–) Senior Exemption Loss: | – | $0 | |
| (–) Exemption Loss: | – | $0 | |
| | | -------------------------- | |
| (=) Taxable Value: | = | $321,480 | |
Taxing Jurisdiction
| Owner: | DOUGLAS L SHARP HOLDINGS LLC | | |
| % Ownership: | 100.0000000000% | | |
| Total Value: | $321,480 | | |
| Tax Area: | 77 - CP-250-F |
| CERFD | CURRENT EXPENSE REFUND 010 | 0.0000000000 | $321,480 | $321,480 | $0.00 | | |
| CURREXP | CURRENT EXPENSE 010 | 1.0175366760 | $321,480 | $321,480 | $327.12 | | |
| HUMNSERV | HUMAN SERVICES 119 | 0.0250000000 | $321,480 | $321,480 | $8.04 | | |
| SLDREL | SOLDIERS RELIEF 121 | 0.0155990005 | $321,480 | $321,480 | $5.01 | | |
| COLLPLBOND | C OF CP BOND 644 | 0.4374241808 | $321,480 | $321,480 | $140.62 | | |
| COLLPLGEN | CITY OF CP 632 | 1.4453819216 | $321,480 | $321,480 | $464.66 | | |
| EMERGSER | EMS 147 | 0.3792580840 | $321,480 | $321,480 | $121.92 | | |
| EMSRFD | EMS REFUND 147 | 0.0000000000 | $321,480 | $321,480 | $0.00 | | |
| RURALLIB | RURAL LIBRARY 623 | 0.3710609029 | $321,480 | $321,480 | $119.29 | | |
| PORTRFD | PORT REFUND 640 | 0.0000000000 | $321,480 | $321,480 | $0.00 | | |
| PORTWWGEN | PORT OF WW 640 | 0.2460186015 | $321,480 | $321,480 | $79.09 | | |
| SD250BOND | SD #250 BOND 773 | 1.4560608159 | $321,480 | $321,480 | $468.09 | | |
| SD250GEN | SD #250 GENERAL 770 | 2.3880724087 | $321,480 | $321,480 | $767.72 | | |
| ST2 | STATE SCHOOL PART 2 600 | 0.8131451643 | $321,480 | $321,480 | $261.41 | | |
| STATESCHL | STATE SCHOOL 600 | 1.5158548041 | $321,480 | $321,480 | $487.32 | | |
| STREFUND | STATE REFUND LEVY 603 | 0.0000000000 | $321,480 | $321,480 | $0.00 | | |
| | Total Tax Rate: | 10.1104125603 | | | | | |
| | | | | Taxes w/Current Exemptions: | $3,250.29 | | |
| | | | | Taxes w/o Exemptions: | $3,250.29 | | |
Improvement / Building
| Improvement #1: | RESIDENTIAL | State Code: | 11 | 1550.0 sqft | Value: | $251,480 |
| Exterior Wall: | VINYL | Heating/Cooling: | WARM & COOLED AIR | | Number of Bathrooms: | 2 | Number of Bedrooms: | 3 | | Plumbing: | 9 | Roof Covering: | COMP SHINGLE |
|
| | Type | Description | Class CD | Sub Class CD | Year Built | Area |
| | MA | Main Area | 1 | 30 | 1982 | 1550.0 |
| | SI1 | SITE IMPROVEMENT | 1 | 30 | 1982 | 1.5 |
| | S1F | Single One Story Fireplace | 1 | 30 | 1982 | 1.0 |
| | WOD | Wood Deck | 1 | 30 | 1982 | 168.0 |
| | ATG | Attached Garage | 1 | 30 | 1982 | 484.0 |
| | RPS | PORCH W/STEPS,ROOF | 1 | 30 | 1982 | 35.0 |
| | DTG | Detached Garage | 1 | 30 | 1982 | 484.0 |
| | GIF | GARAGE INTERIOR FINISH | 1 | 30 | 1982 | 336.0 |
| | FBAT | FULL BATH | 1 | 30 | 1982 | 1.0 |
| | FIXT | AVERAGE FIXTURE | 1 | 30 | 1982 | 1.0 |
| | HVAC | HEAT/AC SYSTEM | 1 | 30 | 1982 | 484.0 |
| | RPC | OPEN PORCH W/ROOF , CEILED | 1 | 30 | 1982 | 70.0 |
Sketch
Property Image
Land
| 1 | RES 1 | Converted: Residential | 0.4850 | 21125.00 | 0.00 | 0.00 | 1.00 | $70,000 | $0 |
Roll Value History
| 2026 | N/A | N/A | N/A | N/A | N/A |
| 2025 | $188,610 | $130,000 | $0 | $318,610 | $318,610 |
| 2024 | $251,480 | $70,000 | $0 | $321,480 | $321,480 |
| 2023 | $251,480 | $70,000 | $0 | $321,480 | $321,480 |
| 2022 | $239,510 | $70,000 | $0 | $309,510 | $309,510 |
| 2021 | $228,100 | $70,000 | $0 | $298,100 | $298,100 |
| 2020 | $157,310 | $70,000 | $0 | $227,310 | $227,310 |
| 2019 | $151,340 | $55,000 | $0 | $206,340 | $206,340 |
| 2018 | $127,460 | $55,000 | $0 | $182,460 | $182,460 |
| 2017 | $98,040 | $55,000 | $0 | $153,040 | $153,040 |
| 2016 | $93,380 | $55,000 | $0 | $148,380 | $148,380 |
| 2015 | $93,380 | $55,000 | $0 | $148,380 | $148,380 |
| 2014 | $124,500 | $55,000 | $0 | $179,500 | $179,500 |
| 2013 | $124,500 | $55,000 | $0 | $179,500 | $179,500 |
| 2012 | $124,500 | $55,000 | $0 | $0 | $0 |
| 2011 | $124,500 | $55,000 | $0 | $0 | $0 |
| 2010 | $124,500 | $55,000 | $0 | $0 | $0 |
| 2009 | $133,900 | $55,000 | $0 | $0 | $0 |
| 2008 | $94,200 | $30,000 | $0 | $0 | $0 |
| 2007 | $94,200 | $30,000 | $0 | $0 | $0 |
Deed and Sales History
| 1 | 12/22/2016 | QCD | QUIT CLAIM DEED | FUCHS FRITZ & VIRGINIA | DOUGLAS L SHARP HOLDINGS LLC | | | $0.00 | 131646 | 2016-10541 |
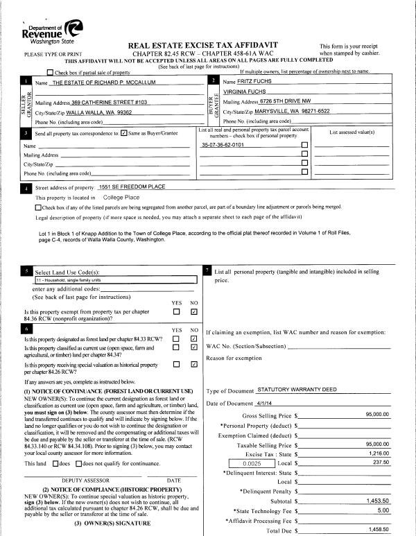
| 2 | 04/01/2014 | SWD | STATUTORY WARRANTY DEED | MC CALLUM RICHARD P | FUCHS FRITZ & VIRGINIA | | | $95,000.00 | 125658 | 2014-02225 |
| 3 | 01/11/1990 | WARRANTY D | WARRANTY DEED | | | | | $0.00 | 0 | 1809-000235 |
Payout Agreement
| No payout information available.. |