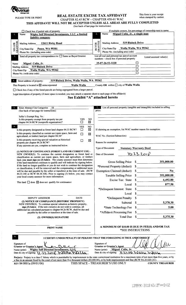
Property
Account |
| Property ID: | 18049 | Abbreviated Legal Description: | BLALOCK ORCHARDS TAX 10 BLK 32 |
| Parcel Number: | 350726523220 | Agent Code: | |
| Type: | Real | | |
| Tax Area: | 311 - 250-4 | Land Use Code | 12 |
| Open Space: | N | DFL | N |
| Historic Property: | N | Remodel Property: | N |
| Multi-Family Redevelopment: | N | | |
| Township: | 7 | Section: | 26 |
| Range: | 35 |
Location |
| Address: | 519 BLALOCK DR WA 99324 | Mapsco: | |
| Neighborhood: | A SFR Rural/City Infl | Map ID: | |
| Neighborhood CD: | 313012 |
Owner |
| Name: | COLIN MIGUEL JR | Owner ID: | 64398 |
| Mailing Address: | 18 SHANGRI LA CT WALLA WALLA, WA 99362-4558 | % Ownership: | 100.0000000000% |
| | | Exemptions: | |
Taxes and Assessment Details
Values
| (+) Improvement Homesite Value: | + | $361,720 | |
| (+) Improvement Non-Homesite Value: | + | $0 | |
| (+) Land Homesite Value: | + | $65,040 | |
| (+) Land Non-Homesite Value: | + | $0 | |
| (+) Curr Use (HS): | + | $0 | $0 |
| (+) Curr Use (NHS): | + | $0 | $0 |
| | | -------------------------- | |
| (=) Market Value: | = | $426,760 | |
| (–) Productivity Loss: | – | $0 | |
| | | -------------------------- | |
| (=) Subtotal: | = | $426,760 | |
| (+) Senior Appraised Value: | + | $0 | |
| (+) Non-Senior Appraised Value: | + | $426,760 | |
| | | -------------------------- | |
| (=) Total Appraised Value: | = | $426,760 | |
| (–) Senior Exemption Loss: | – | $0 | |
| (–) Exemption Loss: | – | $0 | |
| | | -------------------------- | |
| (=) Taxable Value: | = | $426,760 | |
Taxing Jurisdiction
| Owner: | COLIN MIGUEL JR | | |
| % Ownership: | 100.0000000000% | | |
| Total Value: | $426,760 | | |
| Tax Area: | 311 - 250-4 |
| CERFD | CURRENT EXPENSE REFUND 010 | 0.0000000000 | $426,760 | $426,760 | $0.00 | | |
| CURREXP | CURRENT EXPENSE 010 | 1.0175366760 | $426,760 | $426,760 | $434.24 | | |
| HUMNSERV | HUMAN SERVICES 119 | 0.0250000000 | $426,760 | $426,760 | $10.67 | | |
| SLDREL | SOLDIERS RELIEF 121 | 0.0155990005 | $426,760 | $426,760 | $6.66 | | |
| EMERGSER | EMS 147 | 0.3792580840 | $426,760 | $426,760 | $161.85 | | |
| EMSRFD | EMS REFUND 147 | 0.0000000000 | $426,760 | $426,760 | $0.00 | | |
| FD4EXP | FD #4 EXPENSE 686 | 0.8836993059 | $426,760 | $426,760 | $377.13 | | |
| RLBRFD | RURAL LIBRARY REFUND 623 | 0.0000000000 | $426,760 | $426,760 | $0.00 | | |
| RURALLIB | RURAL LIBRARY 623 | 0.3710609029 | $426,760 | $426,760 | $158.35 | | |
| PORTRFD | PORT REFUND 640 | 0.0000000000 | $426,760 | $426,760 | $0.00 | | |
| PORTWWGEN | PORT OF WW 640 | 0.2460186015 | $426,760 | $426,760 | $104.99 | | |
| SD250BOND | SD #250 BOND 773 | 1.4560608159 | $426,760 | $426,760 | $621.39 | | |
| SD250GEN | SD #250 GENERAL 770 | 2.3880724087 | $426,760 | $426,760 | $1,019.13 | | |
| ST2 | STATE SCHOOL PART 2 600 | 0.8131451643 | $426,760 | $426,760 | $347.02 | | |
| STATESCHL | STATE SCHOOL 600 | 1.5158548041 | $426,760 | $426,760 | $646.91 | | |
| STREFUND | STATE REFUND LEVY 603 | 0.0000000000 | $426,760 | $426,760 | $0.00 | | |
| COROAD | COUNTY ROAD 115 | 1.6549953990 | $426,760 | $426,760 | $706.29 | | |
| CRPRD | COUNTY ROAD REFUND 115 | 0.0000000000 | $426,760 | $426,760 | $0.00 | | |
| | Total Tax Rate: | 10.7663011628 | | | | | |
| | | | | Taxes w/Current Exemptions: | $4,594.63 | | |
| | | | | Taxes w/o Exemptions: | $4,594.63 | | |
Improvement / Building
| Improvement #1: | RESIDENTIAL | State Code: | 12 | 2431.0 sqft | Value: | $361,720 |
| Exterior Wall: | METAL/STEEL | Heating/Cooling: | HEAT PUMP | | Number of Bathrooms: | 3 | Number of Bedrooms: | 5 | | Plumbing: | 14 | Roof Covering: | COMP SHINGLE |
|
| | Type | Description | Class CD | Sub Class CD | Year Built | Area |
| | MA | Main Area | 4 | 35 | 1916 | 2431.0 |
| | DTG | Detached Garage | 4 | 35 | 1916 | 440.0 |
| | SI1 | SITE IMPROVEMENT | 4 | 35 | 0 | 3.5 |
| | BASE | BASEMENT | 4 | 35 | 1916 | 1046.0 |
| | BMF | BASEMENT - MIN FINISH | 4 | 35 | 1916 | 960.0 |
| | UPFL | Upper Floor (included in main area) | 4 | 35 | 1916 | 968.0 |
| | SWP | Solid Wall Porch | 4 | 35 | 1916 | 50.0 |
Sketch
Property Image
Land
| 1 | RES 1 | Converted: Residential | 0.2100 | 9147.00 | 0.00 | 0.00 | 1.00 | $65,040 | $0 |
Roll Value History
| 2026 | N/A | N/A | N/A | N/A | N/A |
| 2025 | $361,700 | $65,000 | $0 | $426,700 | $426,700 |
| 2024 | $361,700 | $65,000 | $0 | $426,700 | $426,700 |
| 2023 | $361,720 | $65,040 | $0 | $426,760 | $426,760 |
| 2022 | $361,720 | $65,040 | $0 | $426,760 | $426,760 |
| 2021 | $365,410 | $46,400 | $0 | $411,810 | $411,810 |
| 2020 | $304,510 | $46,400 | $0 | $350,910 | $350,910 |
| 2019 | $304,510 | $46,400 | $0 | $350,910 | $350,910 |
| 2018 | $284,590 | $46,400 | $0 | $330,990 | $330,990 |
| 2017 | $284,590 | $46,400 | $0 | $330,990 | $330,990 |
| 2016 | $61,590 | $46,400 | $0 | $107,990 | $107,990 |
| 2015 | $80,080 | $46,400 | $0 | $126,480 | $126,480 |
| 2014 | $61,600 | $46,400 | $0 | $108,000 | $24,700 |
| 2013 | $61,600 | $46,400 | $0 | $108,000 | $24,700 |
| 2012 | $61,600 | $46,400 | $0 | $0 | $0 |
| 2011 | $61,600 | $46,400 | $0 | $0 | $0 |
| 2010 | $64,100 | $46,400 | $0 | $0 | $0 |
| 2009 | $98,800 | $24,000 | $0 | $0 | $0 |
| 2008 | $60,700 | $24,000 | $0 | $0 | $0 |
| 2007 | $60,700 | $24,000 | $0 | $0 | $0 |
Deed and Sales History
| 1 | 11/27/2018 | SWD | STATUTORY WARRANTY DEED | WIGLEY SELF DIRECTED INVESTMENTS LLC | COLIN MIGUEL JR | | | $351,000.00 | 135990 | 2018-09770 |
| 2 | 11/09/2015 | SWD | STATUTORY WARRANTY DEED | ELWELL MARIANN ESTATE OF | WIGLEY SELF DIRECTED INVESTMENTS LLC | | | $114,000.00 | 129166 | 2015-09762 |
| 3 | 04/01/1967 | WARRANTY D | WARRANTY DEED | | | | | $0.00 | 0 | 3210-484627 |
Payout Agreement
| No payout information available.. |