Property
Account |
| Property ID: | 18047 | Abbreviated Legal Description: | MAJERUS ADDN PHASE II LOT 14 |
| Parcel Number: | 350725660014 | Agent Code: | |
| Type: | Real | | |
| Tax Area: | 75 - CP 250 | Land Use Code | 11 |
| Open Space: | N | DFL | N |
| Historic Property: | N | Remodel Property: | N |
| Multi-Family Redevelopment: | N | | |
| Township: | 7 | Section: | 25 |
| Range: | 35 |
Location |
| Address: | 306 NE KINGWOOD PL WA 99324 | Mapsco: | |
| Neighborhood: | A SFR | Map ID: | |
| Neighborhood CD: | 113011 |
Owner |
| Name: | ARMSTRONG GAVIN R & SUSAN K | Owner ID: | 63867 |
| Mailing Address: | 306 NE KINGWOOD PLACE COLLEGE PLACE, WA 99324 | % Ownership: | 100.0000000000% |
| | | Exemptions: | |
Taxes and Assessment Details
Values
| (+) Improvement Homesite Value: | + | $0 | |
| (+) Improvement Non-Homesite Value: | + | $250,550 | |
| (+) Land Homesite Value: | + | $0 | |
| (+) Land Non-Homesite Value: | + | $70,000 | |
| (+) Curr Use (HS): | + | $0 | $0 |
| (+) Curr Use (NHS): | + | $0 | $0 |
| | | -------------------------- | |
| (=) Market Value: | = | $320,550 | |
| (–) Productivity Loss: | – | $0 | |
| | | -------------------------- | |
| (=) Subtotal: | = | $320,550 | |
| (+) Senior Appraised Value: | + | $0 | |
| (+) Non-Senior Appraised Value: | + | $320,550 | |
| | | -------------------------- | |
| (=) Total Appraised Value: | = | $320,550 | |
| (–) Senior Exemption Loss: | – | $0 | |
| (–) Exemption Loss: | – | $0 | |
| | | -------------------------- | |
| (=) Taxable Value: | = | $320,550 | |
Taxing Jurisdiction
| Owner: | ARMSTRONG GAVIN R & SUSAN K | | |
| % Ownership: | 100.0000000000% | | |
| Total Value: | $320,550 | | |
| Tax Area: | 75 - CP 250 |
| CERFD | CURRENT EXPENSE REFUND 010 | 0.0000000000 | $320,550 | $320,550 | $0.00 | | |
| CURREXP | CURRENT EXPENSE 010 | 1.0175366760 | $320,550 | $320,550 | $326.17 | | |
| HUMNSERV | HUMAN SERVICES 119 | 0.0250000000 | $320,550 | $320,550 | $8.01 | | |
| SLDREL | SOLDIERS RELIEF 121 | 0.0155990005 | $320,550 | $320,550 | $5.00 | | |
| COLLPLBOND | C OF CP BOND 644 | 0.4374241808 | $320,550 | $320,550 | $140.22 | | |
| COLLPLGEN | CITY OF CP 632 | 1.4453819216 | $320,550 | $320,550 | $463.32 | | |
| EMERGSER | EMS 147 | 0.3792580840 | $320,550 | $320,550 | $121.57 | | |
| EMSRFD | EMS REFUND 147 | 0.0000000000 | $320,550 | $320,550 | $0.00 | | |
| RURALLIB | RURAL LIBRARY 623 | 0.3710609029 | $320,550 | $320,550 | $118.94 | | |
| PORTRFD | PORT REFUND 640 | 0.0000000000 | $320,550 | $320,550 | $0.00 | | |
| PORTWWGEN | PORT OF WW 640 | 0.2460186015 | $320,550 | $320,550 | $78.86 | | |
| SD250BOND | SD #250 BOND 773 | 1.4560608159 | $320,550 | $320,550 | $466.74 | | |
| SD250GEN | SD #250 GENERAL 770 | 2.3880724087 | $320,550 | $320,550 | $765.50 | | |
| ST2 | STATE SCHOOL PART 2 600 | 0.8131451643 | $320,550 | $320,550 | $260.65 | | |
| STATESCHL | STATE SCHOOL 600 | 1.5158548041 | $320,550 | $320,550 | $485.91 | | |
| STREFUND | STATE REFUND LEVY 603 | 0.0000000000 | $320,550 | $320,550 | $0.00 | | |
| | Total Tax Rate: | 10.1104125603 | | | | | |
| | | | | Taxes w/Current Exemptions: | $3,240.89 | | |
| | | | | Taxes w/o Exemptions: | $3,240.89 | | |
Improvement / Building
| Improvement #1: | RESIDENTIAL | State Code: | 11 | 1116.0 sqft | Value: | $250,550 |
| Exterior Wall: | PLYWOOD | Heating/Cooling: | WARM & COOLED AIR | | Number of Bathrooms: | 2 | Number of Bedrooms: | 2 | | Plumbing: | 8 | Roof Covering: | COMP SHINGLE |
|
| | Type | Description | Class CD | Sub Class CD | Year Built | Area |
| | MA | Main Area | 1 | 30 | 1997 | 1116.0 |
| | SI1 | SITE IMPROVEMENT | 1 | 30 | 1997 | 1.5 |
| | ATG | Attached Garage | 1 | 30 | 1997 | 600.0 |
| | RPO | OPEN PORCH W/ROOF | 1 | 30 | 1997 | 36.0 |
| | TOOL | TOOL SHED | 1 | 30 | 2005 | 240.0 |
| | SUN | SOLAR ROOM | 1 | 30 | 1997 | 252.0 |
Sketch
Property Image
Land
| 1 | RES 1 | Converted: Residential | 0.1620 | 7058.00 | 0.00 | 0.00 | 1.00 | $70,000 | $0 |
Roll Value History
| 2026 | N/A | N/A | N/A | N/A | N/A |
| 2025 | $200,440 | $125,000 | $0 | $325,440 | $325,440 |
| 2024 | $250,550 | $70,000 | $0 | $320,550 | $320,550 |
| 2023 | $250,550 | $70,000 | $0 | $320,550 | $320,550 |
| 2022 | $217,870 | $70,000 | $0 | $287,870 | $287,870 |
| 2021 | $189,450 | $70,000 | $0 | $259,450 | $259,450 |
| 2020 | $126,300 | $70,000 | $0 | $196,300 | $196,300 |
| 2019 | $141,300 | $55,000 | $0 | $196,300 | $196,300 |
| 2018 | $113,040 | $55,000 | $0 | $168,040 | $168,040 |
| 2017 | $102,770 | $55,000 | $0 | $157,770 | $157,770 |
| 2016 | $93,420 | $55,000 | $0 | $148,420 | $148,420 |
| 2015 | $84,930 | $55,000 | $0 | $139,930 | $139,930 |
| 2014 | $89,400 | $55,000 | $0 | $144,400 | $144,400 |
| 2013 | $89,400 | $55,000 | $0 | $144,400 | $144,400 |
| 2012 | $85,200 | $55,000 | $0 | $0 | $0 |
| 2011 | $100,800 | $55,000 | $0 | $0 | $0 |
| 2010 | $93,400 | $55,000 | $0 | $0 | $0 |
| 2009 | $128,200 | $55,000 | $0 | $0 | $0 |
| 2008 | $93,600 | $30,000 | $0 | $0 | $0 |
| 2007 | $93,600 | $30,000 | $0 | $0 | $0 |
Deed and Sales History
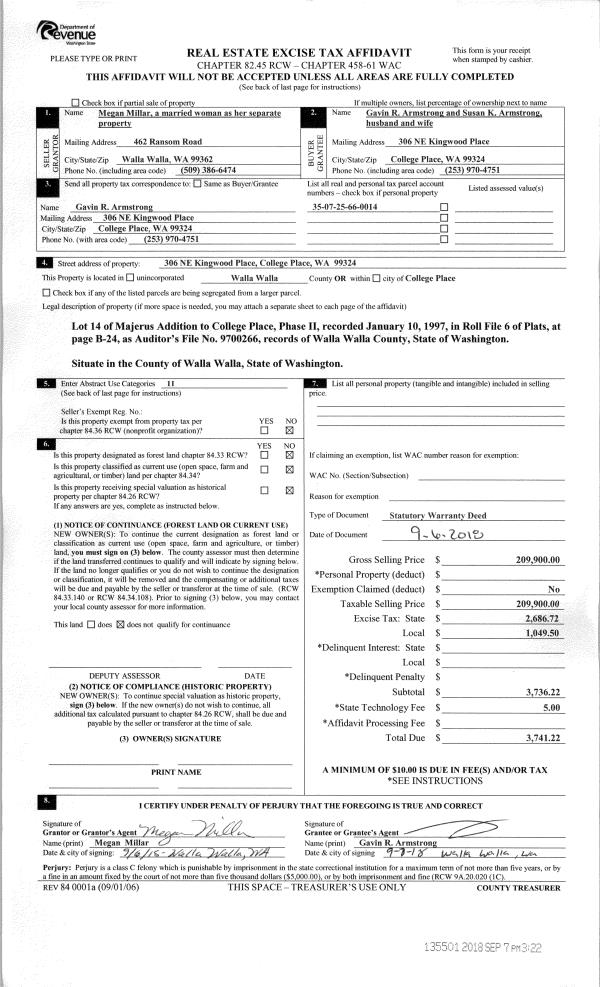
| 1 | 09/07/2018 | SWD | STATUTORY WARRANTY DEED | MILLAR MEGAN | ARMSTRONG GAVIN R & SUSAN K | | | $209,900.00 | 135501 | 2018-07453 |
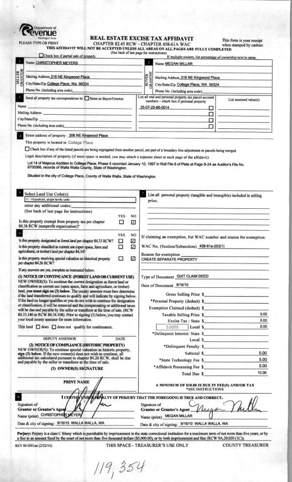
| 2 | 11/18/2010 | QCD | QUIT CLAIM DEED | MEYERS, CHRISTOPHER | MILLAR, MEGAN | | | $0.00 | 119354 | 2010-09474 |
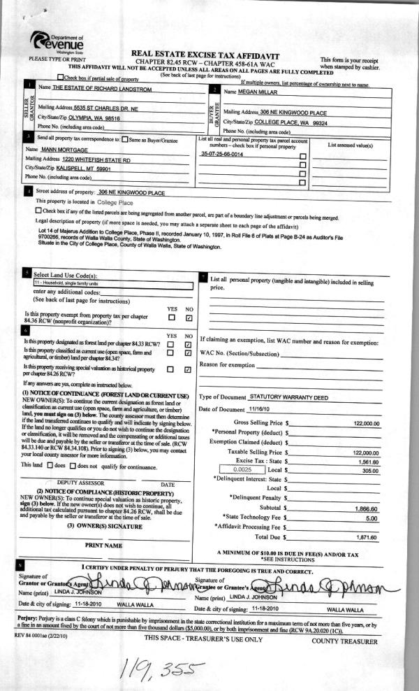
| 3 | 11/18/2010 | WARRANTY D | WARRANTY DEED | LANDSTROM, RICHARD ESTATE OF | MILLAR, MEGAN | | | $122,000.00 | 119355 | 2010-09475 |
| 4 | 05/30/1997 | WARRANTY D | WARRANTY DEED | | | | | $101,500.00 | 88261 | 2529-704878 |
Payout Agreement
| No payout information available.. |