Property
Account |
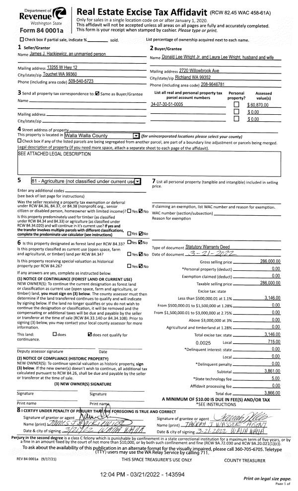
| Property ID: | 17993 | Abbreviated Legal Description: | WOODWARD CANYON ESTATES LOT 1 PLUS NWLY PTN LOT 2 |
| Parcel Number: | 340730510005 | Agent Code: | |
| Type: | Real | | |
| Tax Area: | 318 - 300-6-TM | Land Use Code | 81 |
| Open Space: | N | DFL | N |
| Historic Property: | N | Remodel Property: | N |
| Multi-Family Redevelopment: | N | | |
| Township: | 7 | Section: | 30 |
| Range: | 34 |
Location |
| Address: | 367 REEDS RD WA 99360 | Mapsco: | |
| Neighborhood: | 0 Farm | Map ID: | |
| Neighborhood CD: | 2220 |
Owner |
| Name: | WRIGHT DONALD LEE JR & LAURA LEE | Owner ID: | 71330 |
| Mailing Address: | PO BOX 343 TOUCHET, WA 99360 | % Ownership: | 100.0000000000% |
| | | Exemptions: | |
Taxes and Assessment Details
Values
| (+) Improvement Homesite Value: | + | $0 | |
| (+) Improvement Non-Homesite Value: | + | $0 | |
| (+) Land Homesite Value: | + | $60,000 | |
| (+) Land Non-Homesite Value: | + | $35,110 | |
| (+) Curr Use (HS): | + | $0 | $0 |
| (+) Curr Use (NHS): | + | $0 | $0 |
| | | -------------------------- | |
| (=) Market Value: | = | $95,110 | |
| (–) Productivity Loss: | – | $0 | |
| | | -------------------------- | |
| (=) Subtotal: | = | $95,110 | |
| (+) Senior Appraised Value: | + | $0 | |
| (+) Non-Senior Appraised Value: | + | $95,110 | |
| | | -------------------------- | |
| (=) Total Appraised Value: | = | $95,110 | |
| (–) Senior Exemption Loss: | – | $0 | |
| (–) Exemption Loss: | – | $0 | |
| | | -------------------------- | |
| (=) Taxable Value: | = | $95,110 | |
Taxing Jurisdiction
| Owner: | WRIGHT DONALD LEE JR & LAURA LEE | | |
| % Ownership: | 100.0000000000% | | |
| Total Value: | $95,110 | | |
| Tax Area: | 318 - 300-6-TM |
| CERFD | CURRENT EXPENSE REFUND 010 | 0.0000000000 | $95,110 | $95,110 | $0.00 | | |
| CURREXP | CURRENT EXPENSE 010 | 1.0175366760 | $95,110 | $95,110 | $96.78 | | |
| HUMNSERV | HUMAN SERVICES 119 | 0.0250000000 | $95,110 | $95,110 | $2.38 | | |
| SLDREL | SOLDIERS RELIEF 121 | 0.0155990005 | $95,110 | $95,110 | $1.48 | | |
| EMERGSER | EMS 147 | 0.3792580840 | $95,110 | $95,110 | $36.07 | | |
| EMSRFD | EMS REFUND 147 | 0.0000000000 | $95,110 | $95,110 | $0.00 | | |
| FD6EXP | FD #6 EXPENSE 693 | 0.6692985746 | $95,110 | $95,110 | $63.66 | | |
| RLBRFD | RURAL LIBRARY REFUND 623 | 0.0000000000 | $95,110 | $95,110 | $0.00 | | |
| RURALLIB | RURAL LIBRARY 623 | 0.3710609029 | $95,110 | $95,110 | $35.29 | | |
| PORTRFD | PORT REFUND 640 | 0.0000000000 | $95,110 | $95,110 | $0.00 | | |
| PORTWWGEN | PORT OF WW 640 | 0.2460186015 | $95,110 | $95,110 | $23.40 | | |
| SD300BOND | SD #300 BOND 783 | 1.8964951620 | $95,110 | $95,110 | $180.38 | | |
| SD300GEN | SD #300 GENERAL 780 | 2.1198322866 | $95,110 | $95,110 | $201.62 | | |
| ST2 | STATE SCHOOL PART 2 600 | 0.8131451643 | $95,110 | $95,110 | $77.34 | | |
| STATESCHL | STATE SCHOOL 600 | 1.5158548041 | $95,110 | $95,110 | $144.17 | | |
| STREFUND | STATE REFUND LEVY 603 | 0.0000000000 | $95,110 | $95,110 | $0.00 | | |
| COROAD | COUNTY ROAD 115 | 1.6549953990 | $95,110 | $95,110 | $157.41 | | |
| CRPRD | COUNTY ROAD REFUND 115 | 0.0000000000 | $95,110 | $95,110 | $0.00 | | |
| | Total Tax Rate: | 10.7240946555 | | | | | |
| | | | | Taxes w/Current Exemptions: | $1,019.98 | | |
| | | | | Taxes w/o Exemptions: | $1,019.98 | | |
Improvement / Building
Sketch
| No sketches available for this property. |
Property Image
Land
| 1 | C4-I | Class 4 Irrigated | 9.2400 | 0.00 | 0.00 | 0.00 | 1.00 | $35,110 | $0 |
| 2 | 60,000-HS2 | Homesite Use Value | 1.0000 | 0.00 | 0.00 | 0.00 | 1.00 | $60,000 | $0 |
| 3 | WASTE | Waste | 3.4700 | 0.00 | 0.00 | 0.00 | 1.00 | $0 | $0 |
Roll Value History
| 2026 | N/A | N/A | N/A | N/A | N/A |
| 2025 | $0 | $97,880 | $0 | $97,880 | $97,880 |
| 2024 | $0 | $96,040 | $0 | $96,040 | $96,040 |
| 2023 | $0 | $95,110 | $0 | $95,110 | $95,110 |
| 2022 | $0 | $91,420 | $0 | $91,420 | $91,420 |
| 2021 | $0 | $89,570 | $0 | $89,570 | $89,570 |
| 2020 | $0 | $60,870 | $0 | $60,870 | $60,870 |
| 2019 | $0 | $59,950 | $0 | $59,950 | $59,950 |
| 2018 | $0 | $59,020 | $0 | $59,020 | $59,020 |
| 2017 | $0 | $59,020 | $0 | $59,020 | $59,020 |
| 2016 | $0 | $59,020 | $0 | $59,020 | $59,020 |
| 2015 | $0 | $55,330 | $0 | $55,330 | $55,330 |
| 2014 | $0 | $55,330 | $0 | $55,330 | $55,330 |
| 2013 | $0 | $54,400 | $19,404 | $54,400 | $54,400 |
| 2012 | $0 | $51,600 | $0 | $0 | $0 |
| 2011 | $0 | $51,600 | $0 | $0 | $0 |
| 2010 | $0 | $51,600 | $0 | $0 | $0 |
| 2009 | $0 | $51,600 | $0 | $0 | $0 |
| 2008 | $0 | $47,000 | $0 | $0 | $0 |
| 2007 | $0 | $54,400 | $0 | $0 | $0 |
Deed and Sales History
| 1 | 03/21/2022 | SWD | STATUTORY WARRANTY DEED | HACKIEWICZ JAMES J | WRIGHT DONALD LEE JR & LAURA LEE | | | $286,000.00 | 143594 | 2022-02349 |
| 2 | 11/04/2021 | SWD | STATUTORY WARRANTY DEED | BERGEVIN REED A | HACKIEWICZ JAMES J | | | | 142807 | 2021-13263 |
| 3 | 08/01/2014 | SWD | STATUTORY WARRANTY DEED | BERGEVIN REED A | HACKIEWICZ JAMES J | | | $55,000.00 | 126372 | 2014-05492 |
Payout Agreement
| No payout information available.. |