Property
Account |
| Property ID: | 17986 | Abbreviated Legal Description: | STUBBLEFIELD ACRES SLY PTN OF NLY PTN OF E1/2 OF LOT 1; SLY PTN OFW1/2 LOT 2 BLK 3; SLY PTN ELY PTN LOT 2 LESS ELY STRIP BLOCK 3 |
| Parcel Number: | 360604510323 | Agent Code: | |
| Type: | Real | | |
| Tax Area: | 101 - 140-4 | Land Use Code | 11 |
| Open Space: | N | DFL | N |
| Historic Property: | N | Remodel Property: | N |
| Multi-Family Redevelopment: | N | | |
| Township: | 6 | Section: | 4 |
| Range: | 36 |
Location |
| Address: | 3035 CANYON VIEW CT WA 99362 | Mapsco: | |
| Neighborhood: | CYCLE 4 EXCELLENT (A) | Map ID: | |
| Neighborhood CD: | 416012 |
Owner |
| Name: | VIETH LIVING TRUST | Owner ID: | 72559 |
| Mailing Address: | 3035 CANYON VIEW CT WALLA WALLA, WA 99362 | % Ownership: | 100.0000000000% |
| | | Exemptions: | |
Taxes and Assessment Details
Values
| (+) Improvement Homesite Value: | + | $0 | |
| (+) Improvement Non-Homesite Value: | + | $1,505,380 | |
| (+) Land Homesite Value: | + | $0 | |
| (+) Land Non-Homesite Value: | + | $220,650 | |
| (+) Curr Use (HS): | + | $0 | $0 |
| (+) Curr Use (NHS): | + | $0 | $0 |
| | | -------------------------- | |
| (=) Market Value: | = | $1,726,030 | |
| (–) Productivity Loss: | – | $0 | |
| | | -------------------------- | |
| (=) Subtotal: | = | $1,726,030 | |
| (+) Senior Appraised Value: | + | $0 | |
| (+) Non-Senior Appraised Value: | + | $1,726,030 | |
| | | -------------------------- | |
| (=) Total Appraised Value: | = | $1,726,030 | |
| (–) Senior Exemption Loss: | – | $0 | |
| (–) Exemption Loss: | – | $0 | |
| | | -------------------------- | |
| (=) Taxable Value: | = | $1,726,030 | |
Taxing Jurisdiction
| Owner: | VIETH LIVING TRUST | | |
| % Ownership: | 100.0000000000% | | |
| Total Value: | $1,726,030 | | |
| Tax Area: | 101 - 140-4 |
| CERFD | CURRENT EXPENSE REFUND 010 | 0.0000000000 | $1,726,030 | $1,726,030 | $0.00 | | |
| CURREXP | CURRENT EXPENSE 010 | 1.0175366760 | $1,726,030 | $1,726,030 | $1,756.30 | | |
| HUMNSERV | HUMAN SERVICES 119 | 0.0250000000 | $1,726,030 | $1,726,030 | $43.15 | | |
| SLDREL | SOLDIERS RELIEF 121 | 0.0155990005 | $1,726,030 | $1,726,030 | $26.92 | | |
| EMERGSER | EMS 147 | 0.3792580840 | $1,726,030 | $1,726,030 | $654.61 | | |
| EMSRFD | EMS REFUND 147 | 0.0000000000 | $1,726,030 | $1,726,030 | $0.00 | | |
| FD4EXP | FD #4 EXPENSE 686 | 0.8836993059 | $1,726,030 | $1,726,030 | $1,525.29 | | |
| RLBRFD | RURAL LIBRARY REFUND 623 | 0.0000000000 | $1,726,030 | $1,726,030 | $0.00 | | |
| RURALLIB | RURAL LIBRARY 623 | 0.3710609029 | $1,726,030 | $1,726,030 | $640.46 | | |
| PORTRFD | PORT REFUND 640 | 0.0000000000 | $1,726,030 | $1,726,030 | $0.00 | | |
| PORTWWGEN | PORT OF WW 640 | 0.2460186015 | $1,726,030 | $1,726,030 | $424.64 | | |
| SD140BOND | SD #140 BOND 764 | 0.8342371393 | $1,726,030 | $1,726,030 | $1,439.92 | | |
| SD140GEN | SD #140 GENERAL 760 | 2.0646500647 | $1,726,030 | $1,726,030 | $3,563.65 | | |
| ST2 | STATE SCHOOL PART 2 600 | 0.8131451643 | $1,726,030 | $1,726,030 | $1,403.51 | | |
| STATESCHL | STATE SCHOOL 600 | 1.5158548041 | $1,726,030 | $1,726,030 | $2,616.41 | | |
| STREFUND | STATE REFUND LEVY 603 | 0.0000000000 | $1,726,030 | $1,726,030 | $0.00 | | |
| COROAD | COUNTY ROAD 115 | 1.6549953990 | $1,726,030 | $1,726,030 | $2,856.57 | | |
| CRPRD | COUNTY ROAD REFUND 115 | 0.0000000000 | $1,726,030 | $1,726,030 | $0.00 | | |
| | Total Tax Rate: | 9.8210551422 | | | | | |
| | | | | Taxes w/Current Exemptions: | $16,951.43 | | |
| | | | | Taxes w/o Exemptions: | $16,951.43 | | |
Improvement / Building
| Improvement #1: | RESIDENTIAL | State Code: | 11 | 2750.0 sqft | Value: | $1,489,380 |
| Exterior Wall: | STUCCO | Heating/Cooling: | WARM & COOLED AIR | | Number of Bathrooms: | 4 | Number of Bedrooms: | 4 | | Plumbing: | 21 | Roof Covering: | COMP SHINGLE |
|
| | Type | Description | Class CD | Sub Class CD | Year Built | Area |
| | MA | Main Area | 1 | 55 | 1998 | 2750.0 |
| | SI1 | SITE IMPROVEMENT | 1 | 55 | 1998 | 10.0 |
| | BASE | BASEMENT | 1 | 55 | 1998 | 1864.0 |
| | BPF | BASEMENT -PARTITIONED FINISH | 1 | 55 | 1998 | 1864.0 |
| | ATG | Attached Garage | 1 | 55 | 1998 | 902.0 |
| | BLW | WOOD BALCONIES | 1 | 55 | 1998 | 457.0 |
| | RPO | OPEN PORCH W/ROOF | 1 | 55 | 1998 | 80.0 |
| | S1F | Single One Story Fireplace | 1 | 55 | 1998 | 2.0 |
| | GFP | GAS FIREPLACE | 1 | 55 | 1998 | 2.0 |
| | POL3 | POLE BUILDING-CON,ELEC,INSU | 1 | 55 | 1998 | 2072.0 |
| | GUH | GUEST HOUSE | 1 | 55 | 1998 | 672.0 |
| | CPC | COVERED CARPORT/PATIO | 1 | 55 | 1998 | 144.0 |
| Improvement #2: | PERM CROP | State Code: | 11 | 0.0 sqft | Value: | $16,000 |
Sketch
Property Image
Land
| 1 | RES 1 | Converted: Residential | 3.5600 | 155073.60 | 0.00 | 0.00 | 1.00 | $220,650 | $0 |
Roll Value History
| 2026 | N/A | N/A | N/A | N/A | N/A |
| 2025 | $1,579,850 | $220,650 | $0 | $1,800,500 | $1,800,500 |
| 2024 | $1,505,380 | $220,650 | $0 | $1,726,030 | $1,726,030 |
| 2023 | $1,505,380 | $220,650 | $0 | $1,726,030 | $1,726,030 |
| 2022 | $760,690 | $125,360 | $0 | $886,050 | $886,050 |
| 2021 | $760,690 | $125,360 | $0 | $886,050 | $886,050 |
| 2020 | $760,690 | $125,360 | $0 | $886,050 | $886,050 |
| 2019 | $760,690 | $125,360 | $0 | $886,050 | $886,050 |
| 2018 | $565,900 | $110,480 | $0 | $676,380 | $676,380 |
| 2017 | $565,900 | $110,480 | $0 | $676,380 | $676,380 |
| 2016 | $565,900 | $110,480 | $0 | $676,380 | $676,380 |
| 2015 | $565,900 | $110,480 | $0 | $676,380 | $676,380 |
| 2014 | $565,900 | $110,480 | $0 | $676,380 | $676,380 |
| 2013 | $565,900 | $110,500 | $20,487 | $676,400 | $676,400 |
| 2012 | $550,900 | $110,500 | $0 | $0 | $0 |
| 2011 | $539,500 | $130,200 | $0 | $0 | $0 |
| 2010 | $519,700 | $130,200 | $0 | $0 | $0 |
| 2009 | $539,600 | $130,200 | $0 | $0 | $0 |
| 2008 | $540,100 | $130,300 | $0 | $0 | $0 |
| 2007 | $550,900 | $110,500 | $0 | $0 | $0 |
Deed and Sales History
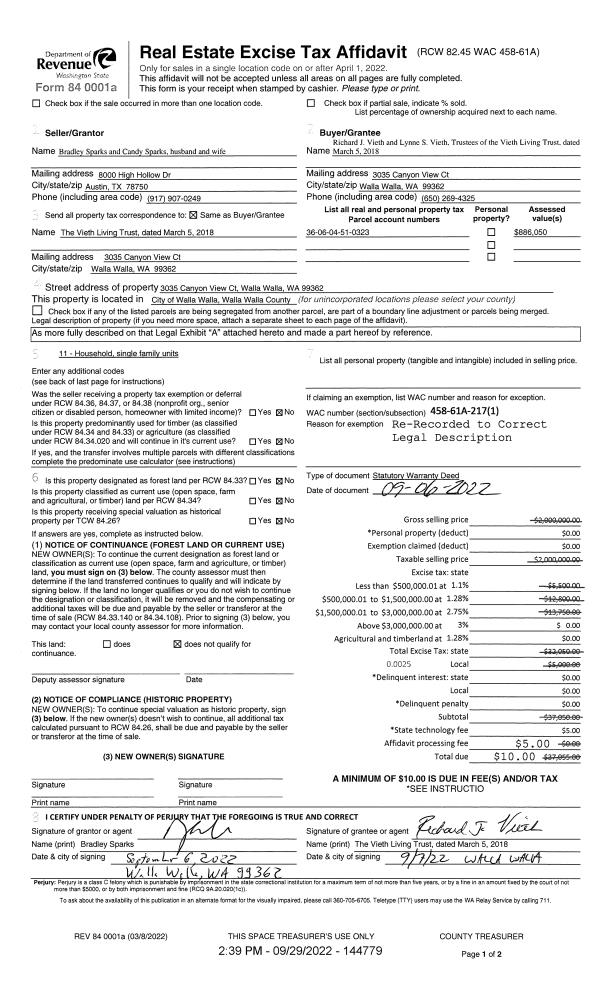
| 1 | 09/29/2022 | SWD | STATUTORY WARRANTY DEED | SPARKS BRADLEY & CANDY | VIETH LIVING TRUST | | | | 144779 | 2022-08102 |
| 2 | 09/06/2022 | SWD | STATUTORY WARRANTY DEED | SPARKS BRADLEY & CANDY | VIETH LIVING TRUST | | | $2,000,000.00 | 144647 | 2022-07482 |
| 3 | 11/13/2018 | SWD | STATUTORY WARRANTY DEED | DAYAL PRABHAKAR & RENUKA | SPARKS BRADLEY & CANDY | | | $1,227,050.00 | 135928 | 2018-09356 |
Payout Agreement
| No payout information available.. |