Property
Account |
| Property ID: | 17947 | Abbreviated Legal Description: | MELODY PARK TERRACE TAX 24 LOT 37 |
| Parcel Number: | 360716540126 | Agent Code: | |
| Type: | Real | | |
| Tax Area: | 5 - OL-140 | Land Use Code | 11 |
| Open Space: | N | DFL | N |
| Historic Property: | N | Remodel Property: | N |
| Multi-Family Redevelopment: | N | | |
| Township: | 7 | Section: | 16 |
| Range: | 36 |
Location |
| Address: | 2044 CRAWFORD DR WA 99362 | Mapsco: | |
| Neighborhood: | A-SFR | Map ID: | |
| Neighborhood CD: | 313011 |
Owner |
| Name: | ADKINS JASON & ASHLEY BERG | Owner ID: | 65075 |
| Mailing Address: | 2044 CRAWFORD DR WALLA WALLA, WA 99362 | % Ownership: | 100.0000000000% |
| | | Exemptions: | |
Taxes and Assessment Details
Values
| (+) Improvement Homesite Value: | + | $0 | |
| (+) Improvement Non-Homesite Value: | + | $255,940 | |
| (+) Land Homesite Value: | + | $0 | |
| (+) Land Non-Homesite Value: | + | $90,000 | |
| (+) Curr Use (HS): | + | $0 | $0 |
| (+) Curr Use (NHS): | + | $0 | $0 |
| | | -------------------------- | |
| (=) Market Value: | = | $345,940 | |
| (–) Productivity Loss: | – | $0 | |
| | | -------------------------- | |
| (=) Subtotal: | = | $345,940 | |
| (+) Senior Appraised Value: | + | $0 | |
| (+) Non-Senior Appraised Value: | + | $345,940 | |
| | | -------------------------- | |
| (=) Total Appraised Value: | = | $345,940 | |
| (–) Senior Exemption Loss: | – | $0 | |
| (–) Exemption Loss: | – | $0 | |
| | | -------------------------- | |
| (=) Taxable Value: | = | $345,940 | |
Taxing Jurisdiction
| Owner: | ADKINS JASON & ASHLEY BERG | | |
| % Ownership: | 100.0000000000% | | |
| Total Value: | $345,940 | | |
| Tax Area: | 5 - OL-140 |
| CERFD | CURRENT EXPENSE REFUND 010 | 0.0000000000 | $345,940 | $345,940 | $0.00 | | |
| CURREXP | CURRENT EXPENSE 010 | 1.0175366760 | $345,940 | $345,940 | $352.01 | | |
| HUMNSERV | HUMAN SERVICES 119 | 0.0250000000 | $345,940 | $345,940 | $8.65 | | |
| SLDREL | SOLDIERS RELIEF 121 | 0.0155990005 | $345,940 | $345,940 | $5.40 | | |
| EMERGSER | EMS 147 | 0.3792580840 | $345,940 | $345,940 | $131.20 | | |
| EMSRFD | EMS REFUND 147 | 0.0000000000 | $345,940 | $345,940 | $0.00 | | |
| PORTRFD | PORT REFUND 640 | 0.0000000000 | $345,940 | $345,940 | $0.00 | | |
| PORTWWGEN | PORT OF WW 640 | 0.2460186015 | $345,940 | $345,940 | $85.11 | | |
| SD140BOND | SD #140 BOND 764 | 0.8342371393 | $345,940 | $345,940 | $288.60 | | |
| SD140GEN | SD #140 GENERAL 760 | 2.0646500647 | $345,940 | $345,940 | $714.25 | | |
| ST2 | STATE SCHOOL PART 2 600 | 0.8131451643 | $345,940 | $345,940 | $281.30 | | |
| STATESCHL | STATE SCHOOL 600 | 1.5158548041 | $345,940 | $345,940 | $524.39 | | |
| STREFUND | STATE REFUND LEVY 603 | 0.0000000000 | $345,940 | $345,940 | $0.00 | | |
| CWWBOND | C OF WW BOND 643 | 0.2760494372 | $345,940 | $345,940 | $95.50 | | |
| CWWGEN | CITY OF WW 631 | 1.6100204973 | $345,940 | $345,940 | $556.97 | | |
| CWWRFD | CITY OF WALLA WALLA REFUND 631 | 0.0000000000 | $345,940 | $345,940 | $0.00 | | |
| | Total Tax Rate: | 8.7973694689 | | | | | |
| | | | | Taxes w/Current Exemptions: | $3,043.38 | | |
| | | | | Taxes w/o Exemptions: | $3,043.38 | | |
Improvement / Building
| Improvement #1: | RESIDENTIAL | State Code: | 11 | 1160.0 sqft | Value: | $255,940 |
| Exterior Wall: | SIDING | Heating/Cooling: | WARM & COOLED AIR | | Number of Bathrooms: | 2 | Number of Bedrooms: | 3 | | Plumbing: | 9 | Roof Covering: | COMP SHINGLE |
|
| | Type | Description | Class CD | Sub Class CD | Year Built | Area |
| | MA | Main Area | 1 | 30 | 1965 | 1160.0 |
| | SI1 | SITE IMPROVEMENT | 1 | 30 | 1965 | 1.5 |
| | BASE | BASEMENT | 1 | 30 | 1965 | 1160.0 |
| | BPF | BASEMENT -PARTITIONED FINISH | 1 | 30 | 1965 | 1160.0 |
| | S1F | Single One Story Fireplace | 1 | 30 | 1965 | 1.0 |
| | UTST | Utility Storage Shed | 1 | 30 | 1965 | 99.0 |
| | RPC | OPEN PORCH W/ROOF , CEILED | 1 | 30 | 1965 | 84.0 |
| | CPC | COVERED CARPORT/PATIO | 1 | 30 | 1965 | 553.0 |
Sketch
Property Image
Land
| 1 | RES 1 | Converted: Residential | 0.1513 | 6590.00 | 0.00 | 0.00 | 1.00 | $90,000 | $0 |
Roll Value History
| 2026 | N/A | N/A | N/A | N/A | N/A |
| 2025 | $255,940 | $90,000 | $0 | $345,940 | $345,940 |
| 2024 | $255,940 | $90,000 | $0 | $345,940 | $345,940 |
| 2023 | $255,940 | $90,000 | $0 | $345,940 | $345,940 |
| 2022 | $255,940 | $90,000 | $0 | $345,940 | $345,940 |
| 2021 | $188,640 | $55,000 | $0 | $243,640 | $243,640 |
| 2020 | $164,030 | $55,000 | $0 | $219,030 | $219,030 |
| 2019 | $164,030 | $55,000 | $0 | $219,030 | $219,030 |
| 2018 | $142,630 | $55,000 | $0 | $197,630 | $197,630 |
| 2017 | $135,840 | $55,000 | $0 | $190,840 | $190,840 |
| 2016 | $123,490 | $55,000 | $0 | $178,490 | $178,490 |
| 2015 | $111,400 | $55,000 | $0 | $166,400 | $166,400 |
| 2014 | $111,400 | $55,000 | $0 | $166,400 | $166,400 |
| 2013 | $111,400 | $55,000 | $0 | $166,400 | $166,400 |
| 2012 | $120,200 | $55,000 | $0 | $0 | $0 |
| 2011 | $120,200 | $55,000 | $0 | $0 | $0 |
| 2010 | $120,200 | $40,000 | $0 | $0 | $0 |
| 2009 | $138,000 | $40,000 | $0 | $0 | $0 |
| 2008 | $102,400 | $40,000 | $0 | $0 | $0 |
| 2007 | $102,400 | $40,000 | $0 | $0 | $0 |
Deed and Sales History
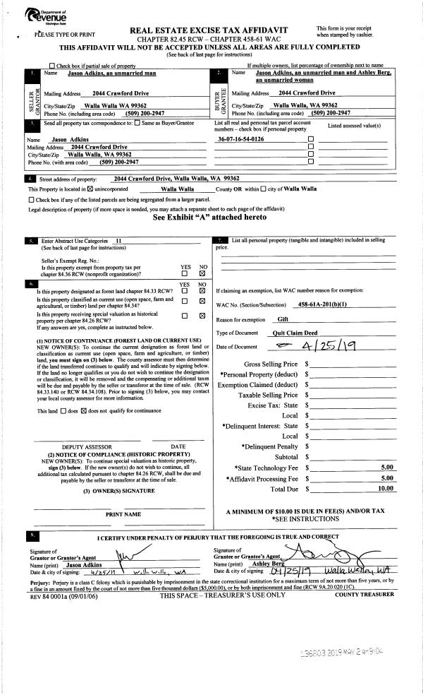
| 1 | 05/02/2019 | QCD | QUIT CLAIM DEED | ADKINS JASON | ADKINS JASON & ASHLEY BERG | | | $0.00 | 136803 | 2019-02853 |
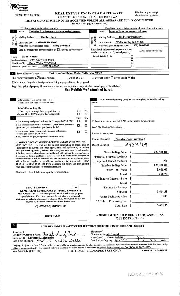
| 2 | 05/01/2019 | SWD | STATUTORY WARRANTY DEED | ALEXANDER CHRISTINE | ADKINS JASON | | | $239,500.00 | 136801 | 2019-02848 |
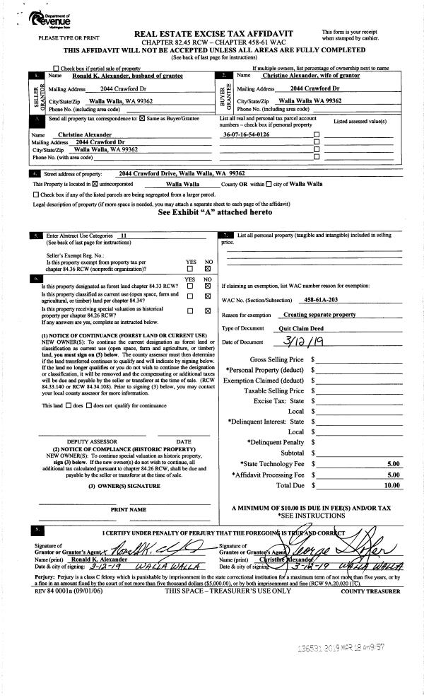
| 3 | 03/12/2019 | QCD | QUIT CLAIM DEED | ALEXANDER RONALD K & CHRISTINE | ALEXANDER CHRISTINE | | | $0.00 | 136531 | 2019-01699 |
| 4 | 10/18/2007 | WARRANTY D | WARRANTY DEED | MATIER, RUDOLPH | ALEXANDER, RONALD K & CHRISTIN | | | $179,900.00 | 113908 | 2007-12143 |
| 5 | 08/06/1982 | WARRANTY D | WARRANTY DEED | | | | | $59,500.00 | 0 | 1348-205688 |
Payout Agreement
| No payout information available.. |