Property
Account |
| Property ID: | 17936 | Abbreviated Legal Description: | HARVEST HEIGHTS LOT 7 |
| Parcel Number: | 350601540007 | Agent Code: | |
| Type: | Real | | |
| Tax Area: | 75 - CP 250 | Land Use Code | 11 |
| Open Space: | N | DFL | N |
| Historic Property: | N | Remodel Property: | N |
| Multi-Family Redevelopment: | N | | |
| Township: | 6 | Section: | 1 |
| Range: | 35 |
Location |
| Address: | 1867 SE BLISS LN WA 99324 | Mapsco: | |
| Neighborhood: | G SFR Rural/City Inf | Map ID: | |
| Neighborhood CD: | 114012 |
Owner |
| Name: | FREDELL JOHN | Owner ID: | 60136 |
| Mailing Address: | 1867 SE BLISS LN COLLEGE PLACE, WA 99324 | % Ownership: | 100.0000000000% |
| | | Exemptions: | |
Taxes and Assessment Details
Property Tax Information as of
02/21/2026
Click on "Statement Details" to expand or collapse a tax statement.
* Please enter a valid date ** Please enter a valid date *
Statement Details |
| | TOTAL: | $0.00 | $0.00 | $0.00 | $0.00 | $0.00 | $0.00 |
|
| | $0.00 | $0.00 | $0.00 | $0.00 | $0.00 | $0.00 |
Values
| (+) Improvement Homesite Value: | + | $0 | |
| (+) Improvement Non-Homesite Value: | + | $355,130 | |
| (+) Land Homesite Value: | + | $0 | |
| (+) Land Non-Homesite Value: | + | $75,000 | |
| (+) Curr Use (HS): | + | $0 | $0 |
| (+) Curr Use (NHS): | + | $0 | $0 |
| | | -------------------------- | |
| (=) Market Value: | = | $430,130 | |
| (–) Productivity Loss: | – | $0 | |
| | | -------------------------- | |
| (=) Subtotal: | = | $430,130 | |
| (+) Senior Appraised Value: | + | $0 | |
| (+) Non-Senior Appraised Value: | + | $430,130 | |
| | | -------------------------- | |
| (=) Total Appraised Value: | = | $430,130 | |
| (–) Senior Exemption Loss: | – | $0 | |
| (–) Exemption Loss: | – | $0 | |
| | | -------------------------- | |
| (=) Taxable Value: | = | $430,130 | |
Taxing Jurisdiction
| Owner: | FREDELL JOHN | | |
| % Ownership: | 100.0000000000% | | |
| Total Value: | $430,130 | | |
| Tax Area: | 75 - CP 250 |
| CERFD | CURRENT EXPENSE REFUND 010 | 0.0000000000 | $430,130 | $430,130 | $0.00 | | |
| CURREXP | CURRENT EXPENSE 010 | 1.0175366760 | $430,130 | $430,130 | $437.67 | | |
| HUMNSERV | HUMAN SERVICES 119 | 0.0250000000 | $430,130 | $430,130 | $10.75 | | |
| SLDREL | SOLDIERS RELIEF 121 | 0.0155990005 | $430,130 | $430,130 | $6.71 | | |
| COLLPLBOND | C OF CP BOND 644 | 0.4374241808 | $430,130 | $430,130 | $188.15 | | |
| COLLPLGEN | CITY OF CP 632 | 1.4453819216 | $430,130 | $430,130 | $621.70 | | |
| EMERGSER | EMS 147 | 0.3792580840 | $430,130 | $430,130 | $163.13 | | |
| EMSRFD | EMS REFUND 147 | 0.0000000000 | $430,130 | $430,130 | $0.00 | | |
| RURALLIB | RURAL LIBRARY 623 | 0.3710609029 | $430,130 | $430,130 | $159.60 | | |
| PORTRFD | PORT REFUND 640 | 0.0000000000 | $430,130 | $430,130 | $0.00 | | |
| PORTWWGEN | PORT OF WW 640 | 0.2460186015 | $430,130 | $430,130 | $105.82 | | |
| SD250BOND | SD #250 BOND 773 | 1.4560608159 | $430,130 | $430,130 | $626.30 | | |
| SD250GEN | SD #250 GENERAL 770 | 2.3880724087 | $430,130 | $430,130 | $1,027.18 | | |
| ST2 | STATE SCHOOL PART 2 600 | 0.8131451643 | $430,130 | $430,130 | $349.76 | | |
| STATESCHL | STATE SCHOOL 600 | 1.5158548041 | $430,130 | $430,130 | $652.01 | | |
| STREFUND | STATE REFUND LEVY 603 | 0.0000000000 | $430,130 | $430,130 | $0.00 | | |
| | Total Tax Rate: | 10.1104125603 | | | | | |
| | | | | Taxes w/Current Exemptions: | $4,348.78 | | |
| | | | | Taxes w/o Exemptions: | $4,348.78 | | |
Improvement / Building
| Improvement #1: | RESIDENTIAL | State Code: | 11 | 1764.0 sqft | Value: | $355,130 |
| Exterior Wall: | HARDBOARD | Heating/Cooling: | WARM & COOLED AIR | | Number of Bathrooms: | 2.5 | Number of Bedrooms: | 3 | | Plumbing: | 12 | Roof Covering: | COMP SHINGLE |
|
| | Type | Description | Class CD | Sub Class CD | Year Built | Area |
| | MA | Main Area | 1 | 40 | 2008 | 1764.0 |
| | ATG | Attached Garage | 1 | 40 | 2008 | 621.0 |
| | RPC | OPEN PORCH W/ROOF , CEILED | 1 | 40 | 2008 | 49.0 |
| | SI1 | SITE IMPROVEMENT | 1 | 40 | 2008 | 3.0 |
Sketch
Property Image
Land
| 1 | RES 1 | Converted: Residential | 0.1758 | 7657.00 | 0.00 | 0.00 | 1.00 | $75,000 | $0 |
Roll Value History
| 2026 | N/A | N/A | N/A | N/A | N/A |
| 2025 | $291,200 | $135,000 | $0 | $426,200 | $426,200 |
| 2024 | $355,130 | $75,000 | $0 | $430,130 | $430,130 |
| 2023 | $355,130 | $75,000 | $0 | $430,130 | $430,130 |
| 2022 | $355,130 | $75,000 | $0 | $430,130 | $430,130 |
| 2021 | $355,130 | $75,000 | $0 | $430,130 | $430,130 |
| 2020 | $236,750 | $75,000 | $0 | $311,750 | $311,750 |
| 2019 | $266,750 | $45,000 | $0 | $311,750 | $311,750 |
| 2018 | $242,500 | $45,000 | $0 | $287,500 | $287,500 |
| 2017 | $242,500 | $45,000 | $0 | $287,500 | $287,500 |
| 2016 | $242,500 | $45,000 | $0 | $287,500 | $287,500 |
| 2015 | $121,490 | $45,000 | $0 | $166,490 | $166,490 |
| 2014 | $0 | $45,000 | $0 | $45,000 | $45,000 |
| 2013 | $0 | $45,000 | $0 | $45,000 | $45,000 |
| 2012 | $181,100 | $65,000 | $0 | $0 | $0 |
| 2011 | $181,100 | $65,000 | $0 | $0 | $0 |
| 2010 | $186,100 | $65,000 | $0 | $0 | $0 |
| 2009 | $214,000 | $65,000 | $0 | $0 | $0 |
| 2008 | $0 | $900 | $0 | $0 | $0 |
| 2007 | $0 | $900 | $0 | $0 | $0 |
Deed and Sales History
| 1 | 02/12/2024 | SWD | STATUTORY WARRANTY DEED | FREDELL JOHN | PARTRIDGE KARA NICOLE & DANE WILLIAM CURRY | | | $480,000.00 | 147144 | 2024-00752 |
| 2 | 12/07/2016 | SWD | STATUTORY WARRANTY DEED | WERNER CASEY | FREDELL JOHN | | | $299,900.00 | 131561 | 2016-10050 |
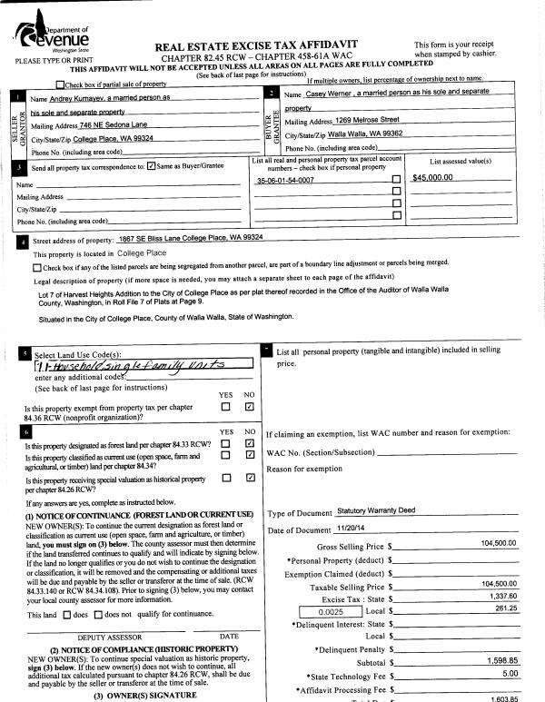
| 3 | 11/20/2014 | SWD | STATUTORY WARRANTY DEED | KURNAYEV ANDREY | WERNER CASEY | | | $104,500.00 | 126980 | 2014-08431 |
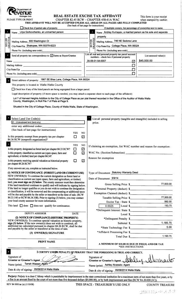
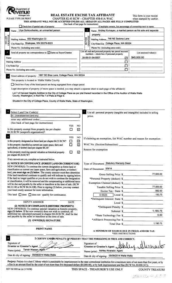
| 4 | 05/16/2014 | SWD | STATUTORY WARRANTY DEED | GORKOVCHENKO LILIYA V | KURNAYEV ANDREY | | | $77,500.00 | 125903 | 2014-03346 |
| 5 | 09/21/2007 | WARRANTY D | WARRANTY DEED | WESTERN B PLANNERS | GORKOVCHENKO, ANDREY N & LILIY | | | $65,000.00 | 113749 | 2007-11107 |
Payout Agreement
| No payout information available.. |