| 1 | 04/18/2025 | SWD | STATUTORY WARRANTY DEED | SMITH SHAWN E & CARRIE DIEDE | ORTIZ CINDY S & PEDRO P | | | $450,000.00 | 149262 | 2025-02071 |
| 2 | 06/28/2016 | SWD | STATUTORY WARRANTY DEED | FEDERAL NATIONAL MORTGAGE ASSOCIATION | SMITH SHAWN E & CARRIE DIEDE | | | $224,900.00 | 130504 | 2016-04971 |
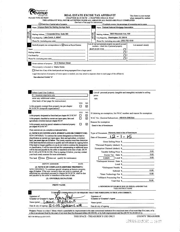
| 3 | 12/01/2015 | WARRANTY D | WARRANTY DEED | UMPQUA BANK FKA STERLING SAVINGS BANK | FEDERAL NATIONAL MORTGAGE ASSOCIATION | | | | 129326 | 2015-10568 |
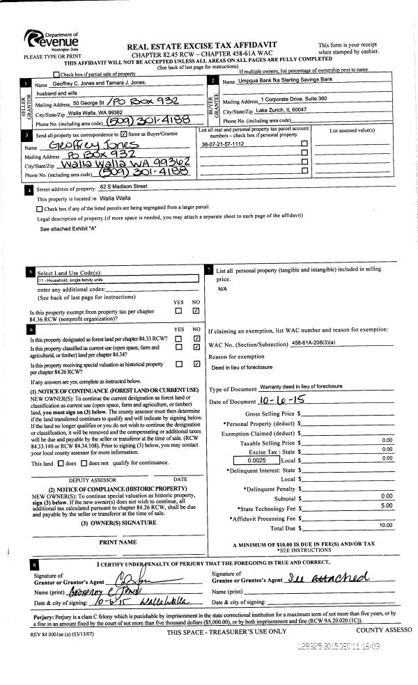
| 4 | 10/06/2015 | DFL | DEED IN LIEU OF FORECLOSURE | JONES GEOFFREY C & TAMARA J | UMPQUA BANK FKA STERLING SAVINGS BANK | | | | 129325 | 2015-10565 |
| 5 | 01/30/2007 | WARRANTY D | WARRANTY DEED | SANDERS, WILLIAM E & MARI E | JONES, GEOFFREY C & TAMARA J | | | $120,500.00 | 112149 | 2007-01153 |
| 6 | 09/16/2003 | WARRANTY D | WARRANTY DEED | RILEY, GEORGE JR & VELMA | SANDERS, WILLIAM E & MARI E | | | $78,500.00 | 103019 | 2003-14110 |
| 7 | 04/06/1979 | WARRANTY D | WARRANTY DEED | | | | | $39,593.00 | 0 | 1017-903217 |