Property
Account |
| Property ID: | 17917 | Abbreviated Legal Description: | BOYER GROVE LOT 7 & 8 BLK 1 |
| Parcel Number: | 360720550107 | Agent Code: | |
| Type: | Real | | |
| Tax Area: | 1 - OL-140-F | Land Use Code | 11 |
| Open Space: | N | DFL | N |
| Historic Property: | N | Remodel Property: | N |
| Multi-Family Redevelopment: | N | | |
| Township: | 7 | Section: | 20 |
| Range: | 36 |
Location |
| Address: | 253 MARCUS ST WA 99362 | Mapsco: | |
| Neighborhood: | G-SFR | Map ID: | |
| Neighborhood CD: | 514011 |
Owner |
| Name: | PAOLELLA LAWRENCE N FAMILY REVOCABLE TRUST | Owner ID: | 65981 |
| Mailing Address: | LAWRENCE N PAOLELLA TRUSTEE 73 OLD POST RD RHINEBECK, NY 12572 | % Ownership: | 100.0000000000% |
| | | Exemptions: | |
Taxes and Assessment Details
Values
| (+) Improvement Homesite Value: | + | $0 | |
| (+) Improvement Non-Homesite Value: | + | $612,300 | |
| (+) Land Homesite Value: | + | $0 | |
| (+) Land Non-Homesite Value: | + | $74,830 | |
| (+) Curr Use (HS): | + | $0 | $0 |
| (+) Curr Use (NHS): | + | $0 | $0 |
| | | -------------------------- | |
| (=) Market Value: | = | $687,130 | |
| (–) Productivity Loss: | – | $0 | |
| | | -------------------------- | |
| (=) Subtotal: | = | $687,130 | |
| (+) Senior Appraised Value: | + | $0 | |
| (+) Non-Senior Appraised Value: | + | $687,130 | |
| | | -------------------------- | |
| (=) Total Appraised Value: | = | $687,130 | |
| (–) Senior Exemption Loss: | – | $0 | |
| (–) Exemption Loss: | – | $0 | |
| | | -------------------------- | |
| (=) Taxable Value: | = | $687,130 | |
Taxing Jurisdiction
| Owner: | PAOLELLA LAWRENCE N FAMILY REVOCABLE TRUST | | |
| % Ownership: | 100.0000000000% | | |
| Total Value: | $687,130 | | |
| Tax Area: | 1 - OL-140-F |
| CERFD | CURRENT EXPENSE REFUND 010 | 0.0000000000 | $687,130 | $687,130 | $0.00 | | |
| CURREXP | CURRENT EXPENSE 010 | 1.0175366760 | $687,130 | $687,130 | $699.18 | | |
| HUMNSERV | HUMAN SERVICES 119 | 0.0250000000 | $687,130 | $687,130 | $17.18 | | |
| SLDREL | SOLDIERS RELIEF 121 | 0.0155990005 | $687,130 | $687,130 | $10.72 | | |
| EMERGSER | EMS 147 | 0.3792580840 | $687,130 | $687,130 | $260.60 | | |
| EMSRFD | EMS REFUND 147 | 0.0000000000 | $687,130 | $687,130 | $0.00 | | |
| PORTRFD | PORT REFUND 640 | 0.0000000000 | $687,130 | $687,130 | $0.00 | | |
| PORTWWGEN | PORT OF WW 640 | 0.2460186015 | $687,130 | $687,130 | $169.05 | | |
| SD140BOND | SD #140 BOND 764 | 0.8342371393 | $687,130 | $687,130 | $573.23 | | |
| SD140GEN | SD #140 GENERAL 760 | 2.0646500647 | $687,130 | $687,130 | $1,418.68 | | |
| ST2 | STATE SCHOOL PART 2 600 | 0.8131451643 | $687,130 | $687,130 | $558.74 | | |
| STATESCHL | STATE SCHOOL 600 | 1.5158548041 | $687,130 | $687,130 | $1,041.59 | | |
| STREFUND | STATE REFUND LEVY 603 | 0.0000000000 | $687,130 | $687,130 | $0.00 | | |
| CWWBOND | C OF WW BOND 643 | 0.2760494372 | $687,130 | $687,130 | $189.68 | | |
| CWWGEN | CITY OF WW 631 | 1.6100204973 | $687,130 | $687,130 | $1,106.29 | | |
| CWWRFD | CITY OF WALLA WALLA REFUND 631 | 0.0000000000 | $687,130 | $687,130 | $0.00 | | |
| | Total Tax Rate: | 8.7973694689 | | | | | |
| | | | | Taxes w/Current Exemptions: | $6,044.94 | | |
| | | | | Taxes w/o Exemptions: | $6,044.94 | | |
Improvement / Building
| Improvement #1: | RESIDENTIAL | State Code: | 11 | 1995.0 sqft | Value: | $612,300 |
| Exterior Wall: | SIDING | Heating/Cooling: | WARM & COOLED AIR | | Number of Bathrooms: | 2.5 | Number of Bedrooms: | 3 | | Plumbing: | 11 | Roof Covering: | COMP SHINGLE |
|
| | Type | Description | Class CD | Sub Class CD | Year Built | Area |
| | MA | Main Area | 2 | 50 | 1905 | 1995.0 |
| | UPFL | Upper Floor (included in main area) | 2 | 50 | 1905 | 864.0 |
| | ATIC | ATTIC ROOM | 2 | 50 | 1905 | 388.0 |
| | SI1 | SITE IMPROVEMENT | 2 | 50 | 1905 | 3.0 |
| | BASE | BASEMENT | 2 | 50 | 1905 | 864.0 |
| | GFP | GAS FIREPLACE | 2 | 50 | 1905 | 1.0 |
| | S2F | Single 2S Fireplace | 2 | 50 | 1905 | 1.0 |
| | WOD | Wood Deck | 2 | 50 | 1905 | 240.0 |
| | DTG | Detached Garage | 2 | 50 | 1905 | 400.0 |
Sketch
Property Image
Land
| 1 | RES 1 | Converted: Residential | 0.3223 | 14040.00 | 0.00 | 0.00 | 1.00 | $74,830 | $0 |
Roll Value History
| 2026 | N/A | N/A | N/A | N/A | N/A |
| 2025 | $417,850 | $133,800 | $0 | $551,650 | $551,650 |
| 2024 | $557,130 | $133,800 | $0 | $690,930 | $690,930 |
| 2023 | $612,300 | $74,830 | $0 | $687,130 | $687,130 |
| 2022 | $556,630 | $74,830 | $0 | $631,460 | $631,460 |
| 2021 | $412,320 | $74,830 | $0 | $487,150 | $487,150 |
| 2020 | $317,170 | $74,830 | $0 | $392,000 | $392,000 |
| 2019 | $317,170 | $74,830 | $0 | $392,000 | $392,000 |
| 2018 | $317,170 | $74,830 | $0 | $392,000 | $392,000 |
| 2017 | $289,280 | $47,400 | $0 | $336,680 | $336,680 |
| 2016 | $262,980 | $47,400 | $0 | $310,380 | $310,380 |
| 2015 | $262,980 | $47,400 | $0 | $310,380 | $310,380 |
| 2014 | $292,200 | $47,400 | $0 | $339,600 | $339,600 |
| 2013 | $292,200 | $47,400 | $0 | $339,600 | $339,600 |
| 2012 | $292,200 | $47,400 | $0 | $0 | $0 |
| 2011 | $292,200 | $47,400 | $0 | $0 | $0 |
| 2010 | $276,000 | $47,400 | $0 | $0 | $0 |
| 2009 | $311,900 | $47,400 | $0 | $0 | $0 |
| 2008 | $200,400 | $47,400 | $0 | $0 | $0 |
| 2007 | $200,400 | $47,400 | $0 | $0 | $0 |
Deed and Sales History
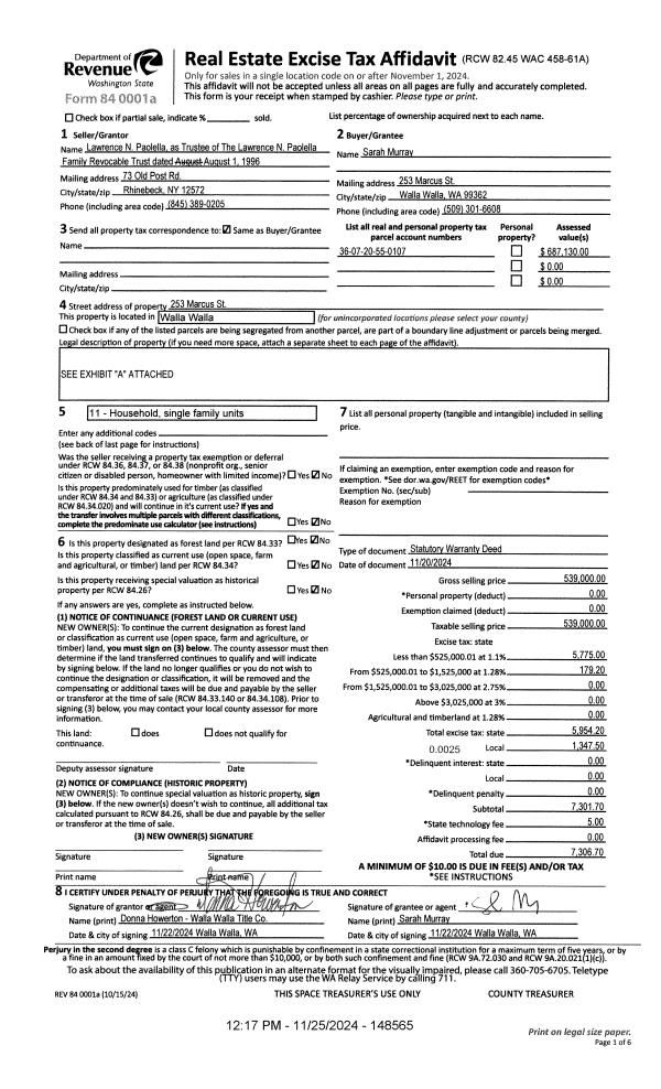
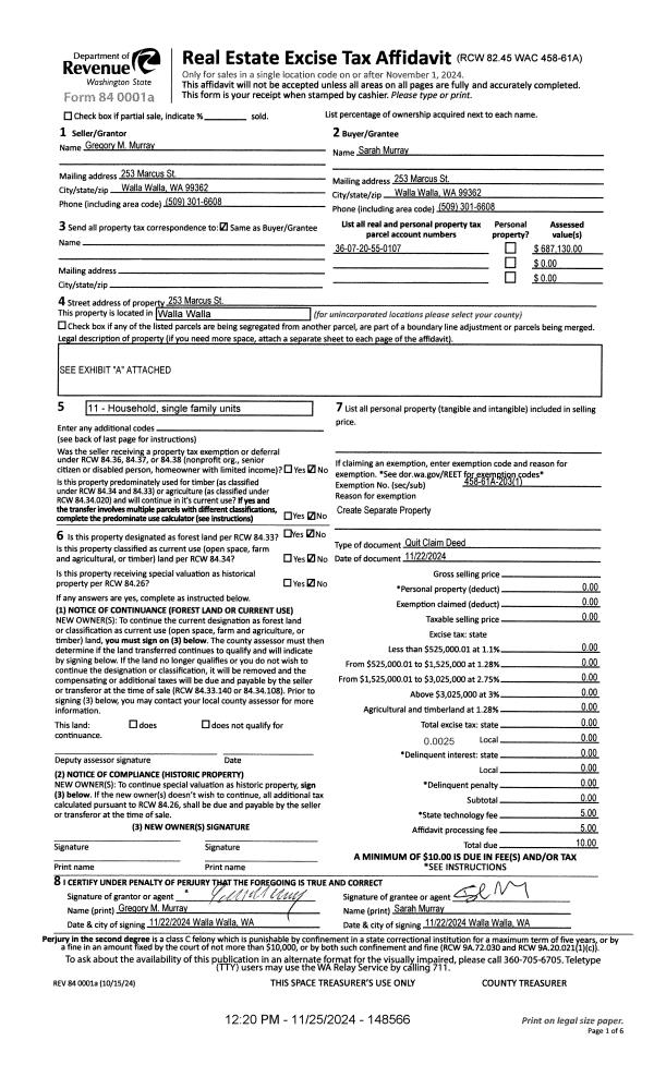
| 1 | 11/25/2024 | QCD | QUIT CLAIM DEED | MURRAY GREGORY M | MURRAY SARAH | | | | 148566 | 2024-06816 |
| 2 | 11/25/2024 | SWD | STATUTORY WARRANTY DEED | PAOLELLA LAWRENCE N FAMILY REVOCABLE TRUST | MURRAY SARAH | | | $539,000.00 | 148565 | 2024-06815 |
| 3 | 10/01/2019 | QCD | QUIT CLAIM DEED | PAOLELLA LAWRENCE N FAMILY REVOCABLE TRUST AND | PAOLELLA LAWRENCE N FAMILY REVOCABLE TRUST | | | $0.00 | 137798 | 2019-07802 |
| 4 | 01/31/2018 | QCD | QUIT CLAIM DEED | PAOLELLA LAWRENCE | PAOLELLA LAWRENCE N FAMILY REVOCABLE TRUST AND | | | $0.00 | 134134 | 2018-01125 |
| 5 | 10/17/2007 | WARRANTY D | WARRANTY DEED | AKERS, RUSSELL | PAOLELLA, LAWRENCE | | | $378,000.00 | 113901 | 2007-12111 |
| 6 | 11/02/2001 | WARRANTY D | WARRANTY DEED | | | | | $185,000.00 | 98281 | 3220-111824 |
Payout Agreement
| No payout information available.. |