Property
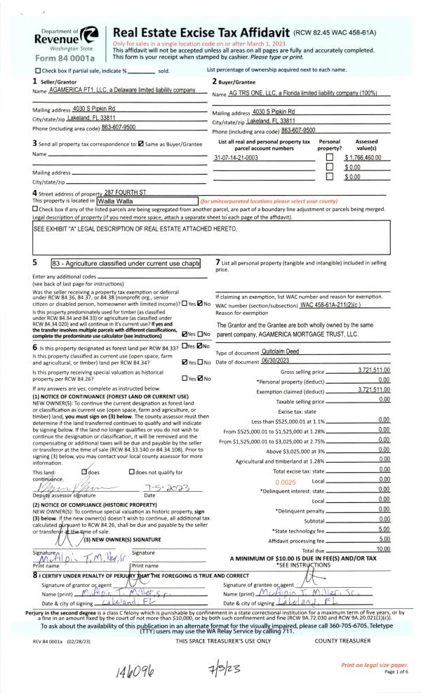
Account |
| Property ID: | 17898 | Abbreviated Legal Description: | SEC 14 TWP 7 RNG 31 PARCEL #3 |
| Parcel Number: | 310714210003 | Agent Code: | |
| Type: | Real | | |
| Tax Area: | 327 - 400-5-WI-C-M | Land Use Code | 83 |
| Open Space: | Y | DFL | N |
| Historic Property: | N | Remodel Property: | N |
| Multi-Family Redevelopment: | N | | |
| Township: | 7 | Section: | 14 |
| Range: | 31 |
Location |
| Address: | 287 FOURTH ST WA 99323 | Mapsco: | |
| Neighborhood: | 0 Farm | Map ID: | |
| Neighborhood CD: | 2220 |
Owner |
| Name: | AG TRS ONE LLC | Owner ID: | 73858 |
| Mailing Address: | 4030 SOUTH PIPKIN RD LAKELAND, FL 33811 | % Ownership: | 100.0000000000% |
| | | Exemptions: | |
Taxes and Assessment Details
Values
| (+) Improvement Homesite Value: | + | $0 | |
| (+) Improvement Non-Homesite Value: | + | $995,290 | |
| (+) Land Homesite Value: | + | $0 | |
| (+) Land Non-Homesite Value: | + | $0 | |
| (+) Curr Use (HS): | + | $45,000 | $370 |
| (+) Curr Use (NHS): | + | $784,560 | $163,720 |
| | | -------------------------- | |
| (=) Market Value: | = | $1,824,850 | |
| (–) Productivity Loss: | – | $665,470 | |
| | | -------------------------- | |
| (=) Subtotal: | = | $1,159,380 | |
| (+) Senior Appraised Value: | + | $0 | |
| (+) Non-Senior Appraised Value: | + | $1,159,380 | |
| | | -------------------------- | |
| (=) Total Appraised Value: | = | $1,159,380 | |
| (–) Senior Exemption Loss: | – | $0 | |
| (–) Exemption Loss: | – | $0 | |
| | | -------------------------- | |
| (=) Taxable Value: | = | $1,159,380 | |
Taxing Jurisdiction
| Owner: | AG TRS ONE LLC | | |
| % Ownership: | 100.0000000000% | | |
| Total Value: | $1,824,850 | | |
| Tax Area: | 327 - 400-5-WI-C-M |
| CERFD | CURRENT EXPENSE REFUND 010 | 0.0000000000 | $1,159,380 | $1,159,380 | $0.00 | | |
| CURREXP | CURRENT EXPENSE 010 | 1.0175366760 | $1,159,380 | $1,159,380 | $1,179.71 | | |
| HUMNSERV | HUMAN SERVICES 119 | 0.0250000000 | $1,159,380 | $1,159,380 | $28.98 | | |
| SLDREL | SOLDIERS RELIEF 121 | 0.0155990005 | $1,159,380 | $1,159,380 | $18.09 | | |
| EMERGSER | EMS 147 | 0.3792580840 | $1,159,380 | $1,159,380 | $439.70 | | |
| EMSRFD | EMS REFUND 147 | 0.0000000000 | $1,159,380 | $1,159,380 | $0.00 | | |
| FD5EXP | FD #5 EXPENSE 689 | 1.2045331840 | $1,159,380 | $1,159,380 | $1,396.51 | | |
| RLBRFD | RURAL LIBRARY REFUND 623 | 0.0000000000 | $1,159,380 | $1,159,380 | $0.00 | | |
| RURALLIB | RURAL LIBRARY 623 | 0.3710609029 | $1,159,380 | $1,159,380 | $430.20 | | |
| PORTRFD | PORT REFUND 640 | 0.0000000000 | $1,159,380 | $1,159,380 | $0.00 | | |
| PORTWWGEN | PORT OF WW 640 | 0.2460186015 | $1,159,380 | $1,159,380 | $285.23 | | |
| SD400BOND | SD #400 BOND 793 | 0.0000000000 | $1,159,380 | $1,159,380 | $0.00 | | |
| SD400CAP | SD #400 CP 792 | 0.3443722657 | $1,159,380 | $1,159,380 | $399.26 | | |
| SD400GEN | SD #400 GENERAL 790 | 1.9278469916 | $1,159,380 | $1,159,380 | $2,235.11 | | |
| ST2 | STATE SCHOOL PART 2 600 | 0.8131451643 | $1,159,380 | $1,159,380 | $942.74 | | |
| STATESCHL | STATE SCHOOL 600 | 1.5158548041 | $1,159,380 | $1,159,380 | $1,757.45 | | |
| STREFUND | STATE REFUND LEVY 603 | 0.0000000000 | $1,159,380 | $1,159,380 | $0.00 | | |
| COROAD | COUNTY ROAD 115 | 1.6549953990 | $1,159,380 | $1,159,380 | $1,918.77 | | |
| CRPRD | COUNTY ROAD REFUND 115 | 0.0000000000 | $1,159,380 | $1,159,380 | $0.00 | | |
| | Total Tax Rate: | 9.5152210736 | | | | | |
| | | | | Taxes w/Current Exemptions: | $11,031.75 | | |
| | | | | Taxes w/o Exemptions: | $11,031.75 | | |
Improvement / Building
| Improvement #1: | MANUFACTURED HOME | State Code: | 83 | 924.0 sqft | Value: | $29,290 |
| Exterior Wall: | HARDBOARD | Heating/Cooling: | FORCED AIR | | Number of Bathrooms: | 2 | Number of Bedrooms: | 3 | | Plumbing: | 8 | Roof Covering: | GALVANIZED METAL |
|
| | Type | Description | Class CD | Sub Class CD | Year Built | Area |
| | MOBHOME | MANUFACTURD HOMES | 1 | 20 | 1978 | 924.0 |
| | BNV | BUILDING NO VALUE | 1 | 10 | 1978 | 200.0 |
| | LNTD | LEAN TO DIRT FLOOR | 1 | 30 | 1978 | 400.0 |
| | MI1 | MH SET-UP COSTS | 1 | 20 | 1978 | 1.0 |
| | POL3 | POLE BUILDING-CON,ELEC,INSU | 1 | 30 | 1978 | 960.0 |
| | TIP | MH ADDITION | 1 | 20 | 1978 | 96.0 |
| | WDR | WOOD DECK W/ROOF | 1 | 20 | 1978 | 128.0 |
| Improvement #2: | PERM CROP | State Code: | 83 | 0.0 sqft | Value: | $966,000 |
| | Type | Description | Class CD | Sub Class CD | Year Built | Area |
| | CHERRY | PC CHERRY | CHERRY | | 1986 | 1.0 |
| | APPLES | HI DENSITY | APPLES | | 2002 | 1.0 |
| | APPLES | HI DENSITY | APPLES | | 2010 | 1.0 |
| | APPLES | HI DENSITY | APPLES | | 2005 | 1.0 |
| | CHERRY | PC CHERRY | CHERRY | | 2010 | 1.0 |
| | CHERRY | PC CHERRY | CHERRY | | 2012 | 1.0 |
| | CHERRY | PC CHERRY | CHERRY | | 2011 | 1.0 |
| | APPLES | HI DENSITY | APPLES | * | 2021 | 0.0 |
| Improvement #3: | FARM BUILDINGS | State Code: | 83 | 0.0 sqft | Value: | $0 |
Sketch
Property Image
Land
| 1 | DLP | Dry Land Pasture | 17.6300 | 0.00 | 0.00 | 0.00 | 1.00 | $6,960 | $420 |
| 2 | C2-I | Class 2 Irrigated | 144.0000 | 6272640.00 | 0.00 | 0.00 | 1.00 | $777,600 | $163,300 |
| 3 | 45000-HS4 | Homesite 45000 Open Space | 1.0000 | 0.00 | 0.00 | 0.00 | 1.00 | $45,000 | $370 |
Roll Value History
| 2026 | N/A | N/A | N/A | N/A | N/A |
| 2025 | $1,302,400 | $887,160 | $161,950 | $1,464,350 | $1,464,350 |
| 2024 | $1,002,400 | $858,360 | $165,000 | $1,167,400 | $1,167,400 |
| 2023 | $995,290 | $829,560 | $164,090 | $1,159,380 | $1,159,380 |
| 2022 | $995,290 | $771,170 | $158,320 | $1,153,610 | $1,153,610 |
| 2021 | $955,290 | $699,170 | $161,320 | $1,116,610 | $1,116,610 |
| 2020 | $732,800 | $702,270 | $200,180 | $932,980 | $932,980 |
| 2019 | $564,800 | $615,130 | $202,390 | $767,190 | $767,190 |
| 2018 | $564,800 | $549,260 | $203,030 | $767,830 | $767,830 |
| 2017 | $564,800 | $549,260 | $207,430 | $772,230 | $772,230 |
| 2016 | $564,800 | $477,560 | $241,860 | $806,660 | $806,660 |
| 2015 | $524,800 | $405,560 | $220,050 | $744,850 | $744,850 |
| 2014 | $524,800 | $405,560 | $220,130 | $744,930 | $744,930 |
| 2013 | $524,800 | $391,200 | $198,600 | $723,400 | $723,400 |
| 2012 | $20,600 | $152,800 | $0 | $0 | $0 |
| 2011 | $20,500 | $149,600 | $0 | $0 | $0 |
| 2010 | $20,300 | $144,900 | $0 | $0 | $0 |
| 2009 | $34,800 | $144,500 | $0 | $0 | $0 |
| 2008 | $0 | $138,200 | $0 | $0 | $0 |
| 2007 | $0 | $138,200 | $0 | $0 | $0 |
Deed and Sales History
| 1 | 11/20/2024 | QCD | QUIT CLAIM DEED | AG TRS ONE LLC | AG TRS TWO LLC | | | | 148541 | 2024-06730 |
| 2 | 07/05/2023 | QCD | QUIT CLAIM DEED | AGAMERICA PT1 LLC | AG TRS ONE LLC | | | $0.00 | 146096 | 2023-03787 |
| 3 | 04/24/2023 | WARRANTY D | WARRANTY DEED | SONRISE ORCHARDS | AGAMERICA PT1 LLC | | | $3,796,190.00 | 145704 | 2023-02134 |
| 4 | 09/16/2014 | WARRANTY D | WARRANTY DEED | PETERSEN LAND & LIVESTOCK | SONRISE ORCHARDS | | | | 125602 | 2014-06774 |
| 5 | 03/21/2014 | REAL ESTAT | REAL ESTATE CONTRACT | PETERSEN LAND & LIVESTOCK LLC | SONRISE ORCHARDS | | | $2,400,000.00 | 125602 | 2014-01931 |
| 6 | 08/30/2005 | QCD | QUIT CLAIM DEED | PLEASANT RIDGE ORCHARDS | PETERSEN LAND & LIVESTOCK LLC | | | | 108356 | 2005-10733 |
| 7 | 05/07/1985 | WARRANTY D | WARRANTY DEED | | | | | $126,000.00 | 0 | 1498-502920 |
Payout Agreement
| No payout information available.. |