Property
Account |
| Property ID: | 17876 | Abbreviated Legal Description: | BUTLERS LOT 6 BLK 5 PLUS STRIP TO THE NORTH PLUS ALLEY TO THESOUTH |
| Parcel Number: | 360719520506 | Agent Code: | |
| Type: | Real | | |
| Tax Area: | 1 - OL-140-F | Land Use Code | 11 |
| Open Space: | N | DFL | N |
| Historic Property: | N | Remodel Property: | N |
| Multi-Family Redevelopment: | N | | |
| Township: | 7 | Section: | 19 |
| Range: | 36 |
Location |
| Address: | 531 EDITH AVE WA 99362 | Mapsco: | |
| Neighborhood: | A-SFR | Map ID: | |
| Neighborhood CD: | 313011 |
Owner |
| Name: | HAGEN JEFFREY JOEL | Owner ID: | 67107 |
| Mailing Address: | 531 EDITH AVE WALLA WALLA, WA 99362 | % Ownership: | 100.0000000000% |
| | | Exemptions: | |
Taxes and Assessment Details
Property Tax Information as of
02/21/2026
Click on "Statement Details" to expand or collapse a tax statement.
* Please enter a valid date ** Please enter a valid date *
Statement Details |
| | TOTAL: | $0.00 | $0.00 | $0.00 | $0.00 | $0.00 | $0.00 |
|
| | $0.00 | $0.00 | $0.00 | $0.00 | $0.00 | $0.00 |
Values
| (+) Improvement Homesite Value: | + | $0 | |
| (+) Improvement Non-Homesite Value: | + | $10,380 | |
| (+) Land Homesite Value: | + | $0 | |
| (+) Land Non-Homesite Value: | + | $49,500 | |
| (+) Curr Use (HS): | + | $0 | $0 |
| (+) Curr Use (NHS): | + | $0 | $0 |
| | | -------------------------- | |
| (=) Market Value: | = | $59,880 | |
| (–) Productivity Loss: | – | $0 | |
| | | -------------------------- | |
| (=) Subtotal: | = | $59,880 | |
| (+) Senior Appraised Value: | + | $0 | |
| (+) Non-Senior Appraised Value: | + | $59,880 | |
| | | -------------------------- | |
| (=) Total Appraised Value: | = | $59,880 | |
| (–) Senior Exemption Loss: | – | $0 | |
| (–) Exemption Loss: | – | $0 | |
| | | -------------------------- | |
| (=) Taxable Value: | = | $59,880 | |
Taxing Jurisdiction
| Owner: | HAGEN JEFFREY JOEL | | |
| % Ownership: | 100.0000000000% | | |
| Total Value: | $59,880 | | |
| Tax Area: | 1 - OL-140-F |
| CERFD | CURRENT EXPENSE REFUND 010 | 0.0000000000 | $59,880 | $59,880 | $0.00 | | |
| CURREXP | CURRENT EXPENSE 010 | 1.0175366760 | $59,880 | $59,880 | $60.93 | | |
| HUMNSERV | HUMAN SERVICES 119 | 0.0250000000 | $59,880 | $59,880 | $1.50 | | |
| SLDREL | SOLDIERS RELIEF 121 | 0.0155990005 | $59,880 | $59,880 | $0.93 | | |
| EMERGSER | EMS 147 | 0.3792580840 | $59,880 | $59,880 | $22.71 | | |
| EMSRFD | EMS REFUND 147 | 0.0000000000 | $59,880 | $59,880 | $0.00 | | |
| PORTRFD | PORT REFUND 640 | 0.0000000000 | $59,880 | $59,880 | $0.00 | | |
| PORTWWGEN | PORT OF WW 640 | 0.2460186015 | $59,880 | $59,880 | $14.73 | | |
| SD140BOND | SD #140 BOND 764 | 0.8342371393 | $59,880 | $59,880 | $49.95 | | |
| SD140GEN | SD #140 GENERAL 760 | 2.0646500647 | $59,880 | $59,880 | $123.63 | | |
| ST2 | STATE SCHOOL PART 2 600 | 0.8131451643 | $59,880 | $59,880 | $48.69 | | |
| STATESCHL | STATE SCHOOL 600 | 1.5158548041 | $59,880 | $59,880 | $90.77 | | |
| STREFUND | STATE REFUND LEVY 603 | 0.0000000000 | $59,880 | $59,880 | $0.00 | | |
| CWWBOND | C OF WW BOND 643 | 0.2760494372 | $59,880 | $59,880 | $16.53 | | |
| CWWGEN | CITY OF WW 631 | 1.6100204973 | $59,880 | $59,880 | $96.41 | | |
| CWWRFD | CITY OF WALLA WALLA REFUND 631 | 0.0000000000 | $59,880 | $59,880 | $0.00 | | |
| | Total Tax Rate: | 8.7973694689 | | | | | |
| | | | | Taxes w/Current Exemptions: | $526.78 | | |
| | | | | Taxes w/o Exemptions: | $526.78 | | |
Improvement / Building
| Improvement #1: | RESIDENTIAL | State Code: | 11 | 1198.0 sqft | Value: | $10,380 |
| Exterior Wall: | PLYWOOD | Foundation: | POST & PIER | | Heating/Cooling: | STOVE-NO HEAT | Number of Bathrooms: | 1 | | Number of Bedrooms: | 2 | Plumbing: | 6 | | Roof Covering: | COMP SHINGLE |   |   |
|
| | Type | Description | Class CD | Sub Class CD | Year Built | Area |
| | MA | Main Area | 1 | 20 | 1900 | 1198.0 |
| | SI1 | SITE IMPROVEMENT | 1 | 20 | 1900 | 1.0 |
| | BASE | BASEMENT | 1 | 20 | 1900 | 90.0 |
| | RPO | OPEN PORCH W/ROOF | 1 | 20 | 1900 | 110.0 |
| | RPO | OPEN PORCH W/ROOF | 1 | 20 | 1900 | 98.0 |
| | DTG | Detached Garage | 1 | 20 | 1900 | 280.0 |
| | UPFL | Upper Floor (included in main area) | 1 | 20 | 1900 | 408.0 |
Sketch
Property Image
Land
| 1 | RES 1 | Converted: Residential | 0.1377 | 6000.00 | 0.00 | 0.00 | 1.00 | $49,500 | $0 |
Roll Value History
| 2026 | N/A | N/A | N/A | N/A | N/A |
| 2025 | $14,530 | $49,500 | $0 | $64,030 | $64,030 |
| 2024 | $14,530 | $49,500 | $0 | $64,030 | $64,030 |
| 2023 | $10,380 | $49,500 | $0 | $59,880 | $59,880 |
| 2022 | $9,130 | $49,500 | $0 | $58,630 | $58,630 |
| 2021 | $36,840 | $12,900 | $0 | $49,740 | $49,740 |
| 2020 | $36,840 | $12,900 | $0 | $49,740 | $49,740 |
| 2019 | $36,840 | $12,900 | $0 | $49,740 | $49,740 |
| 2018 | $81,860 | $12,900 | $0 | $94,760 | $94,760 |
| 2017 | $77,960 | $12,900 | $0 | $90,860 | $90,860 |
| 2016 | $74,250 | $12,900 | $0 | $87,150 | $87,150 |
| 2015 | $74,250 | $12,900 | $0 | $87,150 | $87,150 |
| 2014 | $49,500 | $12,900 | $0 | $62,400 | $62,400 |
| 2013 | $49,500 | $12,900 | $0 | $62,400 | $62,400 |
| 2012 | $49,500 | $12,900 | $0 | $0 | $0 |
| 2011 | $49,500 | $12,900 | $0 | $0 | $0 |
| 2010 | $46,900 | $12,900 | $0 | $0 | $0 |
| 2009 | $55,900 | $10,500 | $0 | $0 | $0 |
| 2008 | $27,700 | $9,200 | $0 | $0 | $0 |
| 2007 | $27,700 | $9,200 | $0 | $0 | $0 |
Deed and Sales History
| 1 | 05/06/2020 | SWD | STATUTORY WARRANTY DEED | OJCIUS ANDREW | HAGEN JEFFREY JOEL | | | $48,000.00 | 139043 | 2020-03896 |
| 2 | 05/06/2020 | SWD | STATUTORY WARRANTY DEED | OJCIUS DANIEL & TERESA ANN | OJCIUS ANDREW | | | $0.00 | 139042 | 2020-03895 |
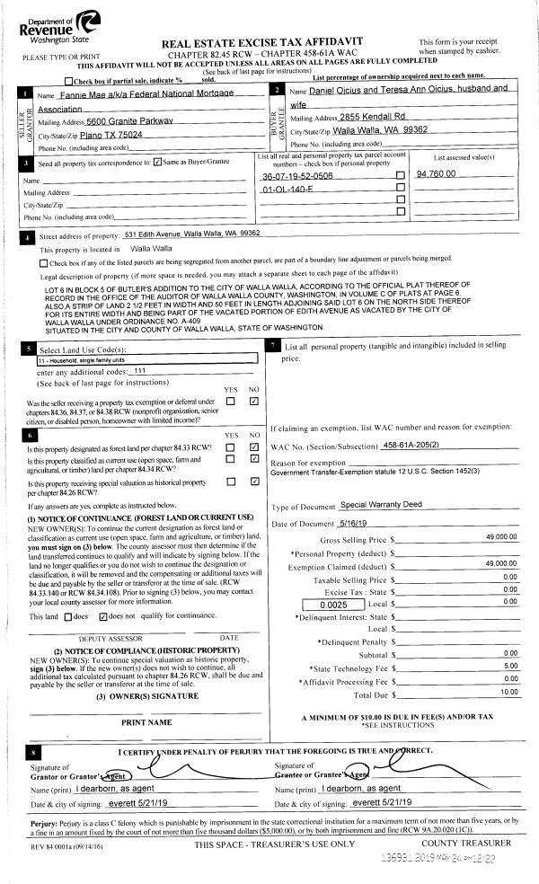
| 3 | 05/24/2019 | SWP | Special Warranty Deed | FEDERAL NATIONAL MORTGAGE ASSOC | OJCIUS DANIEL & TERESA ANN | | | $49,000.00 | 136931 | 2019-03513 |
| 4 | 12/07/2017 | TRUSTEES D | TRUSTEE'S DEED | BLAKELY JAMES T & ROSENE M | FEDERAL NATIONAL MORTGAGE ASSOC | | | $78,600.00 | 133755 | 2017-09827 |
| 5 | 09/08/1992 | WARRANTY D | WARRANTY DEED | | | | | $13,500.00 | 77554 | 1999-207885 |
Payout Agreement
| No payout information available.. |