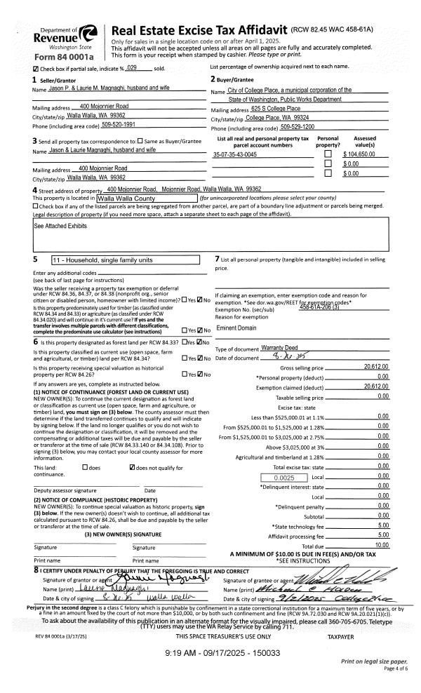
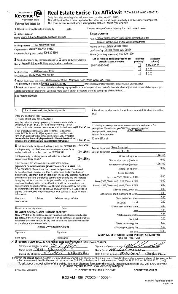
Property
Account |
| Property ID: | 17847 | Abbreviated Legal Description: | 35-7-35 TAX 21 |
| Parcel Number: | 350735430045 | Agent Code: | |
| Type: | Real | | |
| Tax Area: | 311 - 250-4 | Land Use Code | 11 |
| Open Space: | N | DFL | N |
| Historic Property: | N | Remodel Property: | N |
| Multi-Family Redevelopment: | N | | |
| Township: | 7 | Section: | 35 |
| Range: | 35 |
Location |
| Address: | 400 MOJONNIER RD WA 99324 | Mapsco: | |
| Neighborhood: | G SFR Rural/City Inf | Map ID: | |
| Neighborhood CD: | 114012 |
Owner |
| Name: | MAGNAGHI JASON P & LAURIE M | Owner ID: | 57112 |
| Mailing Address: | 400 MOJONNIER RD WALLA WALLA, WA 99362 | % Ownership: | 100.0000000000% |
| | | Exemptions: | |
Taxes and Assessment Details
Property Tax Information as of
02/21/2026
Click on "Statement Details" to expand or collapse a tax statement.
* Please enter a valid date ** Please enter a valid date *
Statement Details |
| | TOTAL: | $0.00 | $0.00 | $0.00 | $0.00 | $0.00 | $0.00 |
|
| | $0.00 | $0.00 | $0.00 | $0.00 | $0.00 | $0.00 |
Values
| (+) Improvement Homesite Value: | + | $0 | |
| (+) Improvement Non-Homesite Value: | + | $396,130 | |
| (+) Land Homesite Value: | + | $0 | |
| (+) Land Non-Homesite Value: | + | $104,650 | |
| (+) Curr Use (HS): | + | $0 | $0 |
| (+) Curr Use (NHS): | + | $0 | $0 |
| | | -------------------------- | |
| (=) Market Value: | = | $500,780 | |
| (–) Productivity Loss: | – | $0 | |
| | | -------------------------- | |
| (=) Subtotal: | = | $500,780 | |
| (+) Senior Appraised Value: | + | $0 | |
| (+) Non-Senior Appraised Value: | + | $500,780 | |
| | | -------------------------- | |
| (=) Total Appraised Value: | = | $500,780 | |
| (–) Senior Exemption Loss: | – | $0 | |
| (–) Exemption Loss: | – | $0 | |
| | | -------------------------- | |
| (=) Taxable Value: | = | $500,780 | |
Taxing Jurisdiction
| Owner: | MAGNAGHI JASON P & LAURIE M | | |
| % Ownership: | 100.0000000000% | | |
| Total Value: | $500,780 | | |
| Tax Area: | 311 - 250-4 |
| CERFD | CURRENT EXPENSE REFUND 010 | 0.0000000000 | $500,780 | $500,780 | $0.00 | | |
| CURREXP | CURRENT EXPENSE 010 | 1.0175366760 | $500,780 | $500,780 | $509.56 | | |
| HUMNSERV | HUMAN SERVICES 119 | 0.0250000000 | $500,780 | $500,780 | $12.52 | | |
| SLDREL | SOLDIERS RELIEF 121 | 0.0155990005 | $500,780 | $500,780 | $7.81 | | |
| EMERGSER | EMS 147 | 0.3792580840 | $500,780 | $500,780 | $189.92 | | |
| EMSRFD | EMS REFUND 147 | 0.0000000000 | $500,780 | $500,780 | $0.00 | | |
| FD4EXP | FD #4 EXPENSE 686 | 0.8836993059 | $500,780 | $500,780 | $442.54 | | |
| RLBRFD | RURAL LIBRARY REFUND 623 | 0.0000000000 | $500,780 | $500,780 | $0.00 | | |
| RURALLIB | RURAL LIBRARY 623 | 0.3710609029 | $500,780 | $500,780 | $185.82 | | |
| PORTRFD | PORT REFUND 640 | 0.0000000000 | $500,780 | $500,780 | $0.00 | | |
| PORTWWGEN | PORT OF WW 640 | 0.2460186015 | $500,780 | $500,780 | $123.20 | | |
| SD250BOND | SD #250 BOND 773 | 1.4560608159 | $500,780 | $500,780 | $729.17 | | |
| SD250GEN | SD #250 GENERAL 770 | 2.3880724087 | $500,780 | $500,780 | $1,195.90 | | |
| ST2 | STATE SCHOOL PART 2 600 | 0.8131451643 | $500,780 | $500,780 | $407.21 | | |
| STATESCHL | STATE SCHOOL 600 | 1.5158548041 | $500,780 | $500,780 | $759.11 | | |
| STREFUND | STATE REFUND LEVY 603 | 0.0000000000 | $500,780 | $500,780 | $0.00 | | |
| COROAD | COUNTY ROAD 115 | 1.6549953990 | $500,780 | $500,780 | $828.79 | | |
| CRPRD | COUNTY ROAD REFUND 115 | 0.0000000000 | $500,780 | $500,780 | $0.00 | | |
| | Total Tax Rate: | 10.7663011628 | | | | | |
| | | | | Taxes w/Current Exemptions: | $5,391.55 | | |
| | | | | Taxes w/o Exemptions: | $5,391.55 | | |
Improvement / Building
| Improvement #1: | RESIDENTIAL | State Code: | 11 | 2278.0 sqft | Value: | $396,130 |
| Exterior Wall: | HARDBOARD | Foundation: | SLAB FOUNDATION | | Heating/Cooling: | WARM & COOLED AIR | Number of Bathrooms: | 4 | | Number of Bedrooms: | 3 | Plumbing: | 12 | | Roof Covering: | COMP SHINGLE |   |   |
|
| | Type | Description | Class CD | Sub Class CD | Year Built | Area |
| | MA | Main Area | 1 | 35 | 1935 | 2278.0 |
| | SI1 | SITE IMPROVEMENT | 1 | 35 | 1935 | 4.2 |
| | BASE | BASEMENT | 1 | 35 | 1935 | 195.0 |
| | DTG | Detached Garage | 1 | 35 | 1935 | 896.0 |
| | GIF | GARAGE INTERIOR FINISH | 1 | 35 | 1935 | 896.0 |
| | RPO | OPEN PORCH W/ROOF | 1 | 35 | 1935 | 192.0 |
| | CPCG | CARPORT/ GABLE ROOF | 1 | 35 | 2009 | 504.0 |
| | UTST | Utility Storage Shed | 1 | 30 | 1935 | 84.0 |
| | WDR | WOOD DECK W/ROOF | 1 | 35 | 2010 | 608.0 |
Sketch
Property Image
Land
| 1 | RES 1 | Converted: Residential | 0.7098 | 30920.00 | 0.00 | 0.00 | 1.00 | $104,650 | $0 |
Roll Value History
| 2026 | N/A | N/A | N/A | N/A | N/A |
| 2025 | $356,520 | $165,420 | $0 | $521,940 | $521,940 |
| 2024 | $396,130 | $104,650 | $0 | $500,780 | $500,780 |
| 2023 | $396,130 | $104,650 | $0 | $500,780 | $500,780 |
| 2022 | $396,130 | $104,650 | $0 | $500,780 | $500,780 |
| 2021 | $344,460 | $104,650 | $0 | $449,110 | $449,110 |
| 2020 | $328,060 | $104,650 | $0 | $432,710 | $432,710 |
| 2019 | $345,110 | $87,600 | $0 | $432,710 | $432,710 |
| 2018 | $287,590 | $87,600 | $0 | $375,190 | $375,190 |
| 2017 | $273,900 | $87,600 | $0 | $361,500 | $361,500 |
| 2016 | $260,860 | $87,600 | $0 | $348,460 | $348,460 |
| 2015 | $179,900 | $87,600 | $0 | $267,500 | $267,500 |
| 2014 | $179,900 | $87,600 | $0 | $267,500 | $267,500 |
| 2013 | $179,900 | $87,600 | $0 | $267,500 | $267,500 |
| 2012 | $179,900 | $87,600 | $0 | $0 | $0 |
| 2011 | $153,200 | $114,300 | $0 | $0 | $0 |
| 2010 | $153,200 | $114,300 | $0 | $0 | $0 |
| 2009 | $175,600 | $114,300 | $0 | $0 | $0 |
| 2008 | $129,100 | $43,300 | $0 | $0 | $0 |
| 2007 | $129,100 | $43,300 | $0 | $0 | $0 |
Deed and Sales History
| 1 | 08/05/2015 | SWD | STATUTORY WARRANTY DEED | DALKE ROBERT & HEA-KYUNG | MAGNAGHI JASON P & LAURIE M | | | $385,000.00 | 128543 | 2015-06756 |
| 2 | 10/04/2007 | WARRANTY D | WARRANTY DEED | HART, LEWIS H & RUTH M | DALKE, ROBERT & HEA-KYUNG | | | $292,300.00 | 113823 | 2007-11633 |
| 3 | 06/21/2001 | WARRANTY D | WARRANTY DEED | | | | | $170,000.00 | 97434 | 3150-106533 |
Payout Agreement
| No payout information available.. |