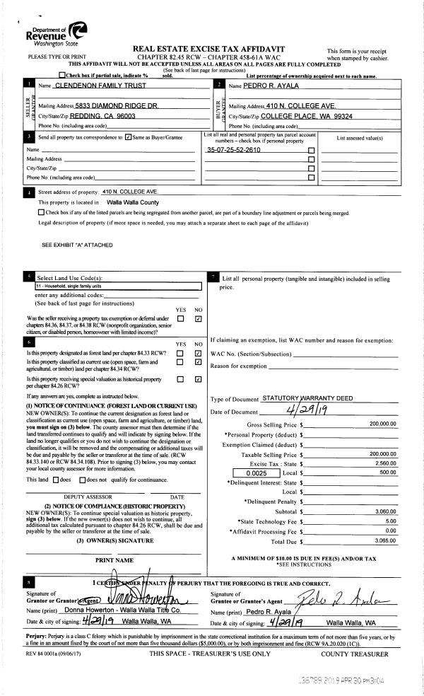
| 1 | 04/30/2019 | SWD | STATUTORY WARRANTY DEED | CLENDENON HARLEY M & JEANETTE L TRUSTEES OF THE | AYALA PEDRO R | | | $200,000.00 | 136789 | 2019-02806 |
| 2 | 10/09/2007 | WARRANTY D | WARRANTY DEED | CLENDENON, HARLEY M & JEANETTE | CLENDENON, HARLEY M & JEANETTE | | | | 113848 | 2007-11759 |
| 3 | 01/22/2007 | WARRANTY D | WARRANTY DEED | PETERSEN, CLYDE E & BARBARA M | CLENDENON, HARLEY M & JEANETTE | | | $155,000.00 | 112107 | 2007-00841 |
| 4 | 03/29/2006 | WARRANTY D | WARRANTY DEED | HARE, GORDON B | PETERSEN, CLYDE E & BARBARA M | | | $118,000.00 | 109918 | 2006-03558 |
| 5 | 01/01/1963 | WARRANTY D | WARRANTY DEED | | | | | $16,400.00 | 0 | 3070-451138 |