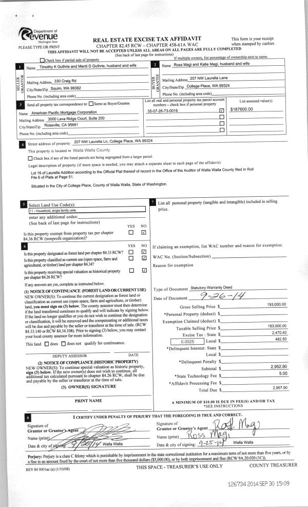
Property
Account |
| Property ID: | 17836 | Abbreviated Legal Description: | LAURELLA ADDITION LOT 16 |
| Parcel Number: | 350726730016 | Agent Code: | |
| Type: | Real | | |
| Tax Area: | 74 - CP-250-FB | Land Use Code | 11 |
| Open Space: | N | DFL | N |
| Historic Property: | N | Remodel Property: | N |
| Multi-Family Redevelopment: | N | | |
| Township: | 7 | Section: | 26 |
| Range: | 35 |
Location |
| Address: | 207 NW LAURELLA LN WA 99324 | Mapsco: | |
| Neighborhood: | A SFR | Map ID: | |
| Neighborhood CD: | 113011 |
Owner |
| Name: | MAGI ROSS & KATIE | Owner ID: | 55565 |
| Mailing Address: | 443 ELECTRIC AVE WALLA WALLA, WA 99362 | % Ownership: | 100.0000000000% |
| | | Exemptions: | |
Taxes and Assessment Details
Property Tax Information as of
02/21/2026
Click on "Statement Details" to expand or collapse a tax statement.
* Please enter a valid date ** Please enter a valid date *
Statement Details |
| | TOTAL: | $0.00 | $0.00 | $0.00 | $0.00 | $0.00 | $0.00 |
|
| | $0.00 | $0.00 | $0.00 | $0.00 | $0.00 | $0.00 |
Values
| (+) Improvement Homesite Value: | + | $0 | |
| (+) Improvement Non-Homesite Value: | + | $364,430 | |
| (+) Land Homesite Value: | + | $0 | |
| (+) Land Non-Homesite Value: | + | $70,000 | |
| (+) Curr Use (HS): | + | $0 | $0 |
| (+) Curr Use (NHS): | + | $0 | $0 |
| | | -------------------------- | |
| (=) Market Value: | = | $434,430 | |
| (–) Productivity Loss: | – | $0 | |
| | | -------------------------- | |
| (=) Subtotal: | = | $434,430 | |
| (+) Senior Appraised Value: | + | $0 | |
| (+) Non-Senior Appraised Value: | + | $434,430 | |
| | | -------------------------- | |
| (=) Total Appraised Value: | = | $434,430 | |
| (–) Senior Exemption Loss: | – | $0 | |
| (–) Exemption Loss: | – | $0 | |
| | | -------------------------- | |
| (=) Taxable Value: | = | $434,430 | |
Taxing Jurisdiction
| Owner: | MAGI ROSS & KATIE | | |
| % Ownership: | 100.0000000000% | | |
| Total Value: | $434,430 | | |
| Tax Area: | 74 - CP-250-FB |
| CERFD | CURRENT EXPENSE REFUND 010 | 0.0000000000 | $434,430 | $434,430 | $0.00 | | |
| CURREXP | CURRENT EXPENSE 010 | 1.0175366760 | $434,430 | $434,430 | $442.05 | | |
| HUMNSERV | HUMAN SERVICES 119 | 0.0250000000 | $434,430 | $434,430 | $10.86 | | |
| SLDREL | SOLDIERS RELIEF 121 | 0.0155990005 | $434,430 | $434,430 | $6.78 | | |
| COLLPLBOND | C OF CP BOND 644 | 0.4374241808 | $434,430 | $434,430 | $190.03 | | |
| COLLPLGEN | CITY OF CP 632 | 1.4453819216 | $434,430 | $434,430 | $627.92 | | |
| EMERGSER | EMS 147 | 0.3792580840 | $434,430 | $434,430 | $164.76 | | |
| EMSRFD | EMS REFUND 147 | 0.0000000000 | $434,430 | $434,430 | $0.00 | | |
| RURALLIB | RURAL LIBRARY 623 | 0.3710609029 | $434,430 | $434,430 | $161.20 | | |
| PORTRFD | PORT REFUND 640 | 0.0000000000 | $434,430 | $434,430 | $0.00 | | |
| PORTWWGEN | PORT OF WW 640 | 0.2460186015 | $434,430 | $434,430 | $106.88 | | |
| SD250BOND | SD #250 BOND 773 | 1.4560608159 | $434,430 | $434,430 | $632.56 | | |
| SD250GEN | SD #250 GENERAL 770 | 2.3880724087 | $434,430 | $434,430 | $1,037.45 | | |
| ST2 | STATE SCHOOL PART 2 600 | 0.8131451643 | $434,430 | $434,430 | $353.25 | | |
| STATESCHL | STATE SCHOOL 600 | 1.5158548041 | $434,430 | $434,430 | $658.53 | | |
| STREFUND | STATE REFUND LEVY 603 | 0.0000000000 | $434,430 | $434,430 | $0.00 | | |
| | Total Tax Rate: | 10.1104125603 | | | | | |
| | | | | Taxes w/Current Exemptions: | $4,392.27 | | |
| | | | | Taxes w/o Exemptions: | $4,392.27 | | |
Improvement / Building
| Improvement #1: | RESIDENTIAL | State Code: | 11 | 2062.0 sqft | Value: | $364,430 |
| Exterior Wall: | PLYWOOD | Heating/Cooling: | WARM & COOLED AIR | | Number of Bathrooms: | 2.5 | Number of Bedrooms: | 3 | | Plumbing: | 12 | Roof Covering: | COMP SHINGLE |
|
| | Type | Description | Class CD | Sub Class CD | Year Built | Area |
| | MA | Main Area | 2 | 30 | 2005 | 2062.0 |
| | SI1 | SITE IMPROVEMENT | 2 | 30 | 2005 | 2.5 |
| | UPFL | Upper Floor (included in main area) | 2 | 30 | 2005 | 1054.0 |
| | ATG | Attached Garage | 2 | 30 | 2005 | 400.0 |
| | RPO | OPEN PORCH W/ROOF | 2 | 30 | 2005 | 96.0 |
| | GFP | GAS FIREPLACE | 2 | 30 | 2005 | 1.0 |
| | SOLR | SOLAR POWER PANELS | 2 | 30 | 2005 | 23.0 |
Sketch
Property Image
Land
| 1 | RES 1 | Converted: Residential | 0.1395 | 6075.00 | 0.00 | 0.00 | 1.00 | $70,000 | $0 |
Roll Value History
| 2026 | N/A | N/A | N/A | N/A | N/A |
| 2025 | $327,980 | $100,000 | $0 | $427,980 | $427,980 |
| 2024 | $364,430 | $70,000 | $0 | $434,430 | $434,430 |
| 2023 | $364,430 | $70,000 | $0 | $434,430 | $434,430 |
| 2022 | $347,070 | $70,000 | $0 | $417,070 | $417,070 |
| 2021 | $242,210 | $70,000 | $0 | $312,210 | $312,210 |
| 2020 | $183,490 | $70,000 | $0 | $253,490 | $253,490 |
| 2019 | $198,490 | $55,000 | $0 | $253,490 | $253,490 |
| 2018 | $165,410 | $55,000 | $0 | $220,410 | $220,410 |
| 2017 | $153,150 | $55,000 | $0 | $208,150 | $208,150 |
| 2016 | $139,230 | $55,000 | $0 | $194,230 | $194,230 |
| 2015 | $132,600 | $55,000 | $0 | $187,600 | $187,600 |
| 2014 | $132,600 | $55,000 | $0 | $187,600 | $187,600 |
| 2013 | $132,600 | $55,000 | $0 | $187,600 | $187,600 |
| 2012 | $132,600 | $55,000 | $0 | $0 | $0 |
| 2011 | $146,700 | $55,000 | $0 | $0 | $0 |
| 2010 | $146,700 | $55,000 | $0 | $0 | $0 |
| 2009 | $169,100 | $55,000 | $0 | $0 | $0 |
| 2008 | $152,600 | $45,000 | $0 | $0 | $0 |
| 2007 | $152,600 | $45,000 | $0 | $0 | $0 |
Deed and Sales History
| 1 | 09/26/2014 | SWD | STATUTORY WARRANTY DEED | GUTHRIE TIMOTHY K & MARDI D | MAGI ROSS & KATIE | | | $193,000.00 | 126734 | 2014-07164 |
| 2 | 09/17/2007 | WARRANTY D | WARRANTY DEED | CASTILLE, JEFFREY & TRINA K | GUTHRIE, TIMOTHY K & MARDI D | | | $220,700.00 | 113727 | 2007-10872 |
| 3 | 05/16/2005 | WARRANTY D | WARRANTY DEED | HAYDEN ENTERPRISES INC | CASTILLE, JEFFREY & TRINA K | | | $199,805.00 | 107495 | 2005-05863 |
| 4 | 05/27/2004 | WARRANTY D | WARRANTY DEED | "BOTIMER, DOUGLAS A &~GLORIA J | HAYDEN ENTERPRISES INC | | | | 104869 | 2004-05787 |
Payout Agreement
| No payout information available.. |