Property
Account |
| Property ID: | 17834 | Abbreviated Legal Description: | CHASE'S ADDN S 82' OF LTS 11&12 BLK E |
| Parcel Number: | 360729580523 | Agent Code: | |
| Type: | Real | | |
| Tax Area: | 1 - OL-140-F | Land Use Code | 12 |
| Open Space: | N | DFL | N |
| Historic Property: | N | Remodel Property: | N |
| Multi-Family Redevelopment: | N | | |
| Township: | 7 | Section: | 29 |
| Range: | 36 |
Location |
| Address: | 106 W MAPLE ST WA 99362 | Mapsco: | |
| Neighborhood: | Fair Res Apartment | Map ID: | |
| Neighborhood CD: | 612021 |
Owner |
| Name: | GIBBY BRYANT T | Owner ID: | 61020 |
| Mailing Address: | 106 W MAPLE ST WALLA WALLA, WA 99362 | % Ownership: | 100.0000000000% |
| | | Exemptions: | |
Taxes and Assessment Details
Property Tax Information as of
04/19/2026
Click on "Statement Details" to expand or collapse a tax statement.
* Please enter a valid date ** Please enter a valid date *
Statement Details |
| | TOTAL: | $0.00 | $0.00 | $0.00 | $0.00 | $0.00 | $0.00 |
|
| | $0.00 | $0.00 | $0.00 | $0.00 | $0.00 | $0.00 |
Values
| (+) Improvement Homesite Value: | + | $0 | |
| (+) Improvement Non-Homesite Value: | + | $237,100 | |
| (+) Land Homesite Value: | + | $0 | |
| (+) Land Non-Homesite Value: | + | $65,600 | |
| (+) Curr Use (HS): | + | $0 | $0 |
| (+) Curr Use (NHS): | + | $0 | $0 |
| | | -------------------------- | |
| (=) Market Value: | = | $302,700 | |
| (–) Productivity Loss: | – | $0 | |
| | | -------------------------- | |
| (=) Subtotal: | = | $302,700 | |
| (+) Senior Appraised Value: | + | $0 | |
| (+) Non-Senior Appraised Value: | + | $302,700 | |
| | | -------------------------- | |
| (=) Total Appraised Value: | = | $302,700 | |
| (–) Senior Exemption Loss: | – | $0 | |
| (–) Exemption Loss: | – | $0 | |
| | | -------------------------- | |
| (=) Taxable Value: | = | $302,700 | |
Taxing Jurisdiction
| Owner: | GIBBY BRYANT T | | |
| % Ownership: | 100.0000000000% | | |
| Total Value: | $302,700 | | |
| Tax Area: | 1 - OL-140-F |
| CERFD | CURRENT EXPENSE REFUND 010 | 0.0000000000 | $302,700 | $302,700 | $0.00 | | |
| CURREXP | CURRENT EXPENSE 010 | 1.0175366760 | $302,700 | $302,700 | $308.01 | | |
| HUMNSERV | HUMAN SERVICES 119 | 0.0250000000 | $302,700 | $302,700 | $7.57 | | |
| SLDREL | SOLDIERS RELIEF 121 | 0.0155990005 | $302,700 | $302,700 | $4.72 | | |
| EMERGSER | EMS 147 | 0.3792580840 | $302,700 | $302,700 | $114.80 | | |
| EMSRFD | EMS REFUND 147 | 0.0000000000 | $302,700 | $302,700 | $0.00 | | |
| PORTRFD | PORT REFUND 640 | 0.0000000000 | $302,700 | $302,700 | $0.00 | | |
| PORTWWGEN | PORT OF WW 640 | 0.2460186015 | $302,700 | $302,700 | $74.47 | | |
| SD140BOND | SD #140 BOND 764 | 0.8342371393 | $302,700 | $302,700 | $252.52 | | |
| SD140GEN | SD #140 GENERAL 760 | 2.0646500647 | $302,700 | $302,700 | $624.97 | | |
| ST2 | STATE SCHOOL PART 2 600 | 0.8131451643 | $302,700 | $302,700 | $246.14 | | |
| STATESCHL | STATE SCHOOL 600 | 1.5158548041 | $302,700 | $302,700 | $458.85 | | |
| STREFUND | STATE REFUND LEVY 603 | 0.0000000000 | $302,700 | $302,700 | $0.00 | | |
| CWWBOND | C OF WW BOND 643 | 0.2760494372 | $302,700 | $302,700 | $83.56 | | |
| CWWGEN | CITY OF WW 631 | 1.6100204973 | $302,700 | $302,700 | $487.35 | | |
| CWWRFD | CITY OF WALLA WALLA REFUND 631 | 0.0000000000 | $302,700 | $302,700 | $0.00 | | |
| | Total Tax Rate: | 8.7973694689 | | | | | |
| | | | | Taxes w/Current Exemptions: | $2,662.96 | | |
| | | | | Taxes w/o Exemptions: | $2,662.96 | | |
Improvement / Building
| Improvement #1: | RESIDENTIAL | State Code: | 12 | 1384.0 sqft | Value: | $237,100 |
| Exterior Wall: | SIDING | Heating/Cooling: | WARM & COOLED AIR | | Number of Bathrooms: | 3 | Number of Bedrooms: | 4 | | Plumbing: | 15 | Roof Covering: | COMP SHINGLE |
|
| | Type | Description | Class CD | Sub Class CD | Year Built | Area |
| | MA | Main Area | 1 | 30 | 1923 | 1384.0 |
| | SI1 | SITE IMPROVEMENT | 1 | 30 | 1923 | 3.0 |
| | BASE | BASEMENT | 1 | 30 | 1923 | 1384.0 |
| | BPF | BASEMENT -PARTITIONED FINISH | 1 | 30 | 1923 | 1384.0 |
| | PRC | PORCH W STEPS, ROOF,CEILED | 1 | 30 | 1923 | 64.0 |
| | PRC | PORCH W STEPS, ROOF,CEILED | 1 | 30 | 1923 | 156.0 |
| | POL3 | POLE BUILDING-CON,ELEC,INSU | 1 | 30 | 1923 | 432.0 |
| | APP | APPLIANCE ALLOWANCE | 1 | 30 | 1923 | 2.0 |
| | OUT | OUTSIDE BASEMENT ENTRY | 1 | 30 | 1923 | 1.0 |
Sketch
Property Image
Land
| 1 | RES 1 | Converted: Residential | 0.1882 | 8200.00 | 0.00 | 0.00 | 1.00 | $65,600 | $0 |
Roll Value History
| 2026 | N/A | N/A | N/A | N/A | N/A |
| 2025 | $247,760 | $82,000 | $0 | $329,760 | $329,760 |
| 2024 | $237,100 | $65,600 | $0 | $302,700 | $302,700 |
| 2023 | $237,100 | $65,600 | $0 | $302,700 | $302,700 |
| 2022 | $237,100 | $51,250 | $0 | $288,350 | $288,350 |
| 2021 | $197,580 | $51,250 | $0 | $248,830 | $248,830 |
| 2020 | $164,650 | $51,250 | $0 | $215,900 | $215,900 |
| 2019 | $164,650 | $51,250 | $0 | $215,900 | $215,900 |
| 2018 | $129,800 | $45,600 | $0 | $175,400 | $175,400 |
| 2017 | $129,800 | $45,600 | $0 | $175,400 | $175,400 |
| 2016 | $129,800 | $45,600 | $0 | $175,400 | $175,400 |
| 2015 | $129,800 | $45,600 | $0 | $175,400 | $175,400 |
| 2014 | $129,800 | $45,600 | $0 | $175,400 | $175,400 |
| 2013 | $129,800 | $45,600 | $0 | $175,400 | $175,400 |
| 2012 | $129,800 | $45,600 | $0 | $0 | $0 |
| 2011 | $129,800 | $45,600 | $0 | $0 | $0 |
| 2010 | $129,800 | $45,600 | $0 | $0 | $0 |
| 2009 | $149,300 | $45,600 | $0 | $0 | $0 |
| 2008 | $149,300 | $45,600 | $0 | $0 | $0 |
| 2007 | $87,600 | $16,400 | $0 | $0 | $0 |
Deed and Sales History
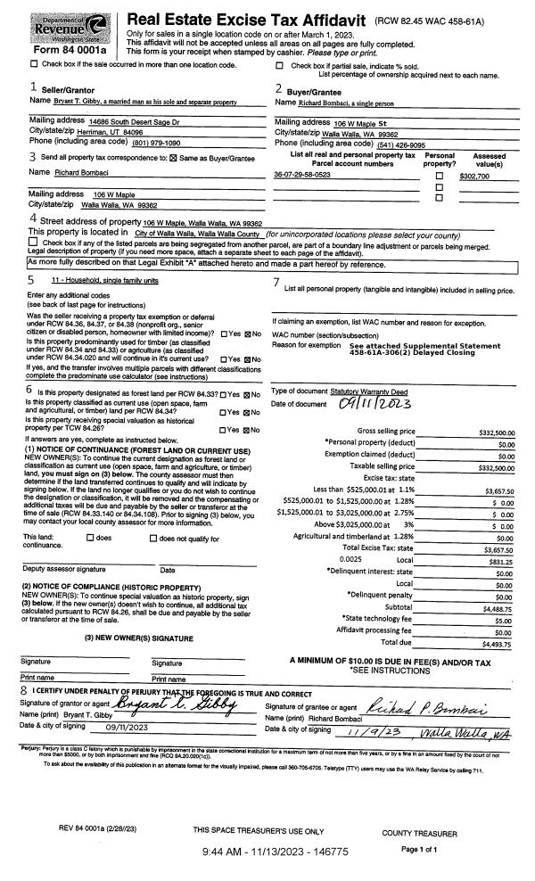
| 1 | 11/13/2023 | SWD | STATUTORY WARRANTY DEED | GIBBY BRYANT T | BOMBACI RICHARD | | | $332,500.00 | 146775 | 2023-06610 |
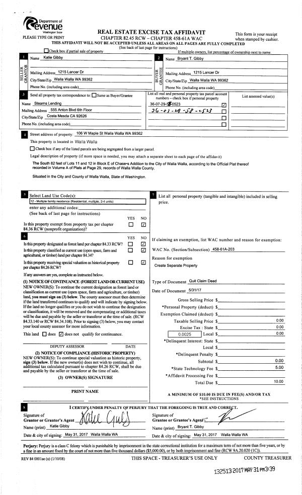
| 2 | 05/31/2017 | QCD | QUIT CLAIM DEED | GIBBY KATIE | GIBBY BRYANT T | | | | 132513 | 2017-04158 |
| 3 | 05/31/2017 | SWD | STATUTORY WARRANTY DEED | PRIETO MARI-ELENA | GIBBY BRYANT T | | | $181,500.00 | 132512 | 2017-04157 |
| 4 | 05/23/2013 | QCD | QUIT CLAIM DEED | SANDERS, WILLIAM | PRIETO, MARI-ELENA | | | $0.00 | 124004 | 2013-05204 |
| 5 | 12/31/2012 | WARRANTY D | WARRANTY DEED | SANDERS, WILLIAM E | PRIETO, MARI-ELENA | | | $0.00 | 0 | CC #10-3--00369-4 |
| 6 | 09/18/2007 | WARRANTY D | WARRANTY DEED | NELSON, JOHN W & CONNIE M | SANDERS, WILLIAM E & MARI E | | | $197,000.00 | 113735 | 2007-10975 |
| 7 | 11/04/2004 | WARRANTY D | WARRANTY DEED | HAZELTON, ROGER E JR | NELSON, JOHN W & CONNIE M | | | $130,000.00 | 0 | 2004-12751 |
| 8 | 07/02/2003 | WARRANTY D | WARRANTY DEED | SNIDER, DONALD L | HAZELTON, ROGER E JR | | | $100,000.00 | 102479 | 2003-09905 |
| 9 | 01/15/1981 | WARRANTY D | WARRANTY DEED | | | | | $35,000.00 | 0 | 1268-100412 |
Payout Agreement
| No payout information available.. |