Property
Account |
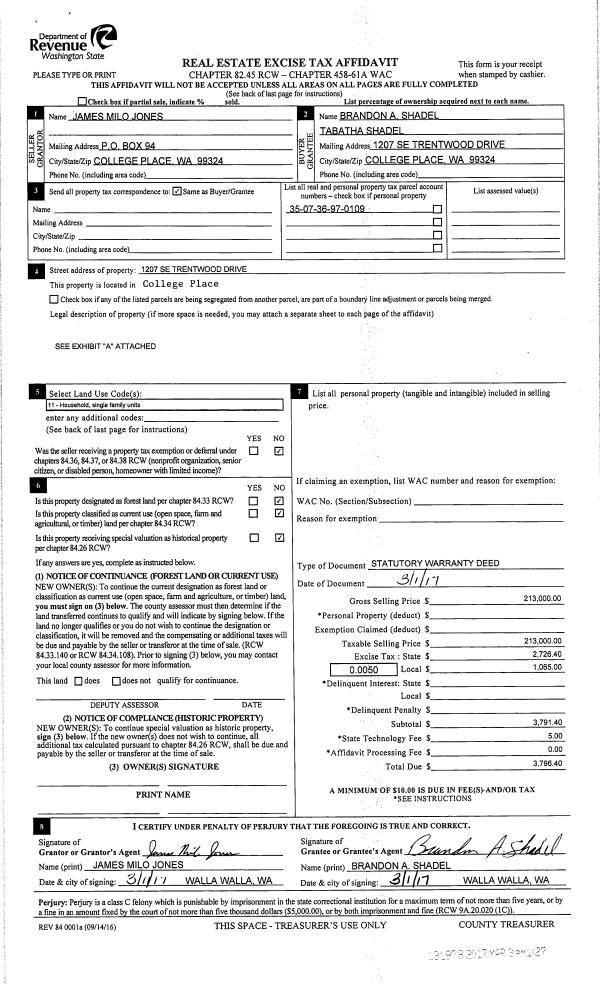
| Property ID: | 17796 | Abbreviated Legal Description: | AUTUMN MEADOWS LOT 6 PLUS SELY PTN OF ORIGINAL LOT 5 BLOCK 1 PLUSSTRIP FROM LOT 7 |
| Parcel Number: | 350736970109 | Agent Code: | |
| Type: | Real | | |
| Tax Area: | 77 - CP-250-F | Land Use Code | 11 |
| Open Space: | N | DFL | N |
| Historic Property: | N | Remodel Property: | N |
| Multi-Family Redevelopment: | N | | |
| Township: | 7 | Section: | 36 |
| Range: | 35 |
Location |
| Address: | 1207 SE TRENTWOOD DR WA 99324 | Mapsco: | |
| Neighborhood: | A SFR | Map ID: | |
| Neighborhood CD: | 113011 |
Owner |
| Name: | SHADEL BRANDON A & TABATHA | Owner ID: | 60490 |
| Mailing Address: | 1207 SE TRENTWOOD DR COLLEGE PLACE, WA 99324 | % Ownership: | 100.0000000000% |
| | | Exemptions: | |
Taxes and Assessment Details
Values
| (+) Improvement Homesite Value: | + | $0 | |
| (+) Improvement Non-Homesite Value: | + | $352,190 | |
| (+) Land Homesite Value: | + | $0 | |
| (+) Land Non-Homesite Value: | + | $70,000 | |
| (+) Curr Use (HS): | + | $0 | $0 |
| (+) Curr Use (NHS): | + | $0 | $0 |
| | | -------------------------- | |
| (=) Market Value: | = | $422,190 | |
| (–) Productivity Loss: | – | $0 | |
| | | -------------------------- | |
| (=) Subtotal: | = | $422,190 | |
| (+) Senior Appraised Value: | + | $0 | |
| (+) Non-Senior Appraised Value: | + | $422,190 | |
| | | -------------------------- | |
| (=) Total Appraised Value: | = | $422,190 | |
| (–) Senior Exemption Loss: | – | $0 | |
| (–) Exemption Loss: | – | $0 | |
| | | -------------------------- | |
| (=) Taxable Value: | = | $422,190 | |
Taxing Jurisdiction
| Owner: | SHADEL BRANDON A & TABATHA | | |
| % Ownership: | 100.0000000000% | | |
| Total Value: | $422,190 | | |
| Tax Area: | 77 - CP-250-F |
| CERFD | CURRENT EXPENSE REFUND 010 | 0.0000000000 | $422,190 | $422,190 | $0.00 | | |
| CURREXP | CURRENT EXPENSE 010 | 1.0175366760 | $422,190 | $422,190 | $429.59 | | |
| HUMNSERV | HUMAN SERVICES 119 | 0.0250000000 | $422,190 | $422,190 | $10.55 | | |
| SLDREL | SOLDIERS RELIEF 121 | 0.0155990005 | $422,190 | $422,190 | $6.59 | | |
| COLLPLBOND | C OF CP BOND 644 | 0.4374241808 | $422,190 | $422,190 | $184.68 | | |
| COLLPLGEN | CITY OF CP 632 | 1.4453819216 | $422,190 | $422,190 | $610.23 | | |
| EMERGSER | EMS 147 | 0.3792580840 | $422,190 | $422,190 | $160.12 | | |
| EMSRFD | EMS REFUND 147 | 0.0000000000 | $422,190 | $422,190 | $0.00 | | |
| RURALLIB | RURAL LIBRARY 623 | 0.3710609029 | $422,190 | $422,190 | $156.66 | | |
| PORTRFD | PORT REFUND 640 | 0.0000000000 | $422,190 | $422,190 | $0.00 | | |
| PORTWWGEN | PORT OF WW 640 | 0.2460186015 | $422,190 | $422,190 | $103.87 | | |
| SD250BOND | SD #250 BOND 773 | 1.4560608159 | $422,190 | $422,190 | $614.73 | | |
| SD250GEN | SD #250 GENERAL 770 | 2.3880724087 | $422,190 | $422,190 | $1,008.22 | | |
| ST2 | STATE SCHOOL PART 2 600 | 0.8131451643 | $422,190 | $422,190 | $343.30 | | |
| STATESCHL | STATE SCHOOL 600 | 1.5158548041 | $422,190 | $422,190 | $639.98 | | |
| STREFUND | STATE REFUND LEVY 603 | 0.0000000000 | $422,190 | $422,190 | $0.00 | | |
| | Total Tax Rate: | 10.1104125603 | | | | | |
| | | | | Taxes w/Current Exemptions: | $4,268.52 | | |
| | | | | Taxes w/o Exemptions: | $4,268.52 | | |
Improvement / Building
| Improvement #1: | RESIDENTIAL | State Code: | 11 | 1574.0 sqft | Value: | $352,190 |
| Exterior Wall: | PLYWOOD | Heating/Cooling: | WARM & COOLED AIR | | Number of Bathrooms: | 2 | Number of Bedrooms: | 3 | | Plumbing: | 9 | Roof Covering: | COMP SHINGLE |
|
| | Type | Description | Class CD | Sub Class CD | Year Built | Area |
| | MA | Main Area | 1 | 30 | 2007 | 1574.0 |
| | SI1 | SITE IMPROVEMENT | 1 | 30 | 2007 | 1.5 |
| | ATG | Attached Garage | 1 | 30 | 2007 | 420.0 |
| | PRC | PORCH W STEPS, ROOF,CEILED | 1 | 30 | 2007 | 42.0 |
| | WOD | Wood Deck | 1 | 30 | 2007 | 48.0 |
Sketch
Property Image
Land
| 1 | RES 1 | Converted: Residential | 0.1867 | 8131.00 | 0.00 | 0.00 | 1.00 | $70,000 | $0 |
Roll Value History
| 2026 | N/A | N/A | N/A | N/A | N/A |
| 2025 | $281,050 | $125,000 | $0 | $406,050 | $406,050 |
| 2024 | $369,800 | $70,000 | $0 | $439,800 | $439,800 |
| 2023 | $352,190 | $70,000 | $0 | $422,190 | $422,190 |
| 2022 | $306,250 | $70,000 | $0 | $376,250 | $376,250 |
| 2021 | $197,580 | $70,000 | $0 | $267,580 | $267,580 |
| 2020 | $141,130 | $70,000 | $0 | $211,130 | $211,130 |
| 2019 | $146,130 | $65,000 | $0 | $211,130 | $211,130 |
| 2018 | $139,170 | $65,000 | $0 | $204,170 | $204,170 |
| 2017 | $133,820 | $65,000 | $0 | $198,820 | $198,820 |
| 2016 | $107,050 | $65,000 | $0 | $172,050 | $172,050 |
| 2015 | $101,960 | $65,000 | $0 | $166,960 | $166,960 |
| 2014 | $97,100 | $65,000 | $0 | $162,100 | $162,100 |
| 2013 | $97,100 | $65,000 | $0 | $162,100 | $162,100 |
| 2012 | $115,100 | $65,000 | $0 | $0 | $0 |
| 2011 | $134,600 | $55,000 | $0 | $0 | $0 |
| 2010 | $134,600 | $55,000 | $0 | $0 | $0 |
| 2009 | $155,700 | $55,000 | $0 | $0 | $0 |
| 2008 | $178,700 | $30,000 | $0 | $0 | $0 |
| 2007 | $0 | $30,000 | $0 | $0 | $0 |
Deed and Sales History
| 1 | 03/03/2017 | SWD | STATUTORY WARRANTY DEED | HURLEY JAMES M | SHADEL BRANDON A & TABATHA | | | $213,000.00 | 131978 | 2017-01692 |
| 2 | 11/04/2010 | WARRANTY D | WARRANTY DEED | THE LONE DOVE LLC | KHRAPOV, VASSILS A & MARINA | | | $30,000.00 | 119290 | 2010-09000 |
| 3 | 05/14/2008 | WARRANTY D | WARRANTY DEED | WALLA WALLA GRAVEL & ROCK LLC | HURLEY, JAMES M | | | $218,100.00 | 115012 | 2008-04881 |
| 4 | 05/11/2007 | WARRANTY D | WARRANTY DEED | BIRCH CREEK CONSTRUCTION INC | WALLA WALLA GRAVEL & ROCK LLC | | | $17,859.00 | 112796 | 2007-05318 |
| 5 | 09/17/2004 | WARRANTY D | WARRANTY DEED | VILLAGE PARK COLLEGE PLACE LLC | BIRCH CREEK CONSTRUCTION INC | | | | 105725 | 2004-10748 |
Payout Agreement
| No payout information available.. |