Property
Account |
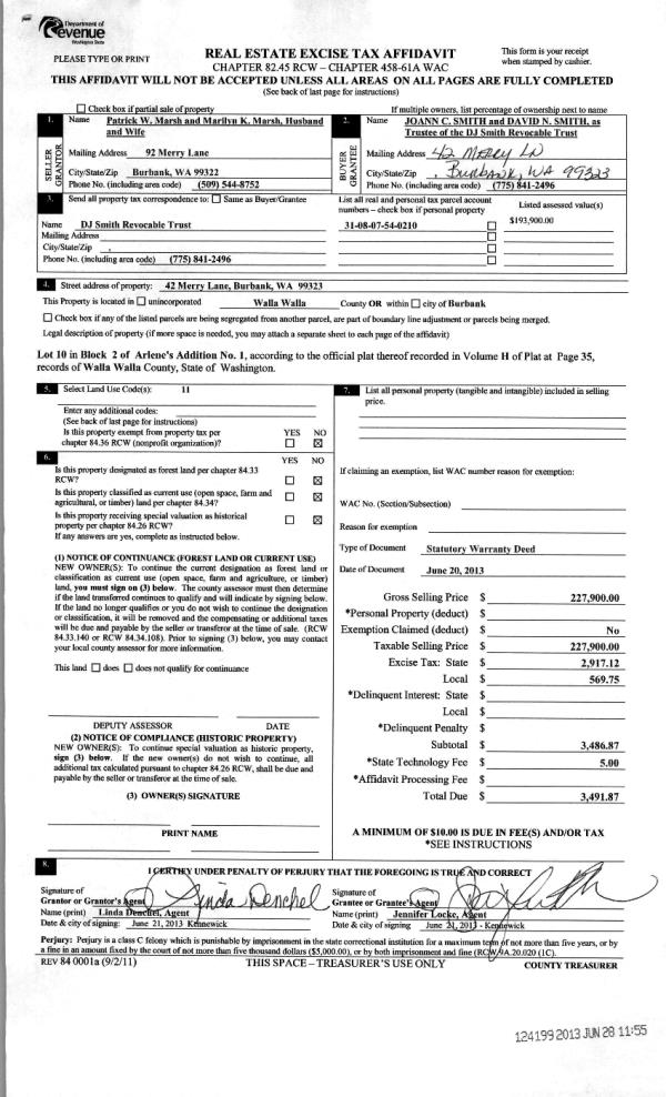
| Property ID: | 1776 | Abbreviated Legal Description: | ARLENES 1ST PARCEL 10 BLK 2 SEC 7 TWP 8 RNG 31 |
| Parcel Number: | 310807540210 | Agent Code: | |
| Type: | Real | | |
| Tax Area: | 328 - 400-M-5 | Land Use Code | 11 |
| Open Space: | N | DFL | N |
| Historic Property: | N | Remodel Property: | N |
| Multi-Family Redevelopment: | N | | |
| Township: | 8 | Section: | 7 |
| Range: | 31 |
Location |
| Address: | 42 MERRY LN WA 99323 | Mapsco: | |
| Neighborhood: | G BURBANK SFR | Map ID: | |
| Neighborhood CD: | 214711 |
Owner |
| Name: | DJ SMITH REVOCABLE TRUST | Owner ID: | 52865 |
| Mailing Address: | JOANN C SMITH & DAVID N SMITH TR 42 MERRY LN BURBANK, WA 99323 | % Ownership: | 100.0000000000% |
| | | Exemptions: | |
Taxes and Assessment Details
Values
| (+) Improvement Homesite Value: | + | $0 | |
| (+) Improvement Non-Homesite Value: | + | $352,330 | |
| (+) Land Homesite Value: | + | $0 | |
| (+) Land Non-Homesite Value: | + | $75,000 | |
| (+) Curr Use (HS): | + | $0 | $0 |
| (+) Curr Use (NHS): | + | $0 | $0 |
| | | -------------------------- | |
| (=) Market Value: | = | $427,330 | |
| (–) Productivity Loss: | – | $0 | |
| | | -------------------------- | |
| (=) Subtotal: | = | $427,330 | |
| (+) Senior Appraised Value: | + | $0 | |
| (+) Non-Senior Appraised Value: | + | $427,330 | |
| | | -------------------------- | |
| (=) Total Appraised Value: | = | $427,330 | |
| (–) Senior Exemption Loss: | – | $0 | |
| (–) Exemption Loss: | – | $0 | |
| | | -------------------------- | |
| (=) Taxable Value: | = | $427,330 | |
Taxing Jurisdiction
| Owner: | DJ SMITH REVOCABLE TRUST | | |
| % Ownership: | 100.0000000000% | | |
| Total Value: | $427,330 | | |
| Tax Area: | 328 - 400-M-5 |
| CERFD | CURRENT EXPENSE REFUND 010 | 0.0000000000 | $427,330 | $427,330 | $0.00 | | |
| CURREXP | CURRENT EXPENSE 010 | 1.0175366760 | $427,330 | $427,330 | $434.82 | | |
| HUMNSERV | HUMAN SERVICES 119 | 0.0250000000 | $427,330 | $427,330 | $10.68 | | |
| SLDREL | SOLDIERS RELIEF 121 | 0.0155990005 | $427,330 | $427,330 | $6.67 | | |
| EMERGSER | EMS 147 | 0.3792580840 | $427,330 | $427,330 | $162.07 | | |
| EMSRFD | EMS REFUND 147 | 0.0000000000 | $427,330 | $427,330 | $0.00 | | |
| FD5EXP | FD #5 EXPENSE 689 | 1.2045331840 | $427,330 | $427,330 | $514.73 | | |
| RLBRFD | RURAL LIBRARY REFUND 623 | 0.0000000000 | $427,330 | $427,330 | $0.00 | | |
| RURALLIB | RURAL LIBRARY 623 | 0.3710609029 | $427,330 | $427,330 | $158.57 | | |
| PORTRFD | PORT REFUND 640 | 0.0000000000 | $427,330 | $427,330 | $0.00 | | |
| PORTWWGEN | PORT OF WW 640 | 0.2460186015 | $427,330 | $427,330 | $105.13 | | |
| SD400BOND | SD #400 BOND 793 | 0.0000000000 | $427,330 | $427,330 | $0.00 | | |
| SD400CAP | SD #400 CP 792 | 0.3443722657 | $427,330 | $427,330 | $147.16 | | |
| SD400GEN | SD #400 GENERAL 790 | 1.9278469916 | $427,330 | $427,330 | $823.83 | | |
| ST2 | STATE SCHOOL PART 2 600 | 0.8131451643 | $427,330 | $427,330 | $347.48 | | |
| STATESCHL | STATE SCHOOL 600 | 1.5158548041 | $427,330 | $427,330 | $647.77 | | |
| STREFUND | STATE REFUND LEVY 603 | 0.0000000000 | $427,330 | $427,330 | $0.00 | | |
| COROAD | COUNTY ROAD 115 | 1.6549953990 | $427,330 | $427,330 | $707.23 | | |
| CRPRD | COUNTY ROAD REFUND 115 | 0.0000000000 | $427,330 | $427,330 | $0.00 | | |
| | Total Tax Rate: | 9.5152210736 | | | | | |
| | | | | Taxes w/Current Exemptions: | $4,066.14 | | |
| | | | | Taxes w/o Exemptions: | $4,066.14 | | |
Improvement / Building
| Improvement #1: | RESIDENTIAL | State Code: | 11 | 2026.0 sqft | Value: | $352,330 |
| Exterior Wall: | PLYWOOD | Foundation: | SLAB FOUNDATION | | Heating/Cooling: | WARM & COOLED AIR | Number of Bathrooms: | 3 | | Number of Bedrooms: | 5 | Plumbing: | 13 | | Roof Covering: | COMP SHINGLE |   |   |
|
| | Type | Description | Class CD | Sub Class CD | Year Built | Area |
| | MA | Main Area | 3 | 30 | 1978 | 2026.0 |
| | SI1 | SITE IMPROVEMENT | 3 | 30 | 1978 | 1.5 |
| | UPFL | Upper Floor (included in main area) | 3 | 30 | 1978 | 696.0 |
| | ATG | Attached Garage | 3 | 30 | 1978 | 1262.0 |
| | RPS | PORCH W/STEPS,ROOF | 3 | 30 | 1978 | 28.0 |
| | CPC | COVERED CARPORT/PATIO | 3 | 30 | 1978 | 282.0 |
| | CPC | COVERED CARPORT/PATIO | 3 | 30 | 1978 | 300.0 |
Sketch
Property Image
Land
| 1 | RES 1 | Converted: Residential | 0.5308 | 23120.00 | 0.00 | 0.00 | 1.00 | $75,000 | $0 |
Roll Value History
| 2026 | N/A | N/A | N/A | N/A | N/A |
| 2025 | $369,950 | $75,000 | $0 | $444,950 | $444,950 |
| 2024 | $369,950 | $75,000 | $0 | $444,950 | $444,950 |
| 2023 | $352,330 | $75,000 | $0 | $427,330 | $427,330 |
| 2022 | $335,560 | $75,000 | $0 | $410,560 | $410,560 |
| 2021 | $248,560 | $75,000 | $0 | $323,560 | $323,560 |
| 2020 | $233,580 | $35,000 | $0 | $268,580 | $268,580 |
| 2019 | $233,580 | $35,000 | $0 | $268,580 | $268,580 |
| 2018 | $233,580 | $35,000 | $0 | $268,580 | $268,580 |
| 2017 | $166,850 | $35,000 | $0 | $201,850 | $201,850 |
| 2016 | $158,900 | $35,000 | $0 | $193,900 | $193,900 |
| 2015 | $158,900 | $35,000 | $0 | $193,900 | $193,900 |
| 2014 | $158,900 | $35,000 | $0 | $193,900 | $193,900 |
| 2013 | $158,900 | $35,000 | $0 | $193,900 | $193,900 |
| 2012 | $141,300 | $35,000 | $0 | $0 | $0 |
| 2011 | $141,300 | $35,000 | $0 | $0 | $0 |
| 2010 | $141,300 | $35,000 | $0 | $0 | $0 |
| 2009 | $134,800 | $25,000 | $0 | $0 | $0 |
| 2008 | $134,800 | $25,000 | $0 | $0 | $0 |
| 2007 | $134,800 | $25,000 | $0 | $0 | $0 |
Deed and Sales History
| 1 | 06/28/2013 | WARRANTY D | WARRANTY DEED | MARSH, PATRICK W & MARILYN K | DJ SMITH REVOCABLE TRUST | | | $227,900.00 | 124199 | 2013-06498 |
| 2 | 09/18/2000 | WARRANTY D | WARRANTY DEED | | MARSH, PATRICK W & MARILYN K | | | $119,000.00 | 95821 | 3020-008863 |
Payout Agreement
| No payout information available.. |