Property
Account |
| Property ID: | 17733 | Abbreviated Legal Description: | THORINGTON ADDITION LOT 1 |
| Parcel Number: | 350735680001 | Agent Code: | |
| Type: | Real | | |
| Tax Area: | 75 - CP 250 | Land Use Code | 11 |
| Open Space: | N | DFL | N |
| Historic Property: | N | Remodel Property: | N |
| Multi-Family Redevelopment: | N | | |
| Township: | 7 | Section: | 35 |
| Range: | 35 |
Location |
| Address: | 661 SW 1ST ST WA 99324 | Mapsco: | |
| Neighborhood: | A SFR | Map ID: | |
| Neighborhood CD: | 113011 |
Owner |
| Name: | BALL JONATHAN T | Owner ID: | 71153 |
| Mailing Address: | 661 SW 1ST ST COLLEGE PLACE, WA 99324 | % Ownership: | 100.0000000000% |
| | | Exemptions: | |
Taxes and Assessment Details
Property Tax Information as of
02/21/2026
Click on "Statement Details" to expand or collapse a tax statement.
* Please enter a valid date ** Please enter a valid date *
Statement Details |
| | TOTAL: | $0.00 | $0.00 | $0.00 | $0.00 | $0.00 | $0.00 |
|
| | $0.00 | $0.00 | $0.00 | $0.00 | $0.00 | $0.00 |
Values
| (+) Improvement Homesite Value: | + | $0 | |
| (+) Improvement Non-Homesite Value: | + | $334,040 | |
| (+) Land Homesite Value: | + | $0 | |
| (+) Land Non-Homesite Value: | + | $61,470 | |
| (+) Curr Use (HS): | + | $0 | $0 |
| (+) Curr Use (NHS): | + | $0 | $0 |
| | | -------------------------- | |
| (=) Market Value: | = | $395,510 | |
| (–) Productivity Loss: | – | $0 | |
| | | -------------------------- | |
| (=) Subtotal: | = | $395,510 | |
| (+) Senior Appraised Value: | + | $0 | |
| (+) Non-Senior Appraised Value: | + | $395,510 | |
| | | -------------------------- | |
| (=) Total Appraised Value: | = | $395,510 | |
| (–) Senior Exemption Loss: | – | $0 | |
| (–) Exemption Loss: | – | $0 | |
| | | -------------------------- | |
| (=) Taxable Value: | = | $395,510 | |
Taxing Jurisdiction
| Owner: | BALL JONATHAN T | | |
| % Ownership: | 100.0000000000% | | |
| Total Value: | $395,510 | | |
| Tax Area: | 75 - CP 250 |
| CERFD | CURRENT EXPENSE REFUND 010 | 0.0000000000 | $395,510 | $395,510 | $0.00 | | |
| CURREXP | CURRENT EXPENSE 010 | 1.0175366760 | $395,510 | $395,510 | $402.45 | | |
| HUMNSERV | HUMAN SERVICES 119 | 0.0250000000 | $395,510 | $395,510 | $9.89 | | |
| SLDREL | SOLDIERS RELIEF 121 | 0.0155990005 | $395,510 | $395,510 | $6.17 | | |
| COLLPLBOND | C OF CP BOND 644 | 0.4374241808 | $395,510 | $395,510 | $173.01 | | |
| COLLPLGEN | CITY OF CP 632 | 1.4453819216 | $395,510 | $395,510 | $571.66 | | |
| EMERGSER | EMS 147 | 0.3792580840 | $395,510 | $395,510 | $150.00 | | |
| EMSRFD | EMS REFUND 147 | 0.0000000000 | $395,510 | $395,510 | $0.00 | | |
| RURALLIB | RURAL LIBRARY 623 | 0.3710609029 | $395,510 | $395,510 | $146.76 | | |
| PORTRFD | PORT REFUND 640 | 0.0000000000 | $395,510 | $395,510 | $0.00 | | |
| PORTWWGEN | PORT OF WW 640 | 0.2460186015 | $395,510 | $395,510 | $97.30 | | |
| SD250BOND | SD #250 BOND 773 | 1.4560608159 | $395,510 | $395,510 | $575.89 | | |
| SD250GEN | SD #250 GENERAL 770 | 2.3880724087 | $395,510 | $395,510 | $944.51 | | |
| ST2 | STATE SCHOOL PART 2 600 | 0.8131451643 | $395,510 | $395,510 | $321.61 | | |
| STATESCHL | STATE SCHOOL 600 | 1.5158548041 | $395,510 | $395,510 | $599.54 | | |
| STREFUND | STATE REFUND LEVY 603 | 0.0000000000 | $395,510 | $395,510 | $0.00 | | |
| | Total Tax Rate: | 10.1104125603 | | | | | |
| | | | | Taxes w/Current Exemptions: | $3,998.79 | | |
| | | | | Taxes w/o Exemptions: | $3,998.79 | | |
Improvement / Building
| Improvement #1: | RESIDENTIAL | State Code: | 11 | 1584.0 sqft | Value: | $334,040 |
| Exterior Wall: | PLYWOOD | Heating/Cooling: | WARM & COOLED AIR | | Number of Bathrooms: | 2 | Number of Bedrooms: | 3 | | Plumbing: | 10 | Roof Covering: | COMP SHINGLE |
|
| | Type | Description | Class CD | Sub Class CD | Year Built | Area |
| | MA | Main Area | 1 | 30 | 2004 | 1584.0 |
| | SI1 | SITE IMPROVEMENT | 1 | 30 | 2004 | 2.0 |
| | ATG | Attached Garage | 1 | 30 | 2004 | 504.0 |
| | RPO | OPEN PORCH W/ROOF | 1 | 30 | 2004 | 64.0 |
| | RPO | OPEN PORCH W/ROOF | 1 | 30 | 2004 | 52.0 |
| | UTST | Utility Storage Shed | 1 | 30 | 2023 | 192.0 |
Sketch
Property Image
Land
| 1 | RES 1 | Converted: Residential | 0.2352 | 10245.00 | 0.00 | 0.00 | 1.00 | $61,470 | $0 |
Roll Value History
| 2026 | N/A | N/A | N/A | N/A | N/A |
| 2025 | $300,640 | $91,490 | $0 | $392,130 | $392,130 |
| 2024 | $334,040 | $61,470 | $0 | $395,510 | $395,510 |
| 2023 | $334,040 | $61,470 | $0 | $395,510 | $395,510 |
| 2022 | $330,930 | $61,470 | $0 | $392,400 | $392,400 |
| 2021 | $228,230 | $61,470 | $0 | $289,700 | $289,700 |
| 2020 | $163,020 | $61,470 | $0 | $224,490 | $224,490 |
| 2019 | $169,490 | $55,000 | $0 | $224,490 | $224,490 |
| 2018 | $141,240 | $55,000 | $0 | $196,240 | $196,240 |
| 2017 | $117,700 | $55,000 | $0 | $172,700 | $172,700 |
| 2016 | $107,000 | $55,000 | $0 | $162,000 | $162,000 |
| 2015 | $107,000 | $55,000 | $0 | $162,000 | $162,000 |
| 2014 | $107,000 | $55,000 | $0 | $162,000 | $162,000 |
| 2013 | $107,000 | $55,000 | $0 | $162,000 | $162,000 |
| 2012 | $107,000 | $55,000 | $0 | $0 | $0 |
| 2011 | $107,000 | $55,000 | $0 | $0 | $0 |
| 2010 | $125,000 | $55,000 | $0 | $0 | $0 |
| 2009 | $145,000 | $55,000 | $0 | $0 | $0 |
| 2008 | $117,600 | $45,000 | $0 | $0 | $0 |
| 2007 | $117,600 | $45,000 | $0 | $0 | $0 |
Deed and Sales History
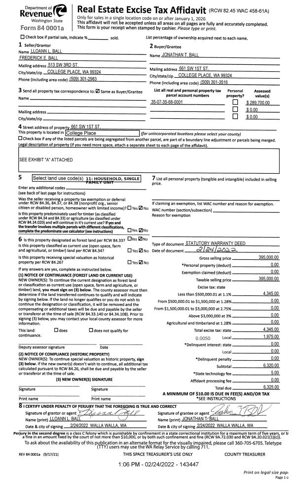
| 1 | 02/24/2022 | SWD | STATUTORY WARRANTY DEED | BALL FREDERICK E & LLOANN L | BALL JONATHAN T | | | $395,000.00 | 143447 | 2022-01637 |
| 2 | 05/27/2016 | QCD | QUIT CLAIM DEED | BALL LLOANN L | BALL FREDRICK E & LLOANN L | | | | 130292 | 2016-04018 |
| 3 | 05/27/2016 | SWD | STATUTORY WARRANTY DEED | MOODY ROGER | BALL FREDERICK E & LLOANN L | | | $100,000.00 | 130291 | 2016-04017 |
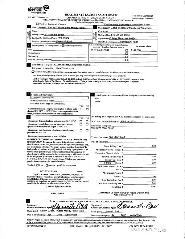
| 4 | 01/26/2016 | QCD | QUIT CLAIM DEED | BALL LLOANN L AS TRUSTEE OF THE | BALL LLOANN L | | | $0.00 | 129570 | 2016-00634 |
| 5 | 09/14/2007 | QCD | QUIT CLAIM DEED | MOODY, LLOYD I & MAUD E | BALL, LLOANN L AS TRUSTEE OF T | | | | 113711 | 2007-10794 |
| 6 | 10/14/2004 | WARRANTY D | WARRANTY DEED | SERL, LAWRENCE & CONNIE | MOODY, LLOYD I & MAUD E | | | $180,000.00 | 105952 | 2004-11901 |
Payout Agreement
| No payout information available.. |