Property
Account |
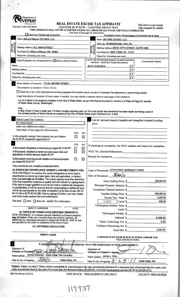
| Property ID: | 17730 | Abbreviated Legal Description: | LANGFORDS LOT 16 BLK 5 AND STRIP |
| Parcel Number: | 360719590516 | Agent Code: | |
| Type: | Real | | |
| Tax Area: | 1 - OL-140-F | Land Use Code | 64 |
| Open Space: | N | DFL | N |
| Historic Property: | N | Remodel Property: | N |
| Multi-Family Redevelopment: | N | | |
| Township: | 7 | Section: | 19 |
| Range: | 36 |
Location |
| Address: | 712 W MOORE ST WA 99362 | Mapsco: | |
| Neighborhood: | COMMERCIAL INDUSTRIAL | Map ID: | |
| Neighborhood CD: | 3303 |
Owner |
| Name: | DIANA & JIM LLC | Owner ID: | 49982 |
| Mailing Address: | % J L ROSENHOUSE CPA PC 99 POWERHOUSE RD #300 ROSLYN HEIGHTS, NY 11577 | % Ownership: | 100.0000000000% |
| | | Exemptions: | |
Taxes and Assessment Details
Values
| (+) Improvement Homesite Value: | + | $0 | |
| (+) Improvement Non-Homesite Value: | + | $291,100 | |
| (+) Land Homesite Value: | + | $0 | |
| (+) Land Non-Homesite Value: | + | $29,600 | |
| (+) Curr Use (HS): | + | $0 | $0 |
| (+) Curr Use (NHS): | + | $0 | $0 |
| | | -------------------------- | |
| (=) Market Value: | = | $320,700 | |
| (–) Productivity Loss: | – | $0 | |
| | | -------------------------- | |
| (=) Subtotal: | = | $320,700 | |
| (+) Senior Appraised Value: | + | $0 | |
| (+) Non-Senior Appraised Value: | + | $320,700 | |
| | | -------------------------- | |
| (=) Total Appraised Value: | = | $320,700 | |
| (–) Senior Exemption Loss: | – | $0 | |
| (–) Exemption Loss: | – | $0 | |
| | | -------------------------- | |
| (=) Taxable Value: | = | $320,700 | |
Taxing Jurisdiction
| Owner: | DIANA & JIM LLC | | |
| % Ownership: | 100.0000000000% | | |
| Total Value: | $320,700 | | |
| Tax Area: | 1 - OL-140-F |
| CERFD | CURRENT EXPENSE REFUND 010 | 0.0000000000 | $320,700 | $320,700 | $0.00 | | |
| CURREXP | CURRENT EXPENSE 010 | 1.0175366760 | $320,700 | $320,700 | $326.32 | | |
| HUMNSERV | HUMAN SERVICES 119 | 0.0250000000 | $320,700 | $320,700 | $8.02 | | |
| SLDREL | SOLDIERS RELIEF 121 | 0.0155990005 | $320,700 | $320,700 | $5.00 | | |
| EMERGSER | EMS 147 | 0.3792580840 | $320,700 | $320,700 | $121.63 | | |
| EMSRFD | EMS REFUND 147 | 0.0000000000 | $320,700 | $320,700 | $0.00 | | |
| PORTRFD | PORT REFUND 640 | 0.0000000000 | $320,700 | $320,700 | $0.00 | | |
| PORTWWGEN | PORT OF WW 640 | 0.2460186015 | $320,700 | $320,700 | $78.90 | | |
| SD140BOND | SD #140 BOND 764 | 0.8342371393 | $320,700 | $320,700 | $267.54 | | |
| SD140GEN | SD #140 GENERAL 760 | 2.0646500647 | $320,700 | $320,700 | $662.13 | | |
| ST2 | STATE SCHOOL PART 2 600 | 0.8131451643 | $320,700 | $320,700 | $260.78 | | |
| STATESCHL | STATE SCHOOL 600 | 1.5158548041 | $320,700 | $320,700 | $486.13 | | |
| STREFUND | STATE REFUND LEVY 603 | 0.0000000000 | $320,700 | $320,700 | $0.00 | | |
| CWWBOND | C OF WW BOND 643 | 0.2760494372 | $320,700 | $320,700 | $88.53 | | |
| CWWGEN | CITY OF WW 631 | 1.6100204973 | $320,700 | $320,700 | $516.33 | | |
| CWWRFD | CITY OF WALLA WALLA REFUND 631 | 0.0000000000 | $320,700 | $320,700 | $0.00 | | |
| | Total Tax Rate: | 8.7973694689 | | | | | |
| | | | | Taxes w/Current Exemptions: | $2,821.31 | | |
| | | | | Taxes w/o Exemptions: | $2,821.31 | | |
Improvement / Building
| Improvement #1: | COMMERCIAL | State Code: | 64 | 2640.0 sqft | Value: | $291,100 |
| | Type | Description | Class CD | Sub Class CD | Year Built | Area |
| | MA | Main Area | D | * | 2006 | 2640.0 |
| | SI1 | SITE IMPROVEMENT | D | * | 2006 | 3.0 |
Sketch
Property Image
Land
| 1 | COM 1 | Converted: Commercial | 0.1700 | 7405.20 | 0.00 | 0.00 | 1.00 | $29,600 | $0 |
Roll Value History
| 2026 | N/A | N/A | N/A | N/A | N/A |
| 2025 | $291,100 | $33,300 | $0 | $324,400 | $324,400 |
| 2024 | $291,100 | $29,600 | $0 | $320,700 | $320,700 |
| 2023 | $291,100 | $29,600 | $0 | $320,700 | $320,700 |
| 2022 | $291,100 | $29,600 | $0 | $320,700 | $320,700 |
| 2021 | $271,700 | $25,900 | $0 | $297,600 | $297,600 |
| 2020 | $271,700 | $25,900 | $0 | $297,600 | $297,600 |
| 2019 | $271,700 | $25,900 | $0 | $297,600 | $297,600 |
| 2018 | $271,700 | $25,900 | $0 | $297,600 | $297,600 |
| 2017 | $271,700 | $25,900 | $0 | $297,600 | $297,600 |
| 2016 | $271,700 | $25,900 | $0 | $297,600 | $297,600 |
| 2015 | $277,100 | $19,000 | $0 | $296,100 | $296,100 |
| 2014 | $277,100 | $19,000 | $0 | $296,100 | $296,100 |
| 2013 | $277,100 | $19,000 | $0 | $296,100 | $296,100 |
| 2012 | $277,100 | $19,000 | $0 | $0 | $0 |
| 2011 | $277,100 | $19,000 | $0 | $0 | $0 |
| 2010 | $265,300 | $18,200 | $0 | $0 | $0 |
| 2009 | $270,700 | $12,800 | $0 | $0 | $0 |
| 2008 | $270,700 | $12,800 | $0 | $0 | $0 |
| 2007 | $0 | $12,800 | $0 | $0 | $0 |
Deed and Sales History
| 1 | 06/08/2011 | QCD | QUIT CLAIM DEED | JIM DINE STUDIO LLC | DIANA & JIM LLC | | | | 120244 | 2011-04449 |
| 2 | 03/28/2011 | WARRANTY D | WARRANTY DEED | WALLA WALLA TOY BOX LLC | JIM DINE STUDIO LLC | | | $330,000.00 | 119937 | 2011-02616 |
| 3 | 09/08/2008 | QCD | QUIT CLAIM DEED | CLAUNCH, LARRY TRUSTEE OF THE | WALLA WALLA TOY BOX LLC | | | | 115616 | 2008-09269 |
| 4 | 09/07/2007 | WARRANTY D | WARRANTY DEED | WHATLEY, BARBARA J | CLAUNCH, LARRY TRUSTEE OF THE | | | $350,000.00 | 113673 | 2007-10557 |
| 5 | 12/01/2006 | WARRANTY D | WARRANTY DEED | CABLE, ARVLE B | LAKES LAND CO LLC | | | | 105190 | 2006-14377 |
| 6 | 11/29/2006 | WARRANTY D | WARRANTY DEED | LAKES LAND CO LLC | WHATLEY, BARBARA J | | | $50,000.00 | 111754 | 2006-14265 |
| 7 | 07/07/2004 | WARRANTY D | WARRANTY DEED | CABLE, ARVLE B | LAKES LAND CO LLC | | | $16,500.00 | 105190 | 2004-07617 |
| 8 | 10/28/2003 | QCD | QUIT CLAIM DEED | CABLE, GARY G | CABLE, ARVLE B | | | | 103368 | 2003-16642 |
| 9 | 06/23/1998 | QCD | QUIT CLAIM DEED | | | | | $5,000.00 | 90674 | 2699-806995 |
Payout Agreement
| No payout information available.. |