Property
Account |
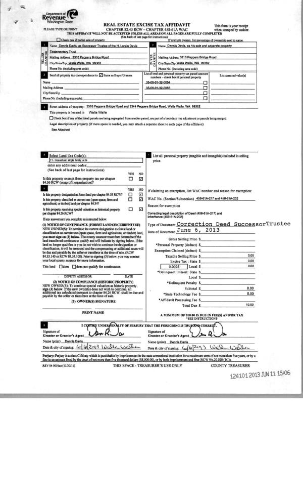
| Property ID: | 17650 | Abbreviated Legal Description: | 1-6-35 TAX 34A |
| Parcel Number: | 350601320054 | Agent Code: | |
| Type: | Real | | |
| Tax Area: | 311 - 250-4 | Land Use Code | 11 |
| Open Space: | N | DFL | N |
| Historic Property: | N | Remodel Property: | N |
| Multi-Family Redevelopment: | N | | |
| Township: | 6 | Section: | 1 |
| Range: | 35 |
Location |
| Address: | 3316 PEPPERS BRIDGE RD WA 99324 | Mapsco: | |
| Neighborhood: | A SFR Rural/City Inf | Map ID: | |
| Neighborhood CD: | 113012 |
Owner |
| Name: | DAVIS DENNIS R | Owner ID: | 12290 |
| Mailing Address: | 3316 PEPPERS BRIDGE WALLA WALLA, WA 99362 | % Ownership: | 100.0000000000% |
| | | Exemptions: | |
Taxes and Assessment Details
Property Tax Information as of
04/18/2026
Click on "Statement Details" to expand or collapse a tax statement.
* Please enter a valid date ** Please enter a valid date *
Statement Details |
| | TOTAL: | $0.00 | $0.00 | $0.00 | $0.00 | $0.00 | $0.00 |
|
| | $0.00 | $0.00 | $0.00 | $0.00 | $0.00 | $0.00 |
Values
| (+) Improvement Homesite Value: | + | N/A | |
| (+) Improvement Non-Homesite Value: | + | N/A | |
| (+) Land Homesite Value: | + | N/A | |
| (+) Land Non-Homesite Value: | + | N/A | Ag / Timber Use Value |
| (+) Curr Use (HS): | + | N/A | N/A |
| (+) Curr Use (NHS): | + | N/A | N/A |
| | | -------------------------- | |
| (=) Market Value: | = | N/A | |
| (–) Productivity Loss: | – | N/A | |
| | | -------------------------- | |
| (=) Subtotal: | = | N/A | |
| (+) Senior Appraised Value: | + | N/A | |
| (+) Non-Senior Appraised Value: | + | N/A | |
| | | -------------------------- | |
| (=) Total Appraised Value: | = | N/A | |
| (–) Senior Exemption Loss: | – | N/A | |
| (–) Exemption Loss: | – | N/A | |
| | | -------------------------- | |
| (=) Taxable Value: | = | N/A | |
Taxing Jurisdiction
| Owner: | DAVIS DENNIS R | | |
| % Ownership: | 100.0000000000% | | |
| Total Value: | N/A | | |
| Tax Area: | 311 - 250-4 |
| CERFD | CURRENT EXPENSE REFUND 010 | N/A | N/A | N/A | N/A | | |
| CURREXP | CURRENT EXPENSE 010 | N/A | N/A | N/A | N/A | | |
| HUMNSERV | HUMAN SERVICES 119 | N/A | N/A | N/A | N/A | | |
| SLDREL | SOLDIERS RELIEF 121 | N/A | N/A | N/A | N/A | | |
| EMERGSER | EMS 147 | N/A | N/A | N/A | N/A | | |
| EMSRFD | EMS REFUND 147 | N/A | N/A | N/A | N/A | | |
| FD4EXP | FD #4 EXPENSE 686 | N/A | N/A | N/A | N/A | | |
| RLBRFD | RURAL LIBRARY REFUND 623 | N/A | N/A | N/A | N/A | | |
| RURALLIB | RURAL LIBRARY 623 | N/A | N/A | N/A | N/A | | |
| PORTRFD | PORT REFUND 640 | N/A | N/A | N/A | N/A | | |
| PORTWWGEN | PORT OF WW 640 | N/A | N/A | N/A | N/A | | |
| SD250BOND | SD #250 BOND 773 | N/A | N/A | N/A | N/A | | |
| SD250GEN | SD #250 GENERAL 770 | N/A | N/A | N/A | N/A | | |
| ST2 | STATE SCHOOL PART 2 600 | N/A | N/A | N/A | N/A | | |
| STATESCHL | STATE SCHOOL 600 | N/A | N/A | N/A | N/A | | |
| STREFUND | STATE REFUND LEVY 603 | N/A | N/A | N/A | N/A | | |
| COROAD | COUNTY ROAD 115 | N/A | N/A | N/A | N/A | | |
| CRPRD | COUNTY ROAD REFUND 115 | N/A | N/A | N/A | N/A | | |
| | Total Tax Rate: | N/A | | | | | |
| | | | | Taxes w/Current Exemptions: | N/A | | |
| | | | | Taxes w/o Exemptions: | N/A | | |
Improvement / Building
| Improvement #1: | RESIDENTIAL | State Code: | 11 | 2180.0 sqft | Value: | N/A |
| Exterior Wall: | STUCCO | Heating/Cooling: | WARM & COOLED AIR | | Number of Bathrooms: | 3 | Number of Bedrooms: | 5 | | Plumbing: | 12 | Roof Covering: | COMP SHINGLE |
|
| | Type | Description | Class CD | Sub Class CD | Year Built | Area |
| | MA | Main Area | 4 | 35 | 1956 | 2180.0 |
| | UPFL | Upper Floor (included in main area) | 4 | 35 | 1956 | 948.0 |
| | SI1 | SITE IMPROVEMENT | 4 | 35 | 1956 | 3.0 |
| | BASE | BASEMENT | 4 | 35 | 1956 | 1232.0 |
| | BPF | BASEMENT -PARTITIONED FINISH | 4 | 35 | 1956 | 968.0 |
| | STG1 | Sub Terrain Garage Single | 4 | 35 | 1956 | 1.0 |
| | BLW | WOOD BALCONIES | 4 | 35 | 1956 | 192.0 |
| | S1F | Single One Story Fireplace | 4 | 35 | 1956 | 1.0 |
| | CPC | COVERED CARPORT/PATIO | 4 | 35 | 1956 | 140.0 |
| | BLW | WOOD BALCONIES | 4 | 35 | 1956 | 48.0 |
| | RPC | OPEN PORCH W/ROOF , CEILED | 4 | 35 | 1956 | 48.0 |
Sketch
Property Image
Land
| 1 | RES 1 | Converted: Residential | 0.4000 | 17424.00 | 0.00 | 0.00 | 1.00 | N/A | N/A |
Roll Value History
| 2026 | N/A | N/A | N/A | N/A | N/A |
| 2025 | $370,460 | $126,850 | $0 | $497,310 | $497,310 |
| 2024 | $370,460 | $76,360 | $0 | $446,820 | $446,820 |
| 2023 | $370,460 | $76,360 | $0 | $446,820 | $446,820 |
| 2022 | $370,460 | $76,360 | $0 | $446,820 | $446,820 |
| 2021 | $308,710 | $76,360 | $0 | $385,070 | $385,070 |
| 2020 | $220,510 | $76,360 | $0 | $296,870 | $296,870 |
| 2019 | $243,470 | $53,400 | $0 | $296,870 | $296,870 |
| 2018 | $231,880 | $53,400 | $0 | $285,280 | $285,280 |
| 2017 | $231,880 | $53,400 | $0 | $285,280 | $285,280 |
| 2016 | $210,800 | $53,400 | $0 | $264,200 | $264,200 |
| 2015 | $210,800 | $53,400 | $0 | $264,200 | $264,200 |
| 2014 | $210,800 | $53,400 | $0 | $264,200 | $264,200 |
| 2013 | $210,800 | $53,400 | $0 | $264,200 | $264,200 |
| 2012 | $210,800 | $53,400 | $0 | $0 | $0 |
| 2011 | $210,800 | $53,400 | $0 | $0 | $0 |
| 2010 | $210,800 | $53,400 | $0 | $0 | $0 |
| 2009 | $224,700 | $53,400 | $0 | $0 | $0 |
| 2008 | $193,400 | $31,300 | $0 | $0 | $0 |
| 2007 | $94,000 | $31,300 | $0 | $0 | $0 |
Deed and Sales History
| 1 | 02/22/2023 | QCD | QUIT CLAIM DEED | DAVIS DENNIS R | DAVIS KRAIG | | | | 145408 | 2023-00804 |
| 2 | 01/19/2023 | QCD | QUIT CLAIM DEED | DAVIS DENNIS R | DAVIS KRAIG | | | | 145279 | 2023-00274 |
| 3 | 06/11/2013 | WARRANTY D | WARRANTY DEED | DAVIS, H LORAIN ESTATE OF | DAVIS, DENNIS R | | | $0.00 | 124101 | 2013-05893 |
| 4 | 06/11/2013 | WARRANTY D | WARRANTY DEED | DAVIS, ANNE E ESTATE OF | DAVIS, DENNIS R | | | $0.00 | 124102 | 2013-05894 |
| 5 | 02/26/2013 | WARRANTY D | WARRANTY DEED | DAVIS, ANNE E ESTATE OF | DAVIS, DENNIS R | | | $0.00 | 123497 | 2013-01716 |
| 6 | 02/26/2013 | WARRANTY D | WARRANTY DEED | DAVIS, H LORAIN ESTATE OF | DAVIS, DENNIS TRUSTEE | | | $0.00 | 123498 | 2013-01717 |
| 7 | 11/01/1965 | WARRANTY D | WARRANTY DEED | | | | | $22,500.00 | 0 | 3164-715000 |
|   | |
Payout Agreement
| No payout information available.. |