Property
Account |
| Property ID: | 17649 | Abbreviated Legal Description: | BAUMEISTERS LOTS 13 & 14 BLK 2 |
| Parcel Number: | 360729530213 | Agent Code: | |
| Type: | Real | | |
| Tax Area: | 1 - OL-140-F | Land Use Code | 11 |
| Open Space: | N | DFL | N |
| Historic Property: | N | Remodel Property: | N |
| Multi-Family Redevelopment: | N | | |
| Township: | 7 | Section: | 29 |
| Range: | 36 |
Location |
| Address: | 448 CHASE AVE WA 99362 | Mapsco: | |
| Neighborhood: | Fair Inferior Res | Map ID: | |
| Neighborhood CD: | 512111 |
Owner |
| Name: | LIGHTFOOT JOSHUA & AMANDA | Owner ID: | 66993 |
| Mailing Address: | 448 CHASE AVE WALLA WALLA, WA 99362 | % Ownership: | 100.0000000000% |
| | | Exemptions: | |
Taxes and Assessment Details
Property Tax Information as of
02/21/2026
Click on "Statement Details" to expand or collapse a tax statement.
* Please enter a valid date ** Please enter a valid date *
Statement Details |
| | TOTAL: | $0.00 | $0.00 | $0.00 | $0.00 | $0.00 | $0.00 |
|
| | $0.00 | $0.00 | $0.00 | $0.00 | $0.00 | $0.00 |
Values
| (+) Improvement Homesite Value: | + | $0 | |
| (+) Improvement Non-Homesite Value: | + | $374,460 | |
| (+) Land Homesite Value: | + | $0 | |
| (+) Land Non-Homesite Value: | + | $52,520 | |
| (+) Curr Use (HS): | + | $0 | $0 |
| (+) Curr Use (NHS): | + | $0 | $0 |
| | | -------------------------- | |
| (=) Market Value: | = | $426,980 | |
| (–) Productivity Loss: | – | $0 | |
| | | -------------------------- | |
| (=) Subtotal: | = | $426,980 | |
| (+) Senior Appraised Value: | + | $0 | |
| (+) Non-Senior Appraised Value: | + | $426,980 | |
| | | -------------------------- | |
| (=) Total Appraised Value: | = | $426,980 | |
| (–) Senior Exemption Loss: | – | $0 | |
| (–) Exemption Loss: | – | $0 | |
| | | -------------------------- | |
| (=) Taxable Value: | = | $426,980 | |
Taxing Jurisdiction
| Owner: | LIGHTFOOT JOSHUA & AMANDA | | |
| % Ownership: | 100.0000000000% | | |
| Total Value: | $426,980 | | |
| Tax Area: | 1 - OL-140-F |
| CERFD | CURRENT EXPENSE REFUND 010 | 0.0000000000 | $426,980 | $426,980 | $0.00 | | |
| CURREXP | CURRENT EXPENSE 010 | 1.0175366760 | $426,980 | $426,980 | $434.47 | | |
| HUMNSERV | HUMAN SERVICES 119 | 0.0250000000 | $426,980 | $426,980 | $10.67 | | |
| SLDREL | SOLDIERS RELIEF 121 | 0.0155990005 | $426,980 | $426,980 | $6.66 | | |
| EMERGSER | EMS 147 | 0.3792580840 | $426,980 | $426,980 | $161.94 | | |
| EMSRFD | EMS REFUND 147 | 0.0000000000 | $426,980 | $426,980 | $0.00 | | |
| PORTRFD | PORT REFUND 640 | 0.0000000000 | $426,980 | $426,980 | $0.00 | | |
| PORTWWGEN | PORT OF WW 640 | 0.2460186015 | $426,980 | $426,980 | $105.05 | | |
| SD140BOND | SD #140 BOND 764 | 0.8342371393 | $426,980 | $426,980 | $356.20 | | |
| SD140GEN | SD #140 GENERAL 760 | 2.0646500647 | $426,980 | $426,980 | $881.56 | | |
| ST2 | STATE SCHOOL PART 2 600 | 0.8131451643 | $426,980 | $426,980 | $347.20 | | |
| STATESCHL | STATE SCHOOL 600 | 1.5158548041 | $426,980 | $426,980 | $647.24 | | |
| STREFUND | STATE REFUND LEVY 603 | 0.0000000000 | $426,980 | $426,980 | $0.00 | | |
| CWWBOND | C OF WW BOND 643 | 0.2760494372 | $426,980 | $426,980 | $117.87 | | |
| CWWGEN | CITY OF WW 631 | 1.6100204973 | $426,980 | $426,980 | $687.45 | | |
| CWWRFD | CITY OF WALLA WALLA REFUND 631 | 0.0000000000 | $426,980 | $426,980 | $0.00 | | |
| | Total Tax Rate: | 8.7973694689 | | | | | |
| | | | | Taxes w/Current Exemptions: | $3,756.31 | | |
| | | | | Taxes w/o Exemptions: | $3,756.31 | | |
Improvement / Building
| Improvement #1: | RESIDENTIAL | State Code: | 11 | 2528.0 sqft | Value: | $374,460 |
| Exterior Wall: | HARDBOARD | Heating/Cooling: | WARM & COOLED AIR | | Number of Bathrooms: | 2 | Number of Bedrooms: | 3 | | Plumbing: | 11 | Roof Covering: | COMP SHINGLE |
|
| | Type | Description | Class CD | Sub Class CD | Year Built | Area |
| | MA | Main Area | 4 | 35 | 1910 | 2528.0 |
| | UPFL | Upper Floor (included in main area) | 4 | 35 | 2015 | 1368.0 |
| | SI1 | SITE IMPROVEMENT | 4 | 35 | 1910 | 2.0 |
| | OPS | OPEN PORCH W/STEPS | 4 | 35 | 2014 | 396.0 |
| | OPS | OPEN PORCH W/STEPS | 4 | 35 | 2014 | 48.0 |
| | ATG | Attached Garage | 4 | 35 | 1910 | 792.0 |
Sketch
Property Image
Land
| 1 | RES 1 | Converted: Residential | 0.2319 | 10100.00 | 0.00 | 0.00 | 1.00 | $52,520 | $0 |
Roll Value History
| 2026 | N/A | N/A | N/A | N/A | N/A |
| 2025 | $353,300 | $77,160 | $0 | $430,460 | $430,460 |
| 2024 | $353,300 | $77,160 | $0 | $430,460 | $430,460 |
| 2023 | $374,460 | $52,520 | $0 | $426,980 | $426,980 |
| 2022 | $325,620 | $52,520 | $0 | $378,140 | $378,140 |
| 2021 | $325,620 | $52,520 | $0 | $378,140 | $378,140 |
| 2020 | $217,080 | $52,520 | $0 | $269,600 | $269,600 |
| 2019 | $217,080 | $52,520 | $0 | $269,600 | $269,600 |
| 2018 | $183,640 | $52,520 | $0 | $236,160 | $236,160 |
| 2017 | $136,210 | $47,200 | $0 | $183,410 | $183,410 |
| 2016 | $28,500 | $47,200 | $0 | $75,700 | $75,700 |
| 2015 | $28,500 | $47,200 | $0 | $75,700 | $75,700 |
| 2014 | $28,500 | $47,200 | $0 | $75,700 | $75,700 |
| 2013 | $18,900 | $47,200 | $0 | $66,100 | $66,100 |
| 2012 | $40,400 | $47,200 | $0 | $0 | $0 |
| 2011 | $40,400 | $47,200 | $0 | $0 | $0 |
| 2010 | $40,400 | $47,200 | $0 | $0 | $0 |
| 2009 | $55,900 | $47,200 | $0 | $0 | $0 |
| 2008 | $55,900 | $47,200 | $0 | $0 | $0 |
| 2007 | $40,600 | $20,000 | $0 | $0 | $0 |
Deed and Sales History
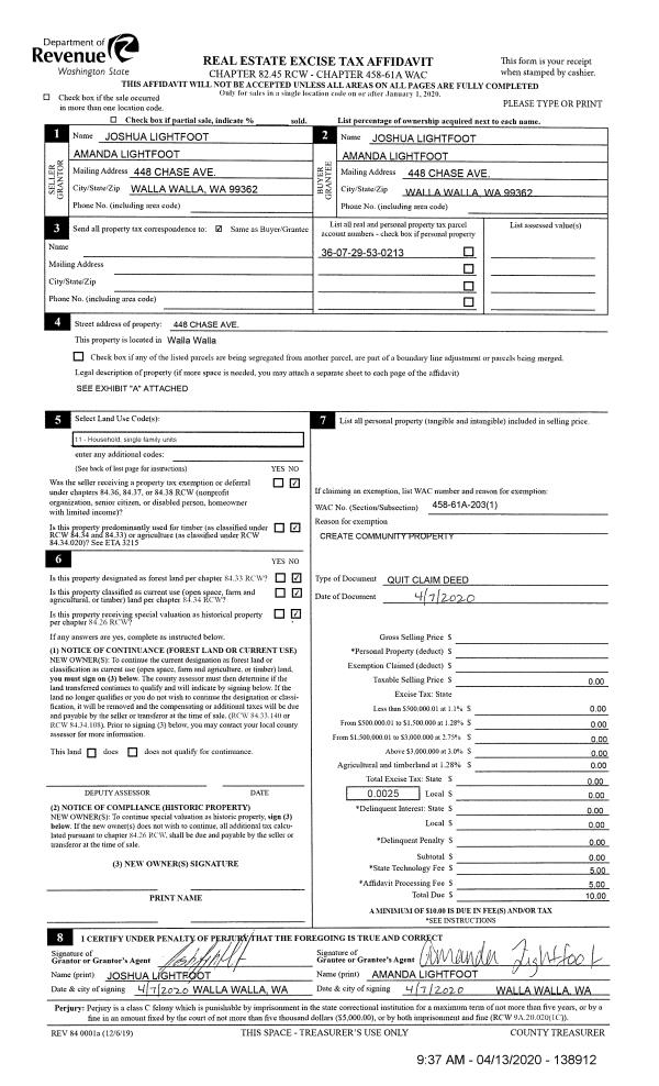
| 1 | 04/07/2020 | QCD | QUIT CLAIM DEED | LIGHTFOOT JOSHUA | LIGHTFOOT JOSHUA & AMANDA | | | $0.00 | 138912 | 2020-03107 |
| 2 | 08/18/2017 | QCD | QUIT CLAIM DEED | LIGHTFOOT JOSH | LIGHTFOOT JOSHUA | | | $0.00 | 133057 | 2017-06536 |
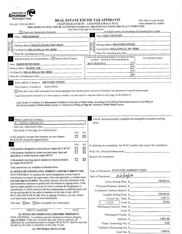
| 3 | 02/10/2015 | SWD | STATUTORY WARRANTY DEED | EDINGER FRED & PATRICIA | LIGHTFOOT JOSH | | | $109,930.00 | 127418 | 2015-01324 |
| 4 | 08/14/2007 | QCD | QUIT CLAIM DEED | EDINGER, PATRICIA A | EDINGER, FRED & PATRICIA | | | | 0 | 2007-09473 |
| 5 | 03/19/2007 | QCD | QUIT CLAIM DEED | WHITNEY, TIMOTHY A | EDINGER, PATRICIA A | | | | 112418 | 2007-03037 |
| 6 | 01/11/1993 | WARRANTY D | WARRANTY DEED | | | | | $23,500.00 | 78334 | 2039-300225 |
Payout Agreement
| No payout information available.. |