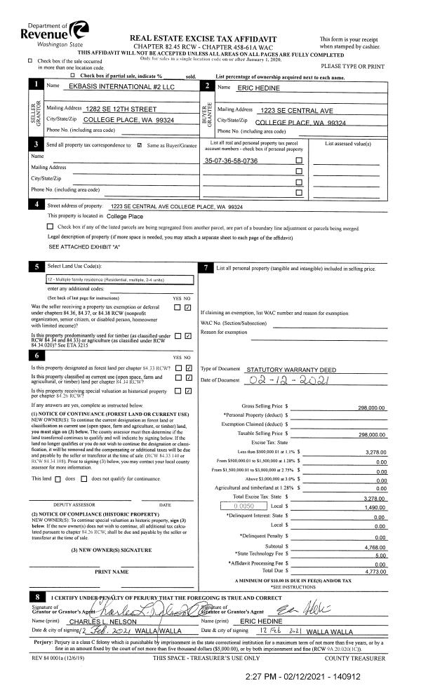
| 1 | 02/12/2021 | SWD | STATUTORY WARRANTY DEED | EKBASIS INTERNATIONAL #2 LLC | HEDINE ERIC | | | $298,000.00 | 140912 | 2021-01780 |
| 2 | 01/15/2020 | WARRANTY D | WARRANTY DEED | NELSON CHARLES L & MYRNA | EKBASIS INTERNATIONAL #2 LLC | | | $0.00 | 138556 | 2020-01056 |
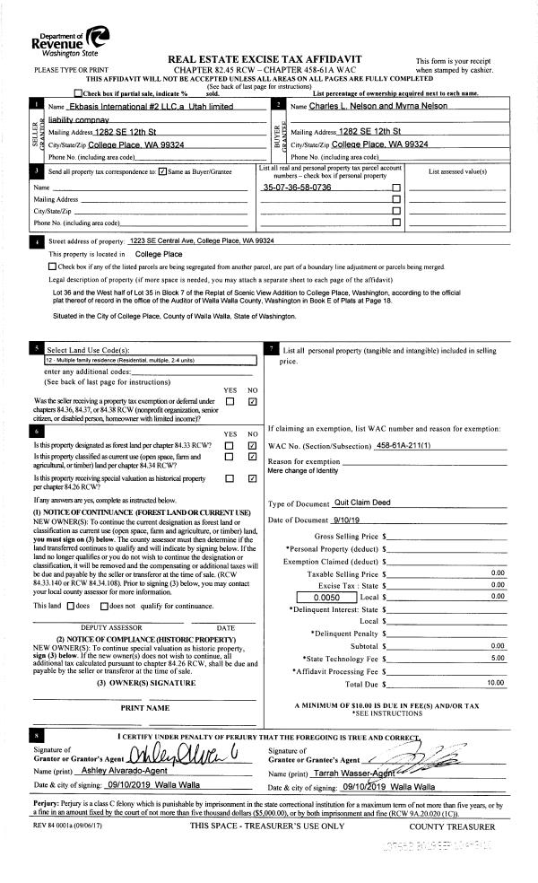
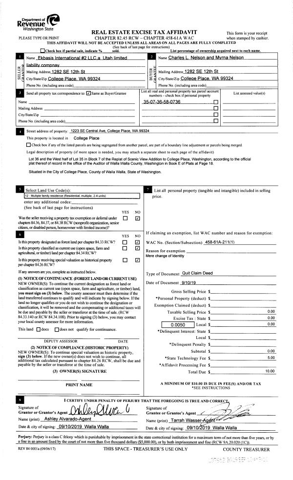
| 3 | 09/10/2019 | QCD | QUIT CLAIM DEED | EKBASIS INTERNATIONAL #2 LLC | NELSON CHARLES L & MYRNA | | | $0.00 | 137652 | 2019-07046 |
| 4 | 01/27/2016 | QCD | QUIT CLAIM DEED | NELSON CHARLES L | EKBASIS INTERNATIONAL #2 LLC | | | $0.00 | 129574 | 2016-00664 |
| 5 | 08/04/2015 | SWD | STATUTORY WARRANTY DEED | SCOFIELD KENNETH P & MERRILEE ET AL | NELSON CHARLES L | | | $150,000.00 | 128535 | 2015-06707 |
| 6 | 08/09/2007 | WARRANTY D | WARRANTY DEED | CHRISTENSON, RICKY G & JENNIFE | SCOFIELD, KENNETH P & MERRILEE | | | $187,000.00 | 113475 | 2007-09287 |
| 7 | 08/30/2005 | WARRANTY D | WARRANTY DEED | BALTRUSCH, ROGER | CHRISTENSON, RICKY G & JENNIFE | | | $158,700.00 | 108366 | 2005-10765 |
| 8 | 08/02/2004 | WARRANTY D | WARRANTY DEED | BALTRUSCH, ELIZABETH ESTATE | BALTRUSCH, ROGER | | | | 105410 | 2004-08828 |
| 9 | 11/23/1971 | WARRANTY D | WARRANTY DEED | | | | | $16,200.00 | 0 | 3430-517986 |