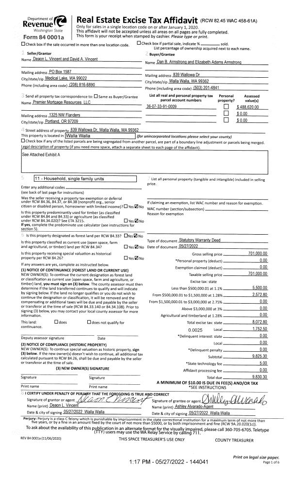
| 1 | 05/27/2022 | SWD | STATUTORY WARRANTY DEED | VINCENT DEAON L & DAVID A | ARMSTRONG DAN B & ELIZABETH ADAMS | | | $701,000.00 | 144041 | 2022-04616 |
| 2 | 06/17/2021 | SWD | STATUTORY WARRANTY DEED | HAZELWOOD MAHLON J & PATRICIA M | VINCENT DEAON L & DAVID A | | | $488,530.00 | 141828 | 2021-07394 |
| 3 | 08/13/2007 | WARRANTY D | WARRANTY DEED | REYNARD, TRACY C WATTS | HAZELWOOD, MAHLON J & PATRICIA | | | $340,000.00 | 113502 | 2007-09442 |
| 4 | 05/22/2003 | QCD | QUIT CLAIM DEED | FARRENS, GREG P & KATHLEEN M | WATTS, TRACY C | | | $50,000.00 | 102137 | 2003-07523 |
| 5 | 05/22/2003 | QCD | QUIT CLAIM DEED | WATTS, TYRONE & LETITIA | FARRENS, GREG P & KATHLEEN M | | | | 102136 | 2003-07522 |