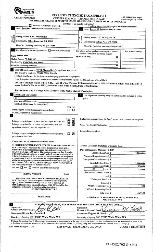
Property
Account |
| Property ID: | 17633 | Abbreviated Legal Description: | BUSH REPLAT OF LOTS 9,10,11, & 12 OF WHITMAN PUD LOT 115 |
| Parcel Number: | 350736940006 | Agent Code: | |
| Type: | Real | | |
| Tax Area: | 75 - CP 250 | Land Use Code | 11 |
| Open Space: | N | DFL | N |
| Historic Property: | N | Remodel Property: | N |
| Multi-Family Redevelopment: | N | | |
| Township: | 7 | Section: | 36 |
| Range: | 35 |
Location |
| Address: | 727 SE MAGNONI DR WA 99324 | Mapsco: | |
| Neighborhood: | G SFR | Map ID: | |
| Neighborhood CD: | 114011 |
Owner |
| Name: | SMITH EUGENE M & BETTY L | Owner ID: | 61994 |
| Mailing Address: | 727 SE MAGNONI DR COLLEGE PLACE, WA 99324 | % Ownership: | 100.0000000000% |
| | | Exemptions: | |
Taxes and Assessment Details
Property Tax Information as of
02/21/2026
Click on "Statement Details" to expand or collapse a tax statement.
* Please enter a valid date ** Please enter a valid date *
Statement Details |
| | TOTAL: | $0.00 | $0.00 | $0.00 | $0.00 | $0.00 | $0.00 |
|
| | $0.00 | $0.00 | $0.00 | $0.00 | $0.00 | $0.00 |
Values
| (+) Improvement Homesite Value: | + | $329,600 | |
| (+) Improvement Non-Homesite Value: | + | $0 | |
| (+) Land Homesite Value: | + | $70,000 | |
| (+) Land Non-Homesite Value: | + | $0 | |
| (+) Curr Use (HS): | + | $0 | $0 |
| (+) Curr Use (NHS): | + | $0 | $0 |
| | | -------------------------- | |
| (=) Market Value: | = | $399,600 | |
| (–) Productivity Loss: | – | $0 | |
| | | -------------------------- | |
| (=) Subtotal: | = | $399,600 | |
| (+) Senior Appraised Value: | + | $0 | |
| (+) Non-Senior Appraised Value: | + | $399,600 | |
| | | -------------------------- | |
| (=) Total Appraised Value: | = | $399,600 | |
| (–) Senior Exemption Loss: | – | $0 | |
| (–) Exemption Loss: | – | $0 | |
| | | -------------------------- | |
| (=) Taxable Value: | = | $399,600 | |
Taxing Jurisdiction
| Owner: | SMITH EUGENE M & BETTY L | | |
| % Ownership: | 100.0000000000% | | |
| Total Value: | $399,600 | | |
| Tax Area: | 75 - CP 250 |
| CERFD | CURRENT EXPENSE REFUND 010 | 0.0000000000 | $399,600 | $399,600 | $0.00 | | |
| CURREXP | CURRENT EXPENSE 010 | 1.0175366760 | $399,600 | $399,600 | $406.61 | | |
| HUMNSERV | HUMAN SERVICES 119 | 0.0250000000 | $399,600 | $399,600 | $9.99 | | |
| SLDREL | SOLDIERS RELIEF 121 | 0.0155990005 | $399,600 | $399,600 | $6.23 | | |
| COLLPLBOND | C OF CP BOND 644 | 0.4374241808 | $399,600 | $399,600 | $174.79 | | |
| COLLPLGEN | CITY OF CP 632 | 1.4453819216 | $399,600 | $399,600 | $577.57 | | |
| EMERGSER | EMS 147 | 0.3792580840 | $399,600 | $399,600 | $151.55 | | |
| EMSRFD | EMS REFUND 147 | 0.0000000000 | $399,600 | $399,600 | $0.00 | | |
| RURALLIB | RURAL LIBRARY 623 | 0.3710609029 | $399,600 | $399,600 | $148.28 | | |
| PORTRFD | PORT REFUND 640 | 0.0000000000 | $399,600 | $399,600 | $0.00 | | |
| PORTWWGEN | PORT OF WW 640 | 0.2460186015 | $399,600 | $399,600 | $98.31 | | |
| SD250BOND | SD #250 BOND 773 | 1.4560608159 | $399,600 | $399,600 | $581.84 | | |
| SD250GEN | SD #250 GENERAL 770 | 2.3880724087 | $399,600 | $399,600 | $954.27 | | |
| ST2 | STATE SCHOOL PART 2 600 | 0.8131451643 | $399,600 | $399,600 | $324.93 | | |
| STATESCHL | STATE SCHOOL 600 | 1.5158548041 | $399,600 | $399,600 | $605.74 | | |
| STREFUND | STATE REFUND LEVY 603 | 0.0000000000 | $399,600 | $399,600 | $0.00 | | |
| | Total Tax Rate: | 10.1104125603 | | | | | |
| | | | | Taxes w/Current Exemptions: | $4,040.11 | | |
| | | | | Taxes w/o Exemptions: | $4,040.11 | | |
Improvement / Building
| Improvement #1: | RESIDENTIAL | State Code: | 11 | 1405.0 sqft | Value: | $329,600 |
| Exterior Wall: | PLYWOOD | Heating/Cooling: | WARM & COOLED AIR | | Number of Bathrooms: | 2 | Number of Bedrooms: | 3 | | Plumbing: | 9 | Roof Covering: | COMP SHINGLE |
|
| | Type | Description | Class CD | Sub Class CD | Year Built | Area |
| | MA | Main Area | 1 | 30 | 2002 | 1405.0 |
| | SI1 | SITE IMPROVEMENT | 1 | 30 | 2002 | 2.0 |
| | GFP | GAS FIREPLACE | 1 | 30 | 2002 | 1.0 |
| | RPS | PORCH W/STEPS,ROOF | 1 | 30 | 2002 | 90.0 |
| | ATG | Attached Garage | 1 | 30 | 2002 | 529.0 |
Sketch
Property Image
Land
| 1 | RES 1 | Converted: Residential | 0.1033 | 4500.00 | 0.00 | 0.00 | 1.00 | $70,000 | $0 |
Roll Value History
| 2026 | N/A | N/A | N/A | N/A | N/A |
| 2025 | $230,720 | $125,000 | $0 | $355,720 | $355,720 |
| 2024 | $329,600 | $70,000 | $0 | $399,600 | $399,600 |
| 2023 | $329,600 | $70,000 | $0 | $399,600 | $399,600 |
| 2022 | $274,670 | $70,000 | $0 | $344,670 | $344,670 |
| 2021 | $228,890 | $70,000 | $0 | $298,890 | $298,890 |
| 2020 | $176,070 | $70,000 | $0 | $246,070 | $246,070 |
| 2019 | $211,070 | $35,000 | $0 | $246,070 | $246,070 |
| 2018 | $183,540 | $35,000 | $0 | $218,540 | $218,540 |
| 2017 | $159,600 | $35,000 | $0 | $194,600 | $194,600 |
| 2016 | $152,000 | $35,000 | $0 | $187,000 | $74,800 |
| 2015 | $152,000 | $35,000 | $0 | $187,000 | $187,000 |
| 2014 | $152,000 | $35,000 | $0 | $187,000 | $187,000 |
| 2013 | $152,000 | $35,000 | $0 | $187,000 | $187,000 |
| 2012 | $122,000 | $65,000 | $0 | $0 | $0 |
| 2011 | $122,000 | $65,000 | $0 | $0 | $0 |
| 2010 | $122,000 | $65,000 | $0 | $0 | $0 |
| 2009 | $131,800 | $65,000 | $0 | $0 | $0 |
| 2008 | $99,600 | $30,000 | $0 | $0 | $0 |
| 2007 | $99,600 | $30,000 | $0 | $0 | $0 |
Deed and Sales History
| 1 | 10/13/2017 | SWD | STATUTORY WARRANTY DEED | CRAWFORD DOUGLAS & GERALDINE | SMITH EUGENE M & BETTY L | | | $250,000.00 | 133415 | 2017-08166 |
| 2 | 07/27/2007 | WARRANTY D | WARRANTY DEED | LINDSEY, DAVID F & CAROL J | CRAWFORD, DOUGLAS & GERALDINE | | | $214,900.00 | 113365 | 2007-08725 |
| 3 | 09/21/2001 | WARRANTY D | WARRANTY DEED | | | | | $24,900.00 | 98054 | 3200-110227 |
Payout Agreement
| No payout information available.. |