Property
Account |
| Property ID: | 17631 | Abbreviated Legal Description: | VAUGHNS SUB LOT 11 BLK 1 |
| Parcel Number: | 360721720111 | Agent Code: | |
| Type: | Real | | |
| Tax Area: | 1 - OL-140-F | Land Use Code | 11 |
| Open Space: | N | DFL | N |
| Historic Property: | N | Remodel Property: | N |
| Multi-Family Redevelopment: | N | | |
| Township: | 7 | Section: | 21 |
| Range: | 36 |
Location |
| Address: | 110 WITHVA ST WA 99362 | Mapsco: | |
| Neighborhood: | A-SFR | Map ID: | |
| Neighborhood CD: | 513011 |
Owner |
| Name: | INTERLAND LLC | Owner ID: | 63452 |
| Mailing Address: | 1244 FORREST LN WALLA WALLA, WA 99362 | % Ownership: | 100.0000000000% |
| | | Exemptions: | |
Taxes and Assessment Details
Property Tax Information as of
02/21/2026
Click on "Statement Details" to expand or collapse a tax statement.
* Please enter a valid date ** Please enter a valid date *
Statement Details |
| | TOTAL: | $0.00 | $0.00 | $0.00 | $0.00 | $0.00 | $0.00 |
|
| | $0.00 | $0.00 | $0.00 | $0.00 | $0.00 | $0.00 |
Values
| (+) Improvement Homesite Value: | + | $0 | |
| (+) Improvement Non-Homesite Value: | + | $263,720 | |
| (+) Land Homesite Value: | + | $0 | |
| (+) Land Non-Homesite Value: | + | $39,000 | |
| (+) Curr Use (HS): | + | $0 | $0 |
| (+) Curr Use (NHS): | + | $0 | $0 |
| | | -------------------------- | |
| (=) Market Value: | = | $302,720 | |
| (–) Productivity Loss: | – | $0 | |
| | | -------------------------- | |
| (=) Subtotal: | = | $302,720 | |
| (+) Senior Appraised Value: | + | $0 | |
| (+) Non-Senior Appraised Value: | + | $302,720 | |
| | | -------------------------- | |
| (=) Total Appraised Value: | = | $302,720 | |
| (–) Senior Exemption Loss: | – | $0 | |
| (–) Exemption Loss: | – | $0 | |
| | | -------------------------- | |
| (=) Taxable Value: | = | $302,720 | |
Taxing Jurisdiction
| Owner: | INTERLAND LLC | | |
| % Ownership: | 100.0000000000% | | |
| Total Value: | $302,720 | | |
| Tax Area: | 1 - OL-140-F |
| CERFD | CURRENT EXPENSE REFUND 010 | 0.0000000000 | $302,720 | $302,720 | $0.00 | | |
| CURREXP | CURRENT EXPENSE 010 | 1.0175366760 | $302,720 | $302,720 | $308.03 | | |
| HUMNSERV | HUMAN SERVICES 119 | 0.0250000000 | $302,720 | $302,720 | $7.57 | | |
| SLDREL | SOLDIERS RELIEF 121 | 0.0155990005 | $302,720 | $302,720 | $4.72 | | |
| EMERGSER | EMS 147 | 0.3792580840 | $302,720 | $302,720 | $114.81 | | |
| EMSRFD | EMS REFUND 147 | 0.0000000000 | $302,720 | $302,720 | $0.00 | | |
| PORTRFD | PORT REFUND 640 | 0.0000000000 | $302,720 | $302,720 | $0.00 | | |
| PORTWWGEN | PORT OF WW 640 | 0.2460186015 | $302,720 | $302,720 | $74.47 | | |
| SD140BOND | SD #140 BOND 764 | 0.8342371393 | $302,720 | $302,720 | $252.54 | | |
| SD140GEN | SD #140 GENERAL 760 | 2.0646500647 | $302,720 | $302,720 | $625.01 | | |
| ST2 | STATE SCHOOL PART 2 600 | 0.8131451643 | $302,720 | $302,720 | $246.16 | | |
| STATESCHL | STATE SCHOOL 600 | 1.5158548041 | $302,720 | $302,720 | $458.88 | | |
| STREFUND | STATE REFUND LEVY 603 | 0.0000000000 | $302,720 | $302,720 | $0.00 | | |
| CWWBOND | C OF WW BOND 643 | 0.2760494372 | $302,720 | $302,720 | $83.57 | | |
| CWWGEN | CITY OF WW 631 | 1.6100204973 | $302,720 | $302,720 | $487.39 | | |
| CWWRFD | CITY OF WALLA WALLA REFUND 631 | 0.0000000000 | $302,720 | $302,720 | $0.00 | | |
| | Total Tax Rate: | 8.7973694689 | | | | | |
| | | | | Taxes w/Current Exemptions: | $2,663.15 | | |
| | | | | Taxes w/o Exemptions: | $2,663.15 | | |
Improvement / Building
| Improvement #1: | RESIDENTIAL | State Code: | 11 | 1803.0 sqft | Value: | $263,720 |
| Exterior Wall: | SIDING | Heating/Cooling: | HEAT PUMP | | Number of Bathrooms: | 2 | Number of Bedrooms: | 4 | | Plumbing: | 9 | Roof Covering: | COMP SHINGLE |
|
| | Type | Description | Class CD | Sub Class CD | Year Built | Area |
| | MA | Main Area | 4 | 35 | 1900 | 1803.0 |
| | UPFL | Upper Floor (included in main area) | 4 | 35 | 1900 | 741.0 |
| | SI1 | SITE IMPROVEMENT | 4 | 35 | 1900 | 2.0 |
| | BASE | BASEMENT | 4 | 35 | 1900 | 531.0 |
| | DTG | Detached Garage | 4 | 35 | 1900 | 252.0 |
| | PRC | PORCH W STEPS, ROOF,CEILED | 4 | 35 | 1900 | 84.0 |
| | SWP | Solid Wall Porch | 4 | 35 | 1900 | 112.0 |
Sketch
Property Image
Land
| 1 | RES 1 | Converted: Residential | 0.1433 | 6240.00 | 0.00 | 0.00 | 1.00 | $39,000 | $0 |
Roll Value History
| 2026 | N/A | N/A | N/A | N/A | N/A |
| 2025 | $296,930 | $62,400 | $0 | $359,330 | $359,330 |
| 2024 | $237,540 | $62,400 | $0 | $299,940 | $299,940 |
| 2023 | $263,720 | $39,000 | $0 | $302,720 | $302,720 |
| 2022 | $251,160 | $39,000 | $0 | $290,160 | $290,160 |
| 2021 | $251,160 | $39,000 | $0 | $290,160 | $290,160 |
| 2020 | $209,300 | $39,000 | $0 | $248,300 | $248,300 |
| 2019 | $209,300 | $39,000 | $0 | $248,300 | $248,300 |
| 2018 | $209,300 | $39,000 | $0 | $248,300 | $248,300 |
| 2017 | $214,370 | $25,000 | $0 | $239,370 | $239,370 |
| 2016 | $194,880 | $25,000 | $0 | $219,880 | $219,880 |
| 2015 | $194,880 | $25,000 | $0 | $219,880 | $219,880 |
| 2014 | $162,400 | $25,000 | $0 | $187,400 | $187,400 |
| 2013 | $162,400 | $25,000 | $0 | $187,400 | $187,400 |
| 2012 | $175,700 | $25,000 | $0 | $0 | $0 |
| 2011 | $186,300 | $25,000 | $0 | $0 | $0 |
| 2010 | $158,700 | $25,000 | $0 | $0 | $0 |
| 2009 | $179,100 | $25,000 | $0 | $0 | $0 |
| 2008 | $145,100 | $25,000 | $0 | $0 | $0 |
| 2007 | $145,100 | $25,000 | $0 | $0 | $0 |
Deed and Sales History
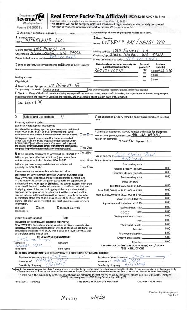
| 1 | 06/18/2024 | QCD | QUIT CLAIM DEED | INTERLAND LLC | MAY STEVEN D & NANQI YOU | | | | 147735 | 2024-03239 |
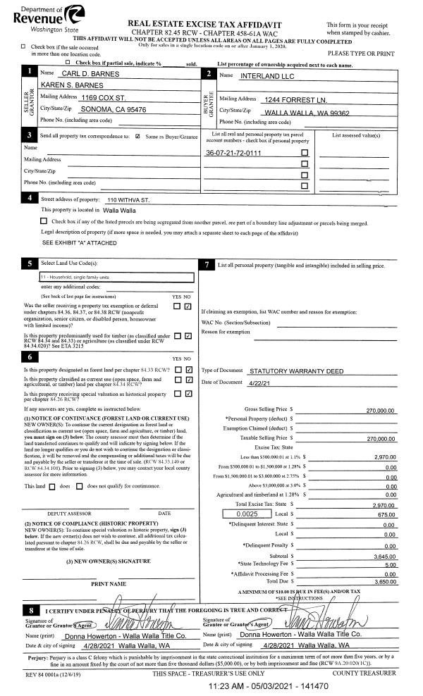
| 2 | 05/03/2021 | SWD | STATUTORY WARRANTY DEED | BARNES CARL D & KAREN S | INTERLAND LLC | | | $270,000.00 | 141470 | 2021-05179 |
| 3 | 07/30/2007 | WARRANTY D | WARRANTY DEED | MC FARLEY, KELLEY P & TRULA | BARNES, CARL D & KAREN S | | | $204,000.00 | 113370 | 2007-08732 |
| 4 | 01/31/1977 | WARRANTY D | WARRANTY DEED | | | | | $12,000.00 | 45801 | 4305-54929 |
Payout Agreement
| No payout information available.. |